▲ 更多精品,关注“搜建筑”
近几年的高端改善市场,可谓一年比一年火爆。事实上,自2018年以来,全国新建高端改善商品住宅(总价1000万以上/套)成交连年增长,2020年开始,更是加速增长……
快速飙升的成交数据,引来各大房企争先布局,使得高端改善市场的争夺日趋白热化。
其中,大平层已然成为高净值人群的居住新风潮。从设计上看,面积大、功能完善的大平层在户型创新、空间布局方面优势明显。
本期搜建筑给大家总结了一批建筑面积约200㎡以上的大平层户型,有着较高的纯粹性,希望能给大家一些启发。
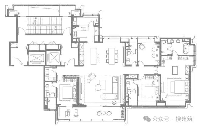
1
南京颐和·天晟府建面约269㎡户型,两梯两户,约3.3m层高,室内整体得房率约83%,南向开间约22.5m,全屋9个飘窗。

颐和·天晟府建面约269㎡户型,4房2厅4卫
LDK客餐厅一体化整体约70㎡,客厅无主灯设计,双背景板交付,空间奢阔,一体化设计,与餐厨连通,轻松拉近家人的距离,让家人们的欢聚不止一种形式。
约2.1m进深、约10.6m跑道阳台,面积约22㎡,全封闭落地窗采用YKK系统窗,奢阔视野,窗外即是河西城市中心的现代都市之景,置身其中,或许会更有为之奋斗的动力吧。
中西厨设计烹饪的奢华感尽显,让人不禁想大显身手。
主卧为行政套房设计约46㎡,开放式衣帽间和三分离主卫设计,空间舒适度且实用性凸显。
示范区实拍图,以交付为准
2


佛山保利映月湖天珺建面约288㎡户型,4房2厅3卫
独立电梯厅,搭配归家双入户动线,在客厅会客的时候,不会遇到刚好买菜回家的阿姨。同时,中西双厨设计满足了中西美味的自由切换,开放式岛台更让拉近了家人之间的互动距离。
映月湖·保利天珺OPUS ONE板房实景图
客厅设计了270°转角窗视野,两面加起来约21米的一线湖景,如同展开的双臂,将水光潋滟的大湖拥入怀中。
更赞的是,做了双主套设计,特别是豪华主卧套房,独立衣帽间和行政书房,带来五星级酒店的同款享受;长辈套房直接做到270°折叠屏飘窗,在房间内转一圈,每个角度都是最佳景观位。

映月湖·保利天珺OPUS ONE板房实景图
总之,这里的每一个细节,你都能看到保利华南对品质人居需求的洞察。

映月湖天珺项目楼栋效果图
映月湖·保利天珺OPUS ONE外立面设计将文化创新与高定设计融入到每一个细节。
项目立面以“铝板+真石漆+蓝灰色玻璃幕墙”搭配,楼体玻璃面占比约40%,是常规住宅的2倍之高,超越市面上绝大部分的人居产品。
3
南安建发·璞玥云山建面约206m²户型,5房2厅3卫设计,其中南向两套卧+2个标准卧室,满足二孩家庭、三代同堂的生活需求。
独门独户的私享设计,可打造外玄关储物柜,内玄关搭配独立储藏间,收纳衣物/行李箱/清洁用品/儿童推车等,不仅兼顾归家仪式感,也提升户型的空间利用率和收纳。

南安丨建发璞玥云山建面约206㎡样板房实景图,非交付标准
餐客厨阳一体式空间,共约85m²,预留西厨岛台,满足西餐、简餐制作需要,亦可改造为酒柜、餐边柜,多功能演绎满足业主专属喜好。南向阳台超8米面宽,观景、赏花、瑜伽、阅读皆可实现。

南安丨建发璞玥云山建面约206㎡样板房实景图,非交付标准
约4米南向面宽大尺寸豪华主卧,轻松放置2米大床和观景椅的组合,专属衣帽间、搭配独立梳妆台,将尊崇与仪式感留给女主人,精研五星级酒店卫浴配置,双台盆、大浴缸、淋浴等卫浴4件套一应俱全。
南安丨建发·璞玥云山建面约239m²,5房2厅3卫
建面约239㎡禅意大宅,户型南北通透,坐拥约21米南向大面宽,南向约8.6米阳台,配置提升推拉窗,开窗面积约50%。
约85㎡多功能复合双厅,自带大面域景观,星级酒店式套房主卧,三个南向卧室皆为套间,用舒展的空间,写意层峰的生活享受。
南安|建发·璞玥云山效果图过程稿,仅供示意
4
莆田建发·璞云建面约237㎡户型4+1房2厅4卫,两梯一户,高效的电梯通勤效率;一层一户,并配备精装电梯厅,尊贵感直接拉满。
莆田建发·璞云建面约237㎡,4+1房2厅4卫
该户型创新的打造巨幕约360°视野角,端厅也有约270°视角,与东侧溪景完美结合,在家也能实现多视角赏景。阔绰的不只有面积,约3.15米阔绰层高,尽显奢阔空间感。
作为经常活动的动区方面,该户型做到了约60㎡LDKB行政复合厅,聚会与会客应对自如。此外,还有约20.8米南向大面宽,全屋明亮通透。另外,双主卧设计,以及南向酒店式主卧,处处体现居者身份。
不得不说,这套237㎡就是莆田的豪宅精品。
建发·璞云建筑外立面效果图
5
杭承府项目整体非常纯粹,全部5幢高层,呈围合式排布,又彼此错落,营造出超大的楼间距和采光面。所有楼栋皆是两梯两户设计,并且只规划有两个户型——约210m²四室两厅三卫以及约266m²四室两厅四卫,圈层纯粹。
杭承府建面约266㎡,四室两厅四卫
杭承府外立面效果图
杭承府外立面效果图
6
徐州万科·昆吾建面约235㎡户型,四房两厅三卫,整体南向景观面约14.1米,第一眼就被超大方厅吸引,约7.8米的开间+大落地窗的设计,将客厅的开阔度拉到了max。
双套房设计,都为南向,其中主卧建面约30+㎡,约5.6m的大开间,让主卧生活更有延展性,起居室可以放下一张大床、一套沙发和茶几,总统套房的既视感,让卧室“小家化”发挥淋漓尽致。

建面约235㎡样板间示意图,仅供参考
样板间示意图,仅供参考

样板间示意图,仅供参考
在精装上,客厅公区交付吊顶、实木墙面,电视墙也用大理石铺设,搭配格栅造型,美感十足。厨房门采用夹丝玻璃门,将厨房与客厅之间的状态,维持在透与不透之间,又透光、又确保一定的私密性。
地面采用简一的无缝拼接技术;交付的橱柜门是鎏金色的铜制品、大理石的台面、连水槽都是石英石打磨而成。油烟机、燃气灶、洗碗机品牌均为德国嘉格纳,这三套市场价超十几万,在南京也只有少数豪宅楼盘才会用。
万科昆吾项目效果图
7
长沙万科瑧湾汇建面225㎡的大平层户型,满足了对生活有追求、对社交圈层有要求的长沙改善群体。在生活品质的打造上,万科有着自己的坚持和“小倔强”,从尺度到格局,项目都尽可能做到更出挑。
长沙万科瑧湾汇建面约225㎡,5房2厅3卫
户型重视通风、采光,打造南北对流式双巨幕阳台,让阳光和清风四季穿堂过;大横厅设计,容得下儿童、中青年、老人不同年龄层家庭成员的休闲和娱乐,这么做的原因,就是想让生活更舒适、社交空间更集中。
主卧套房,270°转角飘窗,带来超广角环幕视野,体验感更为极致;除此之外,还有私密电梯、功能玄关、中西双厨设计、全景落地窗……让豪宅体验感无处不在!
长沙万科瑧湾汇项目示效果图
微信公众号“搜建筑”(ID:sjz9999)
合作、宣传、投稿
联系微信:soujianzhu006


