▲ 更多精品,关注“经典人居”
可以洋房,何必高层?正如林语堂所说,世界大同的理想生活是住在洋房里。近两年,改善客群倍增,改善型产品越来越受到市场的追捧。
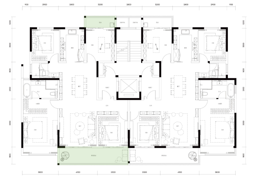
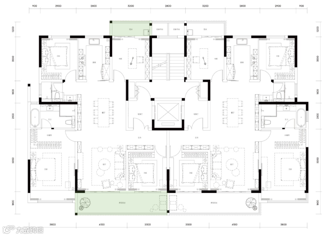
郑州中海云著湖居,位于郑州北龙湖的项目,其整体容积率1.69,占地119亩,均为7层花园洋房社区。
郑州中海云著湖居鸟瞰图
项目规划了建面约149-220㎡的四房户型,充分利用了景观优势,在主景观轴上规划了 3 栋195 ㎡的奢华四房。
我们来看一下约149、169、195㎡四房户型:约149、169㎡户型配置为4房2厅2卫,约195㎡为4房2厅3卫。

郑州中海云著湖居约149㎡户型

郑州中海云著湖居约169㎡户型

郑州中海云著湖居约195㎡户型
• 均为LDKG竖厅设计,客厅、餐厅、吧台一体化,形成一个以合厅为中心的居家空间,符合中国传统人居理念,户型整体内外方正,空间完整、功能合理明确,电梯厅独立入户,南向双套房设计。
•均为南北双阳台设计,北向家政间和阳台可以晾晒大部分的衣物,南向双联阳台,主要负责看星星看月亮,还有看小区的景观。
外立面萃取当代设计美学,融合东方人居底蕴,打破千篇一律的建筑审美。

郑州中海云著湖居效果图
外立面采用铝板与石材、涂料、门窗相结合的形式,打造了擎领后北龙湖时代的宽幕私宅。超高窗墙比现代时尚,通透轻盈。

郑州中海云著湖居效果图
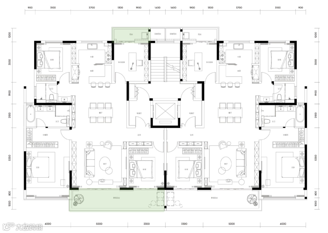
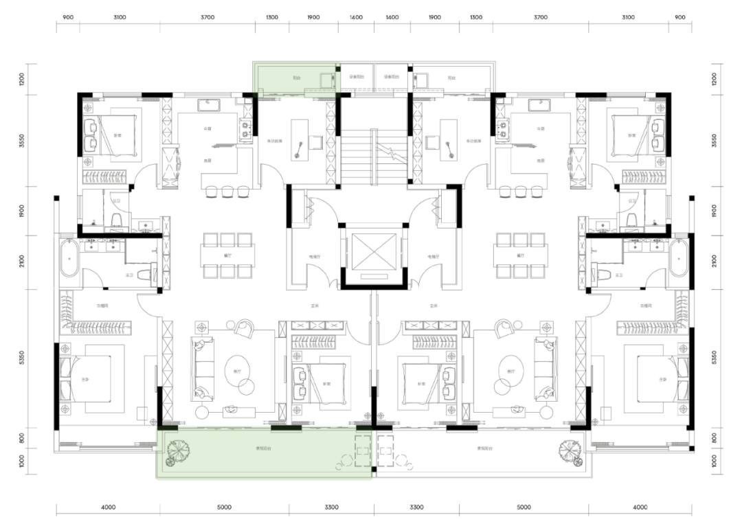
郑州保利璞岸其整体容积率1.69,规划了19栋7层洋房和约2000平米地下会所。
郑州保利璞岸鸟瞰示意图
保利璞岸200平米以下的户型,有两个面积段,我们来看看建面约160㎡4房2厅2卫户型和建面约184㎡4房2厅3卫户型:

保利璞岸建面约160㎡户型

保利璞岸建面约184㎡户型
两个户型格局均为LDK方厅,方方正正,还有多重洄游动线,整体内外方正,空间完整、功能合理明确。电梯厅独立入户,双入户门设计,家政间和厨房有独立的入户门,中西社交双厨与吧台一体化设计,是这个户型创新亮点之一。
独立家政间设计、让居家生活有条不紊。主卧超大的衣帽间和卫生间,主卧4件套双盥洗池设计,是豪华五星级酒店的标准。


保利璞岸样板间概念图
保利璞岸的建筑立面风格,抛弃了传统的新中式,采用现代极简主义风格。
整体外立面的设计上,璞岸采用坡屋顶,立面采用大面积玻璃幕墙,木色金属材质点缀,通过简练的线条,简洁、大气、稳重、宁静;注重对建筑细节的雕琢,散发着原创、包容、开放的璞真韵味,诠释现代东方美感。

保利璞岸建筑立面效果图
郑州锦艺旭辉一江雲著T-tower立面设计打破了一般住宅设计棱角分明的形式,以自由舒展的弧线元素柔化建筑形体,勾勒独具现代感艺术的天际线。
郑州锦艺旭辉一江雲著示范区实景图 摄影:胡义杰

郑州锦艺旭辉一江雲著立面效果图
看一江雲著效果图,大玻璃幕以及弧形流线线条,标识性比较强。这种现代简约风格的建筑立面,的确能俘获一大批年轻群体的喜欢。
尤其是玻璃幕在阳光照耀下的晶钻感,让一江雲著在锦艺四季城的一众法式建筑中格外独特。
洋房建筑面积约143㎡,4房2厅2卫设计,有独立入户电梯厅、超大入户玄关系统,通厅阳台、套房式主卧以及专属女神化妆间。


郑州锦艺旭辉一江雲著建面约143㎡户型
郑州绿城湖畔雲庐,中原第一座雲庐系作品,择址郑州北龙湖,总占地约84亩,由16栋住宅组成,容积率为1.69,规划有522套建面约152—249㎡精装洋房。
绿城湖畔雲庐鸟瞰图
绿城·湖畔雲庐动用空间设计上的亮点优化,来强化日常生活的分区动线,比如在建面约168㎡的户型中,通过中西岛台的设计,重新划定生活的秩序,让理想有序铺展,让美好趋于圆满。
户型方正,南北通透,三开间朝南,同样是三联通体大阳台,中西厨设计,主卧套房设计,配独卫,南向次卧配衣帽间,餐客一体,卧室分开私密性更好。
绿城湖畔雲庐建面约168㎡3房2厅2卫户型图
所有户型均为一梯两户设计。
152㎡3房2厅2卫,户型方正,南北通透,全明户型,三开间朝南,南侧三开间贯通式大阳台,在郑州罕见,主卧套房设计,配独卫和衣帽间,南向次卧配衣帽间,餐厨一体,独立玄关设计。

绿城湖畔雲庐建面约153㎡3房2厅2卫户型图
171㎡4房2厅3卫,户型方正,南北通透,南北双阳台,南向主卧、客厅贯通式阳台,主卧配独卫和衣帽间,南向次卧配次卫和飘窗,餐客一体。

绿城湖畔雲庐建面约171㎡4房2厅3卫户型图
198㎡4房2厅3卫,198㎡户型和171㎡布局类似,客厅尺度更大,达6.2米,南向开间尺度更宽,达13.9米,衣帽间也更为阔绰。

绿城湖畔雲庐建面约198㎡4房2厅3卫户型图

绿城湖畔雲庐建面约212㎡4房2厅3卫户型图

绿城湖畔雲庐建面约247㎡4房2厅3卫户型图

绿城湖畔雲庐样板间效果图

绿城湖畔雲庐样板间效果图
绿城湖畔雲庐项目容积率1.69,为纯低密洋房,楼间距达30米,是绿城雲庐系延展创新产品,外立面现代感十足,曾荣获2020年Global Future Design Awards(全球未来设计大奖)一等奖。
绿城·湖畔雲庐外立面将榫卯的十字收头造型融于建筑之中,通过榫卯的巧妙装点,形成立面的统一标志,在精微之处,致敬东方建筑的文化风骨。
绿城湖畔雲庐项目效果图
臻选轻巧的三维面层构件,结合项目所需的造型需求,打造更为契合项目气质的建筑风格,借以25毫米高的立边线条,柔化大型屋面的厚重感,为项目增添轻盈飘逸的韵味,并采用流线型的圆弧收边作为收口,使得檐口细腻且流畅,从而巧妙营造建筑的多维美感。

绿城湖畔雲庐项目效果图
郑州永威上和琚规划19栋洋房,五排布局改为四排,加大楼间距。地块中间规划一栋建筑面积约600㎡的洋房。

郑州永威上和琚鸟瞰图

郑州永威上和琚效果图
郑州永威上和琚户型6个阳台设计,创新东向阳台,最大约60米视野,主卧270°超大广角视野,社交空间生活空间分离,约1:1黄金比。

郑州永威上和琚610㎡户型
比如郑州永威上和琚221.63㎡户型,双套房设计,主卧套相当奢华,另外一个套房可以作为老人套房。

郑州永威上和琚221.63㎡户型
同一项目的约259㎡户型,做到了三套房设计。

郑州永威上和琚259.43㎡户型


样板间实景图
项目摒弃北龙湖一贯的兵营式布局,深入洞察高端圈层生活,将空间退还给生活场景,五排布局改为四排扩大南北边界公共空间,同时拉大东西向的视距。

鸟瞰示意图
永威上和琚汲取国际一线豪宅的建筑理念,从整体规划、建筑设计、室内营造等多维度考量,抛弃更为节省成本的实体墙面,采用大范围的玻璃幕窗。超大窗墙比,使建筑兼具无边视界与充沛阳光的双重品质。
外立面黑白灰高阶三层三色轻盈时尚。墙体延面、阳台错落、坡屋顶、三次视觉暂停。基底灰色石材+顶层金属铝板+定制系统门窗,极具美感的25º坡屋顶,最大处约6-7米挑高,50%以上落地玻璃,无数精致细节拼接出独具匠心的美学。

项目实景图
正商上境系大成之作——正商祯瑞上境,坐落于北龙湖限高20m的核心腹地,项目占地约103亩,1.49容积率,绿地率占35%,项目规划23栋6层纯低密洋房,社区内部配置有2600㎡高端会所。

正商祯瑞上境鸟瞰图
在户型设计上,以4房2厅3卫【建筑面积175㎡】、4房2厅3卫【建筑面积190㎡】、5房2厅3卫【建筑面积240㎡】,空间布局方正,融合自然造物之美,致献中原塔尖人士。

建筑面积约175㎡户型图

建筑面积约190㎡户型图
建筑面积约240㎡户型两梯两户设计,专属归家体验,尽显家族风范,约7.8米宽大横厅,约7.8*2.5米南向阳台,融景于室,约5.5米开间北向阳台,洗衣休憩兼得,主卧附带步入式衣帽间,独立卫浴,贵不可言。

建筑面积约240㎡户型图

正商祯瑞上境效果图
正商祯瑞上境效果图
正商祯瑞上境,秉承上境系别标准,联袂上海柏涛担纲项目整体规划、建筑设计,师法北京紫禁城前三殿、后三宫的中轴对称的建筑礼制,同时遵循“九宫方正,前隐后尊”的空间格局,取法宋代美学,以宅、门、墙、堂、院的营造之道,精心打造,经过数十次的反复修改而最终呈现在大家面前。
本资料声明:
1.本文为建筑设计技术分析,仅供欣赏学习。
2.本资料为要约邀请,不视为要约,所有政府、政策信息均来源于官方披露信息,具体以实物、政府主管部门批准文件及买卖双方签订的商品房买卖合同约定为准。如有变化恕不另行通知。
3.因编辑需要,文字和图片无必然联系,仅供读者参考;
微信公众号“搜建筑”(ID:sjz9999)
合作、宣传、投稿
联系微信:soujianzhu006










