▲ 更多精品,关注“搜建筑”


鹿儿岛县南九州市新建了一所幼儿园,其理念是 "让原生态景观更加迷人,提供真实体验的机会"。
Based on the concept of "a facility that enchants the original landscape and provides opportunities for authentic experiences," a kindergarten has been newly constructed in Minamikyushu City, Kagoshima Prefecture.

在日本的许多地方,山川和田野是常见的景观,也是当地人需要更加关注的普通风景。因此,人们认为自己往往没有注意到这些风景的美丽之处,例如大自然一天四季的色彩变化。
此外,近年来观看视频和玩游戏等室内活动的多样化导致人们缺乏从真实生活体验中学习和成长的机会。儿童体能下降也是当前的一个趋势,这凸显了一个问题,即由于以汽车为中心的现代社会的弊端,农村儿童更容易缺乏体育锻炼。
The landscape of mountains and fields is a common sight in many places in Japan and is an ordinary scenery that locals need to pay more attention to. Therefore, it is believed that people often fail to notice the beauty of these landscapes, such as the changing colors of nature that occur throughout the day and the seasons. Moreover, the recent diversification of indoor activities such as watching videos and playing games has led to a lack of opportunities for learning and growth that arise from real-life experiences. Additionally, the decline in children's physical abilities, which is a current trend, has highlighted the issue that children in the countryside are more prone to physical inactivity due to the disadvantages of the modern car-centric society.



因此,我们的目标是通过建筑捕捉被忽视的普通景观,并将其打造成当地独有的美丽风景。同时,我们的目标是加强游乐区设施,增加体育活动的机会,创造一个让孩子们在游戏中通过真实体验学习的空间。
餐厅的 "捕捉原始景观的大窗户 "和连接幼儿园与室外的 "微风走廊",让孩子们可以随时随地感受自然之美和四季时光的流逝,培养他们对家乡的热爱和敏感。
Therefore, the aim was to capture the overlooked and ordinary landscapes through architecture and create them into beautiful scenery unique to the location. Simultaneously, we aimed to enhance the play areas facilities increase opportunities for physical activity, and create a space where children can learn through real experiences through play. The “large window that captures the original landscape” in the dining room and the “corridor on the veranda that lets in the breeze” connecting the nursery to the outside allow children to experience the beauty of nature and the passage of time throughout the four seasons from anywhere, nurturing their love for their hometown and sensitivity.


用于接送儿童的大楼梯与攀爬网相连,形成了滑梯、洞穴空间和观景平台等各种游戏区域的组合。这样的设计让孩子们可以从各个方向自由探索和玩耍。
此外,虽然海拔高度不同的地点通常被认为是危险的,需要避开,但孩子们通过游戏自然而然地了解了哪些地方是危险的,并据此参与其中。网状游乐设备像蚂蚁窝一样遍布墙壁的各个方向,让孩子们的活动一览无余,家长或监护人可以放心地观察孩子们的活动。孩子们还可以在这里攀登以前无法攀登的高度,感受成长的快乐。
The grand staircase used for dropping off and picking up children connects to a climbing net, creating a combination of various play areas such as slides, cave-like spaces, and observation platforms. This design allows children to explore and play freely in all directions. Moreover, although locations with differences in elevation are often considered risky and avoided, children naturally understand what is dangerous through play and engage accordingly. The net play equipment, which spreads across the walls in all directions like an ant's nest, provides a sectional view of the children's activities, allowing parents or guardians to observe them with peace of mind. It also serves as a place where children can feel a sense of growth by reaching heights they couldn't climb before.

为了让孩子们在玩耍的同时也能感受到以佛坛闻名的当地魅力,我们规划了使用与佛坛相关的室内材料(如漆、金箔和镜子)的游乐场。花园中特意避免使用花哨的游乐设施,使其与周围的稻田和山脉融为一体。同时,这里也是孩子们可以尽情奔跑,找到自己玩耍方式的地方。
To provide opportunities for experiencing the charm of the local area known for its Buddhist altars while playing, playground using interior materials related to altars, such as lacquer, gold leaf, and mirrors, were planned. By purposely deliberately avoiding fancy play equipment in the garden, it blends in with the surrounding rice fields and mountains. It is also a place where children can run around and find ways to play by themselves.
儿童幼年时期所见所闻的风景和经历对他们的个性发展和身体成长有着极大的影响。其中,感受当地自然环境的美不仅能培养孩子对家乡的热爱和敏感性,还能成为孩子们对外界产生兴趣的催化剂。此外,置身于一个能激发各种活动的环境中,不仅能为身体运动创造机会,还能鼓励儿童设计自己的游戏方式,并在真实的生活体验中学习。
The landscapes and experiences that children see and encounter during their early years greatly influence their personality development and physical growth. Among these, feeling the beauty of the local natural surroundings not only nurtures love for their hometown and sensitivity but also becomes a catalyst for children to develop an interest in the outside world. Additionally, by being in an environment that stimulates various activities, it not only creates opportunities for physical movement but also encourages children to devise their own play style and learn through real-life experiences.



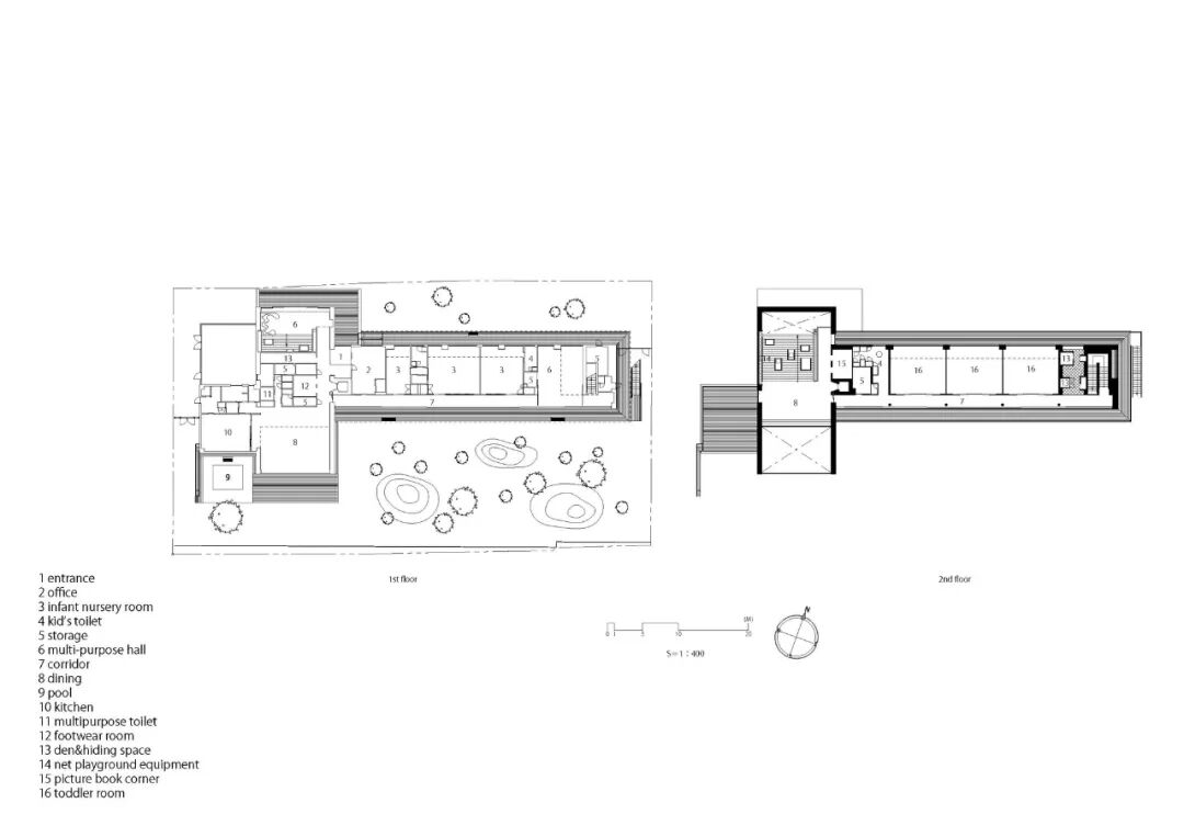
平面图

立面图

剖面图
项目信息
建筑师:HIBINOSEKKEI + Youji no Shiro + KIDS DESIGN LABO
地点:日本
面积:1244 m²
年份:2022
本资料声明:
1.本文为建筑设计技术分析,仅供欣赏学习。
2.本资料为要约邀请,不视为要约,所有政府、政策信息均来源于官方披露信息,具体以实物、政府主管部门批准文件及买卖双方签订的商品房买卖合同约定为准。如有变化恕不另行通知。
3.因编辑需要,文字和图片无必然联系,仅供读者参考;

微信公众号“搜建筑”(ID:sjz9999)
合作、宣传、投稿
联系微信:soujianzhu006