被动式酒店
废石窟到生态酒店的“蝶变”
从废石窟到绿色生态酒店的“蝶变”
青岛红石秀景酒店选址于青岛市西海岸中德生态园龙斗山北麓,基地原为采石坑废墟。破损的山体犹如绿肺中的一块疤痕,“有机发展”理念下的山体生态修复计划衍生出了这座建筑。2018开始,历时五年完成了该区域生态修复工程,并同步建成一座五星级标准的会议度假酒店。山林彻底抚平昔日“伤疤”,龙斗山实现了从废石窟到绿色生态酒店的“蝶变”,成为亚洲较大被动式酒店。
| 怎么处理旧矿坑?
绿肺中的一块疤痕
基地位置处于龙斗山北坡,背靠山体、面朝中德生态园主园区,东南邻近青岛九中校区。龙斗山山体腰部被开山破坏后形成两个开放式台地,与山脚地坪高差分别为15米和30米。基地视野极佳,在台地的高点可近瞰河洛埠湿地公园、远眺森林生态保护区及胶州湾海湾大桥风光,景观资源优越。
项目区域位置
酒店建筑面积4.2万平米,目标确定为中国乃至亚洲地区最大规模的被动式超低能耗绿色酒店,做为青岛国际经济合作区和整个自贸区中外技术交流及对外接待服务的配套工程。有此背景,加上地处国家生态绿化保护区,项目被赋予“绿色生态”的愿景。
基地状况
台地策略“有机嵌入”
“有机”建筑理念首先体现在酒店的“绿色建设”层面。设计策略是充分利用场地、合理确定建筑布局和标高,减少地形地貌改变和土方开挖回填量。
台地式布局划分
布局遵循山地建筑因坡就势的原则并根据场地地貌特征,形成三个台地的分层退台规划形态。建筑退台与整体山体坡度一致,体量与山地嵌入契合。参照《青岛市城市风貌保护条例》 相关条款“按照不超过山体海拔高度三分之二”的原则,确定山体周边建筑高度控制线。
总体布局
项目鸟瞰
与自然山地共呼吸
建筑沿等高线采用线型分段布局:中间主体部分为大堂、餐厅及会议中心等公共用房,其两侧为客房组团,客房通过中间的主体建筑体量联络形成整体并享有极佳景观视野。
剖面示意
酒店主入口及大堂设置在最高处台地,形成自上而下的内部流线和登高望远的视觉效果。公共用房及客房组团均因循山势退台布置,包括大堂及客房在内的所有面客房间可近观山下生态景观区,远眺森林公园群山美景。
剖面示意
同时,设计坚持生态建设理念的可逆性原则,新建建筑尽量不与山体过多连接,而选择建筑与山体尽量脱离的方案,减少对环境的扰动。另外,通过利用地形高差优化停车场、设备及后勤用房的合理布局,实现土石方开挖量最小化理想目标。
嵌入山体的建筑群
“人工自然”,环境修复
场地内外通过种植土回填、客土植树绿化、挂网喷播绿化等人工方式进行生态修复。修复后龙斗山新增林地4万平方米,区域森林覆盖率提高到40%,绿色空间占比达60%,实现与周边40万平方米城市森林保护区有机衔接。
建筑与景观、山体
同时,环境修复与植被覆盖更利于建筑体量消隐,坡顶的建筑形态与柔和舒缓的景观形态相辅相承,构建山林秘境的静谧意境。
自然曲线形态的景观
| 怎样打造被动房?
什么是被动房:
是指仅指不依赖于自身耗能的建筑设备,而完全通过建筑自身的空间形式、围护结构、建筑材料与构造设计来实现建筑节能的方式。
·传统无节能建筑每平米每年的热需求(能耗)指标150千瓦时/m2.年;
·一般节能建筑每平米每年的热需求(能耗)指标60千瓦时/m2.年;
·被动式建筑每平米每年的热需求(能耗)指标15千瓦时/m2.年——节能90%以上。
如此低的能耗标准,怎么实现呢?
被动房体系
绿色技术应用
被动房技术应用是本项目的主要技术特点。酒店类建筑由于其内部复杂的功能分区及高舒适度的要求,一般能耗极高。本设计应用高效外保温系统、高性能外门窗、断热桥龙骨、电动百叶外遮阳等高效外墙节能技术;采取光热一体化、地源热泵、新风热回收系统;节水用具和节电灯具等绿建技术措施,将青岛红石秀景大酒店打造成被动式超低能耗建筑。
酒店建筑群
坡瓦屋面材料构造:
设计以木龙骨作为挑檐的受力构件——在建构层面实现功能性细部(而非装饰性细部),实现屋面轻薄飘逸的效果。突破被动房建筑的厚重、呆板的形式,追求轻盈与舒展,追求深远出檐下的阴翳。
材料构造与被动房技术
坡屋顶/挑檐构造
·屋面外结构体系为增加挑檐出挑深度以实现轻薄意向,设计只得放弃混凝土挑板的方案,选用另外增加一套“外结构体系”作为出挑的受力构件;
·而构造无热桥的技术要求迫使“外结构体系”型材选择热惰性更好的木材(在经过防腐强度参数考量后选择芬兰木—北欧赤松作为龙骨结构主材)
坡瓦屋面材料构造
屋面(及挑檐)以木构作为受力构件,摆脱了砼挑板作受力构件对檐口造型的致命限制。屋面(及挑檐)主龙骨同样选用芬兰木,分上下两层十字正交叠合铺设于砼结构楼板上,其中下层龙骨平行屋脊安装——相对山墙边柱轴线出挑形成悬山造型,上层龙骨垂直屋脊铺设并出挑形成深远出檐。
大堂门廊外景
屋面挑檐实景
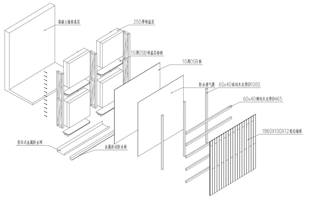
竹木外墙材料构造
为了应对被动房技术要求,外墙材料首选薄抹灰喷涂类或者轻质装配板材。因此材料需灵活使用,石材在必要区域替换为仿石(真石漆或仿石铝板)、木饰面必要时替换为仿木(铝板)。
竹木外墙构造
竹木外墙龙骨形式是由芬兰木龙骨与欧松板构成的剪力板—可以通过标准化设计后在现场外预加工然后到现场安装,用断热锚栓固定在基层结构墙(梁)面上。剪力板之间墙面分层锚粘嵌铺两层岩棉保温板,木构体系提供足够的强度安装分层承托保温块(重量)的水平垫板,同时满足外墙板安装后的抗风压性能。
仿石外墙材料构造对比
德国PHI被动房预认证
通过被动式超低能耗建筑技术“被动优先、主动优化”的措施,大幅降低了酒店的能耗需求。在《公共建筑节能设计标准》能耗水平基础上,酒店综合节能率再提高约52.7%,年减碳694吨。目前,酒店已获得德国PHI被动房(超低能耗建筑)预认证。
酒店入口局部
形式与构造逻辑
在这个项目中,形式选择的确始于建筑师对周围环境、氛围风格的主观判断,但是伴随着设计过程中对材料本性与技术制约的分析研究,建筑师发现了与建筑形式匹配的营造逻辑。设计的最终结果建造的必然秩序自然生成。正如路易斯·康所言:“设计是具有个性的,属于设计师的”。这里既有设计师的意向,也有建筑自身先于设计而“存在”着的“愿望”。关于形式的某些基本的形态,在一座建筑确定了其功用技术与经济条件、选址和建造时间之后,即已存在。
酒店室内
| 结语
在全球能源问题日益突出的今天,被动房的推广和应用具有重要的现实意义。设计通过最大程度地利用自然资源和能源,减少对环境的负面影响,同时提升居住舒适度。被动房的设计理念不仅有助于降低能源消耗和减少碳排放,还为建筑行业提供了创新的范例,引领着未来建筑发展的方向。本项目为UDG在绿色建筑方面的积极探索。
绿色低碳 | “被动房”
- END -
项目名称:
项目地点:
建成时间:
业主单位:
设计单位:
设计团队:
团队成员:
施工图:
景观设计:
室内设计:
建筑摄影:
青岛红石秀景酒店(RED ROCK HOTEL)
山东省 青岛市 中德生态园
2023年
青岛青发控股集团有限公司
上海联创设计集团股份有限公司
UDG 青岛分公司
主创:李则昂,方案设计:张雷、王宇、夏泉
杨莹、丛喜朝、白卫平、王绍腾、张玺、李臣鹏、贾淑华、王文强、冯英刚、崔丽静
青岛分公司 域韬景观设计部
KKS.【日】&北洋设计
凡名摄影
本资料声明:
1.本文为建筑设计技术分析,仅供欣赏学习。
2.本资料为要约邀请,不视为要约,所有政府、政策信息均来源于官方披露信息,具体以实物、政府主管部门批准文件及买卖双方签订的商品房买卖合同约定为准。如有变化恕不另行通知。
3.因编辑需要,文字和图片无必然联系,仅供读者参考;
微信公众号“搜建筑”(ID:sjz9999)
合作、宣传、投稿
联系微信:soujianzhu006



