▲ 更多精品,关注“搜建筑”
近年来,豪宅市场里以大平层当道,在市场整体低迷的现状下,大平层豪宅的市场热度却不见减退.
从设计上看,面积大,功能完善的大平层在户型创新、空间布局方面优势明显。大平层实现了大面宽、全景观、功能齐全的设计布局,大幅提高了空间的有效利用率,其设计手法已是众多中小户型借鉴的对象。
看下大平层的优胜之处:
• 在入户动线上,注重主人隐私的保护和进门的体验感,情绪价值与功能价值都可满足;
• 在活动公区的设计上,则愈加倾向于复合多元的场景布局,比如利用大面宽横厅、广角视野的边厅以及大尺度阳台实现室内外的渗透共融,以容纳更多场景需求;
• 在个人空间(卧室)的设计上,则更加注重空间尺度的优化和居住体验感的提升,实质上是一种“悦己”意识的强化。
这次我们通过聚焦220㎡以上的大平层户型,来看看当下流行的产品设计是如何提升功能性和舒适性的。
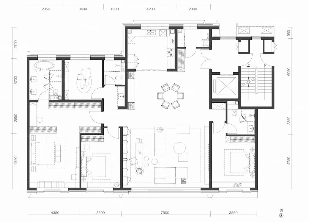
1
宁波建发·缦云建筑面积约220㎡大平层,最大的亮点就是公区“LDKG”设计,从情感的维度出发,创造全新的生活方式,满足了人的更高层次需求。
首先映入眼帘的是约6.6米大面宽LDKG餐厨厅一体化的通厅设计,餐厅、中西厨、客厅几个功能空间融为一体,分别独立又共通,也有助于提高空间利用率,增加空间的流动感。
而且赋予了生活更多的想象,社交、娱乐、沟通、办公都将可以合在这个区域中,让家庭成员有更多的交互,成为一个完整的情感交流的场所。
建发·缦云效果图
社区内部打造了超21300㎡的绝美中式园林景观,设计了三大中庭,相当于北京故宫里三个乾隆花园大小,饭后散步宛如进入皇家园林一般。而且通过“一脉、两院、十景”整体布局,确保户户都能看到四季美景。
2
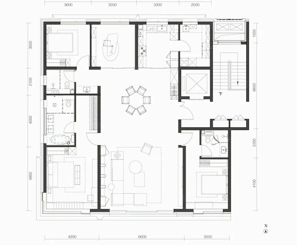
中建兴城之星建面约230㎡的四居三卫,入户双开门设计,而且拥有私家电梯厅以及私密玄关入户,规格拉满。
中建兴城之星建面约230㎡户型平面图
中建兴城之星立面效果图
3
北京香山樾建面约272㎡户型,入户私家电梯厅+独立玄关,双重设计将仪式感拉满。入口处的就是独立收纳空间还是少见的明窗收纳间,高尔夫球杆、马术装备等妥善放置。
北京香山樾建面约272㎡户型平面图
北京香山樾立面效果图
北京香山樾立面效果图
4
北京香山樾建面约231㎡户型平面图
北京香山樾建面约231㎡户型实景图
北京香山樾效果图
5
济南保利·珑誉建筑面积约235㎡的户型,更是展示了硬核产品力:
约16.5米的南向面宽,270°环幕视野客厅,南向约6.7米的IMAX级宽厅,侧面近10米的奢阔阳台,带来最佳瞰城视野。
同时,它的主卧套房南向开间达到奢阔的6.6米,套房内配置有南向卫生间,并和南向次卧组成了双套房的配置,更符合层峰阶层居家生活需求。
项目外立面汲取泉城建筑肌理和比例关系,在传统建筑形态之上进行当代演绎。彰显艺术形态的全铝外墙及金属型材,搭配体现绿色环保的节能门窗,营造整体简约艺术的线性构造,呈现出当代建筑应有的高定韵律。
保利·珑誉效果图-非交付标准
6
西安枫林九溪·漪溪建面约235㎡户型平面图
枫林九溪·漪溪-建筑效果图
7
中建和月泊庭建面约239㎡户型平面图
中建和月泊庭外立面效果图
在外立面方面,项目整体以大面积铝板以及大面块玻璃为主,同时从苏州古建筑里的披檐为灵感,进行设计转化引入了外立面中。
8
龙湖·景粼原著Ⅱ期建面约241㎡户型平面图
作为一款边厅产品,它还有约17.3米的四面宽,配有约360°采光视野的超级大宽厅,南向阳台开间就达到了约10.3米。
主卧套也是一大亮点,南向采光面非常大。主卧直接升级成为带有L型独立衣帽厅的建面约37㎡奢华套房。
9

越秀·观樾建面约250㎡户型效果图
越秀·观樾建面约250㎡户型平面图

越秀·观樾项目效果图

越秀·观樾项目效果图
10
兖州九州印象建面约228㎡户型,方方正正,动静分区做得非常彻底,约100㎡LDK一体化厅+约18mIMAX级巨幕阳台,整个空间减少剪力墙,270°视野兼顾了景观资源和居住需求,整体舒适度提升了一个level。
兖州九州印象建面约228㎡户型平面图
主卧套房拥有约6.5米面宽,搭配步入式衣帽间、双台盆&大浴缸的星级主卫,将主人的起居尊崇感直接拉满。
兖州九州印象效果图
11
越秀御湖台建面约285㎡户型,空间奢阔,分区明确,动线清晰,设置了家政和居家两条专属动线,保证生活私密性和尊贵感。

建面约285㎡板房设计效果图
建面约285㎡板房设计效果图
为了提升居住舒适性,项目打造了小高层,采用一字型板楼,实现南北通透,景观面最大化,视野无遮挡。
越秀·御湖台效果图
建面约285㎡户型窗地比达到约28%,将景观面扩大至最大,让室外湖景成为客厅的点缀;增加采光和通风,让每一个空间都明亮通透,延长日照时长,节能环保。
越秀·御湖台效果图
大量玻璃元素的使用,提升建筑外立面颜值,达到建筑与自然、艺术的完美融合。
本资料声明:
1.本文为建筑设计技术分析,仅供欣赏学习。
2.本资料为要约邀请,不视为要约,所有政府、政策信息均来源于官方披露信息,具体以实物、政府主管部门批准文件及买卖双方签订的商品房买卖合同约定为准。如有变化恕不另行通知。
3.因编辑需要,文字和图片无必然联系,仅供读者参考;
微信公众号“搜建筑”(ID:sjz9999)
合作、宣传、投稿
联系微信:soujianzhu006






