▲ 更多精品,关注“搜建筑”
邱德光设计
从时尚生活到空间艺术,以一次打破常规的创作,将前卫观念转译为设计语言,探索未来生活新范式。
家居空间的创意感染力,从不仅仅拘泥于日常的行游坐卧。随着越来越多人的生活与工作模式革新——样板间早已成为居住未来的样本,也构成了消费客群「当代生活」的理想形态和精神愿景。
T.K. CHU DESIGN
BEIJING

懋源·璟橒 样板间
视频截图来自Green BAZAAR
如果说,五年前创下首开销售记录的「璟玺」,以告别平庸的姿态,空中复式的阔绰成为北京独一无二的现象级作品,「懋源·璟橒」则是在继承了户型结构与挑空阔景的优势基础上,延续时尚感与奢华度,以开放的平面布局回应当代生活观念,对空间艺术形态进行了更为大胆前卫的探索。
BAZAAR x T.K. CHU DESIGN
共创美好生活
时尚芭莎 x 邱德光设计
联合呈现
现在与未来,家与工作让生活拥有更多可能
科技与艺术的空间创想
“回家”又“超越家”
01
以空间链接生活
「 Work form Home 在家工作 」
城市度假、在家工作——Work from Home正成为当代生活的全球趋势。在休闲与工作间自如切换,日常为创作激发灵感,「家」空间随着生活方式的改变,盛装了更多元化的需求,也变得更为重要。

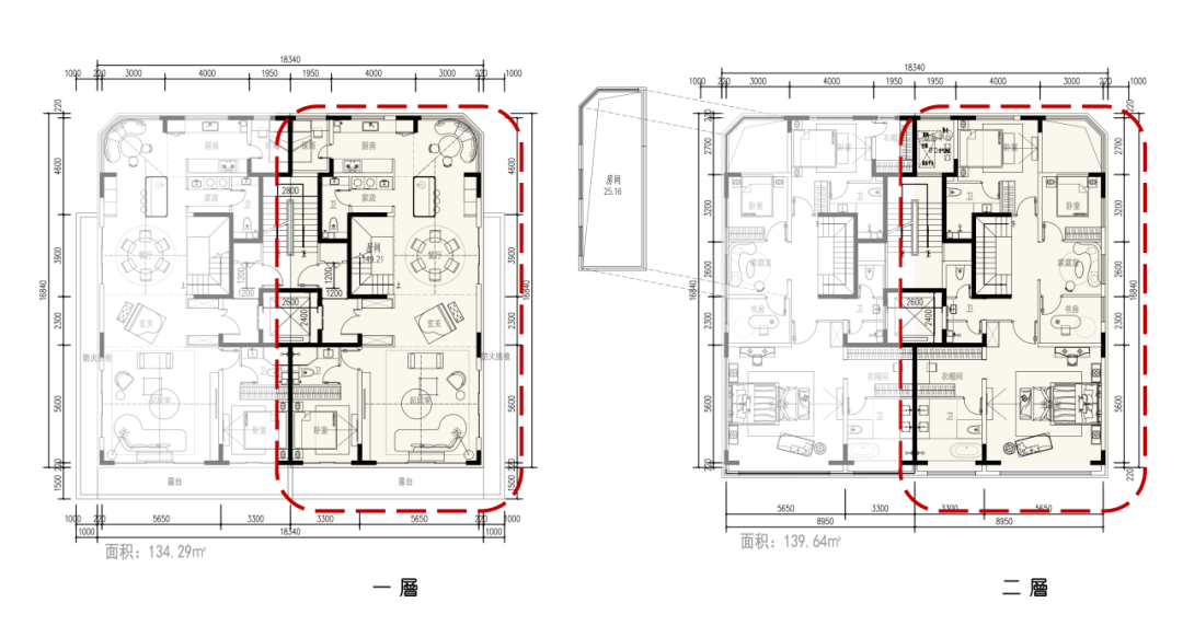
首层横轴效果图,整体平面布局一眼可观
我们与懋源合作的索引,正是为这样的「都市新贵人群」,打造一个满足生活、工作和度假的城市精神居所,并以跳脱常规的设计手法,进行了一次更具观念性的空间艺术创作。

开放自由的空间布局源于对豪宅尺度与生活方式的双经验把控。叠墅首层以living room定义,客厅、餐厅、早餐厅顺次排布,通过最大限度放低家具的高度,以保留整层社交空间视线的穿透感,在此停留即感受到通透与流动。
生活即创作,正是对当代新贵阶层恰如其分的形象展示:不被固化的人生标签,趣味而有思想的精神内核,对居住个性与品位的追求......空间设计即生活观念的阐述。
02
居家艺术的前卫想象
「 时尚观念转译成空间语言 」
T.K. CHU DESIGN
设计还原
“当我专注于要设计建筑物的特定场所或地点时,我会尝试探究其深度,形式,历史和感官品质。”
—— 彼得·祖姆托
楼梯也是艺术装置
走出梯厅,经玄关入户的第一视角便是漂浮楼梯——首层空间的主角。除承载链接上下层交通功能,我们将其视为「艺术装置」,平衡设计感与功能性,表达场所精神与生活仪式,是整个复式空间的「题眼」。
满足公区与餐区采光的同时,最大限度保留270度景观面
干练的线条金属、皮革及碳纤维材质打造轻盈奢华感

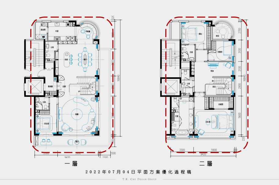
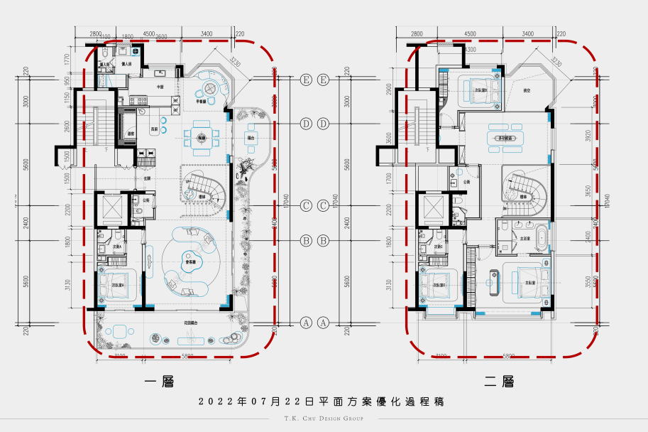
在初期平面「破局」阶段,关于楼梯位置的选定进行了多达十余个版本的平面推演,首层面宽9.6米,进深17.2米,跨度势必带来中间的暗空间,用“17米”来解题,楼梯就在中心C位了。
原始户型图与调整后的平面布局做对比
把楼梯这一传统观念里的「次要」空间,放置在没有一堵墙的公区中,位置很关键
平面过程稿(截取部分版本)
别具一格的「双挑空」
简约时尚的留白设计,在开阔的空间尺度中呈现低视角的美学意境。身体和心灵在自由的居家氛围里舒适放松,对生活的掌控感也让创意与灵感自然涌现。

早餐区置于八角厅造型的通高空间,是样板间产品的独特考量,和楼梯空间相呼应,形成“双挑空”设计。与另一侧的minibar同作为餐厅补充区域,朋友小酌、下午茶、亲子互动......尽可容纳一天内不同场景的变幻氛围,满足生活需求也提供了自在的社交形式。
03
隐藏的奢华
「 家的定制是终极的奢侈 」
T.K. CHU DESIGN
空间艺术
优雅是内外皆美,奢华的真谛隐藏于每一处细节。空间、人物、家居高度契合,从而形成一致化的设计语汇。充满意趣的空间,为生活打开更多想象力。
艺术家居启发日常灵感
当代新贵们,工作之余依然有能力享受生活,展示睿智的品味、格调与时尚。
通过不断揣摩消费族群的生活表达,在居家与艺术时尚之间寻找平衡点,装饰成为从本心出发的生活场景,以家的定制定义极致的奢侈——集隐私、细节、材料、周围环境和位置于一体,去契合消费者个性的与众不同。
木皮丨皮革丨石材丨碳纤维丨艺术玻璃丨木地板丨金属
精致、奢华、独一无二,由世界各地而来的材料共同演绎现代游艇般的科技与艺术。肌理石材背景墙面形成客厅的主轴,游艇木融入空间形成餐桌,碳纤维定制沙发,树脂凝结成海浪般的艺术品茶几,皆与客厅端景T.K HOME《水之舞》不锈钢雕塑形成呼应,如镜面水体交互旋转,跳脱静谧,为空间增添灵动安逸。


碳纤维与皮革工艺结合的艺术单椅,成为空间中的收藏品
渐变棋盘格地毯将家具融合在一起,同时增加Artdeco气息
为「我」独享的个性起居
由楼梯缓步进入二层enjoying空间,这里是家庭更为私密的空间交汇。一家人在起居厅相遇,又各自不被打扰。皮革百叶将空间营造成「游艇」式的包厢氛围,将墙体隐形,令空间的边界感消失。
深蓝色主沙发、海浪波动般的艺术感茶几与单人椅
营造舒适温暖的家庭陪伴与独处时光
跳脱传统布局,主卧直面奢阔窗景,并配有独立书房。T.K HOME定制卧床现代优雅,背板以皮革曲线诠释海浪的律动和质感,金属拉手模拟甲板扶杆,床底灯带营造漂浮感......游艇元素延展至室内设计,令主人的趣味与品位在居室内流淌。
主卧效果图与实景图
T.K HOME定制床结合艺术造型与一体化功能
“设计中的复制,毫无意义可言。美,就是当下的普世价值。设计更多地要学着改变,不断重新去演绎现代化和时尚化。”
我们的设计随时代变化,推陈出新,这种变化来自对当代中国人消费与生活的持续观察,始终围绕并追求生活方式的无限可能,通过「场所营造」去拓展居者对于空间想象的边界。
项目信息
项目名称:懋源·璟橒
主持设计:邱德光、袁欣
设计团队:李松涛、武子浩、李晨晨、姚晴、刘储源
项目管理:刘文静
空间摄影:Boris Shiu@AGENT PAY
内容编辑:Sharon Song
空间性质:叠拼
坐落位置:北京市顺义区
主要材料:尤加利木皮、露雅灰石材、南斯拉夫白石材、皮革、碳纤维、艺术玻璃、木地板、灰色喷砂不锈钢
艺术家:T.K home
家具灯具品牌:JAIPUR佳布尔、B&O
面积:350㎡
设计时间:2022 年 7 月 至 2022 年 11 月
施工时间:2022 年 11 月 至 2023 年 3 月

合作、宣传、投稿
联系微信:soujianzhu006


