▲ 更多精品,关注“搜建筑”
01 前言
近年来国内外业务的增长带动了办公类型建筑的发展,尤其是高层办公及总部办公。信息技术的进步,密切的信息共享,以及工作地点的全新选择,共同创造了更加丰富的工作-生活场景。人性化的企业总部设计的基础,是对每家企业深入的了解,根据各企业的历史、架构及未来方向,为其量身定制设计,以适应其未来弹性发展。这些设计并非源于对纯粹形式的追求,而是对不同矛盾组合解构与再平衡的结果。

▲创显科教智慧教育产业总部低点夜景 ©汉森伯盛
02 概述
创显科教智慧教育产业总部位于广州市番禺区新经济产业园,是汇集商业服务、商务办公、商务生活功能为一体的智慧产业集聚区和孵化基地。建成后将吸引一批高新技术产业和战略性新兴企业的入驻,因此提出了不同于传统办公的新诉求。
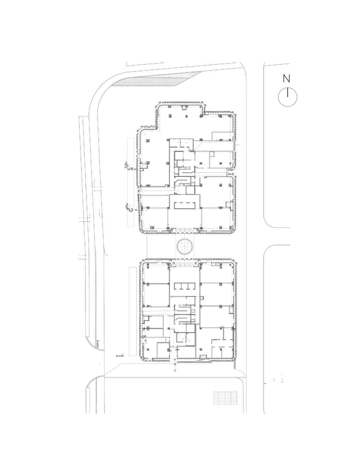
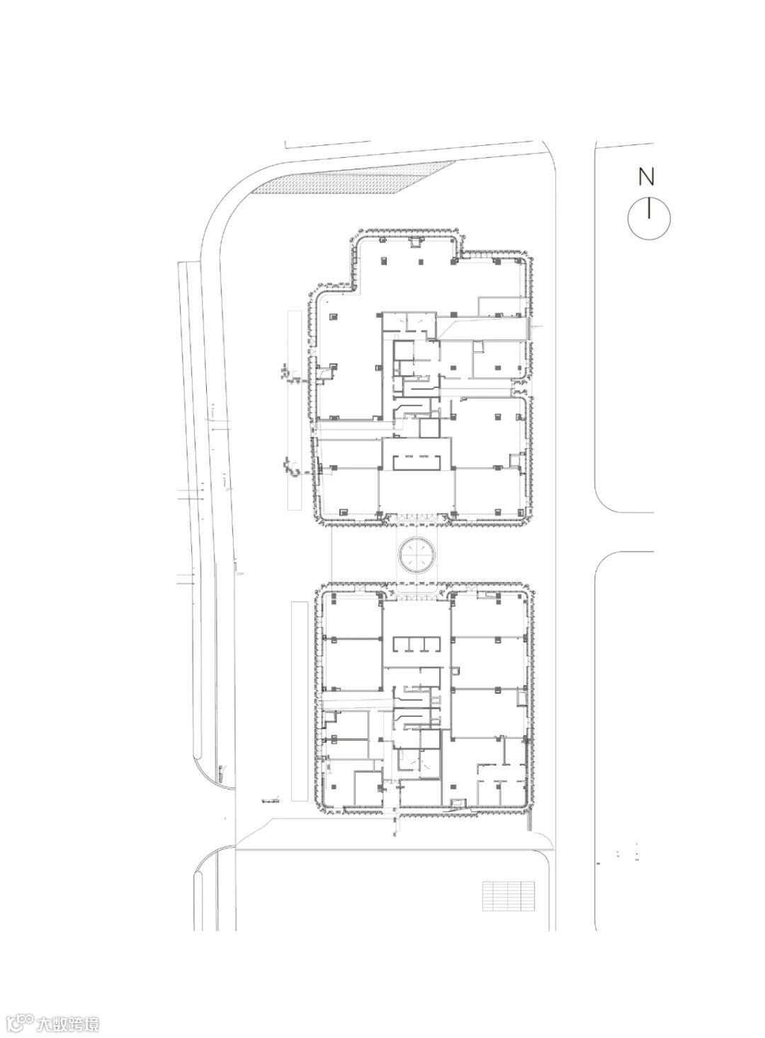
项目由两座独立高层建筑构成,满足了不同类型企业对办公空间的需求。而双塔通过空中共享平台相互连接,自然形成了通高3层的中庭入口及广场空间,构成项目的第一形象立面。由双体块组合成的建筑体量配备多元复合的功能配套,包括商业办公、居住生活、休闲娱乐、开放性景观空间等。

▲低点夜景 ©汉森伯盛

▲中庭仰视 ©汉森伯盛
03 技术与人
智慧教育产业总部作为新一代的办公范式,首先提供的是前沿科技的服务。设计需整合复杂的技术、设备、使用需求等因素,受到理性逻辑的高度制约。通过对空间、尺度、材料的考量,我们期冀将“机器”的场地转换为“人”使用的场所,构建一个蕴含深刻的人性化空间,是一种自然、环境和建筑相互交融的新型办公模式。

▲BIM气象数据分析 ©汉森伯盛
高新技术产业的发展超越了当下的普遍认知,亟需具有“弹性”的建筑空间,以适应各类新兴企业在发展过程中对办公空间拓展或转换的长远需求。项目的每一间隔空间均被设定为标准柱网和模块化的单元,适应了创新型企业不同阶段的发展,可单独使用,亦可整体出租,为运营模式带来更多可能性。

▲BIM体量推敲 ©汉森伯盛

▲低点日景 ©汉森伯盛

▲BIM建筑节能分析 ©汉森伯盛

▲连接体平台仰视 ©汉森伯盛
04 逻辑艺术
尽管内部单元采取多元组合的灵活形式,外立面设计则运用了精简的幕墙系统,从而获得简洁、干净并统一的外观。立面的“分”与“合”,实际上是以实现不同的使用功能为目的。玻璃面板间的锥形垂直金属构件集合成幕墙结构,提供了自然通风和夜间立面照明等功能。
建筑以结切角、扭转和退台实施克制的形体转换,在现代几何之上塑造未来感与科技感。一方面,干练的线条和流动的界面为建筑体量精准找形;同时,丰富的空间层次和线面的纵横交错强化了视觉冲击,赋予建筑变化的动态。

▲经圆角处理的立面 ©汉森伯盛

▲立面变化细节 ©汉森伯盛
项目在非对称的空间布局中打造了大尺度的公共平台,包括视野开阔的开放性景观阳台和空中泳池广场,提供一个契合创客群体工作-生活需求的非正式空间。中庭的天幕泛光通过材料反射分析、综合天花系统及色温控制等方面以光学模拟星幕,结合金属完成面和利落的线条,塑造一个极具仪式感的主入口。这是基于现象学角度对建造逻辑的理解,暗携着宇宙星空的迷离。

▲中庭星幕 ©汉森伯盛


▲立面泛光 ©汉森伯盛
05 结语
产业是城市生长的内生动力,高新技术产业已成为当下新的增长点。以人才集聚与密集的智力劳动为特征的智慧产业,正以创造性的工作模式对物理空间提出了新的要求。经过三年的设计与建造,创显科教智慧教育产业总部最终得以实现,它代表了高新企业办公的前沿,也表达了我们对新一代城市空间的思考。作为可持续、创新和面向未来工作场所的尝试,它将成为番禺智慧产业高质量发展的一个缩影,形成自然和科技和谐共存的办公范式。

▲鸟瞰夜景 ©汉森伯盛



▲剖面图 ©汉森伯盛
项目信息
微信公众号“搜建筑”(ID:sjz9999)
合作、宣传、投稿
联系微信:soujianzhu006


