
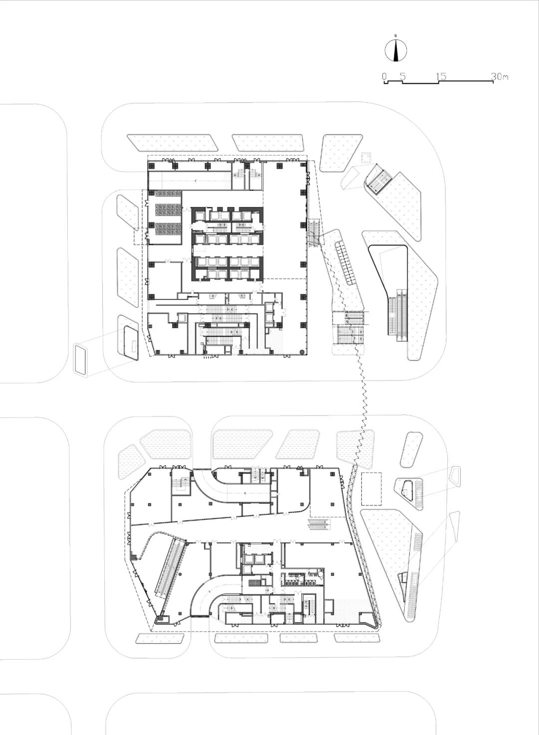
Foshan Entrepreneur Building is a 246-meter super high-rise office building serving 28 elite enterprises located in Foshan New City; at the end of the urban axis, the city's east-west axis runs through the plot, splitting it into two plots.

Start at the site——Friendly city relations - The building uses the podium to partially span the two plots, combining them into one。The east side faces the water system across the street, and the west side, which faces the city axis, forms a roof terrace that faces the urban green spaces and squares. At the same time, the tower volume is cut with a sky courtyard at the corner, Comply with the regional dominant wind direction to reduce the corner wind pressure, Integration into urban relations forming the building volume of the podium and the tower as a whole.

Abstract extraction of regional culture - When exploring the design direction of the project at the initial stage of conceptual design, When thinking about what belongs to the city regionalism of the Foshan Entrepreneur Building, The architect searched for the local culture of Foshan, Drawing inspiration from Lingnan architecture and lion dance culture. Abstract the architectural form into a bunch of simple, smooth, modern silver-gray lines; like in a traditional lion dance, the lion's head is steady, the lion's tail is swinging, and the band of light created by the lion dances as it jumps, integrating the charm of Foshan's traditional lion dance into the building. The spirit of Lingnan culture is embodied through architectural forms.

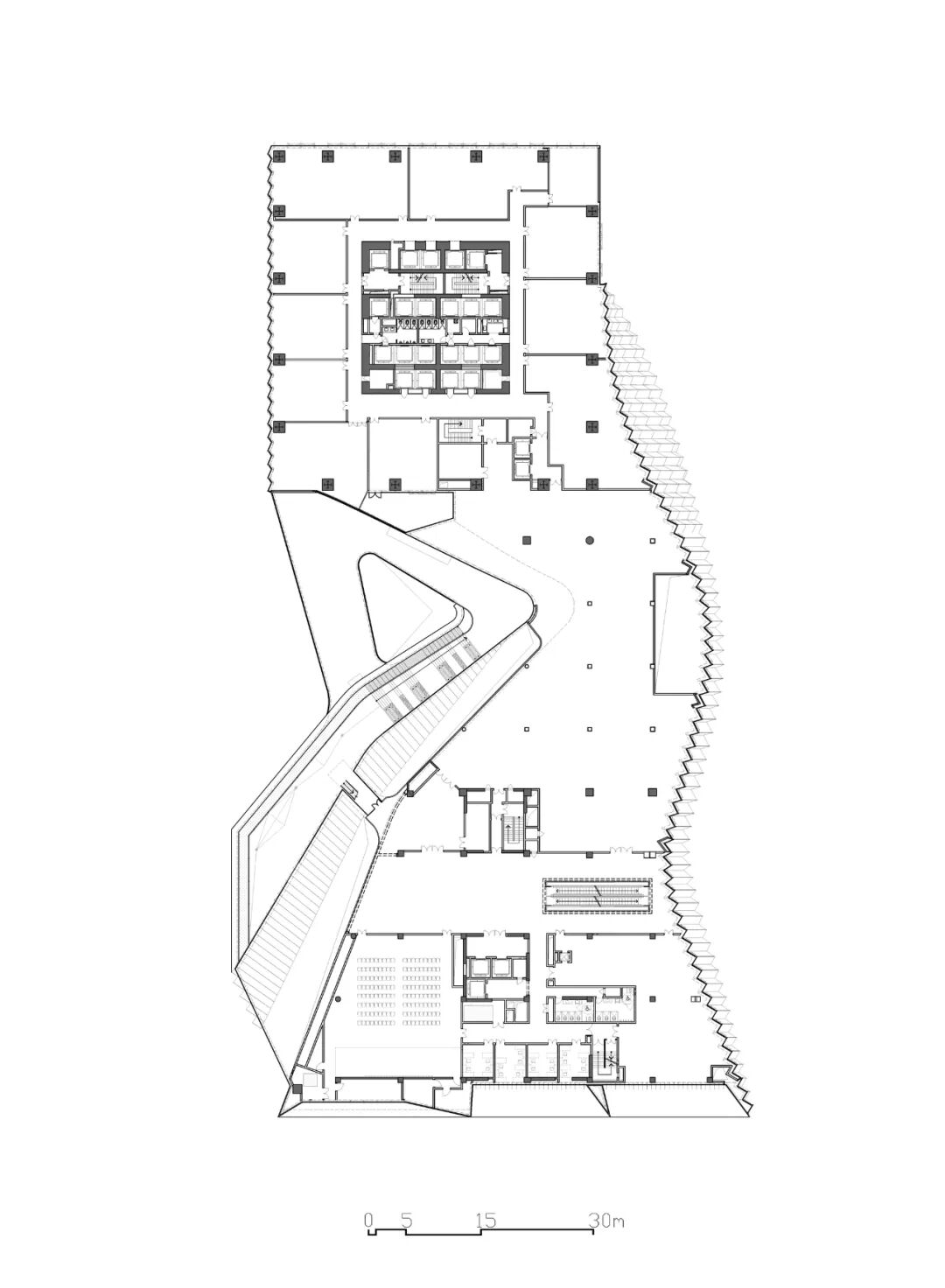
Climate adaptability and accessibility in near-Earth space - Podium space is the design focus of super high-rise buildings; it is also the part that citizens contact the most. Through the analysis and research of Lingnan architecture, the architectural technique of the gray space of the arcade building is extracted, and the spatial form of the podium part of the building is organized. A partial overhead space is formed on the first floor of the building, and the functional blocks on the second to fourth floors form a continuous interface, spanning two plots, allowing the urban axis to cross the elevated space between the two plots, a light opening is formed in the upper part of the building form an open urban public space between the two plots.

On the first floor of the building along the street forms a local elevated arcade space for people who come here to work, shop, and take the subway; it provides a walking space with shade and rain, catering to the crowd arriving at the building from all directions. The continuous interface of the podium part responds to the design concept, like a swinging lion's tail rising up to the tower, creating a fun, simple, and powerful interface. This super-tall near-Earth space acts as a City Connector, forming a three-dimensional pedestrian system connecting the surrounding cities. Beyond that, the third floor of the building is designed to interconnect with the urban pedestrian bridge and connect the public flyover with the internal commercial moving line. The roof garden of the skirt house provides people with an urban terrace space in contact with nature in a high-density built environment.

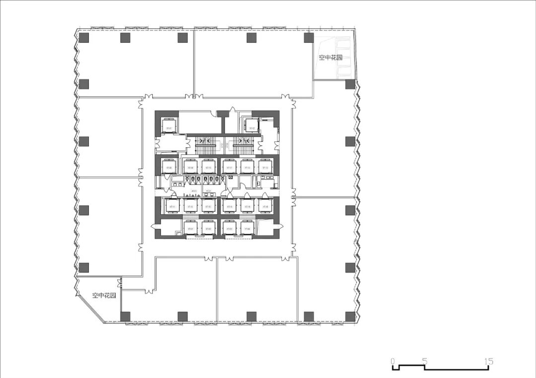
Sustainable super high-rise office space design with both experience and efficiency - Supertall buildings adopt a square shape; the plane part emphasizes efficiency; office space can be divided and combined efficiently and practically. The hanging garden cutting volume set in the corner reduces tower wind pressure while providing a double-height garden experience to provide people with an urban balcony overlooking Foshan New City. The east-west facade of the tower is designed in a zigzagged form, avoiding the bad east-west orientation, using curtain wall construction to form self-shading, reducing energy consumption, and forming a sustainable super high-rise office space.

Construction: The disordered form can be designed regularly - How to build this building with a high degree of completion at a limited cost, the landing between "flow" modeling and engineering construction, and the way we designed that was, using the GRASSHOPER, the curved surface is optimized to conform to the construction size of the curtain wall and the folded surface is spliced, using aluminum plate + glass combination to form a straight, curved curtain wall unit, by splicing the glass and the aluminum plate of the single with the 1.8-meter axis of the unit, simulates the original curved curtain wall, and adjust the Angle between the aluminum plate and the glass with the curved surface so that the disorder modeling can be regularly realized. In the elevated dome section of the ground floor, the suspended ceiling is spliced with triangular perforated panels to form an interesting urban gray space.

Epilogue - Foshan Entrepreneur Building is a 246m super high-rise building with integrated offices, retail business, urban TOD, and other functional combinations. From the outside to its public space, overhead space along the street on the first floor, lighting atrium, subway, and sunken square on the first floor, the urban bridge on the third floor, urban terrace on the top of the skirt house, etc. multiple dimensions of public space together form the public character of this super high-rise. From the solution of functional requirements, near-earth space designed with the local climate in mind, forming a three-dimensional transportation system connecting the pedestrian network and subway network of surrounding cities, to breathe new life into city blocks, this is the city mission that should be accomplished as a super high-rise building with high density and high plot ratio.

细部
项目信息

合作、宣传、投稿
联系微信:soujianzhu006


