
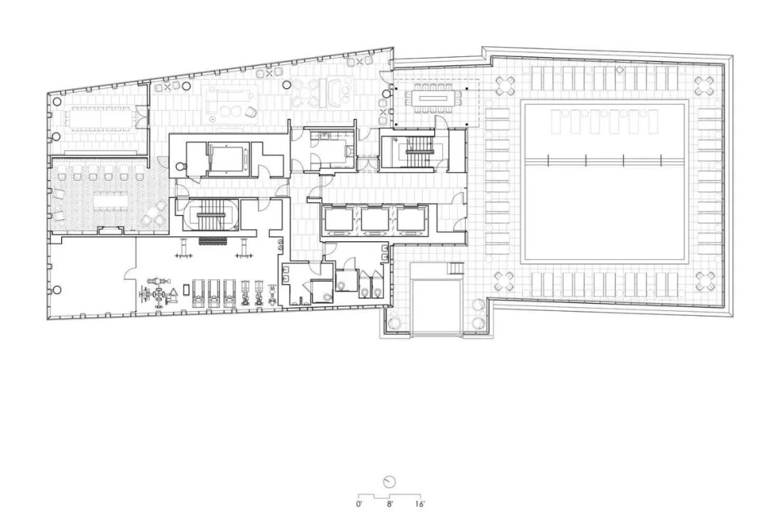
Positioned on a prime site in downtown Nashville, adjacent to the 17-acre, Amazon-anchored Nashville Yards development, this new 34-story, 419-foot-tall apartment tower includes 356 units. The building features such amenities as a fitness room, rooftop game room, two pools, and several communal alcoves. GP designed the building as well as the interiors.

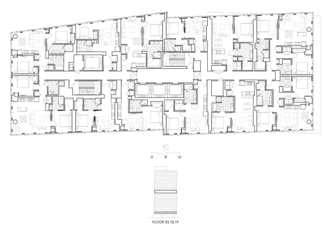
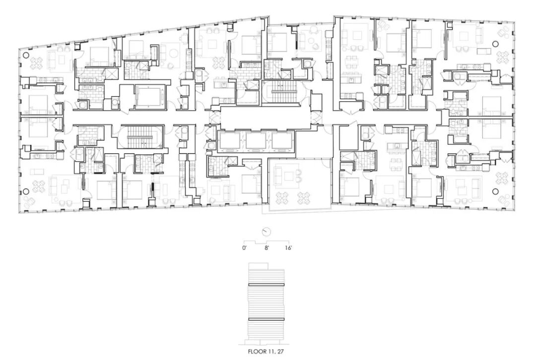
The building is composed of a series of stacked, shifted cubes organized in pairs on four levels. The unique arrangement opens up inner sections of the building and allows for unique views and alcoves. The tower footprint maximizes the site, with the building providing 32 studios, 224 one-bedroom units, and 100 two-bedroom units. Two second-floor units have adjoining, private outdoor terraces. The building façade uses an intricate window wall featuring two varying shades of glazed metal panels, which frame floor-to-ceiling glass for each unit.

As part of the overall program, signature amenity spaces are creatively placed within four warm-toned cutouts, or alcoves, that feature intimate, communal outdoor terraces. Two of the 75-foot-tall terraces face east toward the Nashville skyline, and two others face west, with unobstructed sunset views.

Rooftop amenities include a fitness room, business center, private dining room with a catering kitchen, a game room, lounge, and an outdoor pool deck, featuring a saltwater pool and a separate clear-bottom pool that overhangs the 27th-floor amenity terrace on the west side of the building.

轴测分析图
项目信息
建筑师:Goettsch Partners
地点:美国
面积:34910 m²
年份:2023
微信公众号“搜建筑”(ID:sjz9999)
合作、宣传、投稿
联系微信:soujianzhu006


