▲ 更多精品,关注“搜建筑”

客户向我们提出了一个雄心勃勃的设计方案--设计一座符合其T3企业战略的大型木结构办公楼,该战略以交通、木材和技术为重点,是为了满足人们对当地真实性、可持续性以及城市和社会连接性日益增长的需求而开发的。挑战在于如何将这一要求与科林伍德丰富的工业背景相结合,科林伍德拥有优雅的仓库、狭窄的街道、充满活力的艺术区以及不断发展进步的人口。
The client came to us with an ambitious brief – to design a mass timber office building that aligned with its T3 corporate strategy, which focuses on transit, timber, and technology and was developed in response to growing demand for local authenticity, sustainability, and urban and social connectivity. The challenge lay in marrying this brief with Collingwood’s rich industrial context, characterized by elegant warehouses, narrow streets, vibrant arts precincts, and an evolving, progressive demographic.

我们的设计借鉴了这一独特的背景,打造了一座由5层砖混结构裙楼和10-12层轻质木结构楼组成的建筑。这既是对环境的回应,也是对建筑结构组成的直接反映。砖砌裙房与街景规模相呼应,而上方的玻璃幕墙塔楼则与周边新兴的住宅/商业建筑类型相呼应。一个决定性的举措是将裙房的北立面与东面的一栋文物建筑对齐,从而创造出一个更宽阔的地面空间,营造出宽敞的到达感和市政品质。塔楼的上部悬挑于后退部分,形成一条入口通道。
Our design draws on this distinctive context to create a building comprising a 5-level brick and concrete podium with a 10-12 19-level lightweight mass timber structure perched above. A contextual response as well as a direct reflection of the building’s structural composition. The brick podium sleeves into its streetscape scale, while the glazed curtain wall tower above speaks to an emerging typology of residential/commercial buildings in the immediate surrounds. A defining move was to align the northern façade of the podium with a heritage building to the east, creating a wider ground plane with a generous arrival and civic quality. The tower forms above cantilevers over this setback to define an entry pathway.

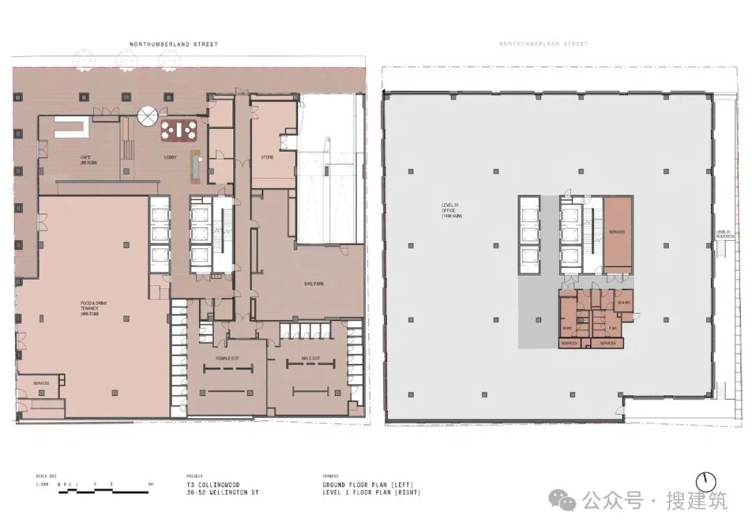
裙楼使用红砖,窗帘使用赤陶,上立面使用幕墙遮阳鳍片,形成了一种独特而自信的色块反应。这种诚实、工业化和坚固的材料色调在内部得以延续,砖、镀锌金属、混凝土和木材的色调贯穿始终。设计方案的重点是提供高效、实用、灵活的楼面空间,以及良好的采光和便利设施。
The use of red brick in the podium, terracotta in the window shades, and curtain wall shading fins in the upper façade creates a singular, confident color block response. This honest, industrial, and robust material palette continues internally, with a palette of brick, galvanized metal, concrete, and timber throughout. The program resolution focuses on providing efficient, functional, and flexible floorplates with excellent access to light and amenities.

该项目提供的便利设施包括底层餐饮服务和 EOT 设施,随着建筑外形逐渐向后退,在较高楼层还设有露台。暖色调的木材美感营造出宁静的室内空间,与生物亲缘的紧密联系培养出一种与高层办公楼截然不同的居住舒适感。高效的楼面利用了大量木材网格,为未来的租户装修提供了最佳的灵活性。设计的当务之急是最大限度地提高收益率,这反过来又支持了大规模木材系统的额外建筑成本上升。
Amenity includes ground floor food & beverage offerings and EOT facilities, with terraces created as the building form steps back progressively at higher levels. A warm timber aesthetic creates calm interiors, with strong biophilic connections nurturing a sense of occupant well-being not typically associated with high-rise office buildings. The highly efficient floorplates capitalise on the mass timber grid and provide optimum flexibility for future tenancy fit outs. An imperative of the design was that it maximised yield, which in turn supported the additional construction cost uplift of a mass timber system.

该项目要求在维多利亚州/澳大利亚境内交付一幢高度前所未有的大型木结构建筑。要应对审批部门的挑战,就必须与顾问进行广泛的协调和整合,与团队密切合作,测试多个网格布局以及大量的消防工程建模和测试。对多种结构和混合系统进行了测试,以验证最终的设计方案。这涉及到每一步都要进行成本/价值结果的广泛建模,以确保设计具有成本效益。可持续性是设计的核心重点。
The brief stipulated the delivery of a mass timber building at a height that hadn’t previously been delivered within Victoria/Australia. Meeting approval authority challenges required extensive consultant coordination and integration, with the team working closely to test multiple grid layouts and extensive fire engineering modeling and testing. Multiple structural and hybrid systems were tested to validate the final design solution. This involved extensive modeling with cost/value outcomes at every step to ensure the design was cost-effective. Sustainability was a central focus.

设计旨在建造一座热效率高、低碳环保、运营成本低的高性能建筑。T3 获得了六星级绿色之星(设计)称号,其大量木材建筑材料均来自当地可再生森林,与同等的混凝土结构相比,内含碳量减少了 34%。该项目的完成反映了开发商和设计团队的目标,标志着新一代具有碳意识的商业空间的转变。
The design sought to deliver a thermally efficient high-performing building that is low carbon and low-cost to operate. T3 has been awarded a 6-star Green Star (Design), and its mass-timber construction, sourced ethically from local renewable forests, contains 34% less embodied carbon than an equivalent concrete structure. Reflecting the objectives of the developer and design team, the project’s completion signals a shift to a new generation of carbon-conscious commercial spaces.


剖面图
建筑师:Jackson Clements Burrows Architects
摄影:John Gollings, Tom Blachford
2.本资料为要约邀请,不视为要约,所有政府、政策信息均来源于官方披露信息,具体以实物、政府主管部门批准文件及买卖双方签订的商品房买卖合同约定为准。如有变化恕不另行通知。
3.因编辑需要,文字和图片无必然联系,仅供读者参考

合作、宣传、投稿
联系微信:soujianzhu006