▲ 更多精品,关注“搜建筑”
房子,是承载理想生活的美好容器。面对竞争越来越激烈的改善市场,产品也是越来越多,那么什么样的改善产品才能打动人心呢?
今天就来看看搜建筑为大家搜集来的一批250-300㎡一层两户高层改善产品。
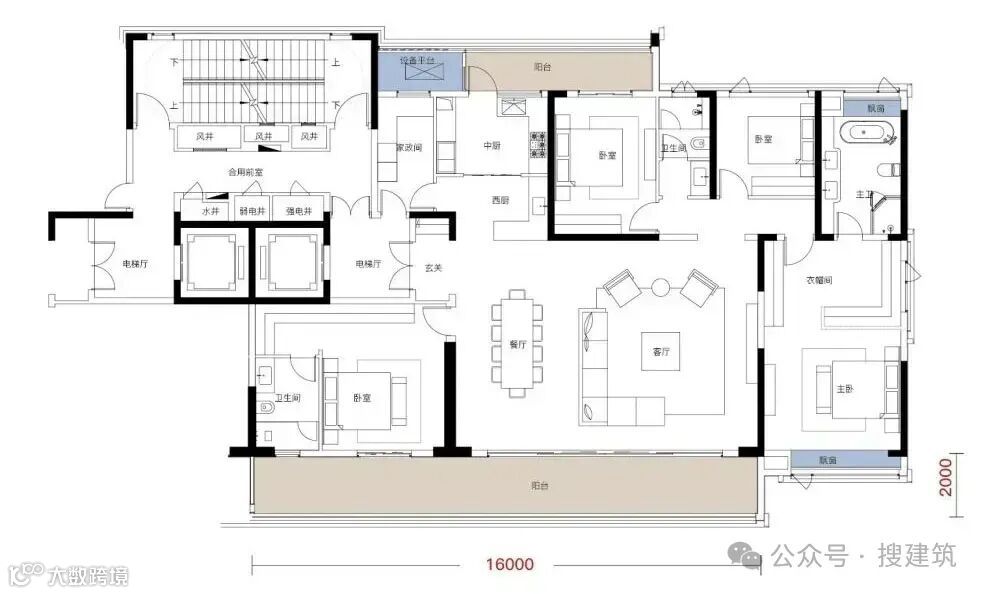
福建泉州龙湖华越盛天·御湖境建面约258㎡户型,四房三卫,奢华感顶满格。
独梯独户,私家电梯归家厅近7㎡,同时电梯双向开启,真正将别墅私密尊贵的归家仪式搬进大平层。
进入屋内,270°环幕视角无比震撼,纯粹观景面约23米,带来超常规空间体验与视觉突破,享MAX景观的同时,进一步拓展户外空间。
南向阳台与客厅、次套卧联通,可增设健身区、家政区等场景模块,北向阳台可做观景区。
约97㎡客、餐、厨一体全开放式大方厅,构成超大家庭社交场,无论处在哪个区域,都有着超强的尺度感。
主卧套房约42㎡尺度豪横,近7米景观面,超大的独立衣帽间,配备双台盆和大浴缸的独立私密卫浴空间,带来媲美五星级酒店的奢适享受,将空间上的尊崇私属感更上一层。
项目立面设计灵感来源于树的枝干蔓延,提取树枝形态的意向,抽象后构成建筑外形的装饰元素,建筑上部如双叶生长,枝干分散蔓延之资被精准镌刻于建筑中部。
大面积的LOW-E双层中空玻璃和金属幕墙,最大化窗墙比。
长沙城发恒伟·君樾洋湖建面约252㎡户型,五室两厅三卫,私梯归家。
户型动静分区,生活休憩互不干扰,起居舒适,整体四开间朝南,拥有270°环幕视野,超阔景观面。
大尺度客厅,南向双套房,无论是从奢阔感还是舒适感,都为居者描摹了高品质住宅的封面样本。
广州越秀琶洲樾建筑面积约261㎡户型,5室2厅3卫,全明设计,南北对流。人性化 “主仆分离入户 ”双动线设计,提升品质尊崇感。
LDK大方厅一体设计视野开阔,给予了空间的通透感。可容纳10多人就座大圆桌餐厅,配有西厨岛台、烤箱、咖啡机,家族聚餐、home party多重场景一应俱全。
拥有双套房设计,空间使用率高,家里主人和老人均可享有私密性的起居体验。

效果示意图(仅供参考,非交付标准)
项目从全球地标建筑汲取设计灵感,简约的线条、通透的玻璃幕墙,让立面简约舒展灵动的同时,亦注重玻璃与铝板的虚实对比。外立面使用金属线条及格栅,利用线条的弧形设计柔化了建筑棱角,呈现出既高级简洁又有韵律的流线,带来视觉动感。
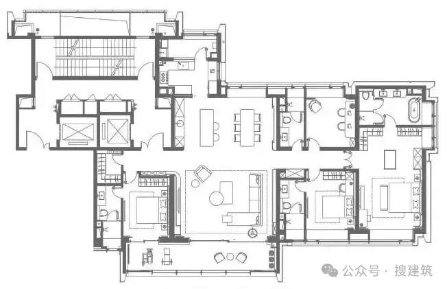
长沙绿城·桂满湘江建面约267㎡户型,两梯两户的布局,拥有独立电梯间+主佣入户双动线。

建面约267㎡户型示意图
面积约66㎡的LDKG大横厅,连接中西双厨和南北双阳台,基本没有过道浪费面积,公区超级豪横,既可以容纳家庭内部的其乐融融,也可以承载聚会party的欢声笑语。
南向双套房都是卧室+衣帽间+卫浴的豪华配置,兼顾私密性和仪式感。
南京天晟府建面约269㎡户型,两梯两户设计,户型整体得房率高达约83%,约3.3米层高。
整体南向开间约22.5m,景观阳台面积约22㎡,进深约2.1m,约10.6m跑道阳台,全封闭落地窗采用YKK系统窗,奢阔视野。
LDK客餐厅一体化整体约70㎡,空间奢阔,一体化设计,与餐厨连通,轻松拉近家人的距离,让家人们的欢聚不止一种形式。
约46㎡奢定行政套房设计,开放式衣帽间和三分离主卫设计,空间舒适度且实用性凸显。
成都中粮·天悦壹号建面约270㎡户型,四室两厅三卫,经典南北双厅,双动线布局。
独立门厅归家,约13㎡超大玄关,将整个公区分为独立客厅、独立餐厅,同时形成动静双动线,还拥有一个大容量收纳空间。
双厅加起来约有65㎡,空间功能与尺度兼具。约12.5米宽奢阳台,将客厅的开阔度拉到了max。约5.4m开间景观餐厅,中西厨奢华配置,成为家庭交流、派对的主场。
卧室区强调每间房都要住得舒服。主卧区约50㎡,酒店式情景场域,独立梳妆柜、休闲区、超大衣帽间、大浴缸、双台盆洗漱区、淋浴区,兑现奢阔主卧小家化。

外立面采用了高级灰的色调,超大外墙立面、超大窗墙比。
西安大明宫金茂府建面约272㎡户型,户型从居住者角度出发,通过科学动线划分,强调人文居住氛围。
家庭动线区域采用LDK设计,呈现270°揽景端厅,南向客厅面宽达到7.8米,大空间、大面宽、大视野,满足了改善圈层对奢阔社交空间的需求。
户型入户玄关尺度阔绰,在满足日常收纳之外,还能打造为家庭收藏区。
奢阔南向双套房设计,升级居住私享体验。主卧囊括开放式衣帽间,独立卫浴设计,预留双盥洗空间,空间布局之巧妙,业主生活更加舒心。
长沙嘉臣道建面约272㎡户型,堪称王炸。四房四卫三套房,改善一步到位。
入口处的十字女王玄关,既完成了室内动静流线的分离,也让出门归家的仪式感更上一层楼。
公区打造为约63㎡LDKB一体化会客厅,厨房、客餐厅与约23米超长L型落地转角大阳台相互联通,将客厅的开阔度拉到了max。以后业主在这里聚会、轰趴都绰绰有余。
项目样板间实拍图,仅供参考
整体三套间+特别是主卧约48㎡的豪华套房配置下,不论三代同堂还是多孩家庭都可游刃有余,实现家庭成员的平权化,保证了家庭成员适合的交流尺度,进可以全家交流,退也可以互不干扰。
宁波绿城东投·凤鸣云翠建面约275㎡的户型。每个空间都做到超高配置,给足生活获得感。在入户的仪式感从进门玄关处就开启了,独立入户玄关,给足生活尊崇感。
无界大方厅,客厅、餐厅、厨房一体化设计,构成超大家庭社交场,无论处在哪个区域,都有着超强的尺度感。

项目样板间实拍图,仅供参考
约3.3米层高,三个南向阳光大卧室,两大豪华套房,让每个家庭成员都能更大限度享受空间场域。
长沙招商蛇口江山·境建面约278㎡户型,4+1室2厅4卫。
四开间朝南,南向面宽接近20.7米!全屋采光通风性能更佳。搭配南北双阳台的通透质感下,每一套都是清风与阳光的留恋之地。
LDK一体化设计下,让客厅不再是“孤岛”,而是让餐厅、客厅、观景阳台融合为超88㎡的空中社交空间,家族聚会、开party都毫无压力。
三个南向卧室全部是套房,注重每个家庭成员的体验,三代人齐住,也不会影响各自的独立空间。尤其是主卧,包含衣帽间、淋浴区、座厕区、浴缸区、双台盆洗漱台等独立空间,在私人空间里拥抱仪式感。
长沙招商蛇口江山·境建面约281㎡户型,拥有更具大宅气场的空中角厅+L型阳台结构。
独立玄关归家,入户处可打造双排玄关,尺度阔绰,在储物空间更足的同时,仪式感拉满。
270°空中端厅,环幕视野,解放空间束缚,俯仰浩瀚天地。客厅还留有“第三厅”,随时变换成茶室、游乐区、健身场等多功能空间,俨然可以成为一家人的欢乐场。
行政级主卧套房是独立卫浴+转角衣帽间+卧室+飘窗的奢境配套,升级居住私享体验。
一个优秀的住宅不应该只是简单地堆砌功能和设施,而是需要有一定的创意和想象力,以满足更高层次的需求。
2.本资料为要约邀请,不视为要约,所有政府、政策信息均来源于官方披露信息,具体以实物、政府主管部门批准文件及买卖双方签订的商品房买卖合同约定为准。如有变化恕不另行通知。
3.因编辑需要,文字和图片无必然联系,仅供读者参考
合作、宣传、投稿
联系微信:soujianzhu006