▲ 更多精品,关注“搜建筑”
华云电力物联网产业研发制造总部项目幕墙设计

由UAD设计院环境艺术分院幕墙二所参与的华云电力物联网产业研发制造总部项目幕墙设计经过考察和技术比选,在多家设计单位评选中脱颖而出,一举中标!该项目由十一栋建筑串联组成,通过立面材质的选择与精细化设计,构造出山、水、云间的立面写意形态。
作为华云集团未来发展的重要产业平台载体,目标是打造多产业环节综合协调的综合型园区,融工作、生活、生态休闲于一体的生态活力标杆型企业总部。


工程名称|华云电力物联网产业研发制造总部项目幕墙深化设计
建筑设计|启迪设计集团股份有限公司
建筑面积|211085 ㎡,其中地上130425 ㎡,地下80660 ㎡
幕墙面积|91000 ㎡
幕墙主要设计范围|玻璃幕墙、铝板幕墙、玻璃栏板、入口雨棚、玻璃采光顶等






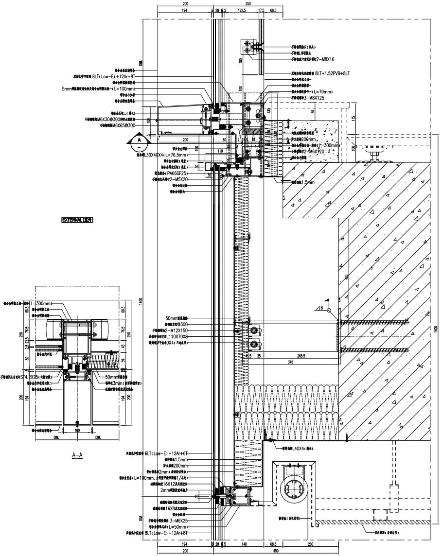
△ 局部立面图及立面龙骨布置局部详图
金属外平开窗采用特殊定制隐藏式合页开启,合页不外露,确保立面整洁清爽,并且开合使用功能比不锈钢铰链更为便利。
立面上铝板与玻璃的交接位置由一条贯通的凹口隔开,凹口的尺寸为80mmX100mm,凹口造型采用定制铝型材制作完成。
标准层建筑层高有四种,分别为3600mm、4500mm、4750mm和5800mm,通过整合归类并调整幕墙立柱的结构受力形式(三种受力模型:单跨简支、单跨悬挑以及双跨),提高幕墙型材的通用性。
项目策划|姜浩、黄丽
设计人员|周志敏、俞星、黄培军

合作、宣传、投稿
联系微信:soujianzhu006


