从“金沙现象”论区域型房企
如何突破困局逆势增长为主题

四大精品楼盘考察+董事长论见会
《新形式 新起点 新策略|区域房产高质量发展论见会》
2024年5月

分享会亮点:
一、金沙集团的逆势发展之道
二、“红盘”背后的设计力量——金沙案例解析
三、高品质和成本控制的平衡
四、如何借鉴金沙的发展之路

2024年5月
金沙集团高管带队讲解
金沙集团,以全国领先的产品力和精细化管理能力吸引全国数千企业超万人到访参观学习的业内标杆,“稳健金沙有三宝,建筑、景观、物业好”的金沙品牌,已从商丘火至大江南北。
报名+咨询

咨询微信:soujianzhu03
咨询微信:soujianzhu008
金沙 • 東院
2023年全国十大高端作品、产品力红盘
2022年河南省工程勘察设计行业奖 一等奖

整个园林,采撷《梁园飞雪图》中国八大雅集之神韵,融“四大书院”的应天书院之礼序,“金水飞瀑——四水归堂——书卷回廊——静谧水院——园林静园”五重礼序层层递进,既是跨越千年的礼序回溯,也是一场心灵的疗愈之旅。

金沙東院在社区内部,利用价值近千万的车位空间,大手笔打造了下沉式庭院会所,融合了私宴厅、瑜伽室、室内高尔夫、健身房等多重功能空间,以此满足业主日常和精神生活所需。

金沙東院,素颜精妆样板间,出场即惊艳,背后承载了无数看不见的精工细节。在工艺上,墙体粉刷采用多重工序,保障极高的平整度,甚至达到直接可装修水平,堪比简装批白效果。
地坪工艺,采用精确测量平整度全过程验收。同时还有交付预处理,用专业设备将地板打磨粗糙,增加装修贴砖时的附着力,便于业主装修。


▲金沙·東院 样板间实景
在车库出入口处,金沙匠人别出新裁,设计全新超高挑空设计、感应式灯光系统、墙面天然石材,业主不管是出门还是归家,都能给您满满的仪式感。

由于地下车库流量大、磨损大,金沙在原有水磨石地坪基础上,升级全新配色方案。水磨石地坪具有防尘防滑、亮度高、耐老化、耐污染、耐腐蚀等优异品质,让地坪使用寿命更长。

全新的灯光设计方案,兼顾了业主照明使用、车辆引导分流标识、用电合理、美观等功能。

细微之处更见品质,金沙東院车位定位器使用铝合金材质。该材质具有较强的抗压性和较高的柔软度,还具有减速、防滑、耐磨、减轻轮胎磨损等特点。

不仅如此,金沙地库装饰设计上也非常讲究,所有墙面和立柱喷涂全新防水材料,具有防潮、防腐、抗污、环保、易修补、易清洁的特点。

在行车道上,车道标线箭头与水磨石一体打磨成型。此外,在箭头外侧还包裹了不锈钢银色边框,不仅结实耐用,而且更显奢华。

下水篦子也是特制版本,极具设计感。下水篦条非常细腻,在篦条上也做了压纹处理,不仅能够防滑,还非常美观。右侧的散水栓内壁一改以往风格,采用石材进行铺贴,与园区道路风格一致。

在外立面设计上,徐辉设计以现代极简立面,采用亚光银灰色铝板和Low-E玻璃,化繁为简,提升整个建筑的美学品位。

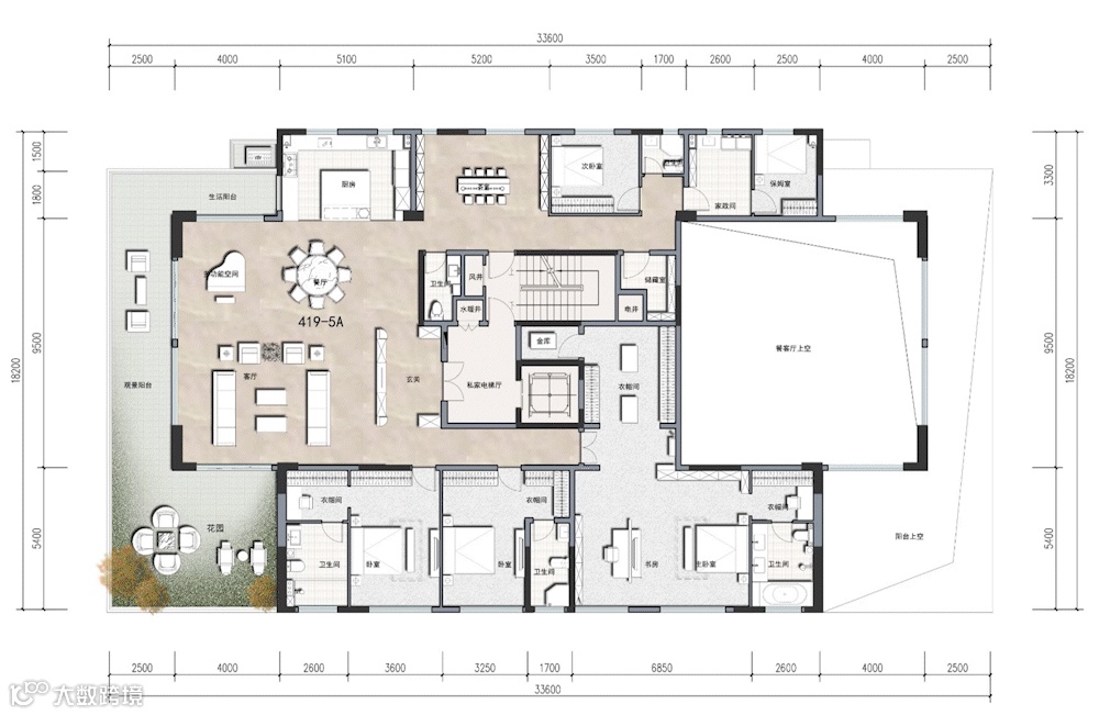
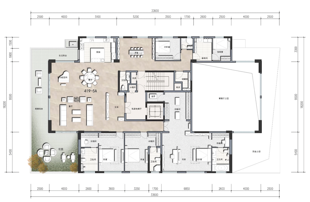
在户型打造上,金沙·東院创新性地设置了双层挑高空中庭院,突破了常规阳台的空间尺度,约90㎡开放式客餐厅搭配约6.6m超高挑空,超大开间及超大落地窗设计,极大地拓宽了视野边界。

通过对户型的创新设计、严苛的尺度考究,打造极致和超尺度户型。

▲ 手机拍摄项目实景图
约90㎡开放式客餐厅搭配6.6m超高挑空,超大开间及超大落地窗设计营造无边界视觉效果,搭建疏朗开阔的空间,使房间通透感十足,视野豁然开朗。

2022年河南省三大轻奢美宅作品
2022年河南省工程勘察设计行业奖 一等奖
金沙·天悦是金沙集团首个金质项目。位于日月湖板块东侧约1.5公里,北邻城市公园,东拥包河景观,周边生态资源丰富,具备打造轻奢产品的天然基础。


昂贵滨州青石材铺设路面,碎拼异形设计,要先排版,编号,精细对缝。这样做,只有唯二缺点,费工,费钱!却能保证很高的社区品质,整体效果和谐统一。
在景观的核心,围合约1100㎡的镜面水景,八株跨越千里,超30年树龄的乌桕树王,带着原生态美静静伫立,意蕴悠远。

▲金沙·天悅 实景


在项目景观视野最好的高层楼栋,户型设计为多面宽超大尺度南向布局,将景观优势最大化展现,提高户型的价值点和竞争力。

金沙 • 天和
金沙·天和巧妙地利用周边景观资源来补充社区功能,同时通过对建筑风格、颜色、造型特点的提取分析,结合景观设计手法,打造出现代自然的当代生活美学馆,呈现出一个别具一格的生活空间。






▲金沙 · 天和地库实景图
▲ 金沙 · 天和地下洗车服务中心实景

金沙天和的非机动车进入地库,有两种方式可供业主选择。一种是在金沙天和南门地库口,有一个专门的非机动车行驶区域。经过人脸识别后会自动打开道闸,这样进出小区就不用再停车拔钥匙刷卡。

第二种方法则是在金沙天和南门地库口,有一个非机动车专用电梯,大体量很方便,常用的两轮三轮车都可进入。车辆“乘坐”电梯,直接到达非机动车停放区域。


在非机动车停放区域,安装有充电插座,方便业主使用。


金沙壹号院
2022年河南省工程勘察设计行业奖 一等奖
2022年河南省土木建筑科学技术奖 一等奖
2022年最艰难的时期,创下开盘劲销、三月清盘的佳绩
金沙壹号院位于商丘示范新区,邻近日月湖景区,兼具老城区的商业商贸特征和休闲生态需求,地理环境优越。

▲ 金沙壹号院


商丘金沙壹号院在立体式景观的基础上,邀请国内景观设计大师孙虎先生,为商丘壹号院原创了国内“森屿住假”式园林景观,融入森林、岛屿、居住、度假的精髓概念,让业主足不出户,享受度假休闲体验。




金沙壹号院以不计成本的决心,为商丘打造出高端产品,每一平米的美好呈现,每一个细节的处理,都倾注了金沙人夜以继日的匠心研磨,就连在路上随处可见的线性排水沟篦子也是如此。

在不影响水流的情况下,把篦条形状从垂直向下焊接打磨为弧形,这样从地面任何一个角度都看不到构体内部,同时配备栓修口,方便定期清污。
徐辉设计是金沙集团战略合作伙伴,金沙·東院、金沙·天悦、金沙·壹号院等代表性现象级红盘建筑/规划设计单位。
山水比德在全国景观设计业内颇具影响力。作为国内豪宅的硬性标签,金沙集团商丘国安天和、国安天悦、金沙壹号院的景观设计,皆有山水比德创始人、首席设计师孙虎先生之手笔。

咨询微信:soujianzhu03
咨询微信:soujianzhu008
2024年·新产品方向
《 品牌地产 | 精品楼盘活动 》
杭州、苏州、上海
成都、郑州......
广州、福州、重庆
西安、青岛......
扫描二维码 加好友咨询
领队微信:soujianzhu03
本资料声明:
1.本文为建筑设计技术分析,仅供欣赏学习。
2.本资料为要约邀请,不视为要约,所有政府、政策信息均来源于官方披露信息,具体以实物、政府主管部门批准文件及买卖双方签订的商品房买卖合同约定为准。如有变化恕不另行通知。
3.因编辑需要,文字和图片无必然联系,仅供读者参考;
推荐关注
全球精品楼盘考察
扫描二维码关注
微信公众号:全球精品楼盘考察
合作、宣传、投稿
联系微信:soujianzhu006



