隐秀系产品设计逻辑及迭代
△ 绍兴湖珀隐秀府实景
- 2023 AMP美国建筑大师奖荣誉提名奖 -
- 2023年度第八届REARD全球地产设计大奖金奖 -
*前言
作为国内先进人居理念的缔造者和探索者,万科深刻洞察城市精英人群所想,创新“隐秀系”战略级作品,“隐秀系”作品的气质之一, 是中心土地资源和深厚历史文化的塑造。
从中房参与设计的隐秀系开篇之作古翠隐秀,到绍兴湖珀隐秀府,每一座古翠隐秀,都带着万科对“城市、土地与人”三者全方位的思考。
“隐秀系”代表古翠隐秀,以高辨识度的白月光外立面、高度假感的景观、高品质的林下空间实现了隐秀系住宅的高级感,惊艳全城。相比古翠隐秀据守老城醇熟核芯的内敛、平和,绍兴湖珀隐秀府扎根于城市新核心的先锋性,也呈现出古翠隐秀的同款设计语言。
# PART 01.
立面的「艺术感」
绍兴湖珀隐秀府在住宅立面风格上秉承了杭州古翠隐秀的建筑美学特征,并且进一步加以提炼丰富,结合项目的地域实际加以发展应用。
△ 杭州古翠隐秀实景
△ 绍兴湖珀隐秀府实景
一脉隐秀系设计灵感的“黄金斜切”建筑,以同样的美感呈现于湖珀隐秀府之上,切割轴线的鲜明标签,让建筑更显轻盈与温润,同时与镜湖湖天自然融洽共生,成为与城市新生代人群共鸣高级审美的“当代艺术品”。
△ 绍兴湖珀隐秀府节点
△ 绍兴湖珀隐秀府实景(图源:万科)
建筑立面首先打破当下高端公寓主流的所谓对称式仪式感,以非对称的立面构图形成现代风格立面的底子。通过建筑表皮的细腻刻画,以铝板幕墙斜切的独特细部手法形成隐秀系的标志性符号,并且将这一符号应用到地上地下入户大堂等部位。
△ 绍兴湖珀隐秀府设计概念示意
△ 绍兴湖珀隐秀府实景
立面设计中还结合绍兴当地阳台封闭的需求,引入大面积高透玻璃和轻盈的铝型材线条,以窗墙体系的构造实现了类幕墙的视觉效果,进一步丰富了隐秀系立面的层次与内涵。
△ 杭州古翠隐秀立面
# PART 02.
庭院的「度假感」
古翠隐秀的三角形用地,先天为规划布局的独特性提供了契机。在既有资源之下,向地下拓展,形成新的焦点空间。由架空层向下进入会所,本身就是一个闹中取静的方式,二层挑高的空间将架空层、会所、地下庭院联系起来,会所功能围绕地下庭院如画卷般徐徐展开。
△ 杭州古翠隐秀实景
古翠隐秀的丰富与内秀远不止于此,各种空间的层级变化,错落有致的各种景观节点,气质各异,“景观密度”极高,各成一片天地,又因为绿化的包裹,统一在静谧的“林下空间”。
△ 杭州古翠隐秀实景(图源:万科)
身处镜湖得天独厚的自然资源下,湖珀隐秀府汲取曼谷四季酒店的灵感,选用双围合式的景观规划,实现更加立体、更具进深感的国际度假景观体系,在这座城市的内心勾勒出一幅生动的围合盛境。
△ 绍兴湖珀隐秀府手绘草图:多方案比选
△ 绍兴湖珀隐秀府鸟瞰图
设计坚决放弃拉高拍低的规划格局,尽量做足建筑物的限高,以减少建筑密度和住宅塔楼的栋数,把更加多空间让度出来,还给自然景观。不在局部小尺度上拘泥天际线的变化,更加看重小区内外空间的互相渗透和延续。
△ 绍兴湖珀隐秀府实景(图源:万科)
我们主张对外延揽湖景,对内营造园景,让每一栋楼都得到充分的景观资源。
具体来说小区楼栋采用板点结合,在小区沿外圈采用大围合布局,在西侧与南侧临水的方向,以及内部的腹地缀以点式塔楼,并且底层进行架空,使公共空间和景观自由渗透,每栋楼的每一户都可以平等均好地亲近自然,自由漫步。
△ 绍兴湖珀隐秀府实景
在这座“珍藏自然的府邸”中,设计将开放式草坪、林下长庭、社交功能空间有机融合,令景观更添参与感与互动性。架空层营造了丰富的阅读、童玩等全龄主题空间,公共空间的开辟,也迎合了万科“社交重构”的营造理念,着眼于当代湖区邻里的友好关系,将更为深远的社区生长环境呈放世人眼前。
△ 绍兴湖珀隐秀府实景
# PART 03.
归家的「仪式感」
杭州古翠隐秀归家动线以丰富的空间层次,塑造大隐于市的静谧体验:主入口采用酒店化设计,对外以内凹式入口广场作为序曲,围墙及出入口后退,形成适当的距离感,隔绝外界的嘈杂。门厅由一系列的片墙与挑高七米的屋顶围合,门厅之后转入艺术回廊,入口水院树阵及雕塑,光与影,风与水共同以纯粹的画面构成静谧的场所感。
△ 杭州古翠隐秀实景
湖珀隐秀府在一条“归家即度假”的酒店式动线串联下,隐秀门庭、大地童梦、大泽隐秀、有氧穿林、原野映夕、风林赏艺、临汀观芷、“万科植物园”等多个度假感十足的景观节点,在城芯盛放。让每一位归来的人,获得自然的温润治愈、心境的曼妙提升。
△ 绍兴湖珀隐秀府景观规划图(图源:网络)
前期作为示范区使用的主入口位于地块的西侧,依托得天独厚的自然环境资源,打造都市中心的栖居谧境。在空间氛围和调性上延续提炼了万科隐秀系的内涵,即“摩登,静谧,自然,精奢。”
△ 绍兴湖珀隐秀府实景
主入口正对湿地景观绿带,用难得的自然生态环境来形成高端大宅的“影墙照壁”。主入口的空间不是简单地一道大门或者一个入口广场,而是以“展,收,放”的节奏变化,组织起一个三进的复合空间序列。
△ 绍兴湖珀隐秀府示范区状态,以实际交付为准
从入口广场,经过风雨长廊到达核心景观庭院,“院围且透”的三进空间带来丰富的视觉感受,别具韵味。临水而坐,户外的美景尽收眼底,也记录着生活的美好时光。
△ 绍兴湖珀隐秀府示范区状态,以实际交付为准
绍兴因河而建,河流是构成绍兴城市的骨架。归家流线从绍兴水乡特性出发,在大围合式的庭院空间中,穿桥而过的水院串联起多个生动的生活场景,营造临水而栖的自然与诗意。
△ 绍兴湖珀隐秀府实景(图源:万科)
# PART 04.
大平层的「高定感」
湖珀隐秀府的住宅产品为全高层平层公寓,主力面积在170到200平方米。区别于一般的楼盘,项目户型设计并未一味地拉大面宽,以开间数取胜。而是以规划先行,通过逐栋分析楼栋的景观资源,充分挖掘边厅观景的优势来实现产品的独特价值。
△ 绍兴湖珀隐秀府装修展示馆实景
非最终交付标准(图源:万科)
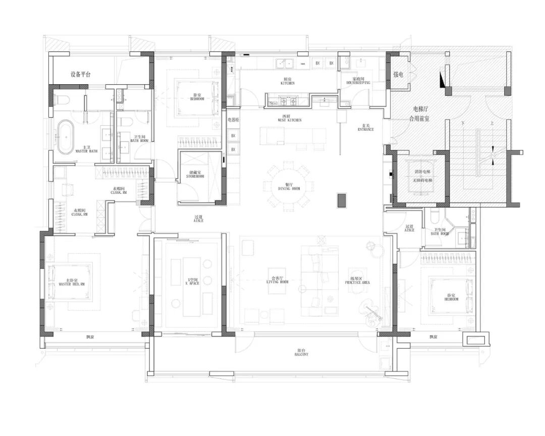
正是边厅户型的集约,才成就了260㎡楼王的“王炸”效果。接近2:1的面宽进深比, 20米的超大面宽,相当于将三层排屋产品摊平放在一层,完完全全的“空中别墅”效果。大平层所带来的不仅仅是大面宽, L D K B一体化公区,洄游式动线,卧室区的私域空间,主卧室的小家化等等,不一而足。
△ 绍兴湖珀隐秀府户型平面:260㎡
(设计概念示意,非最终交付标准)
△ 绍兴湖珀隐秀府户型平面:198㎡
(设计概念示意,非最终交付标准)
所有这一切都是从客户生活需求出发,以丰富的生活场景应用,满足全部家庭成员的不同需求,力求创造出新一代的高品质平层公寓户型。
合作、宣传、投稿
联系微信:soujianzhu006


