多种功能于一体,现代化智慧创新社区—— 上海临港海立方科技园三期
搜建筑
中国( 上海) 自由贸易试验区临港新片区位于上海东南,北临浦东国际航空港,南接洋山国际枢纽港。自2019 年挂牌之日起,就被给予了连接世界的重要使命。集聚国际要素,这里是一座具强竞争力、产城融合型的自由贸易港城。
自2017年起,FTA深度参与临港未来发展,多个项目在临港落地生根。2018年,FTA作为临港海立方科技园三期项目的设计总包方,协调包含建筑、结构、景观、室内、机电等多专业合作。项目总投资约10.7亿元,规划总建筑面积约13.7万平方米。围绕海洋科技产业,FTA设计集总部办公、科技服务、人文生活等多种功能于一体的现代化智慧创新社区。
坐落于临港国际创新协同区,这里是上海市“两核三带多点”海洋产业格局中的临港海洋产业发展核,承载着形成与国家海洋强国战略和上海全球大城市定位相适应的海洋体系的重要使命。
积极探索建设“全球海洋中心城市”,海立方科技园三期项目用地性质为科研设计用地(C65),定位为生产与研发,差异于一、二期项目的侧重于生产与中试。为实现更深层次、更宽领域、更大力度的全方位水平开放,体制机制创新必不可少。专业的人,干专业的事。针对发展性需求,FTA提出“智海协同”目标,旨在促进人才智慧与海洋产业的深度结合,在海洋科技领域实现产业、教育、生态、区域转型等多领域的合作。

土地政策稳定,先进海洋产业集群的发展证明了临港在取地、开发方面的“硬实力”。整合配置资源,提高土地效能是临港的另一任务。海立方科技园三期承担大力发展海洋工程装备产业和战略性新兴产业,加快建设海洋高新技术产业化基地,促进海洋科技资源集聚、研发孵化和成果转化的重要使命。
“自上而下”的设计,FTA专业团队抓住项目的3个关键点提出问题:

/ 产业活力 / / Industrial Vitality /
建设海洋强国,海洋新旧动能转换加快,深海高新技术成为海洋科技的竞争焦点:需要产业活力,形成产业磁极。这里有以国际智能制造中心为核心的智能制造海工装备主导产业,海立方有已入驻企业以海洋产业核心深海技术的高精尖产业。与此同时,项目周边已落户机构包括彩虹鱼海洋研究院、上海浩思海洋生物快科技有限公司、国家海洋局东海分局综合业务保障基地、同济大学重点实验室及海洋科技广场等,集聚深海技术、海洋生物、产业服务、研究及交流场景,围绕产业有功能链路的活力。

周边的丰富科教资源是另一亮点。项目毗邻上海海事大学、上海海洋大学、上海电机大学等,对应有多省部级重点实验室、研究基地。项目基地外围拥有着住宅、商业、教育、医疗等配套,磁吸人才有高潜力。瞄准科研转化需求,设立技术成果转化基地,以科创平台快速导入领先技术,进而实现海洋产业的集聚效应是产城“活水”的另一关键。
作为产业的延伸和递进,海立方三期综合考虑适应性,选定集聚各类优势资源的深海技术、海工装备、智能制造等主要产业,致力打造“产学研”一体化:绝对的产业优势、丰富的教育机构、研究机构和研发人员。

/空间活力 / / Spatial Vitality /
磁吸人才,还要留住人才。基于“混合社区”,打造生活磁极是FTA的回答。汲取基地周边商业配套不足,导致非工作日时产业园区变成“空城”痛点,三期在建设之初就考虑到后期运营,大大增加了具有吸引力的底层商业配套与公共空间。如今,这套助推特色产业与科技创新快速发展的引擎正轰鸣。围绕海洋高端装备、科创总部、生命科技、智能网联汽车等特色产业,现已吸引浦东软件园、沛塬电子等一批优质产业项目,并引进肯德基、Tim Hortons咖啡、申慧城体育等一批商业功能配套项,打造产业社区,未来预计实现年营收50亿元以上。

/ 文化活力 / / Cultural Vitality /
在北京的一个跨国药企项目中,我们为其设计了新总部的室内空间。之前企业的总部位的芳草地为当地的网红打卡地点,但他们决定将办公地点迁至更符合深科技企业聚集的中关村。这其实是基于社群文化的一种共识与行为,随着时代发展,软性如文化氛围的条件,变得越来越重要。

人体尺度是细腻优雅,城市尺度是美学价值。灵感来源于与古文“水”字,高层办公塔楼在浅色玻璃幕墙上塑造出抽象的水文肌理,几种玻璃模件变形重组的模数化的玻璃分格,立面设计变化丰富有序,是东方文化与诗意相融。表达着自由与节制,进一步将海洋元素融入城市肌理,为奋斗在海洋高新产业的人才营造文化归属。“细微到建筑的每一个构件都会经过仔细比选”,这是项目的建筑师坚持,积小凝大的道理在各行各业共通。

大堂内部延用了海洋元素,无论是如水幕般的前台屏风,还是具有流动感的墙面、天花板,都营造出温馨、轻松的水边会客厅既视感。
过去便于建设和区域管理的功能型城市,在多元功能叠加的今天已是捉襟见肘。工作和生活,非常规工作场所的“第三空间”成为关键:打破围墙!FTA在创新社区内打造了一系列凝聚研发、生活、公共交往等多元功能的场所,扩展了传统办公的物理场所,生态磁吸,让产业孤岛变成宜人的创新社区。
满足不同使用人群对空间的感知和诉求,创新社区内部以鲜明性格的建筑代替了兵营式产业园区的单调。暖色调的多层建筑集群被草地、小径、水面包围。阳光之中,红色陶板上诉说着这里的代名词:温暖。

展示中心位于创新社区的核心位置,波动的曲线立面形成视觉焦点,与中心广场一起成为整个社区的“引力场”,灵活满足展览、音乐会、舞台演出或大型集会等不同使用需求。

一条连接生产、研发空间、展示与配套商业的空中走廊,环绕着社区,提供了可以让人步行感知空间的“第二界面”,行走于其中的人也与地面上的人形成“看与被看”的趣味关系。

作为新生活方式的承载体,文体休闲中心和户外餐吧设立于底层配套商业的屋顶花园中,促进人与人之间“创新可见”的交流合作。于此漫步,一个向内退进的折角空间形成指向地下空间,一条亮黄色色带蜿蜒而下吸引人群。到了下沉式庭院,这里是提供餐饮等不同需求的配套。室外元素及绿植引入到室内,模糊了室内外空间界限,一改地下空间的局促为轻松休闲。

城市保持健康的关键在于良好运营。项目设计之初,我们进行了大量调研分析工作,包含基地周边的产业、配套等现状条件分析,以及一、二期已入驻企业画像分析等,这些都让三期的建设有据可依。

今天,产业与城市、工作与生活的界限已经变得模糊。向着上海2035年迈向卓越城市,创新、人文与生态,对应活力、魅力与可持续。我们的设计不仅在提供使用空间,更是在创造持续激发创新的体验场景。

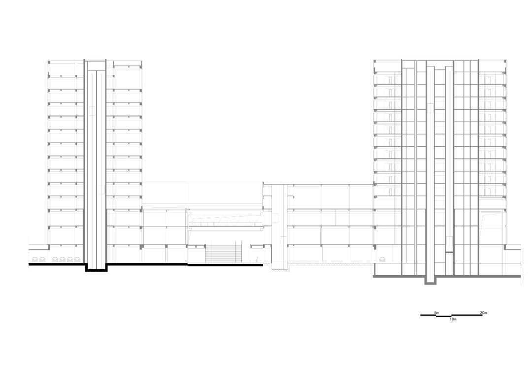
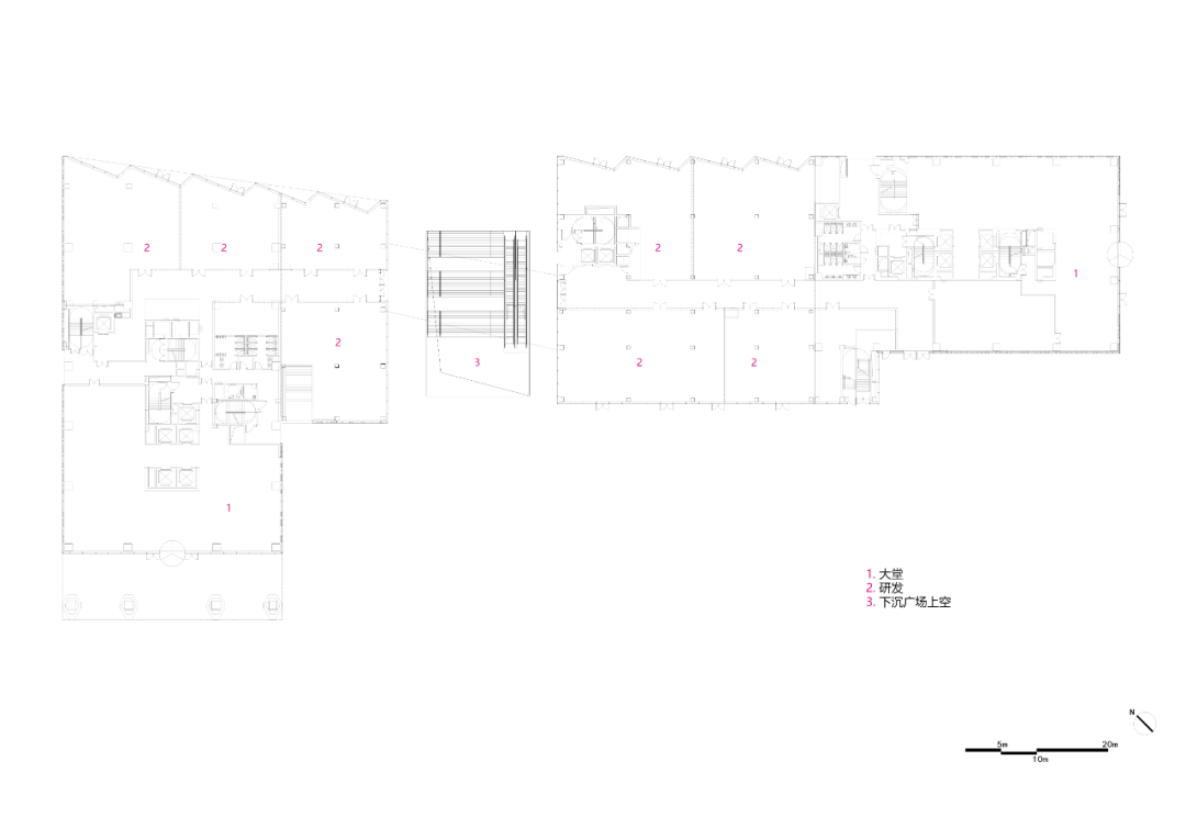
项目图纸
会议展示中心南立面图

会议展示中心剖面图

双拼多层研发楼东立面及剖面图

研发实验楼东立面及剖面图
联系邮箱:xiaoshan@ftaarch.com
摄影版权:存在建筑-建筑摄影(注:其中有一张建筑摄影图版权为FTA所有,详细请参考文件夹标注)
客户:上海临港海洋高新技术产业发展有限公司
2.本资料为要约邀请,不视为要约,所有政府、政策信息均来源于官方披露信息,具体以实物、政府主管部门批准文件及买卖双方签订的商品房买卖合同约定为准。如有变化恕不另行通知。
3.因编辑需要,文字和图片无必然联系,仅供读者参考

合作、宣传、投稿
联系微信:soujianzhu006
搜建筑
关注全球时尚的、新的建筑资讯。