第四代住宅(生态立体楼盘)
专题考察+房企论见会
【中国 · 福州】

福州,第四代住宅的全国领跑者,在各方面累计了大量的落地经验,在此,搜建筑特别邀请业界大咖,为大家分享落地过程中遇到的问题与解题思路。
搜建筑携手尚恩设计、北京柏涛与参会董事长/总裁,通过楼盘案例,分享、探讨第四代产品现在如何落地实施,如何通过设计赋能产品力升级、助力企业发展。

分享会亮点:
一、第四代住宅:政策与设计要点
二、第四代住宅:操盘落地经验
三、红盘背后的解题思路
四、立体生态住宅创新设计理念
二、第四代住宅丨实地考察 | 九大精品

九大精品考察+董事长论见会
报名+咨询

咨询微信:soujianzhu03
咨询微信:soujianzhu008
2、联系电话:18132657351(微信同号)
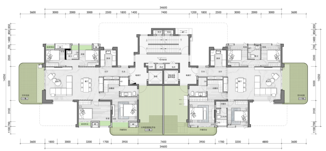
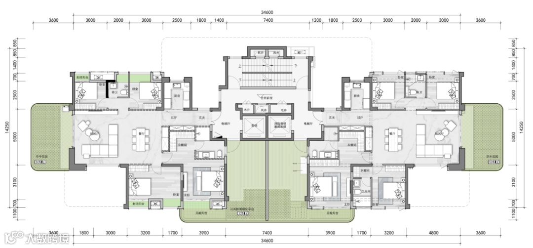
榕发•誉湖郡
建筑设计:福州市建筑设计院
榕发誉湖郡将别墅的院落搬到空中,创造一个“上有天、下有地、前有庭、后有院”的高层住宅。
社区共有8栋两梯两户主楼,南北各4栋,中间为39米X170米中央大花园,是区域拥有临湖景观且自带中央大花园的高端社区。
项目采用大组团式规划,小邻里式空间组合方式,每一栋住宅都采用风雨连廊连接且串联至社区主入口大堂。连廊整体形成环状形式,总长约400米,宽约2.5米,净高约3.3米,门厅空间廊宽放大至6米;

社区大门采用星级酒店的设计风格,人行主入口广场设计有迎宾水景,以灵动温婉的姿态迎接业主归家。

每户超大公共平台与空中花园,奇数层是南公共平台与南空中花园组合,偶数层是北公共平台与北向及山墙向空中花园组合。

▲ 项目效果图
采用钢结构外饰金属饰面,整体形象高端;连廊衔接段采用折线形式增加空间趣味性,满足小区业主全天候的休闲娱乐。

▲ 项目效果图
项目产品有180、160、140三个面积段,其中180、160两个户型为独梯独户形式。产品设计注重空间格局、室内采光、奇偶层隐私等需求。

▲ 户型示意图

▲ 户型示意图
超大公共平台与空中花园
空中花园绿化率达到60%,公共平台绿化率达到40%,采用自动化灌溉系统,确保绿植常年水分充足。

三木•乐府
设计单位:尚恩设计
三木乐府,作为长乐首座第四代住宅,相较于同类产品,在社区立面的设计、户型空间尺度、露台设置的均衡性及户型利用率上全面提升,为城市的人居方式进行了彻底的迭代更新。

▲ 项目效果图

示意图,仅供参考
以建面约170㎡偶数层户型为例,做到了大别墅才有的“爽点”。五开间朝南,采光率更高,生活起居面面向阳。四房两厅三卫,南向双主卧设计,独占空中景观,这也是奢宅的无形资产。

▲ 建面约170㎡奇数层


福州·江山天悦
设计单位:G.Y广宇设计
江山天悦地处连江县中心地带东侧,商业、交通、文教、景观资源完善,出行自在纵横,归来繁华在握,拥享城市臻稀之境。不负连江稀贵城芯热土,广宇设计打造惊艳现象级园林生态大盘,以“花园”作为设计的灵魂,为每家每户实现空中庭院理想,塑造连江第四代生态住宅典范,引领中心城东片区的崛起,实现连江的战略升级。
△效果图过程稿,不作为交付承诺
“立体”在于拥有立面与自然融合的“垂直森林”,“生态”在于让每家每户都有一座“私家空中花园”。创新性生态立面设计颠覆传统住宅立面的平铺直叙,在统一的序列中寻找自然的律动与和谐。
△效果图过程稿,不作为交付承诺
广宇设计采取元素符号景观提取转译,将景观元素应用于立面高层大线条处,通过再设计实现丰富观感;将古建元素应用于高层转角阳台,通过弧面玻璃反射效果,形成兼具传统美学与文艺美学特征的立面形象,影显项目的独特性和尊贵感。建筑长出森境,自然包裹立面,层层叠翠,筑就一座会呼吸的城市“森林”。
△效果图过程稿,不作为交付承诺
广宇设计竭力营造生活的仪式感和归家的身份感,超大尺度归家入口溯源中国传统建筑精髓,大气恢弘,尽显大宅气韵,奢享归家仪式。
△效果图过程稿,不作为交付承诺
福州·龙山云起
设计单位:G.Y广宇设计
龙山云起地处福清城市中心区域,临近融宽环路(福东大道)城市主干道,交通便捷,周围教育、景观等配套资源完善,其地理位置的重要性不言而喻。
△效果图过程稿,不作为交付承诺
空间布局采用“四轴一心”的划分方式,以中心景观轴串联地块内部,形成中心花园,共享主轴景观,令社区仿若围合于一片绿意中,给予居者全方位的健康生态享受。尊享大堂、景观中庭、阳光花园、宅间小路、雅致门厅五重归家礼序,结合“四水归堂”的布局形式,打造一个公园、花园与社区、家园之间的沟通界面,使人们能够享受到更加绿色的环境,让人与自然更加和谐的相处。
广宇设计决心充分利用项目的地理优势及自然资源,以先锋建筑艺术对话未来,改变传统鸟笼的居住模式,以高层建筑与多层建筑组合打造多重生态系统、景观艺术性相结合的生态性住区,将其打造成为福清最具标志性的住宅区,为居者献上理想人居之所。
△效果图过程稿,不作为交付承诺
△效果图过程稿,不作为交付承诺
建筑采用现代古典风格,与景观呈现有机互动,仿佛一颗绿洲上的明珠,气质与美学达成高度统一。突出轴线,均衡对称的精致结构与造型,为城市提供大气灵动的城市形象面,一切美好向往,从这里开始。
△效果图过程稿,不作为交付承诺
△效果图过程稿,不作为交付承诺
立面材质以玻璃、石材有机结合,与绿色植被包裹相容,呈现晶莹质感,勾勒出富有层次感的线性语言,打造精致高品质的人居社区,内敛而不张扬,宁静且有温度。夜景灯光对建筑立面重要细部结构进行刻画,既强调了建筑本身的个性特征,又保证了其与周边环境的整体协调,无论远眺或是近观,都别有一番风情。
△户型图,不作为交付承诺
△户型图,不作为交付承诺
华丽的装饰与大气的落客空间尺度,超长弧线界面塑造尊享酒店式超大尺度归家入口,恢宏大气,气象万千,全方位塑造归家仪式感与尊崇感。
△效果图过程稿,不作为交付承诺
福州国贸天琴湾
设计单位:北京柏涛
项目位于闽江北岸CBD核心,生活配套繁华便利,道路交通汇集顺达,临江而居,距闽江直线距离仅0.5公里。建筑位于闽江沿岸倒U形城市天际线端点,与闽江、江岸城市亲水公园和市民广场共同构成了独特的绿色景观通廊,环境条件十分优越。


福州国贸天琴湾属于国贸地产顶级品系,客群定位高端,地域资源优秀,产品面积段240~280㎡。项目设计以立体花园作为项目打造目标,以“空中花园”作为设计的灵魂,最终呈现生长于自然的立体生态住宅。
项目设计把空中花园转译为两层高、奇偶层错位设置的大进深阳台。空中花园:每套的私属花园,从户内进入。空中园林街巷:每层的公共花园,从核心筒进入。
客餐方厅整体凸出,270°生态景观花园始终围绕客餐厅奇偶层错位设置,家庭生活中所有的公区活动都可以与室外有机联系。

每一层住户都可以从客餐厅任意位置进入私属空中花园,无差别体验新型生态住宅带来的阳光和空气。
公共休闲花园的位置在南北向、奇偶层错动布置,与私属花园形成互补与平衡,确保每一户都享有品质相当的绿化空间。

▲ 项目实景图

▲ 项目实景图

▲ 项目实景图
270°生态景观花园——两层高私家花园始终围绕客餐起居空间,配以超大落地窗,天空和江景一览无余。
公共休闲绿化平台 ——内凹式巧妙设置公共休闲绿化平台,与户内空间完全脱开,既不会对户内造成遮挡,又与核心筒公区直接连接。超乎想象的户外空间面积,令其功能和场景更为多元化,真正实现生态住宅的花园生活。

▲ 偶数层平面

▲ 268㎡奇数层平面

▲ 样板间实景图
国贸•天琴樾
设计单位:尚恩设计
国贸天琴樾深入研究了实际的用户实用场景,即全家庭人群对静谧性,以及多种家庭生活方式的需求,采取了双阳台的产品设计。

国贸天琴樾通过每层每户都有南向阳台+创新奇偶错层空中花园设计,实现观景、采光“平等化”,从根本上规避了奇偶户型的差距,保证了全部户型都可以实现很好的宜居效果。

▲国贸天琴樾效果

▲国贸天琴樾户型图

▲ 国贸天琴樾样板间实景图
保利·国贸天琴湖
设计单位:北京柏涛

项目定位高端改善住宅,为国贸地产高端天琴系产品,采用第四代立体生态住宅,将传统建筑引入多重空中花园系统,以人为本,体现生态宜居理念。



建筑立面基于天琴系海洋美学的设计风格,在此基础上再次做了提升与优化。建筑整体采用横线条、中轴对称方式呈现出建筑的延展与轻盈的姿态。横向银白色的线条,通过宽、窄的变化和端部倒角的曲面化处理,消除建筑锐度,增强建筑柔和感与平衡性。
▲项目效果图
在灰色背景基调基础上,柔美的横向白色线条与格栅的对比与融合,打破了传统现代建筑的灰白色调性。横向线条利用铝型材及混凝土外刷漆的构造方式,通过细节设计的把控,将当代设计语言和精工工艺体现的淋漓尽致,赋予建筑以灵动、舒展、典雅的气质,并给人以无限遐思。

▲项目效果图
高低错落的空中露台,将花园搬到空中,赋予绿意盎然的自然观感,让建筑与自然对话。
保利·天珺
设计单位:上海柏涛

保利天珺的户型以187㎡户型为主。并独创了“π字形”的户型。
户型横向和纵向两个方向都设置了规整的方形庭院,不同于以往L形庭院,庭院空间更完整、尺度更舒展,绿化面积更集中。而且能够让住宅被植物完整包裹,形成360度超大景观视野,透过客厅或者房间,都能有庭院深深的既视感。
保利天珺以宝格丽酒店风为参考,用纯天然的奢石,打造了一个约60米的门庭。社区可以小而精致,豪宅的大门必须还是奢阔担当!
▲ 保利天珺社区大门效果图
入户大堂挑高7米,车库的入户大堂达到了3.4米,双入户大堂都是顶奢酒店级的配置。

▲ 保利天珺入户大门效果图
▲ 保利天珺效果图
榕发•麓里云筑
设计单位:尚恩设计
榕发深研人居未来发展趋势,以独木成林的顽强基因赋能第四代生态住宅,突破豪宅规制,倚生长之势繁衍的柱状建筑元素,打造层级丰富的建筑形象,为福州第四代生态住宅打开新局面。

▲效果图丨以最终交付为准


▲ 项目效果图
设计回归传统人居理念,利用270°环绕景观打造错层全景露台,奇偶层露台错位,形成通高院落及多维度的城市上空森野谧境。露台通过使用弧形精工化建筑线条及通透天幕玻璃立面,增加建筑的流畅感和未来感,打造奥体片区独特IP标杆形象。
为打造尊贵怡人的归家环境,塑造美好社区生活,设计构建了一种独特的“酒店式的生活方式:53米超长酒店式社区入口,将仪式化、品质化、功能化、 便捷化、人性化贯穿于归家体系的每个角落,打造酒店式品质入户大堂,构筑归家礼仪空间。



咨询微信:soujianzhu03
咨询微信:soujianzhu008
2024年·新产品方向
《 品牌地产 | 精品楼盘活动 》
杭州、苏州、上海
成都、郑州......
广州、福州、重庆
西安、青岛......
扫描二维码 加好友咨询
领队微信:soujianzhu03
本资料声明:
1.本文为建筑设计技术分析,仅供欣赏学习。
2.本资料为要约邀请,不视为要约,所有政府、政策信息均来源于官方披露信息,具体以实物、政府主管部门批准文件及买卖双方签订的商品房买卖合同约定为准。如有变化恕不另行通知。
3.因编辑需要,文字和图片无必然联系,仅供读者参考;
推荐关注
全球精品楼盘考察
扫描二维码关注
微信公众号:全球精品楼盘考察
合作、宣传、投稿
联系微信:soujianzhu006





