▲ 更多精品,关注“搜建筑”
跨越百年的产品对话
145㎡户型产品力创新升维
UA尤安设计
本文摘录自UA尤安设计董事 | 总经理陈磊先生的分享内容,UA对145㎡产品力创新户型进行展示,并表示将继续携手行业知名研究力量,在未来推动更多符合客户需求的创新产品落地。
寻找使用者的
愿望清单
当住宅市场进入下半场,住宅设计不仅要提升品质能力,更要完成把消费者的需求在物理场景中实现的重要使命。我们总是在预测下一代产品,往往忽略了"好的产品,永不过时"。UA在立足当下的同时,也开启跨越百年的“客研”,深度挖掘末端使用者的需求和主观感受,提供更有生命力的户型产品力提升策略。
1923-1938
一次跨越百年的“客研”
百年以来,人们具体的居住需求总有相似的诉求,而好的产品始终都在致力于解决这些诉求并进行优化。勒·柯布西耶的雷曼湖畔母亲宅、格里特·托马斯·里特维尔德的施罗德住宅、阿尔瓦·阿尔托的梅丽娅别墅作为三个历史经典案例,为我们展现了即使是百年之前,许多设计亮点也极具现代意义:比如关爱老人的行动动线、儿童房可分可合的设计、人和建筑和花园的三位一体、公区复合化的设计。
勒·柯布西耶 | 雷曼湖畔母亲宅
▲一体化的便捷家政动线©图片源于网络
这是柯布西耶为父母量身打造的住宅,在设计之初,他就考虑到住宅适老化对家政、功能一体性的要求,打造了私密的老人生活动线、内部配套,并提供良好的景观视野,帮助老人实现便利且惬意的生活。
格里特·托马斯·里特维尔德 | 施罗德住宅
施罗德夫人作为屋主,提出了设计应当从能够迎接日出的二楼开始的愿望,并且希望能给子女提供更宽敞开放的活动空间,关怀下一代的自由成长与发展可能。
阿尔瓦·阿尔托 | 梅丽娅别墅
▲流动自由的公区©图片源于网络
别墅周围有着茂密的树林,建筑实现了“人、房间和花园展现‘三位一体’”,采用复合化的LDK实现流动自由的公区,将空间引入自然,同时也呼应了屋主对精神生活的追求,关怀使用者的精神提升。
2019-2021
关注“城市大多数”
回到当下的市场,要推动产品力的进一步提升,设计关键在于实现对大多数使用者的服务,即关注“城市大多数”的生活痛点。UA从使用者真实的潜在需求出发,提出了由访谈到调研、由调研到愿望清单、由愿望清单到场景化模块解读的物化产品设计研发策略。
▲立足客研的UA产品研发策略
▲UA户型大咖俱乐部头脑风暴现场
结合客研数据,我们了解到家政、多子女、家庭陪伴、工作压力、代际关系等在百年前就被归纳总结而出的人居生活诉求,依然是现代人的普遍痛点。其中,产品痛点包括收纳、社区入口、精装自由等,生活痛点包括二孩三孩成长空间、家政耗时长等。
▲百年来共同的人居生活痛点
满足使用者潜在需求
145产品创新提升
通过分析客户的具体需求并加以提炼,UA寻找到使用者(不)能说的潜在愿望清单,建立如餐厅、主卧、厨卫等模块进行研究,以市场上较为常见的成熟145产品为研究模板,在其基础上分析各模块可优化的细节,提出全面提升的解决方案。
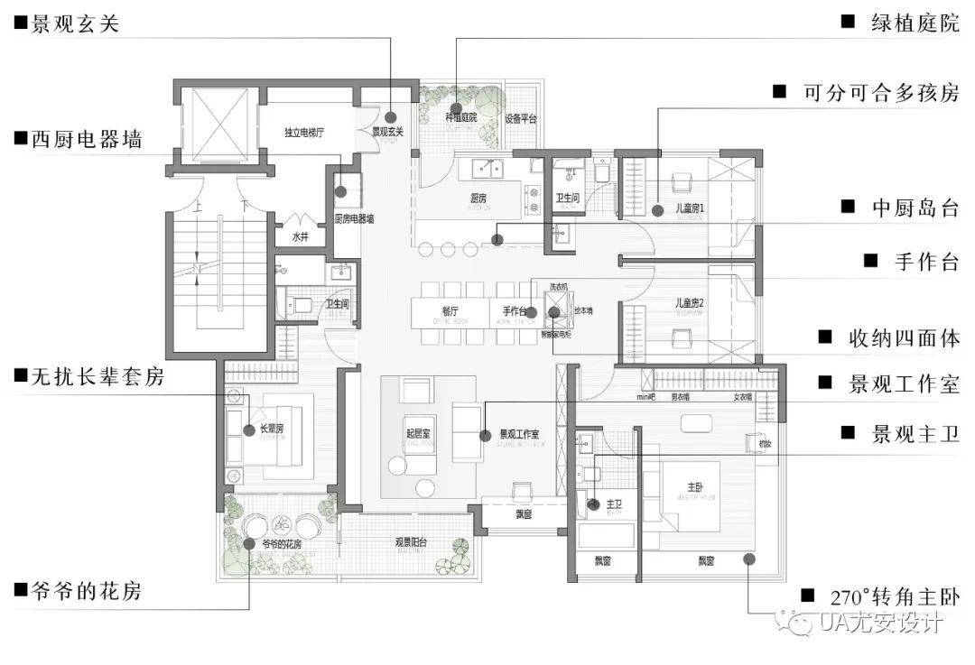
纯粹作为分割功能而使用的玄关空间缺少品质感与差异化,采用景观玄关的设计,能帮助使用者更为放松解压,提供推门即景的精神享受,使内部与自然更进一步融合。
▲与种植庭院相连的玄关模块
西厨设置电器墙与香草种植区,令厨房不再是孤立化的后勤空间,而是让下厨成为疗愈的过程,做菜时也能与家人互动,并通过更宽阔的岛台丰富生活的使用场景。
▲降低封闭感的厨房模块
餐厅被改变原本单一的使用属性,在用餐之外设置手作台的空间,让使用者不再仅仅只能在用餐时利用公区核心,更为父母与孩子提供一起做手工的成长空间。
▲增加使用功能的手作餐厅模块
为更好地应对多孩家庭的实际需要,儿童房与主卧区之间不设置承重墙,并将湿区放置在外部,儿童房根据不同的子女结构可分可合,与主卧的关系灵动可变,便于亲子之间、儿童之间的灵活使用。
在中心位置设置收纳四面体,解决传统收纳形式带来的利用率不足的问题,容量是独立收纳间的1.8倍,并容纳洗烘设备及智能清洁电器,让家政工作成为随手交给机器解决的事情。
▲一步到位的家政收纳模块
卧室打破“酒店套房”式的呆板公式化设置,而是充分利用转角视野,在传统大面宽的基础上增加景观的丰富度,并设置扩大的开敞式衣帽间,为用户提供私密且不受干扰的疗愈空间。
▲扩大景观视野的卧室模块
书房不再是封闭的、被占用的空间,为了让居住者不再“对着墙壁工作”,工作室面向窗外,提供既能与家人互动,也能随时远眺的工作环境。
▲更具通透感的工作室模块
老人房不应只是子女家中仅拥有一张床铺的客房,而是应配有不受打扰的独立洗浴、衣帽间与阳台空间,为长辈送来悠闲品茶晒太阳的时光。
▲独立宜人的老人房模块
UA创新户型的功能亮点模块
是对使用者生活痛点与价值提升的
一次全面的、综合性的解读。
Before
After
我们将市场成熟的4室1厅户型,
升级为可变的三代成长户型,
让空间褪去单一使用功能,
演化为更贴近真实生活场景的灵活可能,
也呼应了跨越百年的设计经典理念传承。
参考文献▼
[1]
勒·柯布西耶:《走向新建筑》,陕西师范大学出版社,2004年
[2]
贾冬婷,黑麦:《理想的居所——建筑大师与他们的自宅》,中信出版集团,2019年
[3]
阿尔瓦·阿尔托:《从台阶到起居室》,引自《Alvar Aalto in His Own Words》,Rizzoli,1998年
[4]
项瑾斐:《施罗德住宅及其历史意义研究》,清华大学,2005年
UA研发中心
R&D Center
作为一家具有创新精神的学院派设计公司,UA尤安设计早在2014年成立研发中心。UA研发中心拥有丰富的产品研发经验,研究内容涵盖规划、居住、公建等领域,未来,将在公司优势领域方向持续深入的研究,进一步完善以“研发指导项目,项目促进研发”的运行机制,为业主提供综合解决方案。
本资料声明:
1.本文为建筑设计技术分析,仅供欣赏学习。
2.本资料为要约邀请,不视为要约,所有政府、政策信息均来源于官方披露信息,具体以实物、政府主管部门批准文件及买卖双方签订的商品房买卖合同约定为准。如有变化恕不另行通知。
3.因编辑需要,文字和图片无必然联系,仅供读者参考;

微信公众号“搜建筑”(ID:sjz9999)
合作、宣传、投稿
联系微信:soujianzhu006


