西厨岛台设计形式
① 独立式
是以独立柜体的形式存在,一般位于厨房中心或厨房外部,日常操作流程可围绕它展开。
比如北京中海首开·湖光玖里建筑面积约187㎡户型岛台设计,既可以存放、使用小家电,还能完成配菜、摆盘等简单操作。
北京中海首开·湖光玖里示意图
② 半岛式
依靠一面墙体或橱柜设计而成,既可以做吧台,也能充当传菜口和小操作台,非常适合小户型。

餐厨之间的岛台是点睛之笔,关上推拉门时它是厨房的操作台,打开后就变成整个空间的中心操作台。
再比如天津融创宸阅和鸣建筑面积约79㎡小户型,做了小吧台设计,全明通透,氛围感直接拉满。
③ 延伸式
常常在成形的橱柜上进行台面的延伸,延伸性岛台大大拓展了操作面积,非常适合多人聚餐聚会。
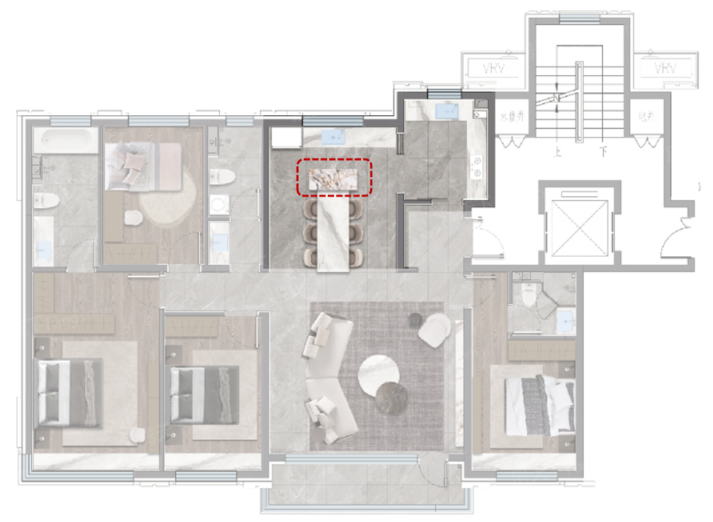
比如济南融创·未来壹号将餐桌融入岛台,能更加节省空间的面积,提高空间的利用效率,让空间在视野上更加开阔。餐厨容纳长桌、圆桌、异形桌、西厨岛台,桌桌都能放下,实现餐厨自由。
济南融创·未来壹号 餐厨示意图

杭州桂冠东方城样板房吧台
当厨房成为可交流的新家庭中心,为年轻人提供更多互动可能性的社交厨房便成了必需。
以岛台为核心的“LDK一体化设计”
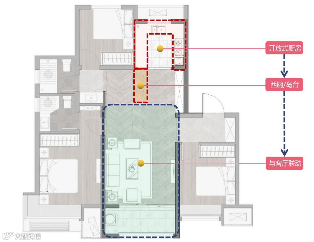
比如济南烯谷国际约113㎡户型,也做了西厨岛台和客厅联动,动线非常流畅,有效提升生活品质。

济南烯谷国际约113㎡户型 示意图

济南烯谷国际约113㎡户型 实景图
岛台可增加大容量收纳
岛台的储物功能仅次于操作台面扩充,岛台上部做操作台,岛台下方的储物空间,可以就当做地柜来设计,做抽屉、柜子或者开放格。
本资料声明:
1.本文为建筑设计技术分析,仅供欣赏学习。
2.本资料为要约邀请,不视为要约,所有政府、政策信息均来源于官方披露信息,具体以实物、政府主管部门批准文件及买卖双方签订的商品房买卖合同约定为准。如有变化恕不另行通知。
3.因编辑需要,文字和图片无必然联系,仅供读者参考;

微信公众号“搜建筑”(ID:sjz9999)
合作、宣传、投稿
联系微信:soujianzhu006


