东莞CBD新地标
“无限流动”的停车空间
GWP设计
△东莞CBD示范性停车楼 © GWP Architects
由GWP设计的东莞CBD示范性停车楼,经历方案推敲和深化设计于2020年定案,在疫情期间高效建设,2021年竣工并投入使用。
△东莞CBD示范性停车楼 © GWP Architects

△东莞CBD示范性停车楼 © GWP Architects
——
东莞CBD示范性停车楼不仅有效缓解了“停车难”的问题,更体现出设计师对建筑功能、美学与在地性的深入思考:将当下商业模式与城市环境融合,使建筑为城市公共生活的人群提供开放、亲切而赋有参与感的场所,这是我们的设计目标和追求所在。
——GWP团队
△东莞CBD示范性停车楼模型 © GWP Architects
01
项目区位
Location Background
△东莞CBD示范性停车楼 © GWP Architects
项目位于莞城区石竹路与体育路交界处,属于东莞市一心两轴的重点核心城区,通往东莞市政府的直线距离约200米且周边城市功能及路网成熟,具有很大的城市可视视角。
△区位分析图 © GWP Architects


△东莞CBD示范性停车楼 © GWP Architects
#
设计难点
Design Difficulties

△东莞CBD示范性停车楼 © GWP Architects
面对项目的功能性和公共性,设计师谨慎且积极地介入这一场地。
常见的停车楼往往以实体或是裸露的机械形式出现,更像是城市中被动的构筑物,甚至给人以刻板的印象。而设计师希望做出些许尝试,让它能够与城市交流,赋予其建筑物的精神属性:
· 流动——体现源自在地的思考,确保行车流线安全合理。
· 体验——在有限空间内提高建筑使用率及空间价值。
02
无限流动的建筑语言
Infinite Flow
△东莞CBD示范性停车楼 © GWP Architects
本案概念灵感结合了东莞水乡独特的蜿蜒水脉以及项目地所在“一心两轴”的核心位置,设计师提出以延伸的两条城市主干道汇为流水灵动般的丝带缠绕,并利用车流动线作为牵引力形成盘旋上升的建筑体态。
在视觉上外立面的曲线形态直接反应了设计理念的真实逻辑,立面语言将周边无序停车的现状重新梳理、扭转并构建空间及城市雕塑,环绕的“丝带”贯穿建筑的每一个角落——曲水流思的设计方式如同河流的漩涡,交融于河流的水波,又各具空间特色。
△东莞CBD示范性停车楼 © GWP Architects
停车楼作为该区域的交通设施从内到外地创造出与周边城市环境相融合的建筑语言——成为新型社区空间和人际关系的新场所。
03
材料的构造
Material And Construction
△东莞CBD示范性停车楼 © GWP Architects
在这个流动曲线的建筑中,建筑表皮无疑是个大挑战,设计师通过分段模块化设计以实现建筑整体且有机的表皮:采用铝板为主体材质,呈现出流动曲线独特的肌理。
△东莞CBD示范性停车楼 © GWP Architects
设计师认为选择铝板材质一方面可满足建筑表皮的流动曲线结构,保持连续弧面的纯净感,铝板构造的连接方式将板块水平缝隙精密衔接,既满足了幕墙的安全性需求,又能使立面光滑。另一方面可以随着时间的荏苒,自然的变化呈现建筑的柔美与蜿蜒起伏流动的效果。
△东莞CBD示范性停车楼 © GWP Architects
04
流线赋予高效体验
Curves Empowers Efficient Experiences
△东莞CBD示范性停车楼 © GWP Architects
高效的结构和动态流线是停车楼的设计核心。在平面动线上采用人车分流,一方面针对车辆类型设置了独立的交通流线,以保证面对停车场内突发事件的灵活应对。
同时利用斜板停车结构,使之比普通的平板停车结构利用率提高了30%,可以增加25%的有效泊车位,从而更加高效地解决周边市中心地区一位难求的停车拥堵问题。
△东莞CBD示范性停车楼 © GWP Architects
另一方面基于使用者的驾驶心理,设计师在建筑的西南段采用了极富表现力且节省空间的螺旋坡道结构,形成一条独立于驶入流线的驶离捷径,将车辆高效快速地从一层引入六层,大大提高了停车的效率,迎合了使用者快速通行的需求。
△东莞CBD示范性停车楼 © GWP Architects
实现最佳的交通流线还需要充足的转弯空间,因此为了使停车率和建筑面积最大化,设计师将建筑转角制定了一套流动的规划策略:将平面向垂直方向“柔和过渡”,以增强建筑的流动性。
05
优化空间界面
Optimize The Space Interface
△东莞CBD示范性停车楼 © GWP Architects
区别于传统停车楼带给人们拥挤、通风差的停车体验,设计师在建筑内部置入中庭空间打破场所的封闭感,既丰富了停车时的视觉体验又促进场地的空气流通,利用“无限流动”的结构将车辆行驶带来的汽车尾气经由自然呼吸的中庭空间输出到室外,使氧气通过立面上丝带环绕的缝隙补充进来,从而形成了空气的良性循环。此外,中庭作为人们提供建筑方位感的空间中心,同时起到转换空间氛围、提供记忆坐标的作用。
△中庭空气循环分析 © GWP Architects


06
结语
Conclusion
△东莞CBD示范性停车楼 © GWP Architects

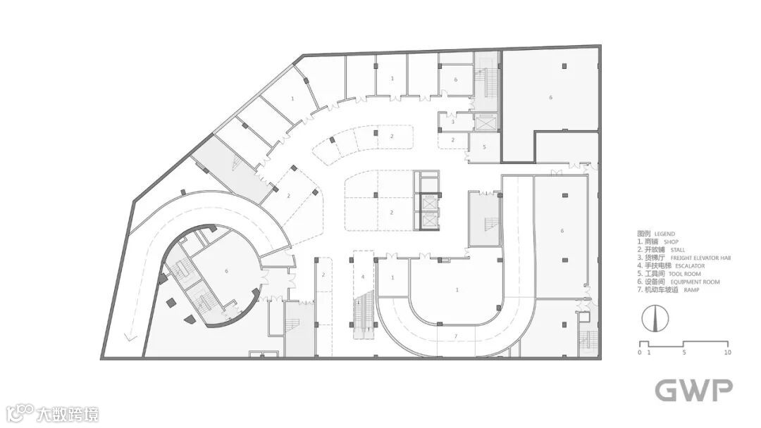
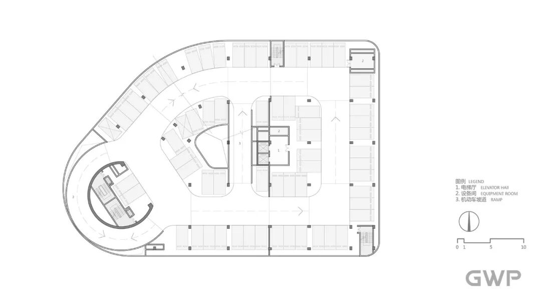
△东莞CBD示范性停车楼首层总平面 © GWP Architects

△东莞CBD示范性停车楼负一层平面 © GWP Architects

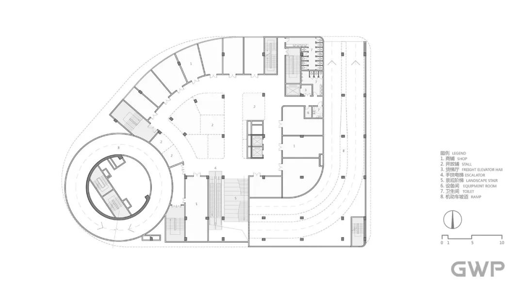
△东莞CBD示范性停车楼二层平面 © GWP Architects

△东莞CBD示范性停车楼四层平面 © GWP Architects

△东莞CBD示范性停车楼立面 © GWP Architects

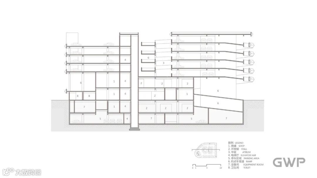
△东莞CBD示范性停车楼剖面 © GWP Architects

△东莞CBD示范性停车楼剖面 © GWP Architects
摄影:虫二影像
本资料声明:
1.本文为建筑设计技术分析,仅供欣赏学习。
2.本资料为要约邀请,不视为要约,所有政府、政策信息均来源于官方披露信息,具体以实物、政府主管部门批准文件及买卖双方签订的商品房买卖合同约定为准。如有变化恕不另行通知。
3.因编辑需要,文字和图片无必然联系,仅供读者参考;

微信公众号“搜建筑”(ID:sjz9999)
合作、宣传、投稿
联系微信:soujianzhu006

