▲ 更多精品,关注“搜建筑”

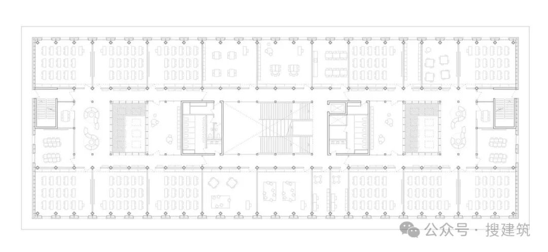
在路德维希堡西部,新的 5.5 车道小学教学楼沿着富希霍夫大街新开发区向北延伸。根据操场上装满书的书架这一设计形象,将知识传授和社会交往之间的学校学习理想转化为一栋木质混合建筑。三块天花板像书架一样向外悬挑,在流动的室外场地中央为学校社区提供了占用和个人填充的空间。一楼的建筑立方体中开辟了一个有顶棚的区域,迎接孩子们的到来,该区域与行政区域平行,旁边是学校教职员工的房间,从而促进了师生之间的联系。进入教学楼后,你会发现自己来到了教学楼的核心区域--大楼梯大厅。
In the west of Ludwigsburg, the new 5.5-track primary school building stretches northwards along the new development area of Fuchshofstrasse. Based on the design image of a filled bookshelf on a playground, this ideal of school learning between knowledge transfer and social interaction was translated into a timber hybrid building. The three ceiling panels cantilever outwards like shelves and offer the school community space for appropriation and individual filling in the middle of a flowing outdoor area. A covered area cut into the building cubature on the first floor welcomes the children and runs parallel to the administration area, alongside the rooms for the school staff, thus promoting contact between students and teachers. As you enter the building, you find yourself in the actual heart of the building - the large stair hall.

设计醒目的木质楼梯穿过露天空间,并由一个宽敞的天窗照亮。楼梯大厅不仅是入口区和学校操场之间的平滑过渡,也是休息和公共区域,是非正式交流的场所。楼梯大厅也是各楼层之间的连接和分配器。餐厅位于中央楼梯大厅的东侧,其多功能用途和毗邻的俱乐部厨房给人留下了深刻印象,是一个开放式的功能性会议场所。建筑两侧的大型玻璃窗为公共活动室提供了充足的日光,并将室内与室外区域连接起来。
A strikingly designed wooden staircase comes through the open-air space and is illuminated by a generous skylight with coffered beams. The staircase hall not only provides a smooth transition between the entrance area and the schoolyard but also serves as a break and communal area as a place for informal interaction. The staircase hall is also the link and distributor to the individual floors. The cafeteria is located on the eastern side of the central stair hall, which impresses with its multifunctional use and the adjoining club kitchen as an open, functional meeting place. Large-scale glazing on both sides of the building floods the common room with daylight and connects the interior with the outside area.

学校社区和学习小组之间的空间区分--在高层,中央楼梯大厅两侧各有一个学习小组。在内庭的照耀下,一个清晰的空间中心被组织起来,成为学习小组的理想中心。专家室、日托室和融合室分布在楼梯大厅两侧,连接着各学习小组。在这些房间之间,有一个内部混凝土核心区,内有所有服务设施,如各个学习单元的卫生设施。与教学楼群相连的是各个教室,教室通过至少三扇落地窗与周围的凉台相连。这不仅是一个逃生阳台,还可用作休息室,并能快速、方便地呼吸新鲜空气。铁丝网可作为周围阳台的防坠落装置,同时还能让教室获得充足的日光。
Spatial differentiation between school community and learning group - On the upper floors, there is a learning cluster on each side of the central stair hall. Illuminated by the inner courtyard, a clear spatial center is organized and indicates the ideal center of the learning group. Specialist, daycare and inclusion rooms are organized flanking the staircase hall and connecting the learning clusters. In between, there are interior concrete cores containing all the service facilities, such as the sanitary facilities for the individual learning units. Connected to the clusters are the individual classrooms, which are connected to the surrounding, pergola-like balcony by at least three French windows. This not only serves as an escape balcony but can also be used as a break room and allows quick and easy access to fresh air. A wire mesh serves as fall protection for the surrounding balcony and at the same time allows plenty of daylight into the classrooms.

材料和颜色突出了校舍的可持续发展诉求 - 混凝土地下室狭窄的两侧设有两个应急楼梯,也起到加固建筑的作用。由预制构件组成的木结构建筑在坚固的结构之间发展:十字形的木柱以其醒目的形式在空间上构成了平面图,使其具有尺度和韵律,并与胶合梁和交叉层压木板一起,完成了骨架结构中的支撑结构。由于所有木材构件均采用不受天气影响的预制方式,学校建筑可以低排放、低成本地建成,这首先得益于所有参与施工人员的精确工作,因为预制木结构的规划最终必须与施工现场的现浇混凝土公差进行非常精确的协调。
Materials and colors underline the sustainable claim of the school building - Two emergency staircases rise on the narrow sides of the concrete basement, which also serve to reinforce the building. The timber construction made of prefabricated elements develops between this solid structure: Cross-shaped timber columns with their striking form structure the floor plan spatially, giving it measure and rhythm and, together with glulam beams and cross-laminated timber panels, complete the supporting structure in the skeleton construction. Thanks to the weather-independent prefabrication of all timber components, the school building could be erected with low emissions and at low cost - this was also and above all made possible by the precise work of all those involved in the construction, as the planning for the timber construction in prefabrication ultimately had to be very precisely coordinated with the tolerances of the in-situ concrete on the construction site.

教学楼的室内设计以天然材料和色彩为特色:油毡地板上嵌有纹理丰富的可可壳碎片,天花板采用天然、隔音效果好的木丝,柱子、门和家具采用釉面木构件,与大气、沉稳的基本色调和粗锯裸露的混凝土结构相得益彰。色彩不仅是一种设计元素,也是一种定位和身份识别的手段。色彩概念还体现在建筑群中,其中包括专为福克肖夫学院制作的家具,可以将桌子和长凳组合成各种社区建设形状,从圆形到蛇形线条。这样,从室外空间到公共区域,从学习群的社区建设中心到实际教室,设计理念得到了充分的体现。
The interior of the school building is characterized by natural materials and colors: a linoleum floor with embedded pieces of textured cocoa shells, natural, acoustically effective wood wool ceiling elements and glazed wooden components for columns, doors and furniture complement the atmospheric, calm basic tone with a rough-sawn exposed concrete structure, while the color concept is accentuated throughout the interior spaces, including the sanitary facilities, and deliberately focuses on a gender-neutral character. The colors serve not only as a design element but also as a means of orientation and identity. The color concept is also reflected in the clusters, which include furniture specially made for the Fuchshofschule that can be arranged as table and bench combinations in various community-building shapes, from circles to serpentine lines. The design concept thus comes full circle from the outdoor spaces to the communal areas and the community-building centers of the learning clusters to the actual classrooms.

分析图
项目信息
建筑师:VON M
地点:德国
面积:30500 m²
年份:2023
本资料声明:
1.本文为建筑设计技术分析,仅供欣赏学习。
2.本资料为要约邀请,不视为要约,所有政府、政策信息均来源于官方披露信息,具体以实物、政府主管部门批准文件及买卖双方签订的商品房买卖合同约定为准。如有变化恕不另行通知。
3.因编辑需要,文字和图片无必然联系,仅供读者参考;

合作、宣传、投稿
联系微信:soujianzhu006