“望山”浙南生态制水厂
POA作品
诗画浙江、山海苍南。拥有独特山海景观的浙江苍南,被誉为浙江的“南大门”。浙南生态制水厂规划构思,以山引水,以水点题;一半山水,一半城。在这山水之间,将自然和人文完美结合,本案落成将成为浙南区域城市发展又一生态坐标,使得该区域成为现代的,面向世界展示文化自信的窗口。——HUISI
HUISI+LIN HAO带领的POA建筑师事务所发布“望山”浙南生态制水厂建筑方案设计。该项目做为浙南区域的重要城市基础功能设施,为市民提供生态清洁的饮用水的同时,也为活跃地方经济并创造就业和政府税收做出贡献;目前建筑已经进入施工阶段,预计2025年建成。
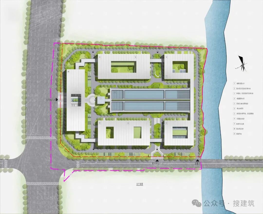
项目位于苍南县钱库镇龙金大道以南,中梁天樾铭筑以东地块。用地面积47573平方米,总建筑面积13080㎡,其中地上面积9480㎡,地下面积600㎡。北侧龙金大道为城市门户通道,是重要的城市展示面;南侧沿河视野开阔,生态景观资源丰富;西侧为幼儿园及新中式高层,需考虑日照关系并避开污染源。
人在山中行,如在画中游。本案设计以山为骨架,以水为空间;山水相拥,山水相融。有机组合的合院空间群组,以中心庭院为核心,东西形成空间主轴,南北向形成礼序轴,庭院层层递进,开合有度。北侧为厂前区,设置一栋综合办公用房,并设计独立人行入口。机动车出入口及后勤口设置在地块西侧,人行入口设置在地块北侧,三股流线相互独立,又实现人车分流。厂前区综合用房两侧预留用地空间,为将来功能拓展留下弹性空间。
天际线设计顺接西侧高层住宅及多层幼儿园,形成完美的抛物线,将“山形”刻画;打开南侧沿河视野,“引水入园”,最大限度利用生态景观资源。在北侧金龙大道塑造完整的展示面,整体形成南低北高,东西高中间低,向中心汇聚的空间格局。“四水归堂、藏风聚气”,用现代手法诠释中国传统建筑的精髓,是文化自信也是文化回归。以承载人文为内涵,以生态自然为底色,立面设计采用现代中式风格,与西侧住宅形成统一风格。
望山闻道,叠山见宝,观山听音。空间序列一次打开,领略“落霞与孤鹜齐飞, 秋水共长天一色”的恢宏开阔,又同时品味“一叶舟轻,双桨鸿惊”的婉约烂漫。总图设计依循传统官方建筑的严谨中轴线,立面形态采用极简的手法,注重比例和建筑尺度的控制。模块化的设计体现工业建筑的简洁高效,雅俗的建筑表达营造了精致高级的场所调性。
清风明月本无价,亲水远山皆有情。我们不仅仅在设计一座生态制水厂,而是充满文化自信和山水情怀的精神家园。
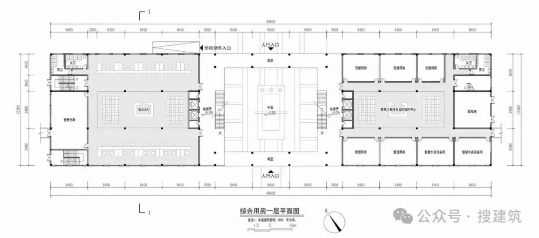
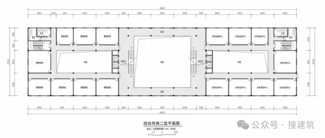
设计图纸 ▽
项目名称:“望山”浙南生态制水厂
项目类型:综合办公+工业厂房
项目地点:浙江苍南
建成状态:建设中
甲方单位:苍南县水务集团有限公司
设计时间:2022年07月~2022年12月
建设时间:2023年~2025年
用地面积:47573平方米
建筑面积:总建筑面积13080㎡,其中地上面积9480㎡,地下面积600㎡
方案设计:POA建筑师事务所
建筑设计:浙江中维建筑工程设计有限公司
市政设计:中国市政工程华北设计研究院总院有限公司
室内设计:Portfolio of Architect Architectural Design (HK) Limited
本资料声明:
1.本文为建筑设计技术分析,仅供欣赏学习。
2.本资料为要约邀请,不视为要约,所有政府、政策信息均来源于官方披露信息,具体以实物、政府主管部门批准文件及买卖双方签订的商品房买卖合同约定为准。如有变化恕不另行通知。
3.因编辑需要,文字和图片无必然联系,仅供读者参考;

微信公众号“搜建筑”(ID:sjz9999)
合作、宣传、投稿
联系微信:soujianzhu006