
佩雷尔曼表演艺术中心(PAC NYC)毗邻纽约市最神圣的遗址,是世贸中心总体规划中的文化基石和最后的公共元素,它将艺术的修复力量作为遗址纪念意义的对立面。作为戏剧、音乐、舞蹈、歌剧和电影的制作中心,纽约皮克艺术中心开创了新的戏剧适应性形式,以增强艺术家的创造力,并使导演们每次到访都能为观众带来新的表演和观赏体验。
Adjacent to New York City’s most hallowed site, the Perelman Performing Arts Center (PAC NYC) is the cultural keystone and final public element in the World Trade Center master plan, embracing the restorative power of art as a counterpoint to the site’s commemorative import. A producing house for theater, music, dance, opera, and film, PAC NYC pioneers new forms of theatrical adaptability to amplify the creativity of its artists and empower directors to surprise patrons with new processions and viewing experiences upon each visit.

建筑的纯粹形式--旋转和升高以适应复杂的地面和地下限制--由半透明的大理石包裹。白天,它是一座优雅的、与书本相匹配的石头建筑,与街对面庄严肃穆的 9/11 纪念碑遥相呼应。到了晚上,这座巨石就会变得非物质化,巧妙地展现出 PAC NYC 内部的创意能量。
The building’s pure form—rotated and elevated to accommodate complex below- and at-grade constraints—is wrapped in translucent marble. By day, the volume is an elegant, bookmatched stone edifice acknowledging the solemnity of the 9/11 Memorial across the street. By night, this monolith dematerializes, subtly revealing PAC NYC’s creative energy inside.

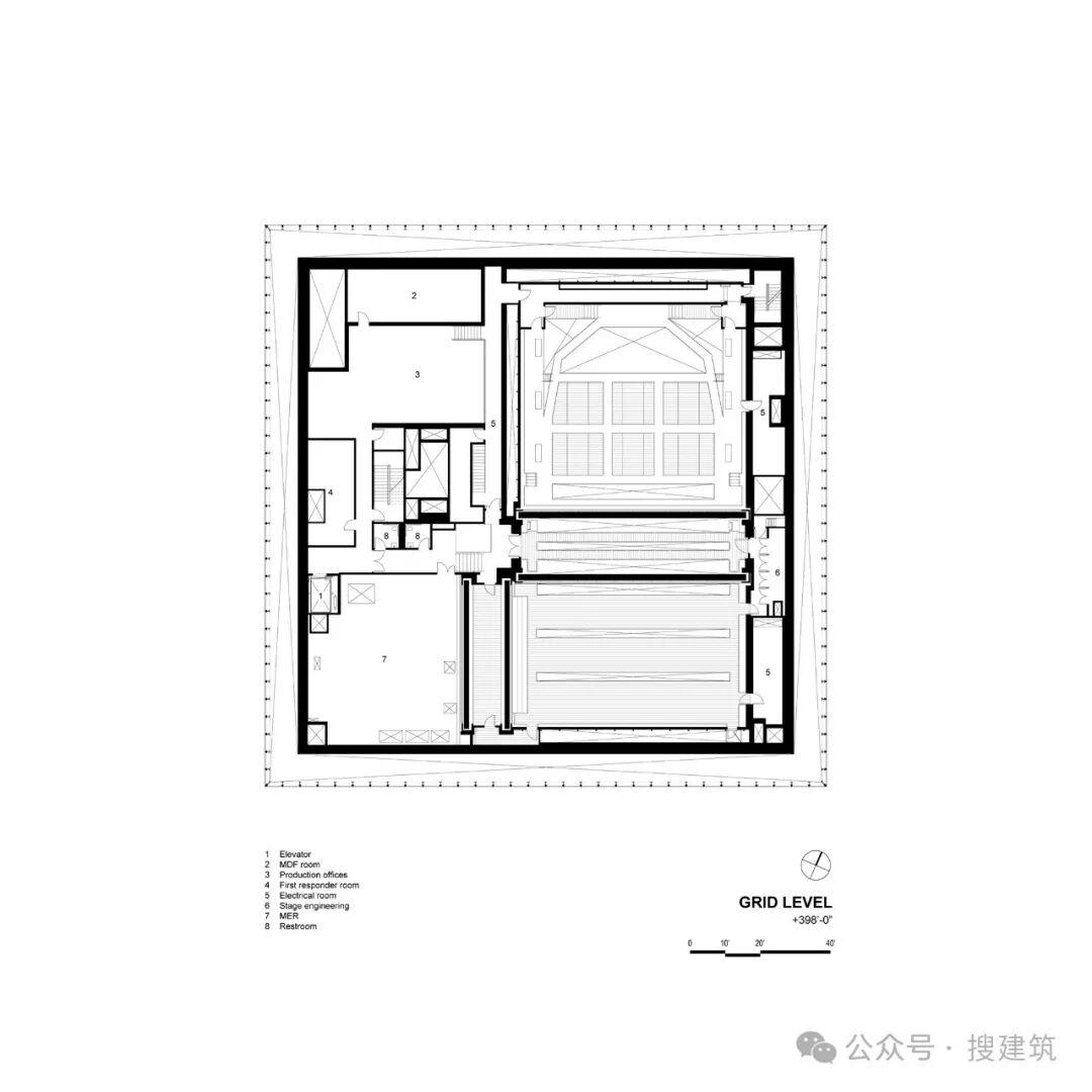
作为一种表演工具,PAC NYC 的剧院和场景码头套件可组合成十(10)种比例,并转换成六十二(62)种舞台-观众配置,座位数从 90 个到 950 个不等。创作团队可以利用自动和手动技术系统工具包对空间进行转换,以满足他们所需的艺术表现形式和观众体验。这些系统包括四面声学 "断头台 "墙;四个可移动的座位塔(用于庭院式、马蹄式、环绕式、推进式和其他形式);一个两层的走台和可行走的网格系统;56 个 "螺旋升降台",可将剧院的地面塑造成多种几何形状;以及多个可移动的走台和观众阳台。
A performance instrument, PAC NYC’s suite of theaters and scene docks can combine into ten (10) proportions and transform into sixty-two (62) stage-audience configurations, from 90 to 950 seats. Creative teams can transmute the spaces to fulfill their desired artistic expressions and audience experiences using a toolkit of automated and manual technical systems. They include four acoustic “guillotine” walls; four movable seating towers (for courtyard, horseshoe, in-the-round, thrust, and other formats); a two-tiered catwalk and walkable grid system; 56 “spiralifts” to mold the theaters’ floor into manifold geometries; and several removable catwalks and audience balconies.

此外,剧院周围的可变区域由八个隔音门、十字形的场景停靠点/集会处以及外围的循环环路组成,可以将这些区域中的任何一个分配为前厅或后厅,形成意想不到的大厅和演出前厅。四部电梯/楼梯也可单独使用或组合使用,从大堂开始形成不同的循环序列。由于这种巨大的灵活性,纽约 PAC 不断给观众带来惊喜,成为一个 "神秘的盒子",其体验完全由每位导演的想象力编排。
urther, a zone of mutability around the theaters—composed of eight acoustic doors, the cruciform of scene docks/assemblies, and a peripheral circulation loop—allows any of these areas to be allocated as front- or back-of-house and form unexpected lobbies and performance antechambers. Four elevator/stair couplets can also be used individually or in combination, creating diverse circulation sequences from the lobby. As a result of this immense flexibility, PAC NYC is a constant source of surprise for patrons, a “Mystery Box” whose experiences are scripted entirely by each director’s imagination.

为了在灵活多变的环境中(观众席的大小和比例可变;舞台和观众席的位置可变;声音和乐器可扩音或不扩音)提供卓越的室内声学效果,剧院的设计在听觉上类似于一个无边界、漫无边际的 "林间空地"。四周的树墙--随机的实体和空隙--保留了声能,但没有留下明确的听觉特征:这是一个理想的环境,可以为每种表演配置量身定制特定的声景。
To provide exceptional room acoustics within a radically flexible environment (with variable auditorium sizes and proportions; manifold possible stage and audience locations; and voices and instruments, both amplified and unamplified), the theaters are designed to aurally resemble a boundaryless, diffuse “forest clearing.” A perimeter wall of trees—with its random solids and voids—retains acoustic energy without imprinting a defined auditory signature: the ideal environment into which specific soundscapes can be tailored for each performance configuration.

为了模仿林中空地的几何形状,我们使用皇冠造型刀从胡桃木上切下了三块木板,分别有一个、两个和三个 "勺子",这样做非常经济有效。由于每块木板边缘的勺子半径一致,因此无论木板如何排列或旋转,都能相互连接。这样,木板的组合方式就有 258 种。木板的几何形状、排列方式以及它们之间的空隙都是由声学专家和建筑师反复设计和测试的,目的是以一种经济有效的标准化方式形成一个有效的随机表面。
To emulate a forest clearing’s geometry, a system of three planks—with one, two, and three “scoops”—were cost-effectively ripped out of walnut using crown molding knives. Because the scoops at the edge of each plank are of consistent radius, the planks always marry regardless of their arrangement or rotation. This enables 258 permutations of plank combinations. The plank geometries, their arrangements, and the voids between them were iteratively engineered and tested by the acoustician and architect to form an effectively random surface in a cost-effective and standardized manner.

分析图
项目信息
建筑师:REX ARCHITECTURE
地点:美国
面积:129000 平方英尺
年份:2023
本资料声明:
1.本文为建筑设计技术分析,仅供欣赏学习。
2.本资料为要约邀请,不视为要约,所有政府、政策信息均来源于官方披露信息,具体以实物、政府主管部门批准文件及买卖双方签订的商品房买卖合同约定为准。如有变化恕不另行通知。
3.因编辑需要,文字和图片无必然联系,仅供读者参考;

微信公众号“搜建筑”(ID:sjz9999)
合作、宣传、投稿
联系微信:soujianzhu006