▲ 更多精品,关注“材料公社”
近几年,铝板在建筑、景观设计中应用很广泛,大到建筑外立面,小到景墙的一个分割条,需要金属装饰的时候可能都会使用铝板。
今天我们来看看铝板在示范区的应用设计。

示范区实景图
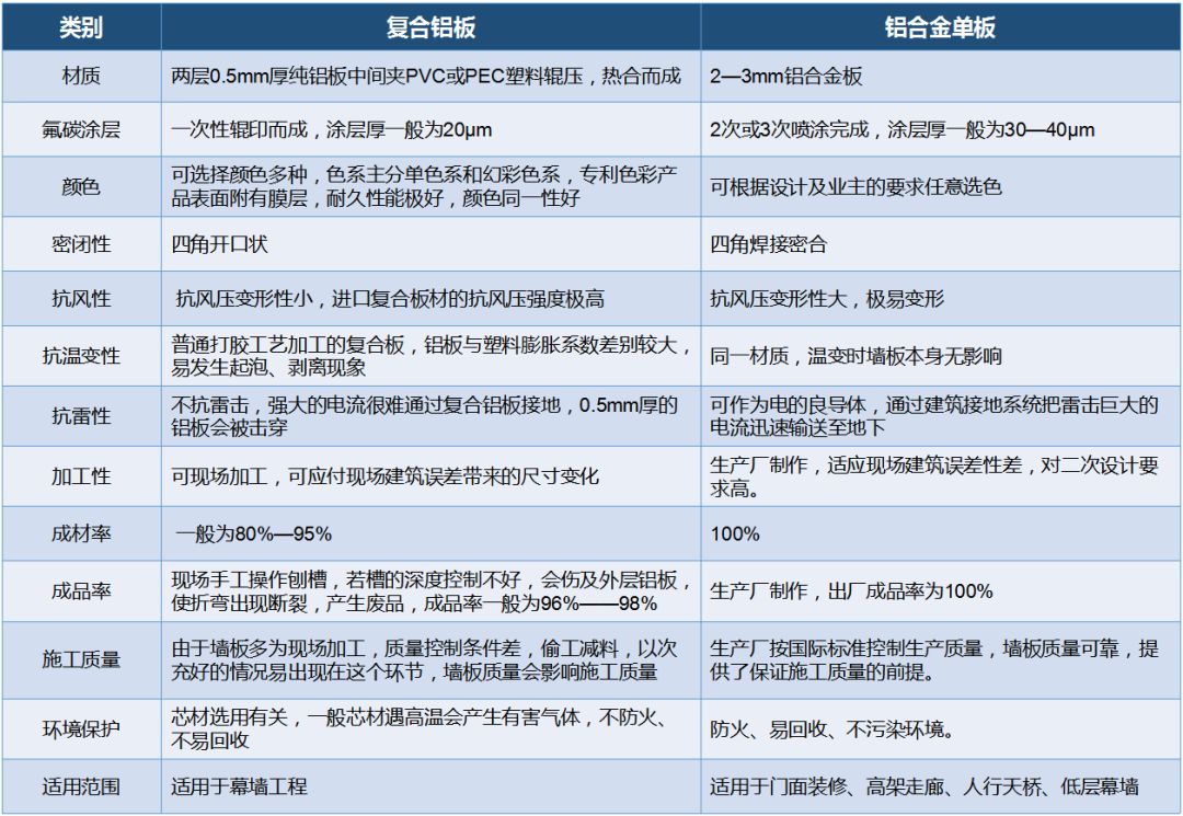
从分类上来说,用于建筑装饰的铝板主要分为“铝单板”和“复合板”两大类型:

对比图(图源网络)
铝单板是指采用铝合金板材为基材,经过铬化等处理后,再经过数控折弯等技术成型,采用氟碳或粉末喷涂技术,加工形成的一种新建筑装饰材料。平时常说的穿孔铝板、仿石材铝板、木纹转印铝板、镜面铝板等都是属于这一类铝板。
铝复合板是一个统称,主要是指通过种种复杂的加工手段将经过化学处理的涂装铝板(铝单板)作为表层材料,复合在适合的基层材料上,最终形成铝复合板。根据复合基层材料的不同,铝复合板具有不同的材料特性。比较常见的如铝塑板、蜂窝铝板等。
下面我们具体来了解一下常见种类。
穿孔铝板
首先我们来看看铝单板中的穿孔铝板。
穿孔铝板是指用纯铝或铝合金材料通过压力加工制成(剪切或锯切)的获得横断面为矩形,厚度均匀的矩形材料。其实就是打了孔的金属铝板,又名冲孔铝板、穿孔金属板、穿孔筛网。

实景图 ©直译建筑 何炼
穿孔铝板和其他金属材料相比,表面很光滑,具有耐高温、耐腐蚀、防火、防潮、防震、结构轻巧稳定、建筑物理环境均好、视线开阔、造型美观等优点,是一种降低噪音并兼有装饰作用的新材料。
冲孔按孔洞规格主要有:长方孔、方孔、菱形孔、圆孔、长圆孔、六角形孔、十字孔、三角孔、长腰孔、梅花孔、鱼鳞孔、图案孔、八字网、人字孔、五角星形孔、不规则孔、起鼓孔、异型孔、百叶孔等。

开孔样式
台州龙湖昱湖壹号张力感十足的圆形穹顶,打造项目昭示性与独特点,结合立面发光立体菱形穿孔铝板,折射着城市的灯光,于喧嚣中剥离,感受一方天地。
建筑二层由776个10mm穿孔板组成,弧形立面呈现出折叠的菱形纹理,其灵感源于不断变化的水面反光。三角形的穿孔板组合方式源于钻石。

晚上立面由来自内部的光源照亮,外墙上起伏的褶皱被进一步凸显出来,使建筑展示出强烈的雕塑感。

城发天悦湾立面提取地块北侧沙溪蜿蜒曲折的流线型元素,融合流光穿梭交织的灵感,以流动的线条作为展示区的主体框架。
细部大样
运用银白色铝板以及香槟金穿孔铝板模拟蝴蝶展翅的灵动曲线线条,强化建筑的线条的阴影层次,给人一种“鎏金镀银”、气派超然的时尚视觉冲击感,体现客户的尊贵身份。
通过优质铝板幕墙呈现出张弛有力的空间。
细部大样


展示区立面

展示区剖面
仿石材铝板
仿石材铝板的外观弥补了传统天然石材自身带来的缺陷,可以在不消耗资源的情况下达到真石材的装饰效果,逐渐成为一种备受追捧的选择。
仿石材铝板,是以铝单板为基底,通过复刻天然石材的质感、纹理和色泽等,去进行调配设置,再经过底漆、面漆、罩光漆等饰面处理,将不同颜色油漆、花纹等经高温固化后,附着在铝单板表面的一种材料。
source:google.cn 材料组成示意
简单地说,就是将铝单板的表面经过一系列的处理,做出和天然石材一样的效果和质感,使其成为天然石材最理想的替代材料。
其具有环保节能、防水耐污、阻燃性高、重量轻便、施工快捷、物美价廉、可塑性强、颜色可定制、使用寿命长等优秀的物理性能,在室内外使用都能经受住环境变化
带来的侵袭。

source:google.cn
重庆万科·璞园示范区立面幕墙装饰构件,由案名LOGO转译成铝板造型纹理,整体几何形态以“玉章”为原型,选取两种仿石铝板模块组合,精准拿捏其比例与节奏韵律,创造“淡妆相宜”的建筑美学。

重庆万科·璞园立面实景图


重庆万科·璞园立面实景图 ©️ChillShine

建筑立面-幕墙结构

仿木纹铝板
仿木纹铝板也被称为木纹转印铝板,是以高等级铝合金为主要材料,通过转印工艺,将木材的纹理及颜色呈现在铝板上的装饰材料。
它具有木质的纹理,铝板的特性,有着非常多的优点。如效果仿真、绿色环保、重量轻便、防火防腐防潮、可加工各种几何形状、易打理、使用寿命长等。因此,仿木纹铝板被建筑装饰行业称为木材的理想替代品。

仿木纹铝板色卡示意图(部分)
近年来发展迅速,在铝型材幕墙、门窗和家居上都有着越来越广泛的应用,成为铝型材行业新的增长点之一。
南昌保利·琅悦为了展示现代中式美学,立面设计除了第五立面的设计,还注重人视角度第六立面(室外吊顶)的打造。


门堂中心区域的吊顶来自宋代大格平棊天花,经现代演绎后,线条利落的大方格结合暗敷的灯带,其余位置采用折槽木纹铝板及型材收边的吊顶形式,充分发挥现代材料及工艺之美。
藻井小样做了木纹铝和香槟金铝两种材质的底板和扣板自由搭配,经灯光测试最终选用了漫反射的木纹铝板。

南昌保利·琅悦实景图

杭州金地·湖颂丹青府立面五脊殿、四坡顶的取意形式推敲造就了丹青阁的建筑语言,其中2.6米外挑檐坡屋面,提取挑檐、铺作等古建元素,采取了木纹板结合蓝黑色金属瓦的方式,光影流转中,映出了国韵的极简与现代的轻盈。


杭州金地·湖颂丹青府

浙江德清凤鸣和院大门温暖典雅的仿木铝板、深邃沉稳的型材、温润细腻的蓝眼睛石材,引导人们联想起江南书香门第的气质与涵养。
再来看苏州世纪金源近湖源筑的立面,无界限的超白玻将室外景致无限引入室内,浅色系的白金石材搭配木纹铝板营造轻盈且通透的建筑体量。

苏州世纪金源近湖源筑实景图
光影设计是最独特的一笔,结合以不同的线条、材质、明暗及相应的笔触,真实地表现出空间的气质。
双曲铝板
双曲铝板是一种新型的建筑材料。其外观特点主要是采用双曲线形状来进行设计,具有非常高的装饰效果和美观度。
双曲铝板
双曲铝单板又称曲面铝板,是以铝单板为基材,根据两种不同的弧线曲率,经裁剪、折边、弯弧、焊接,加筋、打磨、喷涂等多道工序,加工而成的拥有两个曲面的铝单板产品。
首先,该材料具备铝单板本身的独特优异性能,质量轻、刚性好、防尘防潮、防火耐磨,使用寿命长;其次,造型多变,可根据不同曲率进行设计加工,能很好地满足设计师的建筑创意设想,让建筑物拥有良好的外观装饰展示效果;再者,结构设计人性化,装卸方便,便于安装施工;维修更换方便,可改造型强。
廊坊金茂龙河时代城市客厅外立面通过双曲铝板、穿孔板以及底层超白玻的材质组合,既凸显了建筑的雕塑感和现代感,又确保了视线的通透性和与景观的互动性。



材料示意图

廊坊金茂龙河时代城市客厅实景图
赣州锦润·滨江云宸展示中心二层的池水平台,做了具有工艺感的倒角,铝板具有良好的韧性,设计调节二维曲线和三维曲面以达到好的效果,组成双曲面的铝板每一块都不同。


双曲铝板尺寸示意图



铝板造型分析

赣州锦润·滨江云宸展示中心实景图
金昌·烟波辰鹭示范区采用了双曲铝板,流线形体的流畅弧度,散发出现代感与艺术感,但对于制造和安装而言,这是比较艰难的挑战。

首先通过软件3D建模,之后采用BIM软件进性分解,开平、开料、冲孔、开角、滚弯、卷形、折边、种钉……单块制作完成再焊接和加筋组装,每个细节都不容有误。
蜂窝铝板
蜂窝铝板是结合航空工业复合蜂窝板技术而开发的金属复合板产品系列。该产品采用“蜂窝式夹层”结构,即以表面涂覆耐候性极佳的装饰涂层之高强度合金铝板作为面、底板与铝蜂窝芯经高温高压复合制造而成的复合板材。

这种板材,会大大增强原本铝板的一个结构整体性,使它不易弯曲,尺度可以做到更大,平整度也会更好,只是成本会相对来说略有提升。
其特点为重量轻、强度高\可定制、安装简便(免焊接、无明钉)等。常见的6种铝蜂窝板材料为:冲孔蜂窝铝板、雕花蜂窝铝板、仿木纹蜂窝铝板、仿石材蜂窝铝板、弧形/异型蜂窝铝板、氟碳蜂窝铝板。
南京 华润置地·观云润府的立面在材料选择上,同样遵循“精”、“简”原则,以奢石、超白玻、蜂窝铝板作为主材料,奠定整体的灰色基调,保留石材原生的肌理,局部嵌以金色金属线脚,增加细节耐看度。
轻灵明快的蜂窝铝板自屋面向外延展,与景观连廊自然连接,水平的檐口限定出建筑与天空的边界,创造出一种舒缓、和谐、静谧的内在氛围。
水平檐口带来的空间感
在垂直方向上,局部片墙从建筑体量中延伸而出,奢石的厚重与铝板的纤薄、玻璃的轻盈形成鲜明的对比,让整个建筑在“沉稳”与“精巧”之间形成微妙的平衡。
连廊下的片墙柱
连廊中的立柱同样以片墙的形式呈现,上凿横向开放缝,在天光下投射出水平的阴影雕琢细节。
材料拼贴特写
华润置地时代之城主入口“时代之门”,约170平大面迎宾水景布局两侧,门头上方采用约40米跨度钢桁架结构,实现约20米大跨度无柱挑空空间,共采用约2800块天青色釉面陶板、2100根型材及上千根灯带,底部甄选大面蜂窝铝板,现代奢华。

华润置地时代之城实景图
恢宏门仪,抵达天青之境,礼呈归家荣望。

华润置地时代之城实景图
项目了解材料
材料厂家合作
扫描二维码 加好友联系
▼

电话:181 3265 7351
延伸阅读:(点击蓝字查看)
本资料声明:
1.本文为建筑设计技术分析,仅供欣赏学习。
2.本资料为要约邀请,不视为要约,所有政府、政策信息均来源于官方披露信息,具体以实物、政府主管部门批准文件及买卖双方签订的商品房买卖合同约定为准。如有变化恕不另行通知。
3.因编辑需要,文字和图片无必然联系,仅供读者参考;
推荐一个专业
建筑材料平台
扫描二维码关注

微信公众号“材料公社”(ID:cailiaogongshe)
特色建材 合作联系
联系微信:soujianzhu006

