▲ 更多精品,关注“搜建筑”


愈是复杂的问题,愈是要轻巧的解题。设计以 “重塑山林” 为目标,整体采用 “轻介入” 的原则。
Ⅰ/ 观湖酒店

东侧鸟瞰图 摄影:侯博文
轻便的交通方式
1、 “绿毯” 之上,引入步行系统,以轻轻漂浮林上的全架空栈道的形式,自上而下地串联主楼的泳池、观景台、花境、儿童活动区等节点,行人能够若隐若现地游走于山林之中;
2、由于坡度大、地块窄,原有道路无法行驶。于是,撤路复绿后,将交通命脉外移到地块东侧——设置一部穿梭于山林的斜行电梯,以多个停站、栈道串联所有建筑,还满足了无障碍通行、货物搬运的需求;
3、原建筑无电梯,其各功能区域分散于多级台地上,抵达难度大。为此,我们也采用了类似的交通外移策略——以一部简练的外置垂直电梯,综合解决 “少开挖、保视野、竖交通” 等一系列问题。
轻灵的建筑改造
原建筑巨大的 “三角形斜屋面” ——人们称之为 “山张开大口的尖牙” ——严重破坏了北侧迎宾路观山的风貌。为此,需要在建筑立面改造上下功夫。首先,通过去除锐利的尖角、减少层数、竖向分段等手法,控制建筑体量。

建筑改造分析 © gad

然后,采用质朴的建筑材料,如:毛石、青灰色石材、混凝土涂料、栗色竹木等,控制建筑色调,使立面与树木山林融为一体。


俯瞰图 摄影:侯博文

客房庭院看向泳池、太湖 摄影:侯博文
山下原有一个类似于教堂扶壁构架的 “挡土墙” 构筑物,经评估其结构的稳定性较佳,我们顺势将其改造成儿童活动中心、员工宿舍以及设备用房等功能用房等。另外,对其外观做景观化退台处理,以弱化其突兀的形象。

全日餐厅 摄影:侯博文
清奇的入住体验
基地内所有坡面上均可观太湖,这让本来珍稀的湖景在酒店内变得稀松平常。如何变 “平常” 为 “惊艳”,是提升酒店入住体验的关键。在南区最高处架起一座天桥,连接梅山路的落客亭及主楼屋顶。
连桥与主楼、落客亭 摄影:侯博文
客人下车后,绕过景墙,则进入一处长40米、高2.4米的竹木引巷,走入后视线遮蔽,只能仰望天空,但在巷的尽头,屏门自开,豁然开朗,只见一池静水与太湖烟波连成一片,一团篝火闪烁池上,干净而纯粹。用欲扬先抑的手法,以一座木桥、一汪静水、一簇火焰共同打造一处抵达奇景,以此点亮游客的入住体验,营造惊喜感。
左:竹木引巷/右:静水与篝火 摄影:侯博文
主楼落在水池之上 摄影:侯博文
“隐入山林” 是我们基于会议中心优渥的原生自然条件,采取的 “轻介入” 策略之一。
1、原木保留。尽力保留原生乔木,标记树木的品种和位置,建筑对其围合或避让。2、嵌入山林。顺应山势,建筑约一半的体量嵌入山体,露出部分则做景观化处理;竹林增加屋顶的景观层次,延续山林的自然氛围。3、空间补遗。在总体布局上,着力于新旧建筑的空间对话。新建宴会厅在保障一期酒店景观视野的同时,又能与其共同围合形成酒店公区的第一进院落。既保留了纪念广场,又补充了前场的服务功能。

合抱的空间关系 摄影:侯博文
单曲面飘板 摄影:侯博文
轻盈的光盒子
全明宴会主厅是核心空间,如同山体之中轻盈的采光盒。自然阳光与人工灯光在此处融合。日间阳光从四周射入,高窗外的竹林若隐若现;夜晚灯光将竹影投射到高窗上,营造出独特的宴会氛围。格构式的天花体系由大跨度结构演化而来,形成宴会空间的标志性记忆点。

3、多部门的深度联合协作。在 EPC 项目中积极、深度、高效地联合业主、采购、施工、设计以及各个设计单位之间的交叉协作,才能使得项目顺利进行。
此次我们在应对复杂的山体环境和现场条件方面进行了有益的探索,在 “轻介入” 的大原则之下,仍然实现了 “最大限度地保护、修复小梅山北坡的山地景观” 这一设计目标。观湖酒店原计划全部改造,后因图纸、工期等原因,业主仅保留山下挡墙建筑的改造,其余主体建筑均拆除后再建设,这对前期的精细设计思考而言,也算是未尽的遗憾;而对于会议中心,在各方都秉持生态绿色的理念的努力下,最终得以呈现。期望其在时间中沉淀,与湖州的山林一起,在太湖旁平实自然地生长。
整体鸟瞰 摄影:侯博文
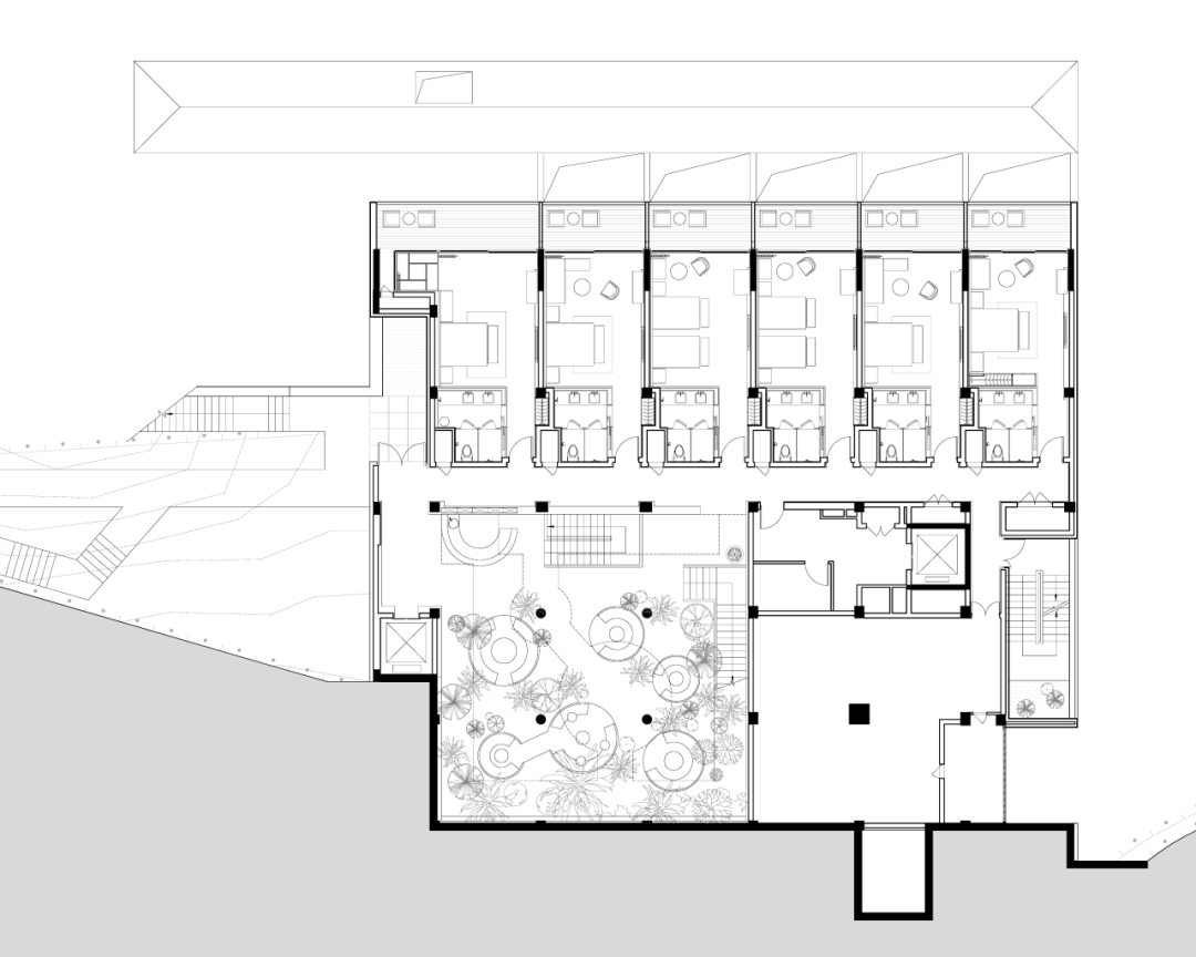
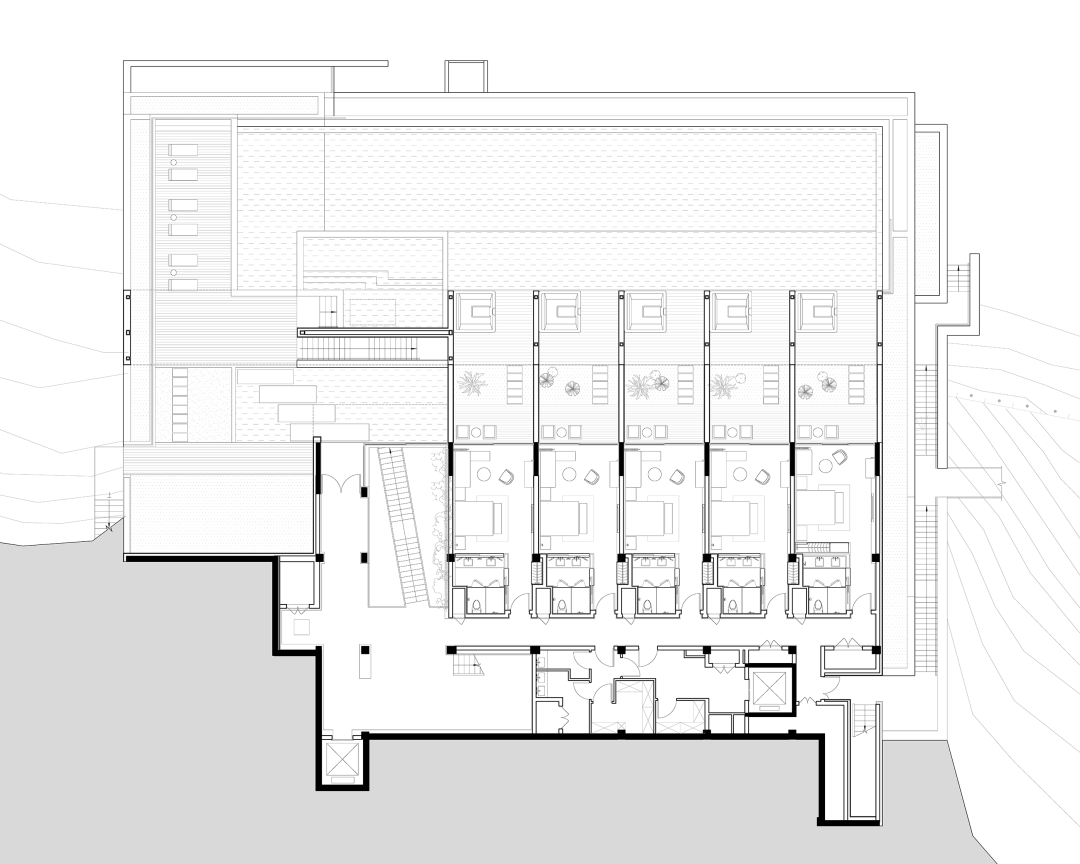
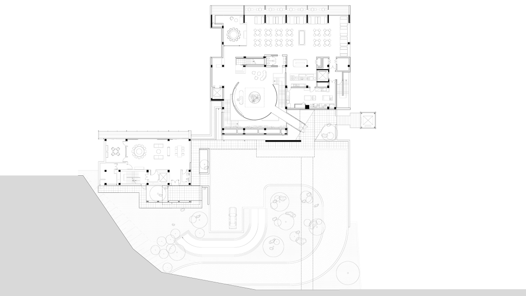
技术图纸
本资料声明:
1.本文为建筑设计技术分析,仅供欣赏学习。
2.本资料为要约邀请,不视为要约,所有政府、政策信息均来源于官方披露信息,具体以实物、政府主管部门批准文件及买卖双方签订的商品房买卖合同约定为准。如有变化恕不另行通知。
3.因编辑需要,文字和图片无必然联系,仅供读者参考;

合作、宣传、投稿
联系微信:soujianzhu006

