
圣莫尼卡大道(Santa Monica Boulevard)对一些上班族来说只是 405 高速公路的一个出口,但它却是 66 号公路的最后一段,这条 “美国的主干道 ”曾经从芝加哥横跨到太平洋。在洛杉矶,这条宽阔的公路将市中心、好莱坞、比佛利山庄和圣莫尼卡连接起来,形成了一条商业走廊,为学生们提供了母婴店、餐馆和汽车展厅,是以汽车为中心的城市规划的典型代表。格兰维尔 1500 号公路就位于这条与现实情况相反、交通流量似乎比居民人数还多的路段。
Santa Monica Boulevard, which for some commuters is nothing but an exit from the 405 Freeway, is the last piece of Route 66, “America’s Main Street,” that once spanned from Chicago to the Pacific Ocean. In Los Angeles, the wide stretch of roadway linked downtown, Hollywood, Beverly Hills, and Santa Monica, in a commercial corridor for students of mom-and-pop stores, restaurants, and automobile showrooms -- an archetype of car-centric urban planning. In that stretch which, contrary to reality, seems to have more traffic than residents, is Granville1500.

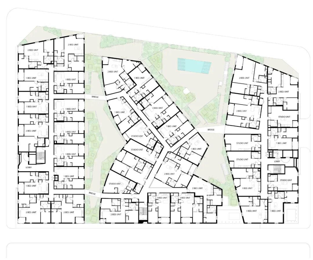
格兰维尔 1500 项目旨在强化城市体验,与 LOHA 早先在街对面建造的 Westgate 1515 项目遥相呼应。这个拥有 153 个单元、312,287 平方英尺建筑面积的新加州大学洛杉矶分校学生公寓项目加强了这个快节奏、新兴社区的地方感和到达感。该设计打破了大多数住宅项目的典型设计,在街道上展示了住宅和步行体验。这个街区长的地块曾经是一个汽车经销店,但现在已成为一个高密度多功能开发项目的典范,在这里,汽车和玻璃幕墙建筑让位于出来散步的居民,或者在一个具有更大社会目的的友好广场上流连忘返。
Granville1500 is meant to intensify the urban experience, mirroring LOHA’s earlier Westgate1515 directly across the street. The new 153-unit, 312,287 SF UCLA student housing project, reinforces a sense of place and the feeling of arrival in this fast-paced, burgeoning neighborhood. The design breaks down the bulk typical of most housing projects by showcasing residential and pedestrian experiences right at street level. The block-long parcel was once a car dealership but now serves as a model for denser, mixed-use developments where cars and glassed-off buildings yield to residents out for a stroll or lingering in a friendly piazza with a larger social purpose.

为了方便行人通行,在地面层采用了多种策略将建筑固定在街道上。圣莫尼卡大道上出现了三个低调的楔形体量,而不是一个巨大的、气势恢宏的立面,每个体量都巧妙地与人行道相接。这种提升效果是通过在建筑群的四角设置一系列金字塔形的大型雕刻来实现的,这些雕刻的形状就像倒棱柱。除了为建筑结构下方提供呼吸空间外,这些空隙还将建筑推离了物业线,并拓宽了人行道。
To favor pedestrian encounters, several strategies are used at ground level to anchor the building to the street. Rather than one massive, imposing facade, three discreet wedge-shaped volumes appear along Santa Monica Boulevard, each of them deftly touching down on the pavement. This lifting effect is achieved through a sequence of large pyramidal carve-outs, shaped like inverted prisms, placed at the corners of the complex. Besides providing breathing room beneath the structure, the gaps push the building back from the property line, with the added benefit of widening the sidewalk.


双角镂空以及一对较小的折线将长方形的后退部分分隔开来,形成了三个露天花圃、户外用餐小剧场、长椅和植物。在正上方,一个宽敞的平台连接着三个体量中的两个。这个空隙和另一个较窄的空隙不仅为街道带来了宽敞的空间,也为街道带来了宽敞的空间。裙楼的屋顶线在建筑中心折叠,形成一个景观三角,打破了实体与虚体之间的紧张关系,在商业广场和格兰维尔大道上的大楼梯附近与地面相接。该建筑提供自然通风走廊、雨水管理计划、耐旱植物、高效门窗以及自行车存放处、电动汽车充电站和屋顶太阳能。
The twin corner cut-aways, along with a pair of smaller folds that bookend a long, rectangular setback, define a trio of open-air parterres, little theaters of outdoor dining, benches, and plantings. Just above, a spacious podium connects two of the three volumes. This void, and another narrower one, bring spaciousness, not just at street level, but above it. The roofline of the podium folds down at the center of the building, in the form of a landscaped triangle, breaking the tension between solid and void by literally touching ground near the commercial plaza and a grand stair on Granville Avenue. The building offers naturally ventilated corridors, a stormwater management plan, drought-tolerant plants, high-efficiency windows and doors, as well as bicycle storage, electric vehicle charging stations, and rooftop solar.

格兰维尔 1500 强化了 LOHA 在城市开发中创造公民参与空间的承诺。由此形成的 “城中村 ”致力于让公众参与到这条以汽车飞驰和交通繁忙而非热闹的步行街景观而闻名的道路上。这个项目旨在改变人们对这个街区的看法。
Granville1500 strengthens LOHA’s commitment to creating spaces for civic engagement in urban developments. The resulting “urban village” strives to engage the public on a stretch of roadway better known for speeding cars and heavy traffic than a lively pedestrian streetscape. This project aims to change the conversation of what this neighborhood can be.

立面图
规格设计图
建筑师:Lorcan O’Herlihy Architects
本资料声明:
1.本文为建筑设计技术分析,仅供欣赏学习。
2.本资料为要约邀请,不视为要约,所有政府、政策信息均来源于官方披露信息,具体以实物、政府主管部门批准文件及买卖双方签订的商品房买卖合同约定为准。如有变化恕不另行通知。
3.因编辑需要,文字和图片无必然联系,仅供读者参考;

微信公众号“搜建筑”(ID:sjz9999)
合作、宣传、投稿
联系微信:soujianzhu006