
由HENN为家具公司Brunner在莱茵瑙建造的混合创新中心已经正式开放。这座多功能建筑集生产、装配、办公和餐饮于一体。大厅的模块化木结构强调了项目在可持续性、自然美学和娱乐质量方面的严格要求。
The hybrid innovation centre built by HENN for furniture company Brunner in Rheinau has been officially opened. The multifunctional building combines production, assembly, office and catering areas. The modular wooden structure of the hall underlines the project's stringent requirements when it comes to sustainability, natural aesthetics and recreational quality.

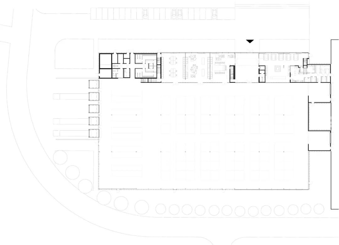
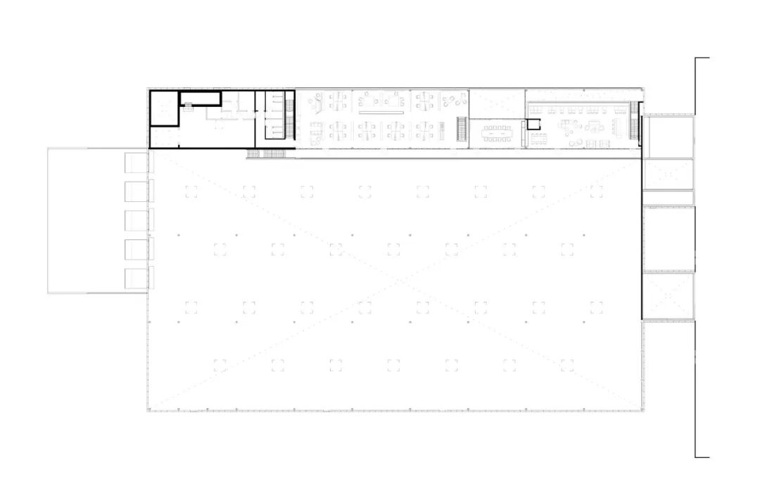
多功能混合创新中心。作为建筑师和总规划师,HENN对Brunner创新工厂的特殊挑战是在空间和功能上结合不同的项目。在混合创新中心,开发、设计、原型、生产、开放的工作空间、展厅和食堂都集中在一个屋檐下。室内设计是与设计事务所Ippolito Fleitz合作完成的。多功能建筑扩展了第二代家族家具公司的场地,反映了Brunner雄心勃勃的增长目标和基本价值观:功能,质量和设计。
A multifunctional and hybrid innovation centre. As the architect and general planner, the special challenge for HENN with the Brunner Innovation Factory was to combine different programmes spatially and functionally. In the hybrid innovation centre, development, design, prototyping, production, open workspaces, showrooms and canteen are all brought together under one roof. The interiors were designed in cooperation with design office Ippolito Fleitz. The multifunctional building expands the site of the second-generation family-owned furniture company and reflects Brunner's ambitious growth goals and fundamental values: functionality, quality and design.

可持续和智能木结构。生产大厅的模块化木结构是该项目的一大特色。材料强调了建筑的可持续性,对空间的氛围和美学有决定性的影响。与家具生产中使用的工艺和技术类似,屋顶结构的横梁在连接处组装。
Sustainable and intelligent timber construction. The modular wooden structure of the production hall is a special feature of the project. The material underlines the sustainability of the construction and has a decisive influence on the atmosphere and aesthetics of the space. Similar to the craftsmanship and techniques used in furniture production, the beams of the roof structure are assembled at the junctions.

作为交流媒介的建筑。特别注意的是建筑内部和外部的开放性和透明度。在大厅里,装配过程可以一步一步地跟踪。玻璃墙和沿着整个建筑长度延伸的画廊故意在生产区域和上层工作区域之间创造视线。不同设计的办公空间不仅允许安静的集中工作,也允许会议和团队合作。
Architecture as a communication medium. Special attention is paid to the openness and transparency of the building both inwardly and outwardly. In the hall, the assembly process can be traced step by step. The glass walls and a gallery that extends along the entire length of the building deliberately create lines of sight between the production area and the work areas on the upper floor. The variably designed office spaces not only allow for quiet concentrated work, but also for meetings and teamwork.

同时,新大楼使公司对外开放。具有代表性的房间高的玻璃西北立面以一种实用和象征性的方式代表了客户、游客和员工之间的直接交流,并允许最大限度的日光进入生产和餐饮区域。
At the same time, the new building opens up the company to the outside world. The representative room-high glazed north-west facade represents this direct exchange between clients, visitors and employees in a practical and symbolic way and allows maximum daylight to enter the production and catering areas.

与全玻璃区域相比,轻质结构的哑光反光金属立面为组装和调度提供了工业外观。
In contrast to the fully glazed areas, matt reflective metal facades in lightweight construction give the areas for assembly and dispatch an industrial appearance.

分析图
本资料声明:
1.本文为建筑设计技术分析,仅供欣赏学习。
2.本资料为要约邀请,不视为要约,所有政府、政策信息均来源于官方披露信息,具体以实物、政府主管部门批准文件及买卖双方签订的商品房买卖合同约定为准。如有变化恕不另行通知。
3.因编辑需要,文字和图片无必然联系,仅供读者参考;

微信公众号“搜建筑”(ID:sjz9999)
合作、宣传、投稿
联系微信:soujianzhu006