▲ 更多精品,关注“搜建筑”

仙林学校是对“普通学校”的一次探讨。虽然关于普通教育(Общеобразовательная)的系统早在建国后就从苏联引入,但考虑到当时的国情,中央下放教育事业管理权,区域内中小学由地方负责投入,直到1985年义务教育才转变为以国家财政性投入为主;次年,我们才正式进入“普九”的重要阶段。因此,在相当长一段时间内,学校的建设标准是以各个省份的标准设计室或建筑院校提供的学校图集作为参照。
The design of the Xianlin School [1] is an exploration of the "general school". Although the system of general education (Общеобразовательная) [2] was introduced by the USSR (The Union of Soviet Socialist Republics) as early as after the founding of the People's Republic of China, taking into account the national conditions at that time, the central government decentralized the management of educational undertakings, the primary and secondary schools in the region were invested by the localities. It was not until 1985 that compulsory education was transformed into a state-financed program; the following year, we officially entered the important stage of "nine-year compulsory education." As a result, for quite some time, school construction standards were based on the school architectural code atlases provided by the standard design offices or architectural institutes of individual provinces as a reference.
△ 草图与工作模型 ©雁飞建筑事务所
“普通”(generality)关注点落在了经济性建造和关于教室单元的采光、通风、噪音、温控等基本物理性能的讨论。其背后既是应对在经济困难、机电匮乏时期的大班化教学的刚需,也是朴实地回应学生在青少年时期的生理成长和心理安全的需求。
同时,因学校整体规模较小,尺度适中,建筑大多围绕操场线性布置,学生课间活动与场地的关系也就相对紧密。这种关系在大量的集体照中被记录下来,形成了那个时期的一种集体记忆。
The "generality" focus fell on economic construction and discussions about the basic physical properties of classroom units, such as lighting, ventilation, noise, and temperature control. Behind it is both a response to the urgent need for large class sizes in times of economic hardship and lack of mechanical and electrical power, as well as a matter-of-fact response to the physical growth and psychological safety needs of students in their teenage years. At the same time, because the overall size of the school is small and moderately scaled, and the buildings are mostly arranged linearly around the playground, the relationship between students' recess activities and the grounds is relatively close. This relationship is documented in a large number of group photographs, forming a collective memory of that period.

△ 结构模型与剖面序列 ©雁飞建筑事务所
之后,在1986年推出的《中小学建筑设计规范》,与“普通”挂钩的基本性能被纳入到规范中,设计的关注点开始慢慢转向形式的讨论,这在同期出版的一系列关于学校的竞赛和优秀选集中亦是清晰可见。到1994年分税制实行后,土地财政模式主导了新区开发,推动了快速的城市化,农村人口大量流入城市。随后在90年代末农村入学适龄儿童减少,导致了当地撤点并校的政策,到2001年撤点并校也正式成为全国范围内的政策,在优化教育资源配置的原则下,也变相推动了学校规模的扩大化,重点学校、巨型学校开始站上舞台。
Then, with the introduction of the Architectural Design Code for Primary and Secondary Schools in 1986, the basic performance linked to "generality" was incorporated into the code, and the focus of design slowly began to shift to a discussion of form, which is also evident in the series of competitions and anthologies of excellence for schools published at the same time. By 1994, after the introduction of the tax-sharing system, the land-finance model dominated the development of new zones, promoting rapid urbanization and a massive influx of rural population into the cities. The subsequent decline in the number of school-age children in rural areas in the late 1990s led to a policy of local school closures, which became official nationwide in 2001 and, under the principle of optimizing the allocation of educational resources, also led to a disguised expansion of school size, with high-achieving schools and mega-schools beginning to take the stage.
△ 大班教室单元规范图集
△ 仙林学校教室单元
而“普通学校”则陷入乏善可陈的困境,作为伴随新区开发的基础性教育配套,它也成为了平庸图景中的一部分,就其集约用地、师生配比、班级规模,以及综合造价而言,它最终是一个经济测算的结果。规范作为提供基本物理性能的保障,同时也暗示着按部就班、大同小异的设计结果。
所谓的独特性,大多不在里子,而在一种如画的面子;其愈是试图抵抗平庸的图景,愈是加剧了现状。“普通”与经济性的挂钩,由原先的物理建造,演变为如今可考核的指标。普遍通用(general)渐渐的滑向了一般的、广泛的、无差别化的(generic)生产。
The "general school," on the other hand, is in a rut, and as a basic education package that accompanies the development of a new district, it is part of a mediocre picture that is ultimately an economic calculation in terms of land assembly, teacher/student ratios, class sizes, and overall cost. The specification, as a guarantee of providing basic physical properties, also implies a step-by-step, similar design outcome. Much of the so-called uniqueness is not in the lining but in a kind of picturesque image [3]; the more it tries to resist the picture of mediocrity, the more it exacerbates the status quo. The link between "general" and economy has evolved from a physical construction to an assessable indicator. Gradually, the "general" has slipped into ordinary, widespread, "generic" production.

△ 噪声研究 ©雁飞建筑事务所
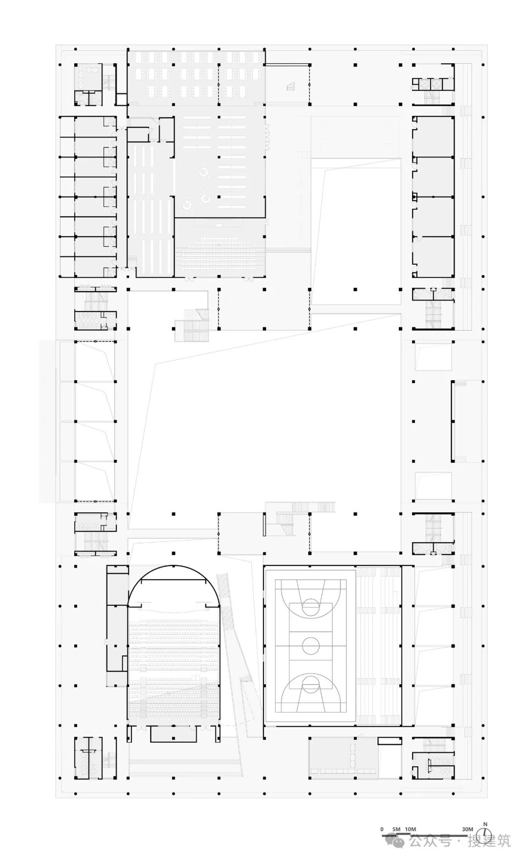
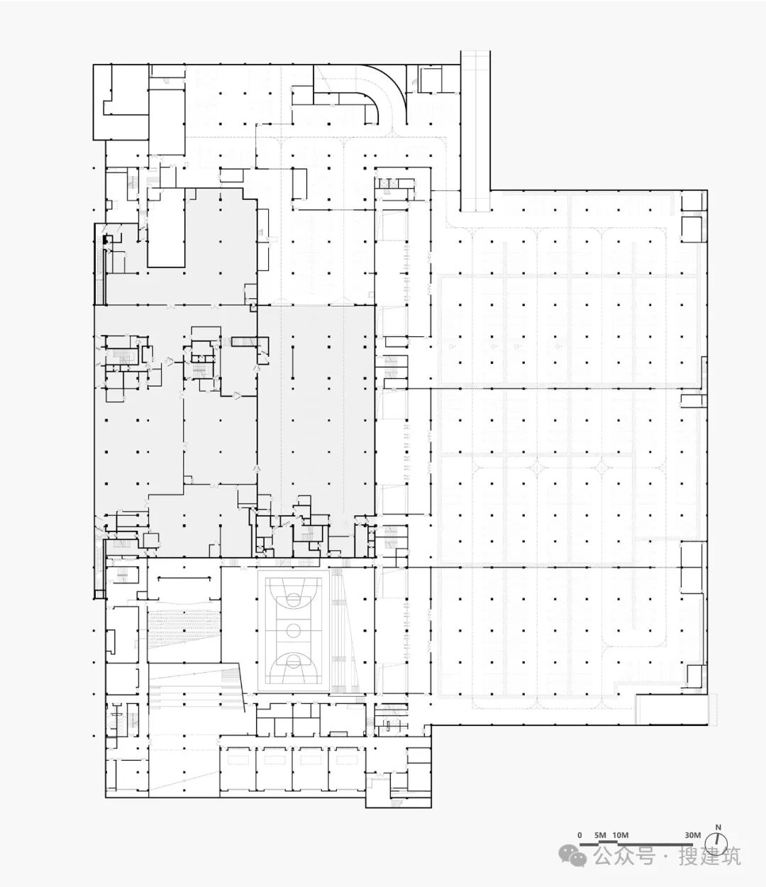
因此,仙林学校尝试重新考察“普通学校”的可能——“普通”在抽象化的同时,是否还暗含着一种具体化的胜任。它瞄准的是一系列与经济性相关的问题——大容量教学模式与大体量的化解,校舍操场的布局模式与僵化的间距控制,教室单元与结构单跨规范限制,公共空间的比例与混合分区,结构预制率与管线综合,采光通风与运营能耗,学生心理安全与活动便利性,上下学接送对周边社区的交通压力与社区开放分享的衔接等等。这些诸多问题隐匿在了一种标准容积率的暗示中,所以它也有一个代号 “FAR= 1.0”。
Therefore, Xianlin School is trying to reexplore the possibility of "general schools". By abstraction, "generality" may imply a specific competency. It focuses on a range of economic-related issues - large-scale teaching methods and resolving large-scale issues, the layout of school buildings and playgrounds, rigid distance control, classroom units, and structural span limitations, public space proportion and mixed zoning, prefabrication rate and pipeline integration, lighting, ventilation, and operating energy consumption, student psychological safety and activity convenience, transportation pressure from commuting to and from school, and community open sharing connections. These numerous issues are hidden in the implication of a standard floor area ratio, hence the code "FAR = 1.0".

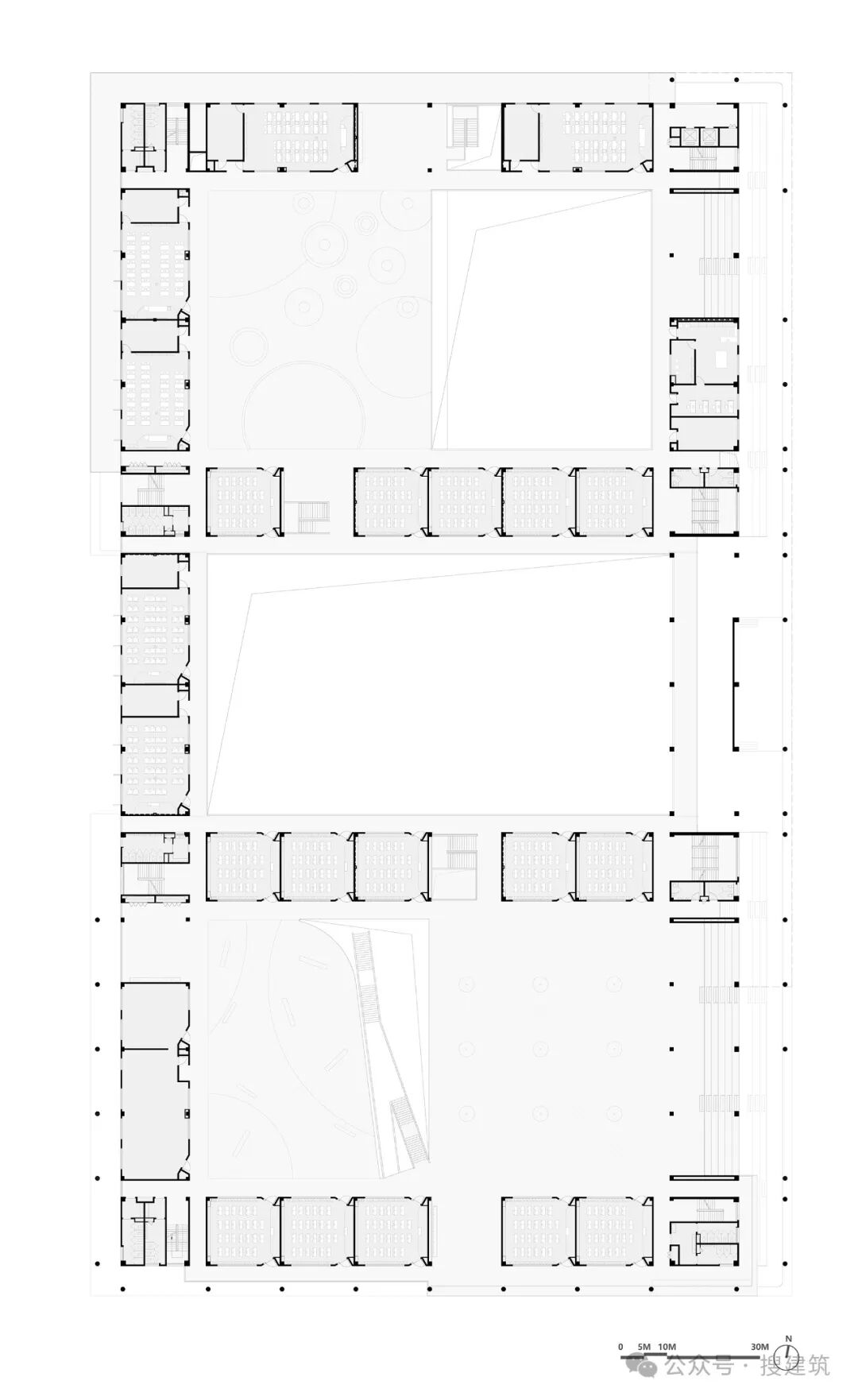
然而化解策略不在改弦易张,而与规范的重新调和,回到制定这些物理条件的本身——也就是在维持大规模化、大班教育的前提下,如何更新“普通学校”的基本性能。比如南北双廊带来更稳定的双向均匀采光,大部分时间利用自然光就可以达到室内教学的照度要求;对称门窗的布置具备良好自然通风,也带来更稳定的内部布局,更良好的课桌与黑板的视线关系以及日常的收纳储藏;40m宽的空中内院(multi-datum)不仅为学生在课间提供了充沛的活动场地,也有效地降低了前后排教室之间噪音干扰。
The solution, however, does not lie in a change of course but in a re-harmonization of the code and a return to the very formulation of these physical conditions - that is to say, how to renew the basic performance of the "general school" while maintaining massification and large classes. For example, the north-south double corridor brings more stable two-way uniform lighting; most of the time, using natural light can achieve the indoor teaching illumination requirements; the symmetrical arrangement of windows and doors has good natural ventilation but also brings more stable internal layout and better visual relationship between desks and blackboards as well as daily storage; 40m wide inner courtyard above ground (multi-datum[4]) not only provides ample activity space for the students between classes but also effectively reduces the noise interference between the front and back rows of classrooms.

遇上气候宜人的季节,门户大开的课堂里的琅琅书声亦是一景。材料和机电的使用既考虑其通用性便于日常维护,也尽量避免装饰面在系统层面的使用,以降低造价。比如采用独立竖向管井,安置空调外机于屋顶或地面,隐蔽桥架于室内吊顶,预埋灯光于叠合楼板,结合栏杆和廊柱设置排水系统。
In pleasant weather, the sight and sound of reading in the open classroom are truly delightful. The use of materials and electromechanical equipment is designed to minimize decorative surfaces at the system level while considering their versatility and ease of maintenance. For example, independent vertical pipe wells are used, air-conditioning units are placed on the roof or on the ground, hidden bridges are placed in the interior ceiling, pre-built lights are placed in the laminated floor slabs, and drainage systems are set up in conjunction with the balustrades and corridors.
△ 管线综合
而模数8.4m×9.6m的轴网,一方面回应了与上下学接送的地库需求,以降低周边已有学校带来的交通压力,另一方面也实现了中小学教学单元在视距上的通用性,同时一些留白单元也考虑将来教室的扩容。通过这些基本性能的微调,最终形成仙林学校多维叠合的平面:3至5层为教学区,1至2层为公共功能,-1层为接送及设备区。
The axial network of modulus 8.4m x 9.6m responds to the demand for basement with pick-up and drop-off to reduce the traffic pressure brought by the existing schools in the vicinity; on the other hand, it also realizes the universality of primary and secondary teaching units in terms of sight distance, while some of the white space units are also considered for the future expansion of classrooms. Through the fine-tuning of these basic properties, the final result is the multi-dimensional stacked plan of Xianlin School: 3 to 5 floors for the teaching area, 1 to 2 floors for public functions, and -1 floor for the pick-up and drop-off and equipment area.

内外廊两种尺度,前者照应了曾经普通学校的那些操场紧邻校舍的集体记忆;后者双层挑空,结合内部实现局部双跨以应对抗震要求的四个立面程度不同,而在看台部分配合视线抽柱挑梁,却是对于周边环绕百米住宅的超街区一种城市性回应。两种尺度的配合意在即维系它的体量,但又让它变得透明。
The two scales of the inner and outer corridors, the former responds to the collective memory of those playgrounds adjacent to the school building of the former general school; the latter is a double-layered void, combined with the internal realization of the local double-span to cope with the seismic requirements of the four elevations to a different extent, while in the part of the terrace with the line of sight of the extracted columns and picket beams is a kind of urban response for the surrounding superblock around the 100-meter residential area. The two scales are intended to maintain their volume but make them transparent.

仙林学校如今已临时作为小学二年级部投入使用一年,原来构架预留下来的空白单元,因生源压力也逐步被填充上了普通教室。这样的变化是在意料之外,但也在情理之中。虽然二年级的小学生在这个规模的尺度下显得有些人小鬼大,但当我们记录下这些使用的场景——无论是课时门窗大开教室里的诵读,课间内院里的奔跑,午饭时食堂的熙攘,还是体育课前在檐廊下享受微风,傍晚操场的各类体育社团活动。
Xianlin School has now been temporarily put into use as the second-grade section of the elementary school for a year, and the blank units set aside in the original structure have gradually been filled with regular classrooms due to the pressure of the student population. Such a change was unexpected, but it also makes sense. Although the second-grade students seem to be a bit small in this scale, when we record these scenes of use - whether it is chanting in the classroom with the doors and windows wide open during class time, running in the inner courtyard during recess, bustling in the cafeteria during lunch time, enjoying the breeze under the gable porch before physical education class, and all kinds of sports clubs in the playground in the evening, the students in the pick-up hall at the end of school, and the birds and the birds and the birds at the drop-off hall at the end of school, we can see that there is no need for the children in the classroom.

放学时在接送大厅鸟兽散状的一哄而散;他们嬉戏玩耍的状态赋予了这些空间另一种活力,也都让我们真实地感受建筑的承受力和堪用。仙林学校所引发的关于“普通学校”的探讨,并非是简单地出于对经济性所塑造的庸常生活的批判,也许更多的是提供另一种选择——当我们身处看似无特性的大众生活里,是否还有一种相对西方诗意(poiēsis)更延绵的可能,一种平淡中见新意的契机。

项目信息
项目名称:仙林湖北部中学
地点:南京市栖霞区仙林副城白象片区仙林湖北侧
建筑设计:雁飞建筑事务所
设计时间:2019.7—2021.12
建造时间:2021.2—2022.10
主持建筑师:水雁飞
项目建筑师:王浩丞
设计团队:邹拥君、徐翰骅、宋菁菁、李格格、周谷阳、叶莹、石明雨、敖斐、卿思远(驻场)、胡馨予、简仕翰、谭佳琪、李文伟、李豪、吕远、陈圳杰、Jae Sok Surh、高钧怡、张伊佳、周简、张硕桐、毛宇俊、魏铭路、孙晶、邓钧文(实习)、宋雨琦(实习)、马晨钟(实习)、姜天一蓝(实习)、卢镛汀(实习)、范家玮(实习)
研究团队:李格格、王溱、左壮壮、王浩丞、邹拥君、裘怡霖、陈圳杰、张翔、李豪、丁凯怡(实习)
层数:地上五层
建设用地面积:37712平方米
地上建筑面积:37651平方米
地下建筑面积:24098平方米
总建筑面积:61749平方米
容积率:1.0
摄影:陈颢、苏圣亮、雁飞建筑事务所
建设单位:南京市仙林大学城管理委员会、南京仙林开发投资集团有限公司
代建单位:南京城市建设管理集团有限公司
合作设计院:南京长江都市建筑设计股份有限公司
结构顾问:和作结构建筑研究所/张准
本资料声明:
1.本文为建筑设计技术分析,仅供欣赏学习。
2.本资料为要约邀请,不视为要约,所有政府、政策信息均来源于官方披露信息,具体以实物、政府主管部门批准文件及买卖双方签订的商品房买卖合同约定为准。如有变化恕不另行通知。
3.因编辑需要,文字和图片无必然联系,仅供读者参考;

微信公众号“搜建筑”(ID:sjz9999)
合作、宣传、投稿
联系微信:soujianzhu006

