UAD·作品
浙江大学紫金众创小镇(浙大森林)由杭州市西湖区人民政府与浙江大学联合共建,毗邻浙江大学紫金港校区,是城西科创大走廊的东部启动区,也是浙江省第六批省级特色小镇。项目总建筑面积约26万平米,其中地上建筑面积17万平方米,地下建筑面积9万平方米,由浙江大学建筑设计研究院担纲全过程设计总承包。
项目区位
© UAD
区别于传统的科创园区,如何以人为核心,让办公、艺术、商业、生活与服务独立空间业态在这里融合共生,营造出公平、多元、多重场景的“小镇生活”,并强化个体在园区内的归属感,是规划设计思考的出发点。设计以“小镇居民”日常行为及相应空间需求为线索,引入“科研生态共同体”的概念,力图将紫金小镇打造成为创客的体验发生地、灵感迸发处,这里将成为科技与创意发生的容器和触媒,掀起一场新型科创园区的“场景革命”。
精致时尚、浙大传承的人文建筑群
建筑群整体遵循外高内低,外刚内柔的策略——新建高层塔楼及板楼弥合了现状高层办公楼的天际线,并对着西侧开阔的城市界面及河道景观打开,形成了一个巨大的绿色生态“山谷”,小体量的红砖建筑聚落则嵌入山谷内部,与山谷中的绿色景观相融,共同构建了一幅生态、活力、舒适的小镇场景。
临河鸟瞰
© 章鱼见筑
小镇中央鸟瞰
© 章鱼见筑
整体建筑群既需要体现现代园区的科技感和时代感,又希望呼应浙江大学“求是红”的传统基因。为此,立面设计和材料选择上采用了上下分离的叠合策略,高层建筑部分主要采用了精致的铝板及幕墙体系,简约时尚,而下部近人尺度的裙房及独栋建筑群落则采用了红色陶板、清水砖等“浙大”元素,细腻优雅,实现了传统与现代在园区融合共生的设计初衷。
A区主办公楼
© 章鱼见筑
B区独栋办公
© 章鱼见筑
B区独栋办公
© 章鱼见筑
B1#楼UAD紫金院区
© 章鱼见筑
多元共生、复合生长的众创村落居
紫金众创小镇核心启动区以“浙大森林”命名,取义于硅谷“雨林生态”共生模式,演绎出“东方硅谷”创新生态实践,为创客提供多样化、开放性、动态性的生长创业环境,同时依托浙大雄厚的学术及科研实力,创造融合共生、产学研一体化森林生态。
整体小镇规划注重回应不同科研团队及创客对空间需求的差异性和高度的发展需求,并为多种产业模式定制差异化、个性化、弹性复合的新型园区空间:设计塑造了以对外交流和展示功能为主的Z-POWER紫金中心,以独栋办公区为载体引进高端人才、学者入驻的Z-CLASS西溪村,以总部主楼为载体的Z-TOWN玉泉楼,以及承载小镇居民生活服务功能的Z-CLASS湖滨居等多样化建筑空间。这些不同的组团相互结合构建多元化的产业雨林及生活配套,为小镇创客的创业和发展注入持久的活力。
小镇图书馆
© 章鱼见筑
A区主办公楼
© 章鱼见筑
A区主办公楼室内
© 章鱼见筑
独栋区
© 章鱼见筑
C区独栋及内街
© 章鱼见筑
D区高层板楼
© 章鱼见筑
开放包容、绿色活力的小镇生态圈
红砖瓦顶下晨雾与咖啡的香气交融,中庭里路演彩排的零碎音符流淌,蜿蜒绿径上晨跑的科研人构思宏图,自由的中央草坪与小镇居民共同呼吸……连续多元的室外活动空间串联起的多维场景,这是紫金众创小镇构建的独有的声色烟火和集体记忆,也代表了众创小镇的理想图景。
开放无边界的园区和周边城市融合,契合创客渴望开放、自由的社交空间,它摆脱了传统众创园区功能效率至上的标签,让小镇居民在这里以浸润而随机的叙事方式聚拢在一起,人与人有温度的连接,它为城市提供了微漫游的目的地,同时也是具有城市影响力的聚集地。工作之余,它是一个社交场域、一种全新的生活方式、一个具有归属感的社区,紫金众创小镇打造“生活+办公+消费+游憩”全新的众创小镇模式,为当代产业园区转型提供了参考范本。
小镇中央草坪
© 章鱼见筑
园区小景
© 章鱼见筑
园区中央服务单元
© 章鱼见筑
A区主办公楼中庭
© 赵强
A区主办公楼中庭俯视
© 章鱼见筑
浙江大学紫金众创小镇已不仅仅是单纯的科创园区建筑群,而是叠合科创、娱乐、艺术、生活在内的多维场景空间,是崭新的生活方式和创新体验,建成两年来,小镇已焕发出勃勃生机。
小镇局部内景
© 章鱼见筑
小镇被授予中国产学研合作创新示范小镇,也是杭州国际人才创业创新园的三个试点园区之一。目前小镇已有企业3508家,国家级孵化器1家,省级重点实验室1家,市级以上高新技术企业103家,其中国家扶持的高新技术企业50家,吸引就业人数1.5万人。
小镇局部内景
© 章鱼见筑
小镇南入口
© 章鱼见筑
总图
© UAD
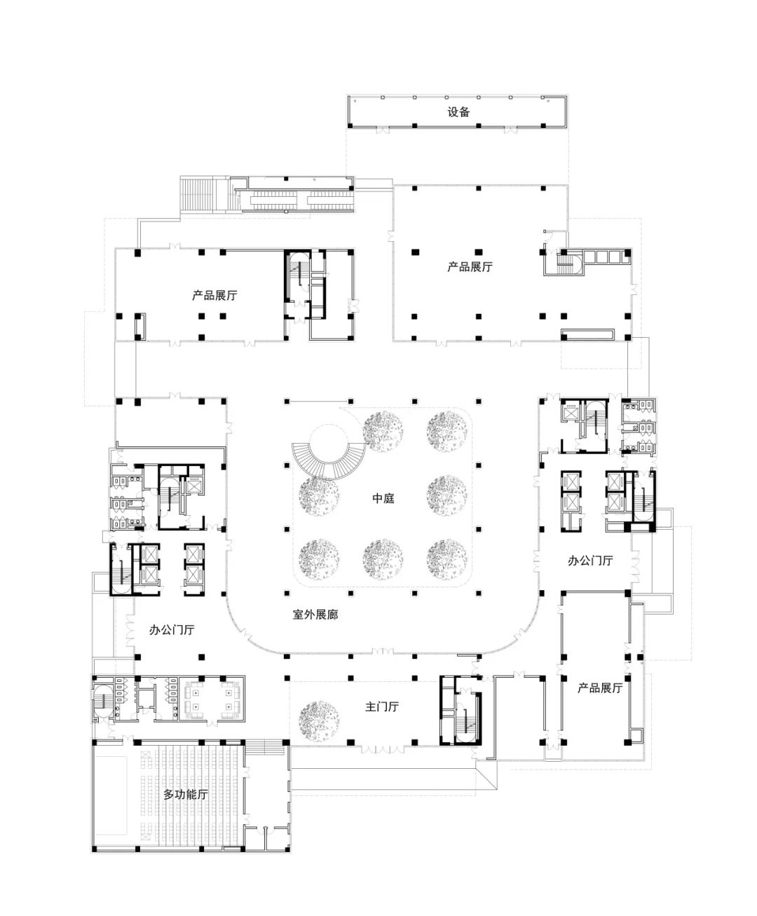
主楼一层平面
© UAD
主楼二层平面
© UAD
主楼标准层平面
© UAD
主楼剖面
© UAD
项目信息
—
项目名称丨
浙江大学紫金众创小镇(浙大森林)
建筑设计丨
浙江大学建筑设计研究院
项目类型丨
办公建筑
项目地址丨
浙江 杭州
设计总负责丨
董丹申、孙啸野、王昕洁、殷农、方华
工程负责人丨
黎冰、周家伟、肖志斌、莫洲瑾
建筑设计丨
AD区:孙啸野、张锴、詹笑冬、杜信池
BC区:方华、章晨帆、邓悦、李才全
B1楼:王玉平、雷斌、毛瀚轩
结构设计丨
AD区:刘若斐、吴庆勇
BC区:周建炉、金霄龙、王宇玮、胡波
B1楼:肖志斌、金振奋、李少华
给排水设计丨
AD区:王铁锋、潘孝辉
BC区:周欣
B1楼:王靖华、邵煜然
电气设计丨
AD区:李平、袁松林
BC区:李平、杨文征、俞侃
B1楼:吴旭辉、徐松杰
暖通设计丨
AD区:杨毅、曹志刚、朱晟伟
BC区:杨毅、宁太刚
B1楼:潘大红、易凯
智能化设计丨
马健、陈佳、倪高俊、林敏俊
幕墙设计丨
A区:杨冬艳
BCD区:史炯炯、洪抄
B1楼:香春
景观设计丨
吴维凌、王洁涛、吴敌、张雨晨、敖丹丹、徐聪花、顾静娴、朱靖、姚海燕、何颖
室内设计丨
A区:胡栩、贾茹、张慈、王冠粹、田宁
B1楼:楚冉、梅文斌
岩土设计丨
陈赟、杨勤锋、周群建、朱建才
泛光设计丨
庞笑肖、陆丹雨、俞媛铭、肖舒峥、郑龙
建筑摄影丨
章鱼见筑、赵强
业主方丨
杭州紫金准乾科技发展有限公司
施工方丨
浙江省建工集团有限责任公司
本资料声明:
1.本文为建筑设计技术分析,仅供欣赏学习。
2.本资料为要约邀请,不视为要约,所有政府、政策信息均来源于官方披露信息,具体以实物、政府主管部门批准文件及买卖双方签订的商品房买卖合同约定为准。如有变化恕不另行通知。
3.因编辑需要,文字和图片无必然联系,仅供读者参考;

微信公众号“搜建筑”(ID:sjz9999)
合作、宣传、投稿
联系微信:soujianzhu006


