▲ 更多精品,关注“搜建筑”
梵朴设计

项目基地位于科园腹地,都市核心,交通便利,商圈赋能。但目前该片区密度较高,空间拥挤,交通紧张,绿地不足,公共空间分布不均。方案立足于面向城市,面向自然,面向人性,面向未来四方面思考应运而生。项目关注人与城市,关注产城和谐共生,承袭企业人文生态基因,折叠空间驱动进化,为城市展现最美好的未来。
▲项目区位
项目北侧视野开阔,可看到远处山景,且建筑物低矮不会遮挡视线,故设计将在北侧设立公寓大平层,充分利用建筑在一定高度时开阔的视野。
西南侧建筑形成局部视线遮挡,低区视感不佳,但高区视野开阔,且视野内建筑极具层次感, 故在西南设立办公区域营造良好的视野环境。
▲景观视线分析
▲设计愿景

企业总部多元的功能诉求,设计必然会突破常规均质办公楼,进入空间叠加态。
办公空间与活力空间交叠分布,形成多层次开放空间系统,创造有特色的开放式城市产业综合体的室外景观环境。
通过形体和空间穿插折叠的手法,将生态共享空间植入不同组团高度,实现工作与生活的渗透,办公与休闲的互动,商务与时尚的接驳,以创新空间和活力空间设计,再次践行产城一体的理念。
▲城市折叠
▲建筑方案生成
▲方案鸟瞰
01
通过架空释放首层场地、提升项目的公共性。弱化场地的高差,拓展地下商业空间,打造双首层、公共开放的廊桥公园,容纳多样城市生活,激发城市活力,凝聚城市记忆。

▲设计分析
▲下沉商业空间
▲建筑夜景
02
塔楼退让南侧现有建筑,保证通风采光,使办公楼获得最大城市展示面。通过退台等绿化空间,进一步弱化南侧影响。
▲设计分析
▲退台空间沿街视角
03
塔楼向上逐步缩进,高区塔楼适当扭转,使公寓产品规避对视,获得最好的朝向,减少建筑对城市的影响。
▲建筑与周边环境关系

打造有温度的工作场所,多一些自然采光通风的空间、公共互动的花园,鼓励交流、汇聚。以人工智能、数字技术支撑,激发人与人、人与建筑的互动。
▲接待前厅空间
▲旋转楼梯空间
▲屋顶花园空间
01
建筑功能涵盖吃喝玩乐游购住行,带来诸多便利,创造了新的生活焦点空间,做到与时尚共舞。
▲产品分布
02
设计增加了办公与居住单元之间的亲子互动空间,上班期间,员工子女可获得精心托管照顾。
▲亲子互动空间
03
城市中心的传统办公模式与工作环境已经随着科技的发展发生了巨大的改变,对于办公空间的诉求已不仅仅是办公座椅,而是需要更多的活力互动平台。建筑的共享服务层都有交友互动、健康管理、解压释放的场所。
▲活力空间
▲空间意向
04
商业空间不是单纯的商铺组合,而是带入一种文化体验,聚焦体验型目的型业态。
▲商业空间分布及意向

后疫情时代我们的工作模式和办公环境已经发生巨大变化,对于可持续发展、绿色办公和节能建筑的诉求将重塑办公和规划设计,与传统办公差异化。
▲概念设计
01
下沉绿化空间与梦幻鲸鱼绿岛,纳入城市公共空间,结合精致下沉庭院,闹中取静,将成为轻松优雅的网红打卡地。
▲下沉绿化空间
02
退台绿化空间,塔楼大量退台、露台空间,在建筑竖向空间引入了半室外绿化面积,使公配融于自然。
▲退台绿化空间
03
绿色办公空间,利用空中庭院、透空,将自然绿化引入每户,每层都有亲近自然庭院花园。
▲绿色办公空间
04
用竖向交通串联打开上述三种空间,形成连续的绿色生态系统。

▲立体垂直花园

产品价值面对未来,有多种拓展可能性,着重关注产品全生命周期设计。
▲沿街视角
01
源于谷歌脸书,面向年轻人的工作环境,引入创新型企业,注入青春活力,锚定未来价值。

02
建筑的一至四层,尽可能多的产业用房转商业,通过中庭扶梯退台,创造特色环形商业动线,营造综合商业氛围。
▲裙房空间布局分析
▲裙房交通流线分析
▲裙房夜景效果
03
企业特色总部,平台是总部的精髓
总部办公平台为5F、6F两层,专梯入户。秉承做总部就是做平台的理念,兼顾总部内部使用的便利,也为全楼提供商务、会展、会议等配套。采用立体空间设计,彰显总部活力。
▲立体空间设计
04
创新产业空间,活力创造价值
为打破行业壁垒,避免孤立存在,面向小微企业及创业团队,包含共享办公,花园咖啡、太空舱等配套设施,将其成为全楼的孵化器。
▲创新办公设计
05
顶级“云”会所,营造高端生态
顶级云端会所,集休闲娱乐、接待洽谈、云端超级总部等于一身,彰显品牌形象和城市标志性。
▲屋顶泳池空间设计
项目关注人与城市,关注产城和谐共生,承袭企业人文生态基因,折叠空间驱动进化,为城市展现最美好的未来。
项目图纸
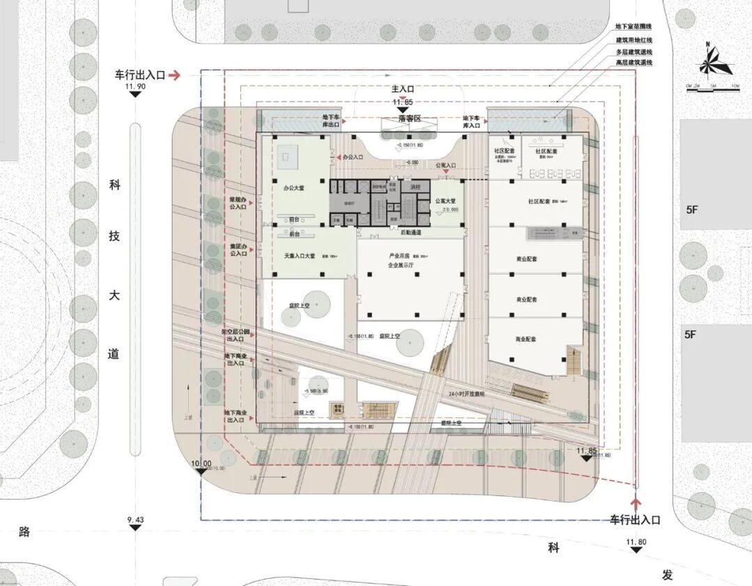
▲总平面图
▲首层平面图
▲二层平面图
▲三层平面图
▲四层平面图
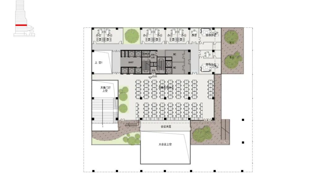
▲五层平面图
▲七层复式办公平面图
▲十七~二十三层平层大宅平面图
项目地点:深圳,南山
用地面积:5883㎡
总建筑面积:37089㎡
容积率:4.84
建筑功能:研发办公、高端公寓、商业配套等
设计时间:2021.10
本资料声明:
1.本文为建筑设计技术分析,仅供欣赏学习。
2.本资料为要约邀请,不视为要约,所有政府、政策信息均来源于官方披露信息,具体以实物、政府主管部门批准文件及买卖双方签订的商品房买卖合同约定为准。如有变化恕不另行通知。
3.因编辑需要,文字和图片无必然联系,仅供读者参考;

微信公众号“搜建筑”(ID:sjz9999)
合作、宣传、投稿
联系微信:soujianzhu006

