
▲鸟瞰远景 ©章鱼见筑
盐城科悦商务中心
空间交融、内外一体
作为盐城高铁新城的起步项目,科悦商务中心近日整体竣工并交付使用。项目由两栋五层建筑围合而成,将成为本区域极具标识性的商办地标。

▲鸟瞰近景 ©章鱼见筑

▲沿街主立面 ©章鱼见筑

▲建筑主入口近景 ©章鱼见筑

▲建筑东北侧视角 ©章鱼见筑
方案EPC项目设计管理
理性造型,呼应环境

▲建筑主入口近景 ©章鱼见筑

▲建筑侧立面 ©章鱼见筑

▲高架侧人视 ©章鱼见筑

▲转角透视 ©章鱼见筑
逐层内退,塑造庭院

▲建筑景观分析图 ©都设设计

▲内庭院日景 ©章鱼见筑

▲1#楼内庭院局部 ©章鱼见筑

▲连廊与景观 ©章鱼见筑

▲1#楼内庭院人视 ©章鱼见筑

▲1#楼内庭院局部 ©章鱼见筑

▲大堂与内庭院 ©章鱼见筑

▲内庭院局部细节 ©章鱼见筑

▲露台局部 ©章鱼见筑

▲弧形玻璃特写 ©章鱼见筑
一体化设计

▲大堂景窗 ©章鱼见筑

▲大堂外景 ©章鱼见筑

▲一号楼大堂 ©章鱼见筑

▲1#大堂内景 ©章鱼见筑

▲主入口剖面 ©都设设计

▲2#大堂内景 ©章鱼见筑

▲1#楼内庭院室内角度 ©章鱼见筑

▲室内局部 ©章鱼见筑

▲电梯厅 ©章鱼见筑

▲露台电梯厅 ©章鱼见筑

▲电梯轿厢细节 ©章鱼见筑

▲主入口雨棚 ©章鱼见筑

▲建筑主立面飞翼 ©章鱼见筑

▲1#楼内庭院细节 ©章鱼见筑

▲建筑转角细节 ©章鱼见筑

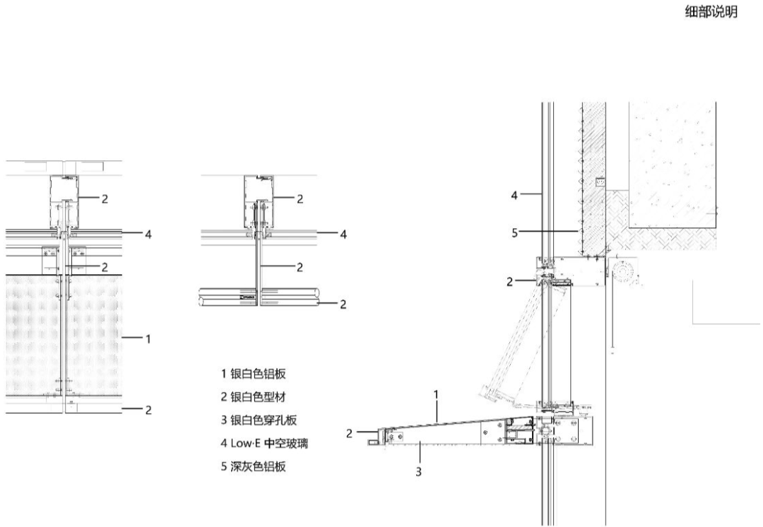
▲建筑幕墙细节 ©章鱼见筑

▲首层石材拼装细节 ©章鱼见筑

▲1#楼内庭院波纹不锈钢吊顶 ©章鱼见筑

▲1#楼内庭院夜景 ©章鱼见筑

▲水波纹不锈钢特写 ©章鱼见筑

▲总平面图 ©都设设计

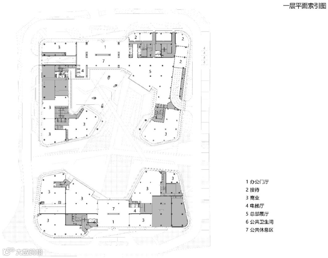
▲一层平面图 ©都设设计

▲二层平面图 ©都设设计

▲三层平面图 ©都设设计

▲四层平面图 ©都设设计

▲五层平面图 ©都设设计

▲立面图 ©都设设计

项目信息
项目名称:盐城科悦商务中心
项目类型:办公建筑、室内设计、景观设计、标识设计、城市设计
城市设计:上海都设营造建筑设计事务所有限公司
建筑设计:上海都设营造建筑设计事务所有限公司
室内、景观、标识方案设计:上海都设营造建筑设计事务所有限公司
主创设计师:孔君涛
建筑设计团队: 孔君涛、吉策、戴哲斌、吕骥超、谢欣准、王治国、李一繁
室内方案设计团队:孔君涛、刘轶佳、戴哲斌、翟羽佳、李昱丹、付栋栋
景观方案设计团队:孔君涛、戴哲斌
项目管理:徐燕宁、邹天辰
项目设计:2021.01~2023.12
完成年份:2024.1
项目地址:江苏省盐城市亭湖区向海路与运河路交叉口
建筑面积:92818㎡
摄影版权:章鱼见筑
委托方:盐城盐信高铁新城城市建设发展有限公司
合作设计:中国中元国际工程有限公司
幕墙顾问:上海睿柏外墙设计咨询有限公司
室内深化设计:苏州斐石建筑装饰有限公司、中国中元国际工程有限公司
照明顾问:上海格锐照明设计有限公司
标识深化设计:澳颖设计咨询(上海)有限公司
人防设计:中国中元国际工程有限公司
绿建及海绵城市顾问:中国中元国际工程有限公司
装配式建筑顾问:中国中元国际工程有限公司
景观深化设计:中国中元国际工程有限公司
▼ 更多精品·点击关注
本资料声明:
1.本文为建筑设计技术分析,仅供欣赏学习。
2.本资料为要约邀请,不视为要约,所有政府、政策信息均来源于官方披露信息,具体以实物、政府主管部门批准文件及买卖双方签订的商品房买卖合同约定为准。如有变化恕不另行通知。
3.因编辑需要,文字和图片无必然联系,仅供读者参考;

微信公众号“搜建筑”(ID:sjz9999)
合作、宣传、投稿
联系微信:soujianzhu006


