
该项目以环保为目标。尼基-德-圣法勒中学的设计采用了被动式建筑(Passivhaus),采用木质框架和稻草隔热材料。这是大区的第一所正能量学院,也是法国第一所用木材和稻草建造的 R+3 ERP。无论是在材料的选择上,还是在结构的紧凑性和功能的分布上,简洁的设计都给人一种自由的感觉:灵活的体量和可扩展性,适应了中学不断更新的内部生活。
The project aims for environmental excellence. Niki de Saint Phalle middle school is designed with a passive approach in the construction (Passivhaus), with its wooden frame and insulation straw. It is the first positive energy college in the Region Grand Est and the first ERP in R+3 made of wood and straw in France. The simplicity - in the choice of materials or the compact and functional distribution of the program opens up to freedom: the volumes, flexible and scalable, adapt to the always renewed interior life of a middle school.’’

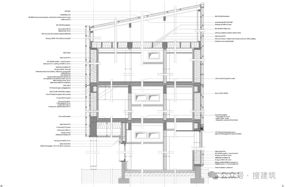
木制建筑。如果说木材让森林得以生存并抵御温室效应,那么它则是一种温暖、轻质、坚固的材料,具有很高的湿热功率。木材的使用和生物来源的隔热材料(稻草、木纤维和纤维素棉絮)的使用大大减少了项目对碳的影响,同时提高了能源效率。此外,“外壳 ”部分的重量也大大减轻,因为许多部件都是在车间里预制和组装的。
A wooden architecture. If wood allows forests to live and fight against the greenhouse effect, it is a warm, light, and solid material, with high hygrothermal power. The use of wood and the use of bio-sourced insulation (straw, wood fiber, and cellulose wadding) considerably reduce the carbon impact of the project, while improving its energy efficiency. In addition, the weight of the ‘shell’ lot has been greatly reduced since many elements have been prefabricated and assembled in the workshop.

还有稻草。在招标中,发包方要求使用生物源材料,但没有具体说明。MU Architecture 在洛林地区考察了生产建筑用稻草的企业。当地生产商的机器可以生产出 36 厘米厚的稻草包,这一尺寸超出了所需的范围。为了达到这样的比例,需要开发一种完全适用的木质结构。通过这个项目,木匠们得到了使用稻草的培训,稻草与絮状物和纤维素纤维相结合。
And straw. In its call for tenders, the contracting authority requested the implementation of bio-sourced materials without these being specified. Traveling through Lorraine, MU Architecture identified actors whose production of straw is intended for construction. Local producers’ machines produce bales 36 centimeters thick, a generous size that goes beyond what is necessary. These proportions required the development of a perfectly adapted wooden structure. Through this project, the carpenters were able to train in the use of straw, which was combined with wadding and cellulose fiber.

为生态转型服务的设备。风扇和绝热发电设备全年保持恒温,确保了学院内的热舒适度。整个建筑的设计还做到了无需供暖和制冷,能源需求低于 15 kWhEP/m²("法国近一半的建筑建于 1975 年之前。它们的平均一次能源消耗量约为 240 kWh/m²/年,而目前的需求量约为 50 kWh/m²/年",资料来源:生态转型部)。
因此,我们设计了厚墙,厚度为 60 厘米,其中 36 厘米用稻草填充。所有技术细节,特别是结构和围护结构之间的连接处,都经过了完美的研究,以获得完全的气密性,从而符合 Passivhaus 标签的要求。
Equipment at the service of the ecological transition. Fans and an adiabatic power plant ensure thermal comfort within the college by maintaining a constant temperature throughout the year. The whole has also been designed so that there is no need for heating and cooling and that energy needs are less than 15 kWhEP/m² (“Almost half of the buildings in France were built before 1975. Their average consumption is around 240 kWh primary energy/m²/year, whereas current requirements are around 50 kWh/m²/year” Source Ministry for Ecological Transition). Thick walls have, in this sense, been designed; they are 60 centimeters thick, 36 of which are filled with straw. All the technical details, in particular the junctions between the structure and the envelope, have been perfectly studied to obtain complete airtightness and thus meet the Passivhaus label.

空间的可读性。尼基-德-圣法勒学院的规划设计让每个人都能轻松找到自己的方向。对空间的直接理解及其衔接是该项目的基本原则。从入口处望去,宽阔的视角通向庭院和院落。宽敞的入口大厅也向楼上两层开放。使其生动活泼的楼梯将各个通道分隔开来。整体的处理突出了平面的可读性。大厅的木质檐口被翻转过来,特别是在内部的墙壁上。这种物质性有助于轻松阅读空间。同时,为了提供更多的舒适性,还扩大了流通区域,使其可以自由使用。
The readability of spaces. The plan of the Niki de Saint Phalle College has been designed so that everyone can find their way around easily. The immediate understanding of the spaces and their articulation is a founding principle of the project. From the entrance, a wide perspective leads to the courtyard and the courtyard. The large entrance hall is also generously open to the two upper levels. The staircase that animates it stages the circulations. This readability of the plan is underlined by the treatment of the whole. The wooden soffits of the hall are turned over in particular on the walls inside. This materiality contributes to easy reading of space. The circulations are also dilated to offer more comfort but also free areas, open to any type of use.

平面图
平面图
平面图
剖面图
示意图
示意图
示意图
本资料声明:
1.本文为建筑设计技术分析,仅供欣赏学习。
2.本资料为要约邀请,不视为要约,所有政府、政策信息均来源于官方披露信息,具体以实物、政府主管部门批准文件及买卖双方签订的商品房买卖合同约定为准。如有变化恕不另行通知。
3.因编辑需要,文字和图片无必然联系,仅供读者参考;

微信公众号“搜建筑”(ID:sjz9999)
合作、宣传、投稿
联系微信:soujianzhu006