▲ 更多精品,关注“搜建筑”
最近几年,“一层一户”这种奢侈配置的大平层越来越多,成为住宅市场的“宠儿”。
一层一户,空间布局是大平层最明显的优势,由于面积较大,所以能够轻易实现大面宽、多角度景观的空间布局,且能在一层内实现所有的功能分区。在一定程度上,大平层具有“别墅式居住体验”,因此也被业内称为“扁平化别墅”或“平墅”。
按常理,一层一户大都会出现在200+、300+㎡户型以上,而印象之中,把200㎡以下做成一层一户的产品,太奢华了,几乎很少见到。
小编费劲地还真寻来了几个“宝”,今天咱们就一起来发挥一下想象~
大面宽、全景观的空间布局
如今,越来越多的户型产品注重面宽尺度的大小,大面宽代表着更多的采光、更好的通风、更佳的居住体验,一层一户无疑独占整层,尺度之大,采光之足。
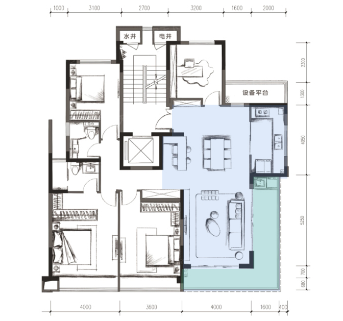
比如,台州碧桂园·玖都荟这款建筑面积约165㎡户型,一梯一户设计。其次,这款户型的南向面宽简直逆天了!居然做到了六开间朝南,南向面宽达到约19.6米!

台州碧桂园·玖都荟约165㎡户型
超大的面宽也决定了这款户型的舒适度:三个卧室、餐厅、客厅全部朝南,能获取更大化的阳光、风景与新鲜空气。
归纳一下几个亮点:一梯一户、超大面宽、六开间朝南、大横厅、双联阳台、三飘窗、超大总统套房、百变空间......
尤其是那个总统套房式主卧,面积达到约43㎡,配备了独立衣帽间、开放式书房、独立卫生间、风景飘窗,应有尽有。
扬州万科·华鸿 如园建面约172m²洋房户型也很惊艳:六开间朝南、南向面宽约19.6米,卧室、厨房、餐厅、客厅全部向阳,使整个空间都能更大限度的获取阳光和风景。

蓬莱碧桂园·江山一品建筑面积约180㎡户型更有约20米IMAX巨幕式面宽,餐客横厅、四卧室均朝南,格外增加空间的通透感。

蓬莱碧桂园·江山一品约180㎡户型
边厅户型为主流
功能分区、动静分区明显
边厅布局,放大了客餐厅的功能。先是把客餐厅合并成一个贯通完整的空间,再给其充足的采光面,形成270°观景效果,生活广角,容纳居住与社交。可以看到在一层一户大平层产品中,边厅户型已经成为主流。
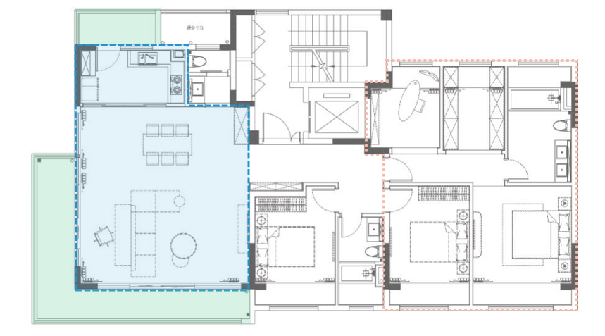
比如,济南中海臻园府建筑面积约200㎡户型,四室两厅两卫,它不仅拥有270°视野的观景阳台,而且南侧面宽达到惊人的19.6米,其中客厅宽度达到9.5米,真是大的可以跑步了。此外,它还拥有3个南向卧室,其中两个卧室拥有可打通的双阳台,阳台上是270°弧线玻璃,让整套房屋拥有满满的阳光。

济南中海臻园府建筑面积约200㎡户型
沈阳华发 龙湖·天曜建筑面积约185㎡户型,南向五开间,总面宽达到约18.3米。LDKG一体化边厅独占两个面宽,此外“转角无界设计”,客厅270°环幕落地窗,这个看上去真是太爽了。


华发 龙湖·天曜约185㎡样板间实景图
厨房开间也有5米之宽,非常舒适。三个南卧套房设计,总统主套卧也很有奢侈品的范儿,其中卧室对开门的设计,还没见过沈阳有哪个楼盘采用过。主卧开间4米,进深7米,空间巨大,不仅南北通透,而且是主卧四件套,卧室、书房、卫生间、衣帽间,霸气侧漏。
华发 龙湖·天曜样板间实景图
苏州琥珀半岛一层一户带270°观景阳台的约183㎡湖景大宅,4房2厅3卫,5开间朝南,超大边厅、南北多飘窗、L形拐角景观阳台。最重要的是,即便是阳台尺度惊人,也并没有牺牲房间其它地方的采光效果。
如果算上南侧卫生间,这个户型做到了5+1开间朝南。大边厅+双次卧+主卧套房+卫生间,全部位于南侧的采光面,且全部带有飘窗,户型整体大开间短进深,通风透气采光。厨房带北阳台,收纳和采光都好棒。三房朝南,均带飘窗,卧室全部集中在东侧,动静分离。主卧为书房+衣帽间+卫生间大套间设计。

成都花样年·望花溪建筑面积约172㎡户型,三房三卫,该户型面宽约16.1米,端厅布局,动静完全分区,其中客餐厨面积约78平米,配上11米长270°转角阳台,整体面积超过100平米,这种尺度的公共区域相当奢华,完全不亚于200多平米的豪宅水准。

成都花样年·望花溪约172㎡户型
花样年·望花溪约172㎡户型样板间 摄影:彦铭工作室

花样年·望花溪约172㎡户型样板间 摄影:彦铭工作室
主卧的宽度达4.7米,并带有步入式衣帽间和更加阔绰的主卫四件套。此外,次卧3.5米开间和3.2米开间也不错。

花样年·望花溪约172㎡户型样板间 摄影:彦铭工作室
花样年·望花溪项目效果图
嘉兴荣安嘉樾庄建筑面积约169㎡户型,也是边厅设计,餐客厅一体化相连,美呸径直传达,宽境观景阳台,全明空间,处处有景。南向双卧室带观景飘窗。主卧室套房进阶式休憩空间,自成一方私密天地。

嘉兴荣安嘉樾庄建筑面积约169㎡户型
横厅设计
宽境尺度演绎生活无限可能
不做边厅,横厅布局下的的尺度空间感也同样足够大。
比如,台州云栖望府建筑面积约176㎡云华大平层,近18米面宽,采用五开间朝南扁平户型设计,让所有房间通透明亮,真正做到了“让光来做设计”。
约6.9m横厅设计,连接约10.6米观景阳台,其中包含约23㎡的餐厅和约25㎡的客厅,餐厅除了常规打造成用餐区,还可以容纳精神层面的多种享受场景,改造成会客区、游戏区、健身区……展现自己独特爱好的品味和兴趣,制造强烈的空间互动感。

台州云栖望府约176㎡户型
成都北湖揽樾建筑面积约154㎡户型,3房2厅2卫,实现了200平以内的独梯独户,整体布局公区(动区)休息区(静区)分区明显。约7.5米超大横厅,外接同宽观景阳台,采光视野无敌。

东营中梁众成·悦岛华庭建筑面积约190㎡户型,4室2厅3卫,一户一梯,大大提高业主居住上的私密性与舒适性。约17.6米南向大开间,格局方正,空间利用率高。约6.5米横厅,客厅、书房一体化设计,外连同宽观景阳台,南北通透。

横厅书房空间可以由业主进行自主改造,根据需求打造为茶室、品酒区、亲子区等多功能X空间,提升场景社交互动功能。
众成·悦岛华庭实景图
众成·悦岛华庭实景图
豪华双主卧套房设计,配备独立衣帽间,私享尊贵人居。主次卧自带观景飘窗,将视野向外延伸,增加卧室纵深感。公卫干湿分离设计,于细节处提升居住舒适度。

众成·悦岛华庭实景图
创新「黄金四角」设计
空间、视野再升级
再来看几个不一样的:
广州越秀居山涧的几款一层一户产品创新黄金四角,将空间视野再次升级,从进门开始,你仔细看会发现不太一样的地方。
普通一层一户,有一个L型观景阳台已经很厉害了,居山涧一下子做了四个!
四个大尺度黄金转角——三个270°观景长飘窗,加上超大转角阳台,构成总共四个巨幕观景区,这意味着去到哪个角落视野都是270°环幕的。
如,建筑面积约190㎡一层一户户型,客餐厅自带270°大飘窗,外面连约13米转角大阳台,就像住在玻璃房一样,环幕都是山林。
广州越秀居山涧约190㎡户型图
约13米长L型阳台,包裹整个客厅;
L型长飘窗结合景致融入室内,
既可与室内互动,又能向窗揽尽自然风光,坐看四季轮回时光悠悠。
约190㎡户型,与山仅相距7米,单看户型图,简直可以用全屋都是飘窗和阳台来形容。

约190平户型样板房实景

约190平户型样板房实景
建筑面积约160㎡户型,南北对流,全南向功能房;约7.7米270°IMAX级环幕宽景视野。160㎡户型,大宽厅+开放式茶室+主次卧六面宽朝南,约21米超长采光面,全屋都是阳光。
广州越秀居山涧约160㎡户型图

约160平户型样板房实景

约160平户型样板房实景

约160平户型样板房实景
结语
在城市飞速迭新的时代,构建舒适人居体验,对可能性的不断探索探究,将会是一切美好的起点。不得不说,在琳琅满目的高端市场中,暗藏了无限惊喜,开发商对市场的理解也更“大胆”了。这样超前的一层一户做出了更大胆的生活场景革创,对空间的属性和功能进行了新的定义。
本资料声明:
1.本文为建筑设计技术分析,仅供欣赏学习。
2.本资料为要约邀请,不视为要约,所有政府、政策信息均来源于官方披露信息,具体以实物、政府主管部门批准文件及买卖双方签订的商品房买卖合同约定为准。如有变化恕不另行通知。
3.因编辑需要,文字和图片无必然联系,仅供读者参考;

微信公众号“搜建筑”(ID:sjz9999)
合作、宣传、投稿
联系微信:soujianzhu006



