▲ 更多精品,关注“经典人居”
我们先简单看一下市面上168户型的一些关键词:全优大四、五房、行政主套卧、超大横厅一体化、私享入户电梯厅、南北双阳台……功能组合上已经完全具备180㎡甚至200㎡大户气质。
无论是三孩时代还是三代同堂,无论家庭结构如何变化皆可轻松同住,一步到位,无需换房。
搜建筑本期为大家推荐11套建面约168㎡户型。
1
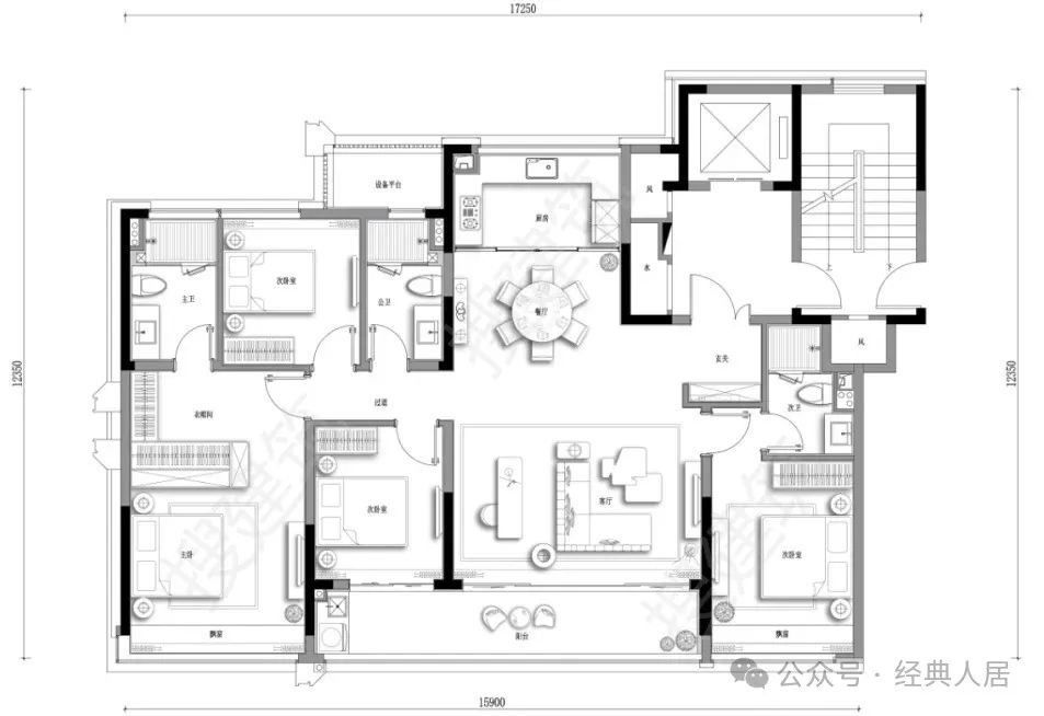
长沙招商雍山湖项目总建面约27万㎡,由7-8层洋房和18层小高层组成,容积率仅约2.02。其中小高层户型,二梯二户,全部南北通透。
建面约168㎡户型,四房两卫的合理排布,让每个空间的生活体验感都超级舒适,又保持了每位家庭成员的私密性。

一梯两户纯板楼,独立玄关+独立电梯厅设计,实现入户电梯与家的自然过渡,尊重户内的私密性与隐蔽性;尊崇中轴设计入户玄关、会客社交娱乐休憩有序布局;客、餐双厅一体,南北双阳台,约7.5米南向观景阳台,彰显人生尺度;豪华双套房设计,三卧室向阳。
该项目已实景交付入园即见叠水景墙,在归家的仪式感之外,增添了几分动感。

项目实景图
2
杭州湖翠云来府建筑面积约168方和约200方,都是四房改善格局,层高也都拉到了豪宅标准的约3.15米,甚至还都是类一梯一户的设计。

建面约168m²南向五开间约15.9米,约8.6米双联全景阳台,三开间阳台一字排开,创造性地引入“方厅”概念,将“LDK一体化”,创造出“洄游线路”,疫情之后,更注重对家庭成员情感间的联络。

样板间实景图
湖翠云来府的外立面,用了超高窗墙比的玻璃体立面,镶嵌金色铝板线条,做出了高颜值的「折角画框」。南面和侧面几乎全部都是大面积的玻璃,几何倍数拉升了整个楼盘辨识度,同时也让建面约200方边套的室内空间,拥有了270度的IMAX超广角视野。

湖翠云来府效果图过程稿
3
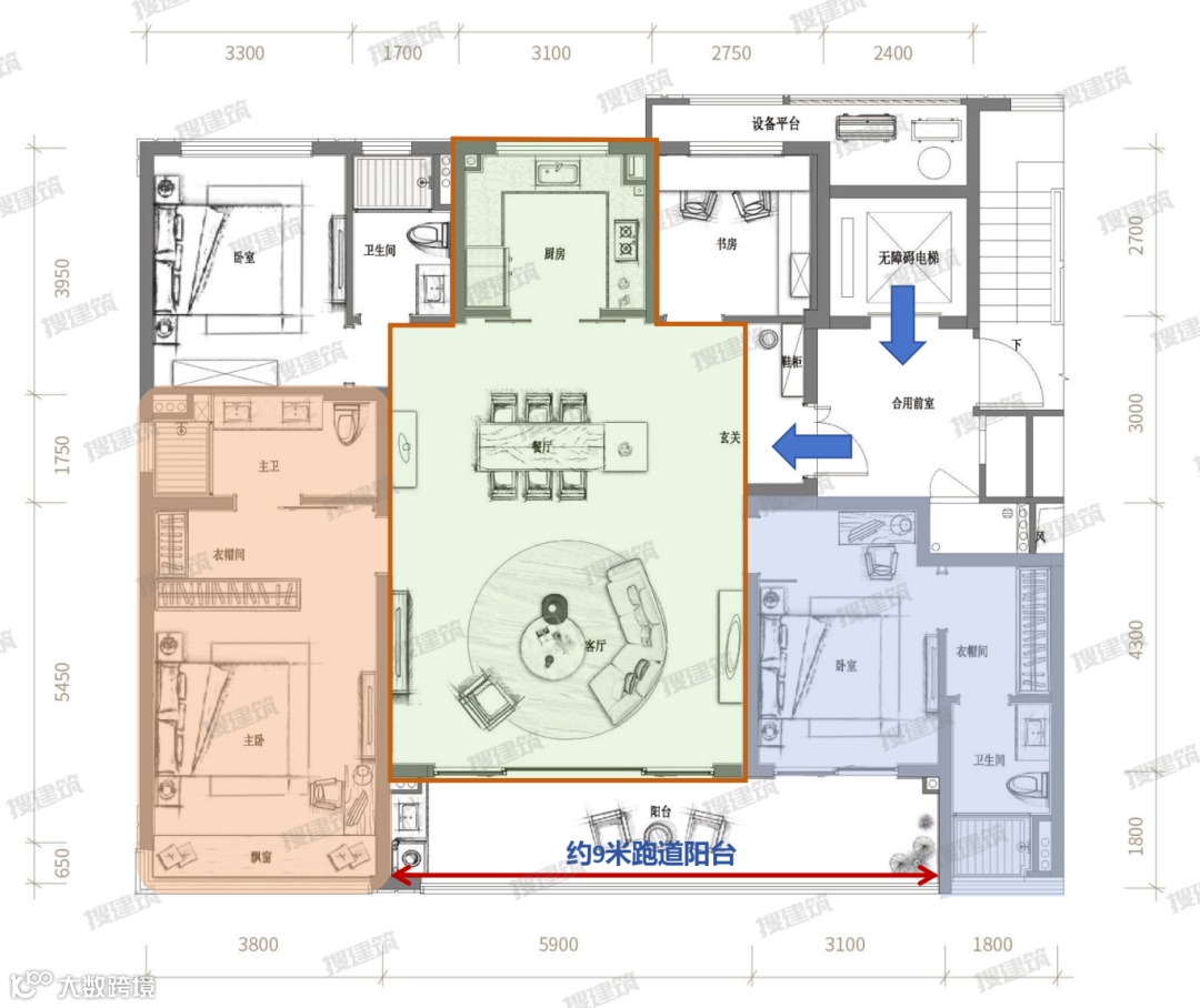
保利天珺的“第四代住宅”,奇偶错层布置,保利·天珺将“空中院馆”的概念带到实际居住体验中,让“庭院”在空中延伸。

保利·天珺项目效果图
建面约168㎡户型是4房2厅3卫的产品,整体的设计比较均衡,虽然不是完全独立的电梯厅,但每户各自门前有一个电梯,两户的电梯厅相隔有一定距离,做到了专梯专户独立归家的效果。
入户迎面而来的就是超大的一体化的横厅,LDKG设计,南北通透,露台都在南侧,偶数层露台在客厅和次卧外面,奇数层露台在客厅和主卧室。

餐厅的尺寸够大,厨房连接一个生活阳台,避免了在客厅晾衣服的尴尬,非常实用。
非常人性化地做了双套房设计,老人套房方便使用,主卧套房配置衣帽间和独立卫浴间,双台盆的设计十分方便便捷。

西安保利天珺实景图
保利天珺采用湾流镜面曲线的立面设计,通过自然造物的弧线美学与光影器物得相融合;每户超大南向阳台向外衔接通高约6-6.2米延伸空间,恰如一艘停靠在安静港湾的游艇,随时驶入更广阔更高处的自由之境。

西安保利天珺效果图
4
融创金成·山海大观住宅区域由2幢23层高层住宅、1幢25层高层住宅、1幢26层高层住宅和5幢10层洋房住宅构成,设计上强调空间尺度的舒适性,以格局紧凑、大宽厅、大阳台的配置提升产品竞争力。

鸟瞰实景图 摄影师丨张阳
其建面约168㎡户型,两梯两户布局,私密性强,互不打扰,出行更自在,居住更惬意。五房的设计,四开间朝南,带来的IMAX级巨幕阳光面宽,让空间无限延伸,视野极广阔,阳光、清风随心入室。
全明通透、空间感极奢的客餐厅,南北分别连接超大景观阳台和生活阳台,延伸多重待客空间,显得非常气派。

建面约168㎡户型示意图
立面设计利用弧型折板、“C”型飘板造型、大玻璃面等元素,在城市空间形象上形成呼应,打造视觉冲击力震撼、立面效果纯粹轻盈的形象。

实景图 摄影师丨张阳
5
郑州保利缦城和,容积率仅2.89,是区域内最低容积率住宅楼盘。其规划有25栋19—24层高层和13栋7—8层洋房产品。“高层+洋房”,是其特质。

鸟瞰图
项目一共规划有四个面积段:98㎡(小高层)、128㎡(小高层)、148㎡(洋房+小高层)和168㎡(洋房+小高层),其中148㎡和168㎡户型占比差不多50%,面积段上极近改善,全部精装交付。
一起来看下洋房168㎡的四室两厅三卫。

横向约13.8m超大面宽,类四叶草布局敞阔,无浪费面积;约8㎡的私家明厅电梯厅,约1.6m³的国内知名品牌的玄关柜,打造高利用率入门场景。
LDKB厨房餐厅客厅阳台一体化,客厅的开间6.6米、南向景观阳台开面9.9米,超大尺度,尽显豪华与奢侈;更关键的是飘窗、阳台赠送面积非常多,得房率极高。南北通透,动静分区,南北向客餐厅阳台一体化LDKB设计。

户型样板间实拍图
奢华酒店行政套房式主卧设计,约3.9米开间,配置明卫设计,双台盆设计,一应俱全的高阶想象力,享受生活的私密感与尊崇感。

户型样板间实拍图
缦城和颂特意选用了现代极简主义的建筑立面,大线条铝板搭配玻璃幕墙,整体质感得到大幅提升。

洋房楼体效果图
6
杭州西房·宸鹭香舍设计6幢楼,围合出一个约8600方的中央花园,主力户型相对纯粹,建筑面积约139㎡、168㎡的平层,以及少数几套245-275㎡的空中跃墅。

西房·宸鹭香舍鸟瞰效果图
我们来看一下建面约168㎡户型,「1梯1户」、4房3卫、双主卧套房、双台盆、超级方厅……

1梯1户的设计拥有独门独户的电梯厅,几乎等于电梯直接入户,尊贵感和自在感拉满。每个空间的尺度都足够宽绰,比如客餐厅一体的超级方厅,进深超7.3米,面宽将近6米。

西房·宸鹭香舍样板房实景
方厅连接长约9米、进深约1.8米的超宽阳台,这个尺度都能够搭个小型天幕,在家里「露营」了。
7
西安金泰·唐樾面积段锁定在125-168㎡,为想要获得主城生活圈层的年轻改善家庭,提供更多选择。项目无论是外立面还是整个社区,都主打唐风格。

金泰·唐樾建筑立面效果图
建面约168㎡户型,入户外玄关+室内玄关的双玄关设计,形成相对独立的消杀空间,守护归家健康,同时最大程度保障住户生活的静谧和隐私;南北双阳台的设计,非常舒适;厨房+餐边柜设计,保证足够操作空间以及小家电、餐具收纳。

8
江门海悦天晟首推户型主打建面约94㎡-168㎡,户户享超级大露台,重新定义新一代隐奢作品的居住方式。

项目效果图
建面约168㎡4+1房2厅4卫,一大亮点是空中露台,面积高达约11-22㎡,粗略算下来,整体赠送面积同样近50㎡,相当于市面上4间卧室,实用率极高。(奇数层约11㎡,偶数层约22㎡,同层使用,具体以开发商公示为准)

约7.2米面宽大方厅,LDKB一体化设计,连接约23㎡的巨幕景观阳台,均能尽情享受风景。
三套房设计,为家庭成长预留了奢适空间,三代同堂都能享受独立卫浴,互不打扰保护私密空间。其中主卧套房拥有约4.4米面宽,搭配步入式衣帽间、酒店式豪华面盆&大浴缸的星级主卫,将主人的起居尊崇感直接拉满。

效果图,仅供参考
9
杭州樾章璟琇名邸由操刀过苏州桃花源与杭州沁园等的GLA(绿城六和)设计,景观设计则是经常做豪宅园区的深圳奥雅。规划建面约139-190㎡户型。
樾章璟琇效果图
建面约168㎡户型也是五开间南格局。独立玄关+独立电梯厅设计,超大独立玄关厅,实现入户电梯与家的自然过渡,尊重户内的私密性与隐蔽性。公区LDKG一体化设计,U型厨房可开可合,南北通透三联阳台。双主卧套房的设计,均带飘窗。


建筑外立面是三面铝板+大玻璃,高窗墙比,建筑视觉感受更通透大气。

樾章璟琇效果图,仅供参考
10
南京金鼎湾·和禧项目设6栋17F小高层,建面约168㎡四房两厅三卫户型

建面约168㎡“揽月台”户型,为四房三卫配置,得房率约80%,分布在项目的6-7-9#三栋楼。
类1梯1户;四开间朝南,大横厅面宽约5.7米,阔景阳台开间约8.7米,双套房;主卧疑似带浴缸,配步入式衣帽间。

金鼎湾和禧项目效果图
项目外立面采用铝板一体板+石材+大玻璃幕墙设计、颜值较高,另外,该地块西侧及北侧被河流环绕,未来位于地块西侧及东侧前排的楼栋可以观河景。
11
长沙龙湖翠湖壹号建面约168㎡户型,四面宽朝南,通风采光俱佳。独立电梯入户,双玄关设计,带来极致的归家体验。豪华的中西厨设计,尽享舒适操作。南向约7.8米双联阳台,也是LDKG一体化设计,客厅设计了多功能空间,还独立的生活阳台。


样板间实景图
结语
各大房企针对改善真是下足了功夫。
对于居住细节的把控,也近乎偏执,从择址到项目外立面打造,再到户型设计,每一步都将细节处理的极致,完全贴合了购房者的真实需求,将功能性、实用性以及居住舒适度完全考虑在内。
本资料声明:
1.本文为建筑设计技术分析,仅供欣赏学习。
2.本资料为要约邀请,不视为要约,所有政府、政策信息均来源于官方披露信息,具体以实物、政府主管部门批准文件及买卖双方签订的商品房买卖合同约定为准。如有变化恕不另行通知。
3.因编辑需要,文字和图片无必然联系,仅供读者参考;

微信公众号“搜建筑”(ID:sjz9999)
合作、宣传、投稿
联系微信:soujianzhu006


