房地产进入“产品为王”的时代,谁能真正定义高端豪宅?强大的产品力才是亘古持久的传承品。
搜建筑组织参观过多次全国各地的楼盘考察活动,也收到多个项目的隆重推介,不难看出各大地产匠心倾呈的高端作品产品力惊艳,一浪高过一浪,只为给予人们更为高阶、理想的生活方式。
这期搜建筑分享:十大高端住宅(洋房、小高层)

以下排名不分先后~
“金基孤本,中国名园”——金基瞻月府是对中国园居生活理想的重现与再造。
金基瞻月府,居金陵城芯之上,北揽紫金山,南御秦准河,占位天赋稀贵的园居宝地。基于此,金基瞻月府更别出心裁打造了三重园境,即一重绿肺——占地约1000亩湿地公园(约90个足球场大小,俨然主城自然园林绿肺), 二重高台——坡地公园,三重巡隐VILLA园境——师法瞻园的景观造园。

传承千年东方归家礼序,大手笔构建七重归家礼序,将自然、礼序、匠艺融进人居生活,给业主归家途中制造了一个放慢步调调整心境的空间。



社区园林借鉴瞻园规划布局及手法,以“一环一轴”景观格局,根据场地特性和地块条件打造瞻月十二园——三大庭院空间+九大宅间名园,让建筑生长于园中。

示意图,具体以政府验收及实际交付为准

瞻月府的外立面一眼就惊艳,采用了进口葡米纯石材、仿铜铝板和整面玻璃打造,质感拉满。屋顶采用进口曼宁家深灰色陶瓦屋面,让建筑更加富有东方韵味。

瞻月府园境实景图,具体以政府验收及实际交付为准
设计细节上,相较于传统建筑的处理方式,其独特的“四感融合”立面匠造工艺,精致感、细腻感十足,让建筑成为艺术。约0.48超大窗墙比,营造出建筑的轻盈、透亮和灵动感,IMAX级全景落地窗+270°转角窗,拉近了室内外的距离,带来宽幕无界的观景视野。

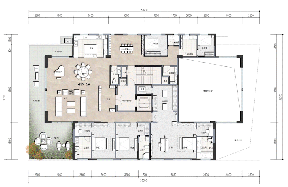
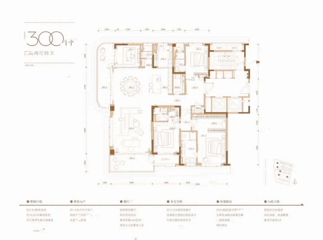
项目打造6-7F的低密洋房,容积率仅为1.3,户型建面约172-320㎡,共计246套,款款户型都由内而外地散发大宅气场,是主城非常稀贵的真洋房。

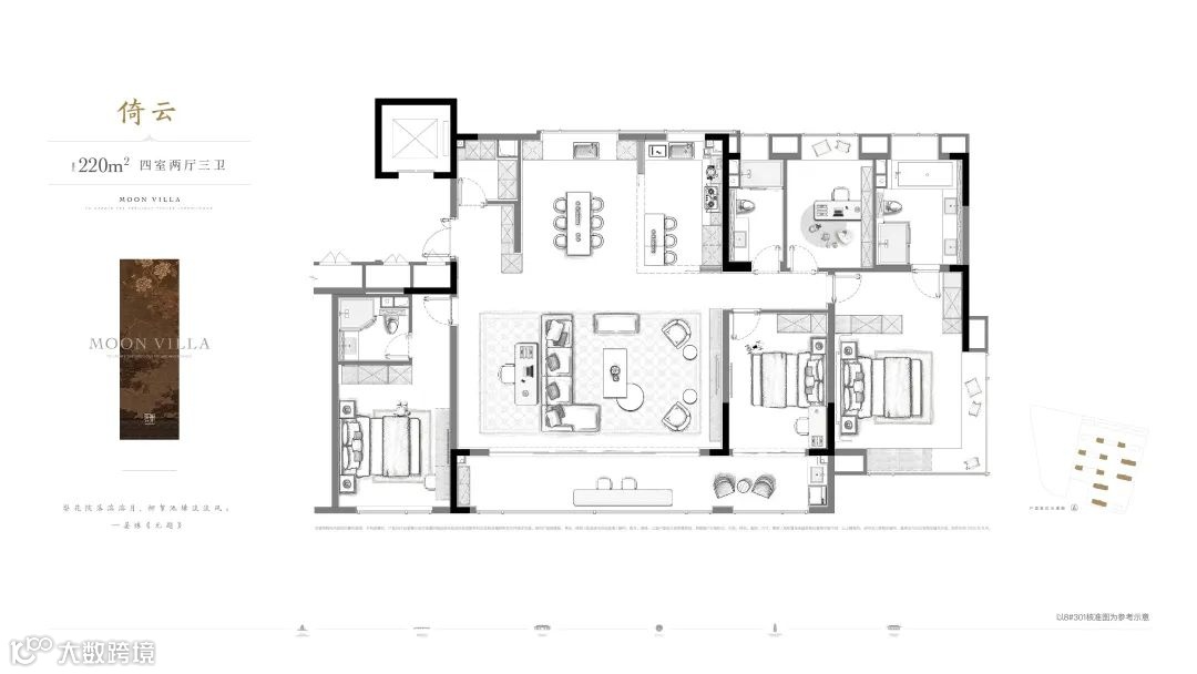
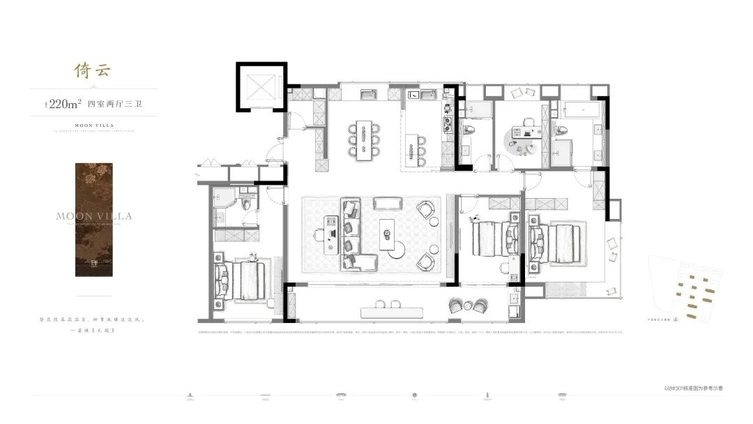
建面约220㎡四房两厅三卫户型:约8.5m横厅空间,人生阔境,由此而起。约11.8m跑道式奢阔阳台设计,将尺度感拉满。主卧套房配备270°转角飘窗,一城美景尽收眼底!

建面约220㎡户型图

瞻月府园境实景图,具体以政府验收及实际交付为准



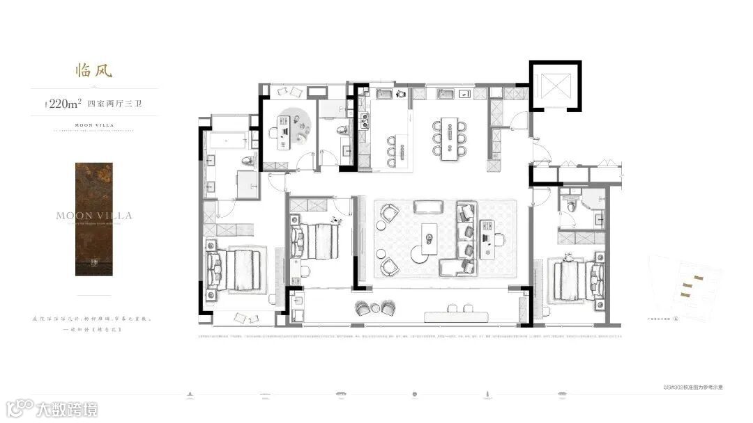
户型示意图
约2200㎡藏品级会所,沿用安缦酒店隐奢风格,开启空间美学、圈层社交的全方位延伸。涵盖行政酒廊、恒温泳池、健身房、理疗室、瑜伽舞蹈室等,定制高端生活合集,处处彰显高奢度假感,每一处细节,都能让人感受到精致的生活内涵。


瞻月府园境实景图,具体以政府验收及实际交付为准
超高颜值“殿堂级”豪宅车库:入口密封拼接大板墙面、环形序列条灯、苍穹星空顶、艺术吊顶、双重礼序地库大堂、超高车位比、MAC洗车服务等全维升级。

香山樾位于海淀香山别墅区腹地。项目占地约7.38万㎡,是区域近年难得一见的大面积高端纯质地块,容积率仅1.05。该区域近20年高端改善用地供应不足10宗,3年以来北京过百宗供地中仅占2宗。

效果示意图
香山樾近山不靠山,让其拥有良好的观山视野。“一面香山,三面公园”的地形特色,使香山樾与自然相融。规划上,借鉴了明代造园家计成“园林巧于因借,精在体宜”的理念,牺牲了南北整体的楼栋排数,引香山入园,实现““半与香山共生、半与自然和融”的居住体验。
建筑上,蓄古法匠心,肇时代新章。香山樾力邀朱斌、刘骅、王少青等中国建筑设计师擘绘,承中国建筑至高精粹-天、地、人三段式为骨,造就海淀之上的宋韵家府。

以宋式审美为参照,九脊歇山顶的屋檐、侧山墙悬鱼樾的图案、灰色龙鳞瓦、飞云脊、蓝眼睛石材、超白玻、绿色环保材料天青色仿汝窑陶板结合,石嵌金,金镶玉等多个标志性建筑符号,致敬传统宋风建筑,既符合当代审美、又深得传统精髓,地标感十足。

园林景观上,以宋式美学为底蕴,取天青宋韵之形制意蕴,造一方隐贵幽静之天地。以《三山五园图》为载体,取《千里江山图》和《溪山行旅图》纵横之形,融《瑞鹤图》+北宋瘦金体之意,造就两轴五园十六景,重现风雅盛世。


效果示意图
香山文化的底蕴,地块本身的文脉,这些宝贵的财富,都被融入到香山樾的社区中,赋予了它放眼北京豪宅市场独一份的文化色彩。

效果示意图
香山樾以纯粹的改善需求为导向,探索高品质生活方式与精神需求,以1.05容积率,匠造建面约184-273㎡隐奢豪宅,全部为舒适大四房,致敬当代隐贵家族的人生主场。

鸟瞰示意图




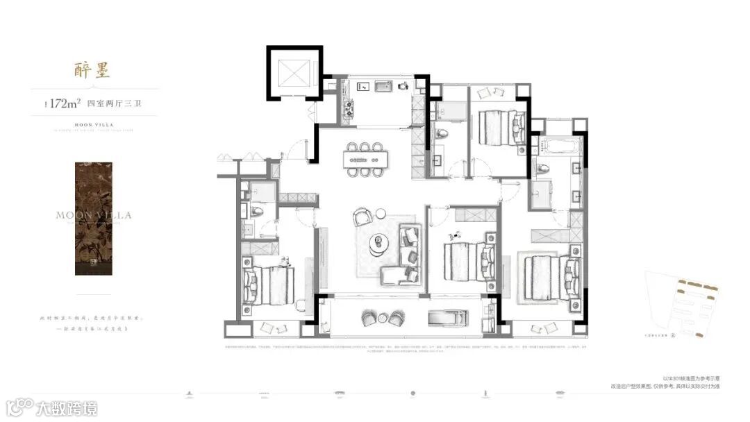
部分户型示意图

实景图
花园阳光地库入口;超大尺寸车道车位;阔绰尺度层高;特色装标星空光厅,形成独特的归家仪式感。

效果示意图
阔绰私属电梯厅;定制铸铝装甲门,配以名家定制图案,集成华为智能门锁定制门牌号,采用非遗传承大师亲手锻錾的纯铜门牌,尊崇感满满。

效果示意图
重庆保利&中粮 • 天玺壹号由两大世界500强企业中粮和保利联袂打造,是中粮“壹号系”和保利“天字系”的产品合著。以自然生态资为基底,集聚城市资源,于中央公园烫金一环打造约300亩纯粹改善大盘,1.43超低密容积率、27.58%建筑密度,营造核心之上的隐奢生活场,仅规划纯板式洋房、大平层纯粹改善业态,给予更纯粹的居住感受。

实景图
[超流体大平层]颠覆了传统建筑的直线与棱角的横平竖直,融入超跑惯用的9°曲线设计,赋予建筑更多灵动之感。
大面积玻璃和金属铝板线条的运用,让整个建筑在阳光下呈现出钻石般的隽永质感,带来强烈的视觉冲击。

实景图
建面约102-143㎡光幕洋房,建面约160-200㎡超流体大平层,适配不断变化的居住需求,全T2板式、专属私梯入户,给予居者舒适便捷与尊崇体验,创新设计约270°环幕方厅,LDK一体化客餐厅,带来奢阔视野与无限场景,引领生活方式的革新。


在园林景观方面,约30万方低密大盘,“三分建筑,七分园林”,让建筑隐于自然,打造「都会山林」为愿景的园林景观,天玺壹号更是直接将大师级超现实自然作品——“玛格里特之窗”搬到了居住者的日常生活中,呈现出多层次美景。


实景图
通过提取画作中“树、林、水、云”四大经典元素,打造出四大景观画境。并且对艺术雕塑、名贵绿植、高级石材等全球顶级材料进行了创造性地构建重塑,为居住者带来如艺术品般精奢雅致的生活。



作为2023年龙湖推出的定制化高端产品系,「云河颂」对奢宅的表达是全方位的,从择址,到定位、选材、审美,都有一套复杂苛刻的标准。
龙湖带着“定制”的初衷去打造每一个云河颂项目,“中国第四座,苏州第一座”云河颂在择址城央/大师艺术/精工匠造/圈层奢享四大准则之上,更融合在地文脉与匠艺,成就独具江南隐奢气质的苏州正心上典藏级大宅。

实景图
仅示范区的展示面,就能看出它造价不菲,超长仪式感门头、汉白玉雕塑、泰山迎客松、来自异域远邦的奢石……



实景图
约1.4的低容积率,仅打造了6栋纯洋房,最大楼间距约70米,约35%的绿化率,让每户业主享受约100㎡的绿地。在这样的高配规划上,项目户型共打造了建面约178/187/225㎡三种大平层产品。

鸟瞰示意图
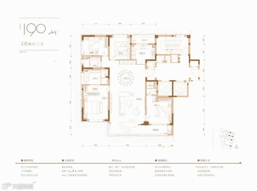
建面约178㎡户型,四房两厅三卫,整体南向开间约15.4米,四开间朝南,独立电梯厅、双套房、双联阳台、主卧主卫设计了双台盆,淋浴+浴缸全配置,公卫三段式分离。

建面约187㎡户型,四房两厅三卫,边厅设计,客餐厨一体,“L”型瞰景客厅,西侧可观运河,采光佳。

建面约187㎡户型示意图
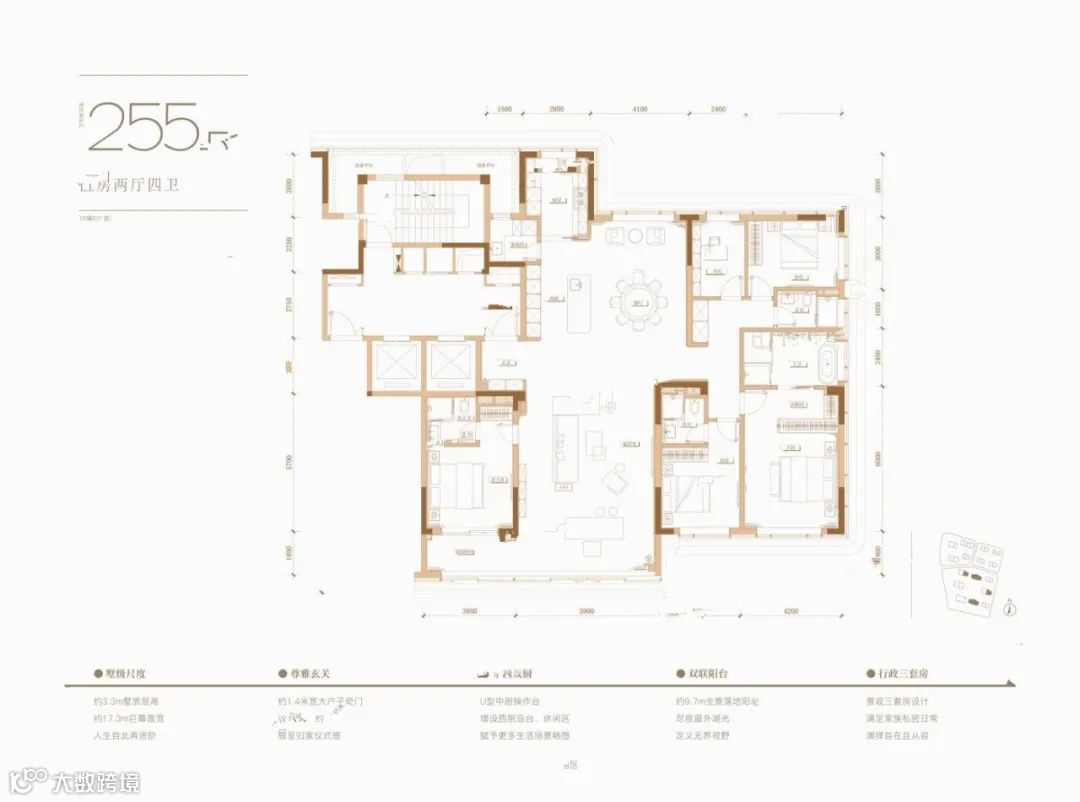
225㎡是三个户型中建面最大的,奢华感拉满。约18.6米的巨幅墅感面宽,大横厅+超宽景观阳台,保证室内充足的采光。LDK厅建面约79㎡,厨、餐、客空间一体化。中西双厨设计,满足全家人的口味需求。同时厨房连接独立的家政间,与起居空间分离,互不打扰。


实景图
云河颂样板间更是以100多项细节诠释了超奢的设计美学。
3D弧形叠级穹顶柔美流畅,与玄关高低呼应,层次分明且优雅。入户处的巴西透光玉石、卫浴柜的发光石材、卫浴台面的威尼斯灰石材,900*1800mm、自然纹理无缝相连的简一大理石瓷砖……
云河颂联袂四位超级大师,只为造就云河珍品。摈弃了传统建筑的横平竖直,以宾利超跑曲线为灵感,糅合大运河九曲河道,将云河线条水影凝固于永恒建筑,同时奢华钻感玻璃幕墙将云河映衬在楼体之上,铝板线条勾勒出鎏金曲线。

效果示意图
云河颂打造【云·涧】高定艺术会所,灵感源自京都的下沉式琉璃光院,带来四季流转,美轮美奂的极致美学体验,且并非是高端建筑材质的简单堆砌,更在于其功能空间所带来的的感官享受,将私享会客厅、健身房等活动场域,打造成集社交、运动、休闲、娱乐于一体的高定隐奢空间。

实景图
和悦塘前雅院项目,是由相高新控股和旭辉建管联袂打造的TOP级产品,为苏州终极改善客户定制“城市森系生活”。

效果示意图
项目外立面以简洁的艺术表现手法,摄取现代元素的同时,结合屋面挑檐,重塑现代立面的中式内涵。巨幅高透玻璃、银灰色铝板、部分石材,超高窗墙比。



全盘容积率仅1.5,规划19栋清一色6-7层低密纯洋房产品(大平层+纯洋房)。建筑面积约169-220㎡三种产品户型全部做到了巨型客厅、超大落地窗,以突破性的产品,真正回归居住本质。

鸟瞰图
建面约191㎡户型,客厅为标准的大方厅,面宽约7.2米,公区面积近90个平方,阳台面宽约10.4米,还有一个北阳台,双套房……

样板间实景图
建面约220㎡户型是产品的一大突破和升级,一层一户设计,边厅+270°真转角阳台,空间感和视野感都十足。4房3卫,整体约21.8米朝南超大开间,LDKG一体化设计,2大套房,南北双阳台,全屋飘窗……

长度超约17米的270°转角阳台,采光面被进一步放大,营造出环幕瞰景视野,窗外美景宛如正在上映的3D大片在眼前生动演绎。


样板间实景图
精奢酒店礼仪式入口、独立的社区大堂、地上地下双大堂入户、星空地库、架空层泛会所……


实景图


摄影:曾征

摄影:曾征
景观设计森系生活下承载了苏州“城市山林”于繁华中见恬静的美好生活,勾勒出一种源于自然本真的幽静与深邃。


摄影:曾征
今年“业内最红”房企——「金沙」,金沙逆市劲销、高标交付,这在业内已经形成“金沙现象”,更是成为了现象级“网红”考察对象。
尤其是传说中的神盘金沙東院,作为徐辉设计的产品超前。极简立面、创新户型、严苛选材、精细施工,罕见震撼的社区景观、精细化交付标准……

实景图
在产品设计上,徐辉设计通过对户型的创新、严苛的尺度考究,打造出高端住宅新样本。整体规划14栋平墅,仅333席东方墅居,43座藏品级院子,层高标准层高在3.15米,楼王标准层高在3.3米,局部超高挑空6.6米——设置了双层挑高空中庭院,无柱悬挑6.5m,覆土40cm,突破了常规阳台的空间尺度,带给业主超尺度的生活空间享受。
创新户型:420㎡一层一户,6.6m超高挑空

效果示意图

约420㎡户型首层设置超尺度惬意花园,推门即景,尽揽自然风光。

约90㎡开放式客餐厅搭配6.6m超高挑空,超大开间及超大落地窗设计营造无边界视觉效果,搭建疏朗开阔的空间,使房间通透感十足,视野豁然开朗。

户型平面图
高标准的精细化毛坯交付


金沙·東院的立面设计弃繁至简,简约高雅,突破传统窗框比的桎梏,以现代极简立面,表达项目的高端格调,项目外立面为全亚光银灰色铝板配置,搭配中灰色YKK全落地系统窗与浅蓝灰中空Low-E玻璃,通过浅银灰横向线条与深灰色铝板的对比,化繁为简,摒弃冗余。

在金沙東院的景观语素中,石树成骨,水以点睛。一景一物,手工锤锻、雕琢栽植,皆以自然求真为本,力求为居者带来纯净、沉浸的静泊之美。

走进金沙東院下沉庭院,就如同进入了一座拥有丰富多样植物的公园。
实景图
在金沙東院到处都是看得见的、看不见的细节,每一个细节背后都有一个匠心故事,全部真材实料,肉眼可见的高昂成本,更将工艺把控到毫米级,拥有超强的落地能力。
比如,金沙東院大门两侧景墙采用珍贵黑冰钻花岗岩;两侧栽植的10棵珍稀古松,每棵树的朝向都经历了无数次现场调试;为了营造返璞归真的山水园林,搜罗了大量的深山老石、名贵的百年古树。

实景图
比如,定制艺术级地下车库、入户门、“隐藏”消防门等等。


实景图
就连园区里一个毫不起眼的小组件,如花池灯箱、草坪灯、地漏、取水阀+雨水口等都要进行五次打样。





作为宁波老字号豪宅开发商——雅戈尔,打造了宁波市场很多开天辟地的大作,从海景到新海景再到比华利,此次,在沉淀和思考后代开的新作明湖懿秋苑,是它对于产品力的全新诠释。

效果示意图
非对称立面的设计,非常具有辨识度。建筑师运用了富有张力的大量弧线元素,搭配金属斜切面和落地玻璃窗,类似游艇般的超流体立面,弱化了建筑立面和天空之间的边界感。这样的外立面不光颜值超高,并且更为通透,视觉感受很无敌。

效果示意图
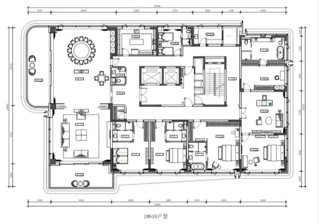
在户型设计方面,雅戈尔这一代的产品算是卷出了自己的新高度。项目湖居大宅,主力户型250-300㎡,少量190㎡,最大的户型达到618㎡,意味着更纯粹的圈层、更舒适的空间尺度。巨幕LOW-E中空玻璃设计,搭配超大面宽景观阳台,实现景观的更大化。

鸟瞰效果示意图



建面约300㎡户型示意图

精致的东方意境园林景观也让人印象深刻,以“大隐于市”为设计理念,通过西明湖、中街、内园,整体形成可观、可游、可居的山水园居的生活场景。抬高的观湖平台形成立体园林,以及融于明湖的绿植景观,代替了传统社区围墙,实现社区和明湖的融合。

效果示意图
大门实景
项目流体美学外立面,灵感源自建筑大师Zaha Hadid代表作——新加坡丽敦豪邸,以流畅飘逸的线条形成海浪般的先锋美学,以定制的鎏金铝板、金属隔栅、蓝灰色玻璃等贵重材质精工拼接,雕琢出流光溢彩的动感立面。


立面实景
为营造南太平洋度假秘境,项目在约4200㎡的中庭里规划了约1400㎡滨海度假水景,周边布局迎宾叠瀑、海边漫步、水上俱乐部、漂浮岛屿、海上花园、雨林花园等七大景观,并选种棕榈科贵族品种银海枣等多种热带风情植物,实打实呈现的成都“海岸”生活场景,这才是成都独一份的豪宅景观。


实景图

鸟瞰意境图



入户大堂也是别具一格,大堂背景墙使用土耳其进口奢石,顶部还做了精致的圆弧吊顶,高奢精致化仪式归家。
实景图
星光集团2023开篇力作——东关玺园,为满足水城高净值人群对居住品质的渴望和追求,在老城区小东关街旁匠心打造峯层之上的精神进阶之作。


效果示意图



珠海华发·湾玺壹号——华发新一代TOP系 湾区壹号作品。依托天赋异禀的城市资源、无可匹敌的地段价值以及超强的产品力,打造粤港澳国际高端CBD大城的封面之作,新一代国际湾区生活范本,湾区壹号封面TOP级豪宅作品,刷新业内新标准。

鸟瞰示意图
项目社区景观由享誉全球的JTL景观设计倾力打造,同频安缦生活范式,布局“缦厅、缦山、缦岛、缦巷”四大模块,营造一种兼具美学感、体验感的东方热带美学隐奢度假场景,让每一位居者能够切身感受到“舒适、愉悦、放松、简单”的生活方式,寻得真正属于内心的平静感。

实景图
约97米的巨幅恢弘跨度门头、酒店式环岛落客,仪式感十足。




实景图
湾玺壹号安缦系度假园林,更把巴厘岛同款的无边际叠瀑泳池搬进了社区。

实景图
湾玺壹号建筑立面由gad设计团队操刀,用公建化极简美学理念,大面积玻璃幕墙+金属板材+石材,与曼哈顿、伦敦的城市豪宅同频,更大化考虑采光与景观资源的享受。

实景图
项目的洋房产品,以超高的得房率,将空间感的贯彻,精确到每一平方米。



样板房实景图



样板房实景图
结语
豪宅研发越来越卷是不争的事实,然,豪宅研发亦没有捷径,唯有时代匠心之作,方可令之倾心。
本资料声明:
1.本文为建筑设计技术分析,仅供欣赏学习。
2.本资料为要约邀请,不视为要约,所有政府、政策信息均来源于官方披露信息,具体以实物、政府主管部门批准文件及买卖双方签订的商品房买卖合同约定为准。如有变化恕不另行通知。
3.因编辑需要,文字和图片无必然联系,仅供读者参考;

微信公众号“搜建筑”(ID:sjz9999)
合作、宣传、投稿
联系微信:soujianzhu006




