▲ 更多精品,关注“搜建筑”
南京文齐路小学
中锐华东荣朝晖工作室





1:入口灰空间

灰空间分布示意图






2:中心体育馆

中心体育馆剖面示意图






3:屋顶大平台





4:大侧廊






5. 庭院



6. 城市表达






总平面图

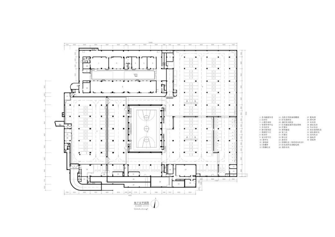
地下层平面图

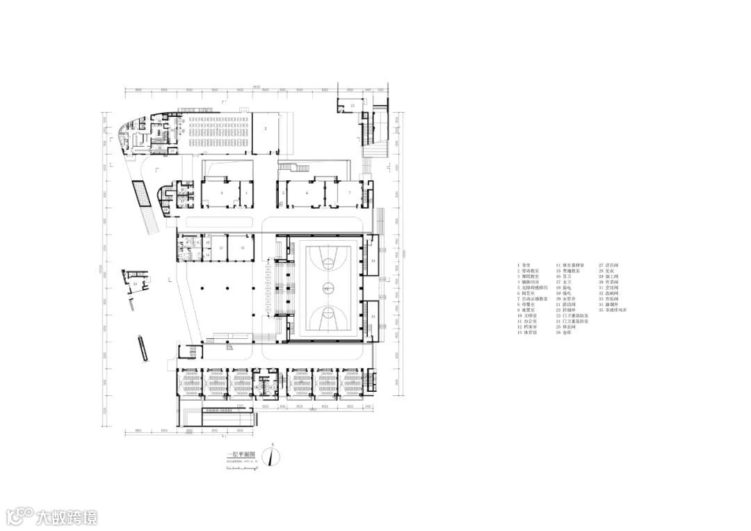
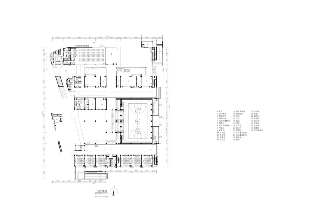
一层平面图

二层平面图

三层平面图

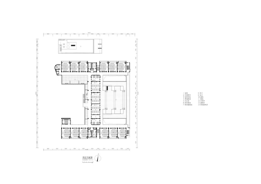
四层平面图

五层平面图

屋顶平面图

东立面图

南立面图

西立面图

北立面图

剖面图

剖面图

剖面图

剖面图

本资料声明:
1.本文为建筑设计技术分析,仅供欣赏学习。
2.本资料为要约邀请,不视为要约,所有政府、政策信息均来源于官方披露信息,具体以实物、政府主管部门批准文件及买卖双方签订的商品房买卖合同约定为准。如有变化恕不另行通知。
3.因编辑需要,文字和图片无必然联系,仅供读者参考;

微信公众号“搜建筑”(ID:sjz9999)
合作、宣传、投稿
联系微信:soujianzhu006

