在行业大浪淘沙之中,作为区域型房企的代表,金沙和冶都通过高标准的建筑质量,逆市劲销,全国上千家企业来观摩学习
八大精品项目考察+高质量发展分享会
《新形式 新起点 新策略|区域房产高质量发展分享会》
本次考察时间:2024年10月18-19号
本次考察两大优秀地产:金沙+冶都,精品项目八盘连看。(可选:两个行程同时报名或单个行程)
1、深研区域房企独特的战略定位与企业文化

咨询微信:soujianzhu03
咨询微信:soujianzhu008
项目高管带队讲解
四大精品项目+区域房企高质量发展分享会
金沙分享会亮点:
一、金沙集团的逆势发展之道
二、“红盘”背后的设计力量——金沙案例解析
三、高品质和成本控制的平衡
金沙集团,以全国领先的产品力和精细化管理能力吸引全国数千企业超万人到访参观学习的业内标杆,“稳健金沙有三宝,建筑、景观、物业好”的金沙品牌,已从商丘火至大江南北。( √ 金沙精品项目链接 )
四大精品+3个美好生活中心+1场分享会
冶都分享会亮点:
邀请项目相关负责人亲临会场,从营销、精建、物业三个方向为大家分享解读
一、2024冶都发展战略
二、冶都物业架构、管理、作业指导书
冶都集团,总部位于河南清丰县,2010年进入房地产行业,累计开发了17个项目,开发面积超320万㎡,目前为止所有的项目都在县城。其“极致产品、极致服务、极致体验”的极致文化深入人心,在当地获得超高业主口碑。( √ 冶都精品项目链接 )
金沙•東院
2023年全国十大高端作品、产品力红盘
2022年河南省工程勘察设计行业奖 一等奖
金沙·东院,是金沙天悦的洋房高端产品,是国风大作的升级序列。项目在设计之初,就联合了国内一线设计大师,组成全明星级别的设计团队,深入挖掘中国古代文人雅集的场地文化,借鉴苏州古典造园手法,来现代化演绎古代文人的雅致生活场景,打造典雅尊贵的东方意境。


绿地率增加1%,小区增加100棵树……

景观

楼宇间通过错位营造出灵动空间,形成三级景观渗透和超大视距。在项目中庭设置下沉式庭院会所,形成从地面到地下的空间层次渗透,打造沉浸式的空间体验。
细节

▲ 金沙·東院 实景

就连园区里一个毫不起眼的小组件,如花池灯箱、草坪灯、地漏、取水阀+雨水口等都要进行五次打样。





東院的门
大门两侧的消防门蕴含中国人的含蓄之美,先见景后见门,入口与景观融为一体。门前的古松、山石、草坪犹如一块屏风,若隐若现。




地下车库归家大堂正对自动门的位置,做了古铜雕刻定制 logo,色彩和质感的碰撞,与整体环境十分协调,塑造出精致奢雅的形象气质。


一楼私家小院入户门,通过色彩、材质、图案、弧线等元素进行叠加、升级,构建不一样的生活理念。

地库
对于房子而言,惊艳的建筑外立面是“面子”,隐藏在地下的车库是“里子”。

由于地下车库流量大、磨损大,金沙在原有水磨石地坪基础上,升级全新配色方案。水磨石地坪具有防尘防滑、亮度高、耐老化、耐污染、耐腐蚀等优异品质,让地坪使用寿命更长。




不仅如此,金沙地库装饰设计上也非常讲究,所有墙面和立柱喷涂全新防水材料,具有防潮、防腐、抗污、环保、易修补、易清洁的特点。






建筑


▲ 建筑细节实景

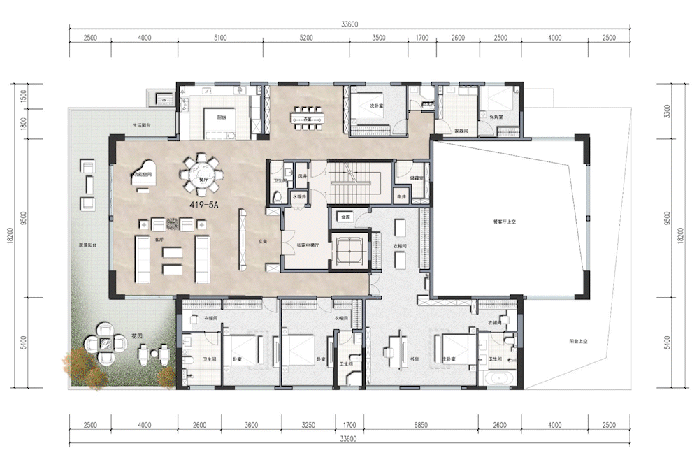
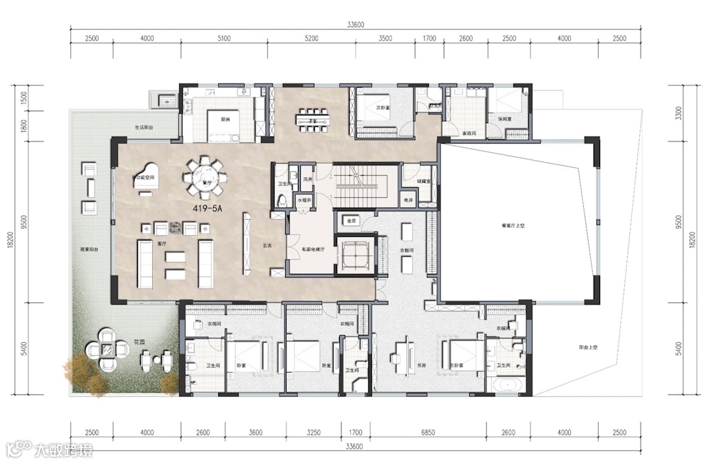
创新户型:420㎡一层一户,6.6m超高挑空
在产品设计上,通过对户型的创新设计、严苛的尺度考究,打造出高端住宅新样本。项目标准层高3.15m,楼王标准层高3.3m,局部挑空6.6m——设置了双层挑高空中庭院,无柱悬挑6.5m,覆土40cm,突破了常规阳台的空间尺度,带给业主超尺度的生活空间享受。


▲ 项目效果图
约90㎡开放式客餐厅搭配6.6m超高挑空,超大开间及超大落地窗设计营造无边界视觉效果,搭建疏朗开阔的空间,使房间通透感十足,视野豁然开朗。


▲ 420㎡户型首层平面
420㎡户型首层设置超尺度惬意花园,推门即景,尽揽自然风光。
▲ 金沙·東院交付样板间实景
金沙東院,素颜精妆样板间,出场即惊艳,背后承载了无数看不见的精工细节。在工艺上,墙体粉刷采用多重工序,保障极高的平整度,甚至达到直接可装修水平,堪比简装批白效果。
金沙•壹号院
2022年河南省工程勘察设计行业奖 一等奖
2022年河南省土木建筑科学技术奖 一等奖
2022年最艰难的时期,创下开盘劲销、三月清盘的佳绩
金沙壹号院位于商丘示范新区,邻近日月湖景区,兼具老城区的商业商贸特征和休闲生态需求,地理环境优越。
项目占地面积约60亩,建筑面积14万方,绿化率高达38%,容积率仅2.89,一共625户。共规划了8栋楼,产品全部以大平层户型为主,面积区间约为150—240㎡。在这块寸土寸金的土地上,奢侈的打造了约80米的楼间距,把整个社区的中间部分,全都留给了园林,光园林面积就2万多㎡。

项目高层立面设计上,以曲线为“引”,自下而上生长的线条交错、融合、延伸、无边界,最终在三维尺度上形成“超流线”,呈现出流畅而富有张力的曲线序列。


▲ 金沙壹号院效果图
在产品设计上,一梯一户及私家电梯厅设计营造出居住的尊崇感;极致的大面宽——所有户型均3至4面宽朝南,保证南向采光;考虑社区景观及日月湖景观优势设计端厅户型,结合端厅设计转角阳台,270°观景,“巨幕”私享日月湖无限风光。
金沙壹号院以江山影壁、迎客松枝,线性叠水构筑有仪式感的归家礼序,为商丘人民呈现时代之上的人文生活画卷。

金沙壹号院大门口水系犹如一座漂浮在海洋上的小岛,是景观的一大亮点,富有质感及设计感的精致LOGO在水中静立,成为整个空间的视线焦点,也充分提升景观气质,延续艺术性的同时也烘托出了尊贵的气质。


长虹玻璃通用最大尺寸为2000*3660mm,一般是条纹竖向安装,但考虑到统一墙体线条肌理,必须将条纹横向安装。

池底采用光面蓝钻的进口天然石材,在太阳的照射下闪闪发光,犹如在池底铺满了砖石,赋予约245㎡中心水景巧夺天工的妙趣,结合松树、LOGO所带来的光影,打造了一处美轮美奂的水中岛屿美景。

光面蓝钻,结构致密、质地坚硬、耐酸碱、耐气候性好,很容易切割、塑造。作为一种高档建筑装饰材料,一般用于地面、台阶、基座、踏步、檐口等处,多用于室内外墙面、地面、柱面的装饰等。

建筑的艺术,源于精细化的施工。哪怕是冰冷的石材,只要用心,也会变得赏心悦目。在245平米的水系小天地里,池底约97平米,但就是这97平米的面积,却让金沙的工程师“挠破了头皮”,整整用了10天才施工完成。
在拿到设计图纸之后,工程师10天内只做了一件事,那就是在电脑上“排兵布阵”,要让石材对缝,无论是横向还是纵向,不仅如此,还要跟汉白玉水系压顶对缝,与门窗吊顶对缝。

按照正常的铺装手法,池底正常铺设的是60x60的石材通铺收边,施工速度很快,但是不对缝、不美观。为了实现对缝,施工团队在97平米的地方,足足使用了40多种石材尺寸进行铺装。

在铺装时,更是逐一标注石材尺寸,避免在施工过程中因尺寸过多而导致铺装错误,因为如果铺错一处,就要全部揭开,从头开始。

一个好的建筑艺术作品,必然经过长时间的精雕细琢,正如在草坪上面我们不常注意的细节,往往成为施工人员对目标的极致追求。


在草坪上,有随处可见的散水栓箱,但是这样一个不起眼的箱子,却凝聚了施工工人近半个月的时间。你可能会问,就正常的散水栓箱有什么难度?如果你离近看,就会发现它并不像表面那么简单。

为了安全美观,金沙工程师苦思冥想,最终设计了一款圆角散水栓箱,简洁大方,不伤人,最重要的是上面的logo是经过冲压技术压上去的,靠压力机和模具对不锈钢施加外力,使之产生塑性变形。

虽然只是一个小小的技术,但是找了很多地方都是先裁剪出方块,方块进行字体蚀刻,再焊接回盖板之上,完全不能满足金沙的精细化标准。最终,金沙团队在郑州定制了字体模具,再进行冲压一体成型,才做到了如今完美的效果。

成本为品质让路,时间为品质让路,一切为品质让路是金沙一直坚守的原则。金沙壹号院以不计成本的决心,为商丘打造出顶级高端产品,每一平米的美好呈现,每一个细节的处理,都倾注了金沙人夜以继日的匠心研磨,就连在路上随处可见的线性排水沟篦子也是如此。
在安装道路线性排水沟篦子时,施工团队遇到了一个难题,一般的水沟篦子从上面能直接看到地下的污水,非常不美观,怎么样才能解决这个问题呢?工程师在多次尝试后,终于想到了一个办法,就是从篦条形状上做部分改变。

(线性排水沟篦子设计图)
在不影响水流的情况下,把篦条形状从垂直向下焊接打磨为弧形,这样从地面任何一个角度都看不到构体内部,同时配备栓修口,方便定期清污。
看到这一定会有人说:“有必要这样做吗,谁去管他能不能看到地下!”如果金沙人听到,会非常肯定的告诉你,很有必要,因为金沙的理念就是,为业主建造商丘精细化好房!
金沙 · 天悦
2022年河南省三大轻奢美宅作品
2022年河南省工程勘察设计行业奖 一等奖
金沙·天悦是金沙集团首个金质项目。位于日月湖板块东侧约1.5公里,北邻城市公园,东拥包河景观,周边生态资源丰富,具备打造轻奢产品的天然基础。

▲ 项目实景图
约95m书院水墨画卷式入口,气势磅礴,归家仪式感拉满,完美诠释千年东方尊荣礼序。
灵感源于商丘六朝古都底蕴。顶部挑檐,石墨灰色斜屋面优美舒展,精美金属格栅搭配高定超白玻,远处看去像一顶官帽,犹如高门之内皆王侯的象征,又寓意着家族兴旺。

景墙采用巴西进口范思哲黑高端石材,堪称石材中的“爱马仕”。
▲金沙·天悅 实景图
昂贵滨州青石材铺设路面,碎拼异形设计,要先排版,编号,精细对缝。这样做,只有唯二缺点,费工,费钱!却能保证很高的社区品质,整体效果和谐统一。


▲金沙·天悅 实景
在景观的核心,围合约1100㎡的镜面水景,八株跨越千里,超30年树龄的乌桕树王,带着原生态美静静伫立,意蕴悠远。

从千年瓷都景德镇寻得,运用凝聚中国古建精粹的榫卯工艺,高达20000个木制零部件,七位老匠人近40天原版移建,令人叹为观止。
原山石桥,曲水流觞,池底甄选天然板岩,仿照水流方向,曲直衔接,四周以名贵树木作为点缀,水、山、林,阳光交错之间,形成独立而完整的小世界,氛围纯净而治愈。

▲ 金沙天悦效果图
▲ 金沙天悦效果图
在项目景观视野最好的高层楼栋,户型设计为多面宽超大尺度南向布局,将景观优势最大化展现,提高户型的价值点和竞争力。

▲ 多面宽超大尺度南向布局
金沙 · 天和
金沙天和2021年元旦开盘当天,凭借现代时尚的景观风格,与艺术品般的产品调性,成为商丘市场独树旗帜的“城市封面大作”,以“旋风之势”震荡商丘地产市场,房源以比同区域其他项目高13-28%的销售价格,在半天时间几乎销售一空,被业内称之为“商丘神盘”。
金沙·天和是金沙集团深耕日月湖片区的第一个高端项目,从前期规划设计、严格把控落地,再到交付前的联合验收,每一个环节,每一道工序,金沙集团高度重视。







▲ 金沙 · 天和 实景图

▲金沙 · 天和地库实景图
▲ 金沙 · 天和地下洗车服务中心实景

金沙天和的非机动车进入地库,有两种方式可供业主选择。一种是在金沙天和南门地库口,有一个专门的非机动车行驶区域。经过人脸识别后会自动打开道闸,这样进出小区就不用再停车拔钥匙刷卡。

第二种方法则是在金沙天和南门地库口,有一个非机动车专用电梯,大体量很方便,常用的两轮三轮车都可进入。车辆“乘坐”电梯,直接到达非机动车停放区域。


在非机动车停放区域,安装有充电插座,方便业主使用。


金沙集团,以全国领先的产品力和精细化管理能力吸引全国数千企业超万人到访参观学习的业内标杆,“稳健金沙有三宝,建筑、景观、物业好”的金沙品牌,已从商丘火至大江南北。
金沙集团 服务日常
实楼演练不仅仅是金沙锤炼产品的一大法器,更是对业主未来入住的一种责任体现。金沙的每一次实楼演练都能发现很多问题,不仅可以帮助提升工程质量,还能大幅减少业主在装修过程中的改造困扰和二次投入。

▲ 金沙天悦实楼演练
由金沙集团总裁带队,集团审计监察、技术研发、工程管理、成本招采,以及物业公司、区域公司、营销管理部、施工单位等核心部门精英组成实楼演练小组,针对金沙壹号院的各个户型,提前模拟未来生活场景,精研人性化生活细节,及时修正设计及功能缺陷,优化提升业主的居住舒适度。
工程精细化是金沙的立命之本,金沙生存的根基。在实楼演练的过程中,不光是要发现问题,也要发现亮点。这样在后续的施工中,可以把亮点发挥到极致,也把金沙这些优秀的做法,及时用在其他项目中。

要让实楼演练形成一个标准,不光是公司内部覆盖全部户型进行演练,还要联合燃气公司、设计公司、装修公司等多专业多人群一起参与,让户型兼容性更强,做业主需要的空间设计,而不仅仅是业主要求的房子。

要让实楼演练落到实处,要优先考虑业主的舒适性,多一个地漏是否比少一个地漏强,多一个插座是否比少一个插座强。加强前期图纸会审,深挖细节,考虑业主实用性,减少后期不合理地方。

自2022年推出“金沙精彩生活”大服务以来,金沙就在多个项目相继建设了衣物洗护中心,让业主不出小区,尽享品质生活。

对于金沙人来说,无论做啥事,专业、精细是必须的。先看看洗衣设备,全自动全封闭四氯乙烯干洗机、水洗机、烘干机、洗鞋机、烘鞋机、多功能烫台、衣物消毒柜等等,一应俱全,高端大气。

还有大家最关心的洗衣价格,话不多说,直接上图。

随着社会的发展,家政服务在日常生活中越来越常见,金沙物业推出的精彩家政服务也越来越受欢迎。为了提升业主的幸福感,金沙精彩家政服务以低于市场的价格,超市场的服务品质来服务于金沙业主。

单是一个小房间的操作流程就包含:带齐该单间所有工具、开窗、除顶尘、擦窗、整理杂物、擦拭家具用品、拖地、更换垃圾袋等流程,更是要经过自我检查、组长检查、客户检查等检查之后才算结束。

咨询微信:soujianzhu03
咨询微信:soujianzhu008
2024年·新产品方向
《 品牌地产 | 精品楼盘活动 》
杭州、苏州、上海
成都、郑州......
广州、福州、重庆
西安、青岛......
扫描二维码 加好友咨询
领队微信:soujianzhu03
本资料声明:
1.本文为建筑设计技术分析,仅供欣赏学习。
2.本资料为要约邀请,不视为要约,所有政府、政策信息均来源于官方披露信息,具体以实物、政府主管部门批准文件及买卖双方签订的商品房买卖合同约定为准。如有变化恕不另行通知。
3.因编辑需要,文字和图片无必然联系,仅供读者参考;
推荐关注
全球精品楼盘考察
扫描二维码关注
微信公众号:全球精品楼盘考察
合作、宣传、投稿
联系微信:soujianzhu006




