▲ 更多精品,关注“搜建筑”
ATD安托士

校园建筑是教育知识的载体,是传播教育的媒介。寄宿校师生对活动的需求与日俱增,随着教育观念的不断更新与改革,学生活动中心的功能性也随之不断丰富。本项目是一个将餐饮、休闲、集会等功能相结合的创新型活动中心,为大型校园创造一个有吸引力的新 “校园节点”。
琼海中学校园总建筑面积达九万平方米,在这一规划背景下,设计试图通过以点带面的方式,创造一个能成为大型校园记忆点的标志性建筑,激发学生交流与活力,提供一个与环境融合的“粗放”空间。本活动中心面积为8340平米,位于校园北端。
Qionghai Middle School has a total campus area of nearly 90,000 square meters. Under this planning background, the design attempts to create a landmark building that can become a memory point of a large campus, stimulate students' communication and activities, and provide an extensive space that blends with the environment. The activiti center has area of 8340 sqm, and locates at the northern end of the campus.
△ 航拍照片

△夹角空间
建筑打破传统的方正轴网,引入斜线构图元素,成功地消解了场地内的消极空间,创造了更多的积极空间。同时,夹角的室外空间形态的作为视觉中心,更有刺激作用。
The building breaks the traditional square axis network and introduces diagonal composition elements, which successfully dispels the negative space in the site and creates more positive space. At the same time, the form of angular outdoor space, as the visual center, is more stimulating.
△ 剖透视
发散型的建筑形态不仅解决了场地的复杂与矛盾性,还塑造了一座具有多向性视线交流的活动中心。东西向的两片玻璃幕墙面向操场和景观,在周边条件复杂的环境中,最优化了景观视线。
Divergent architectural form not only solves the complexity and contradiction of the site, but also shapes an activity center with multi-directional line of sight communication. The two east-west glass curtain walls face the playground and landscape, which optimizes the landscape sight in the complex surrounding environment.

△西立面
设计采用发散型的造型手法,形成多个半围合的外部类庭院空间,创造出了多个“边界”和“尽端空间”,适合学生停留与使用。空间尺度的亲切感能够最大化地激发学生活动的发生频率,在集约用地的同时也提升了校园活动空间品质,使建筑外部空间更具活力,更有利于创造一座有活力的校园综合体。
Divergent modelling technique is adopted in the design, which forms multiple semi-enclosed external courtyard spaces, creating multiple "boundaries" and "endless spaces" suitable for students to stay and use. The intimacy of spatial scale can stimulate the frequency of students' activities to the maximum extent, enhance the quality of campus activities while intensively using land, make the external space of the building more dynamic, and be more conducive to creating a dynamic campus complex.

△ 建筑外部场地
外立面采用仿清水混凝土材质,墙面上设置了条型窄窗,具有粗野主义风格,同时也增强了建筑外部半围合空间的空间感,在建筑面向景观的两个面采用大玻璃落地窗,结合锯齿形退台式手法,形成一种粗犷与细腻对比的效果。
The facade is made of fair-faced concrete, and narrow windows are set on the wall, which has brutalism style, and at the same time, it also enhances the sense of space in the semi-enclosed space outside the building. Large glass floor-to-ceiling windows are used on the two sides of the building facing the landscape, combined with the zigzag retreating technique, forming a rough and delicate contrast effect.


功能空间构成的丰富性
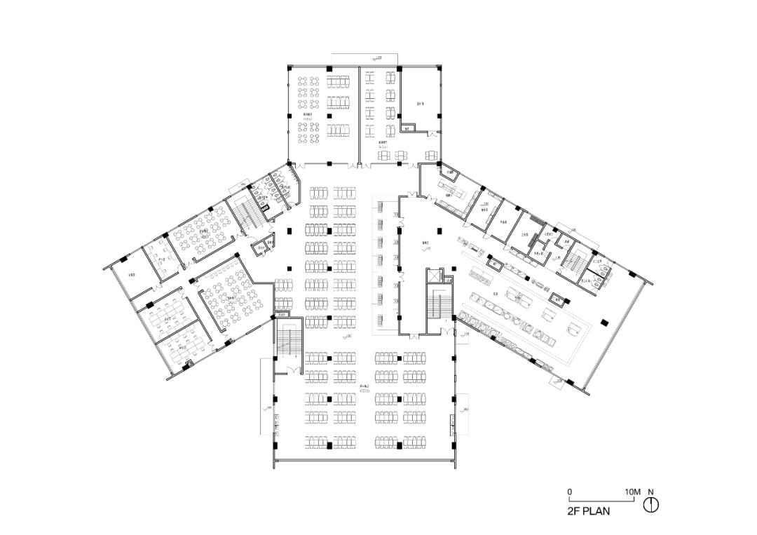
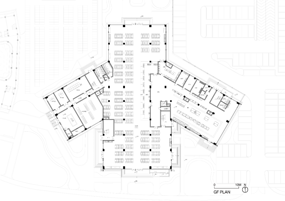
学生活动中心功能多样,包含餐饮、运动等功能,空间内容丰富且活跃。封闭的活动室减少了使用者的噪音干扰,而开放的活动中心及食堂位于建筑中央核心区域,使空间开阔通透,也促进了学生间的交流与实践。在活动中心的三层设置了可直通屋顶花园的大台阶,为学生打造了一个充满互动与室内外交融的场所。
The student activity center has various functions, including catering, sports and other functions, and the space is rich and active. The closed activity room reduces the noise disturbance of users, while the open activity center and canteen are located in the central core area of the building, which makes the space open and transparent and promotes the communication and practice among students. On the third floor of the activity center, there are large steps leading to the roof garden, creating a place full of interaction and indoor and outdoor integration for students.
△ 通往屋面大台阶
鉴于海南强烈的日照和雨季,活动中心外立面采用了型体后退的自遮阳手法。多向度的体量布局与自遮阳系统相结合,在视觉上形成了独特性,同时延续了校园的可持续理念,打造了一座因地制宜的被动式节能建筑。
In view of the strong sunshine and rainy season in Hainan, the facade of the activity center adopts the method of self-shading with the shape retreating. The combination of multi-dimensional mass layout and self-shading system has formed uniqueness in vision, and at the same time, it has continued the concept of campus sustainability, created a passive energy-saving building adapted to local conditions.

△ 退台式立面
校园一个具有特殊性质的“迷你社会”,活动交往空间体现了师生个性化的社交需求,是一个重要的信息交流、知识汲取、人格培育与协同精神培养的场所。这座造型独特的校园活动中心因地制宜,在尊重场地特性同时也独具创意。本项目探究了创新型设计语言,为未来的校园设计领域提供了新的思路和方向。
Campus is a "mini-society" with special characteristics. The activity communication space reflects the personalized social needs of teachers and students, and is an important place for information exchange, knowledge acquisition, personality cultivation and collaborative spirit cultivation. This unique campus activity center adapts to local conditions, respects the characteristics of the site and is also unique. In this project we explore innovative design language, which provides new ideas and directions for the future campus design field.

△ 南立面
△ 西侧鸟瞰

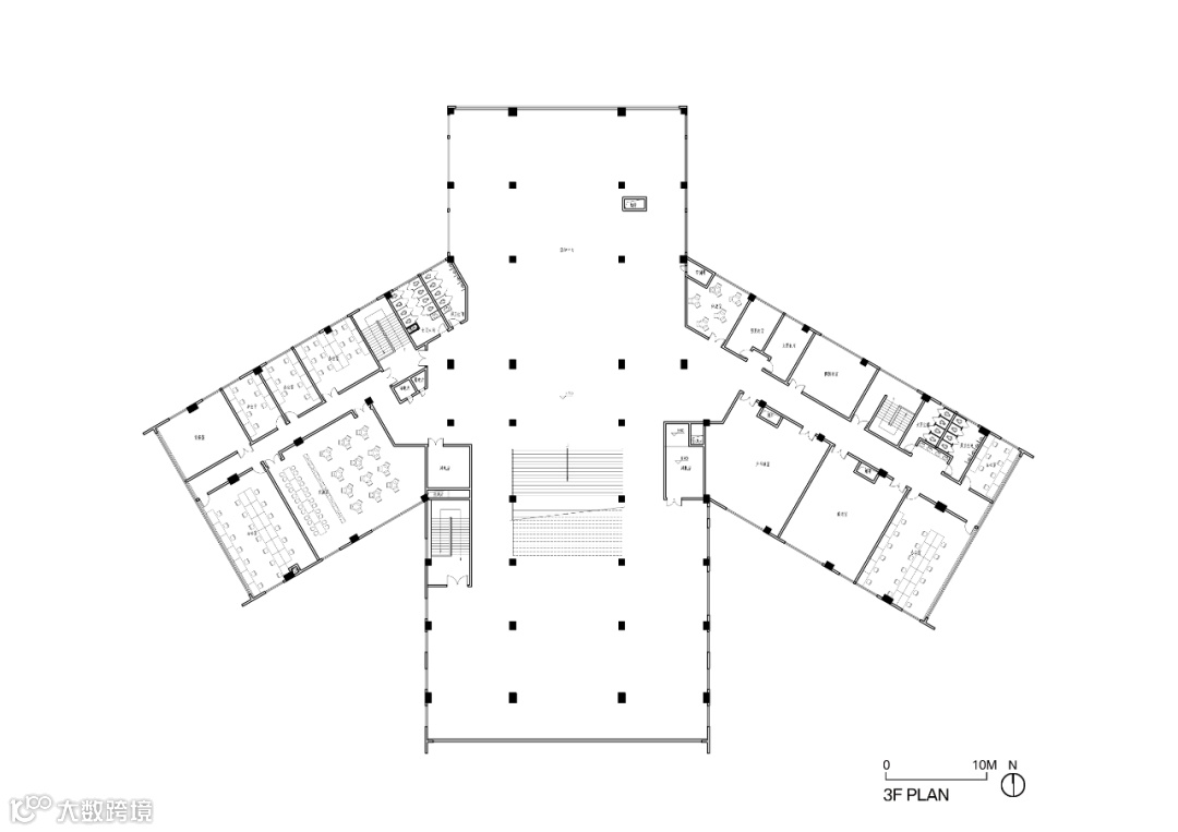
△ 3F平面图

△ 立面图1

△ 立面图2

△ 剖面
建筑设计:ATDESIGNOFFICE安托士建筑设计顾问有限公司
设计团队:范铁 Slavo Siska 黄璐莹 冯睿明 李晓雪 李勇 刘珍珍 万泽婷 王春晖 封倩 梁文亮 杜汉华 梁彤彤
本资料声明:
1.本文为建筑设计技术分析,仅供欣赏学习。
2.本资料为要约邀请,不视为要约,所有政府、政策信息均来源于官方披露信息,具体以实物、政府主管部门批准文件及买卖双方签订的商品房买卖合同约定为准。如有变化恕不另行通知。
3.因编辑需要,文字和图片无必然联系,仅供读者参考;

微信公众号“搜建筑”(ID:sjz9999)
合作、宣传、投稿
联系微信:soujianzhu006