“人即尺度
惟以苛刻的标准方能满足最挑剔的目光
价值的极致总是在细节中绽放璀璨光芒”
——大卫•奇普菲尔德
「项目概况」
一线湖景 封江藏品
△意向图,不作为交付承诺
【区位】
项目地处宁德城市核心地段,周边配套服务设施齐全,亦有北岸公园、南岸公园、镜台山公园、东湖等景观资源,一揽绝佳区位优势。
△意向图,不作为交付承诺
【规划理念】
广宇设计尊重土地的甄稀,以臻贵城市资源启幕高端生活场域,打造进可享都市商圈、退可观自然人文繁景的湖景高端人居。
「示范区效果呈现」
艺术与湖居生活的巧妙结合
△效果图过程稿,不作为交付承诺
结合区位临湖优势,打造当代高端湖居示范区建筑形象。
在景观打造上,以“八横三纵”的景观轴,打造多重园林意境,让居者在城市喧嚣中享受度假般悠游自得,兑现时代人物对风雅生活的高阶追求。
△效果图过程稿,不作为交付承诺
△效果图过程稿,不作为交付承诺
△效果图过程稿,不作为交付承诺
顾东方质感与国际潮流的建筑风格,成就都市核心区极具辨识度的天际轮廓,让人一见难忘。
「立面设计」
现代典雅 城市封面
精致的立面材质划分、色彩比例,与城市的肌理和自然相互映衬,为宁德献上一幅熠熠生辉的封面建筑,演绎城市精英理想中的高定生活。
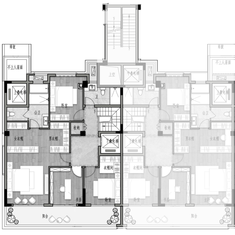
「户型设计」
极致观湖 极具墅感
考究人居之美,让美好生活于细微处彰显,呈现看得见的品质和细节,【中豪·东湖壹品】以生态美景、建筑细节、创新户型等多维度优势,定义“高级感”人居。
项目信息
项目名称:中豪·东湖壹品
开发企业:福建中豪房地产开发有限公司
建筑设计:G.Y广宇设计
设计总监:陈光
设计主创:卢明松
立面主创:林吉舜
团队成员:刘晓昌、李毅翔、沈姚辉、黄祥镐
项目地点:福建省宁德市
设计类型:示范区、大区
用地面积:57691.07㎡
建筑面积:110859.71㎡
设计先锋 ▏专业高效
商务合作
人才招聘
18850356018
ADD:
福州市鼓楼区工业路东侧
凤凰望郡商服楼5层
本资料声明:
1.本文为建筑设计技术分析,仅供欣赏学习。
2.本资料为要约邀请,不视为要约,所有政府、政策信息均来源于官方披露信息,具体以实物、政府主管部门批准文件及买卖双方签订的商品房买卖合同约定为准。如有变化恕不另行通知。
3.因编辑需要,文字和图片无必然联系,仅供读者参考;
微信公众号“搜建筑”(ID:sjz9999)
合作、宣传、投稿
联系微信:soujianzhu006


