▲ 更多精品,关注“搜建筑”

San Vicente del Raspeig 市政体育馆是一个大型集装箱,具有举办多种体育模式和大型活动的多功能性,内部和外部之间的视觉联系成为项目的主线之一,目的是使体育运动从外部可见,以此作为促进体育运动的措施。
The Municipal Sports Pavilion of San Vicente del Raspeig is configured as a large container of great versatility to host multiple sports modalities and large capacity events in general, in which the visual connection between interior and exterior becomes one of the directing threads of the project with the aim of making sports practice visible from the outside as a measure to promote sports.

为了最大程度地实现空间的多功能性,不同的运动方式被集中在两个大空间内:一 个是用于团队运动方式的中央空间,其容量相当于 4 个室内篮球场;另一个是用于定向 活动和健身房的房间空间。
To achieve the greatest degree of versatility of its spaces, the different sports modalities are grouped in two large spaces: on the one hand, the central space intended for team sports modalities and with the equivalent capacity of 4 indoor basketball courts and, on the other, room spaces for directed activities and gyms.

每个室内空间的光线和色彩都有不同的细微差别:中央空间通过朝北的 5 个天窗进行顶光照明,地板主要采用暖色调的木材;活动室通过两片外墙和不同冷色调的地板进行照明。
Each of these interior spaces will be characterized by different nuances of light and color: the central space, overhead lighting through 5 skylights facing North and with a predominance of the warm tones of the wood of the flooring; the activity rooms, through illumination, filtered through the two sheets of the facades and the different cold tones of its floors.

这种空间上的用途组织同时为建筑的管理提供了极大的灵活性,使每个主要用途(凉亭、健身房和餐厅)都能独立运作。建筑的外立面被配置成一个不断变化的动态系统,其中两种不同几何形状的叠加,即外部叶片上的水平条纹和内部叶片上的棋盘格,根据内部和外部照明的细微差别,以或大或小的强度交替出现。
This spatial organization of uses at the same time offers great versatility in the management of the building, by allowing each of the main uses (pavilion, gym, and cafeteria) to function independently. The facades of the building are configured as a dynamic system in permanent change, in which the superposition of two different geometries, horizontal striping on the exterior leaf and checkerboard on the interior leaf, alternate with greater or lesser intensity depending on the nuances of the interior and exterior lighting.

白天,外墙呈现出强烈的白色,而当灯光反射到建筑内部楼层时,外墙又会分解成不同的蓝色,这两种颜色的交替出现,强化了外墙构成的这些变化。
These changes in the composition of the façade are reinforced by the alternation between the intense white color of the facade during the day and its decomposition into the different blue colors that arise from the reflection of the lighting on the interior floors of the building.

建筑采用了高能效系统,最大限度地利用了所有空间的自然采光,并配置了电动自然通风系统,通过外墙和盖板上的通风口对整个楼体进行交叉通风,使白天积聚的热量在夜间得以散发。
The building is configured as a very high energy efficiency system, maximizing the natural lighting of all spaces and configuring a motorized natural ventilation system that allows cross ventilation of the entire volume through its facades and the vents located in cover, allowing the nighttime dissipation of the heat accumulated during the day.

除了这些被动式措施外,还配备了用于生产热水的气热系统和用于发电的光伏装置,从而打造出一座几乎零能耗的建筑。
These passive measures are complemented by the provision of an aerothermal system for the production of DHW and a photovoltaic installation for the production of electricity, thus configuring a building with almost zero energy consumption.

项目图纸
平面图
平面图
立面图
立面图
立面图
立面图
剖面图
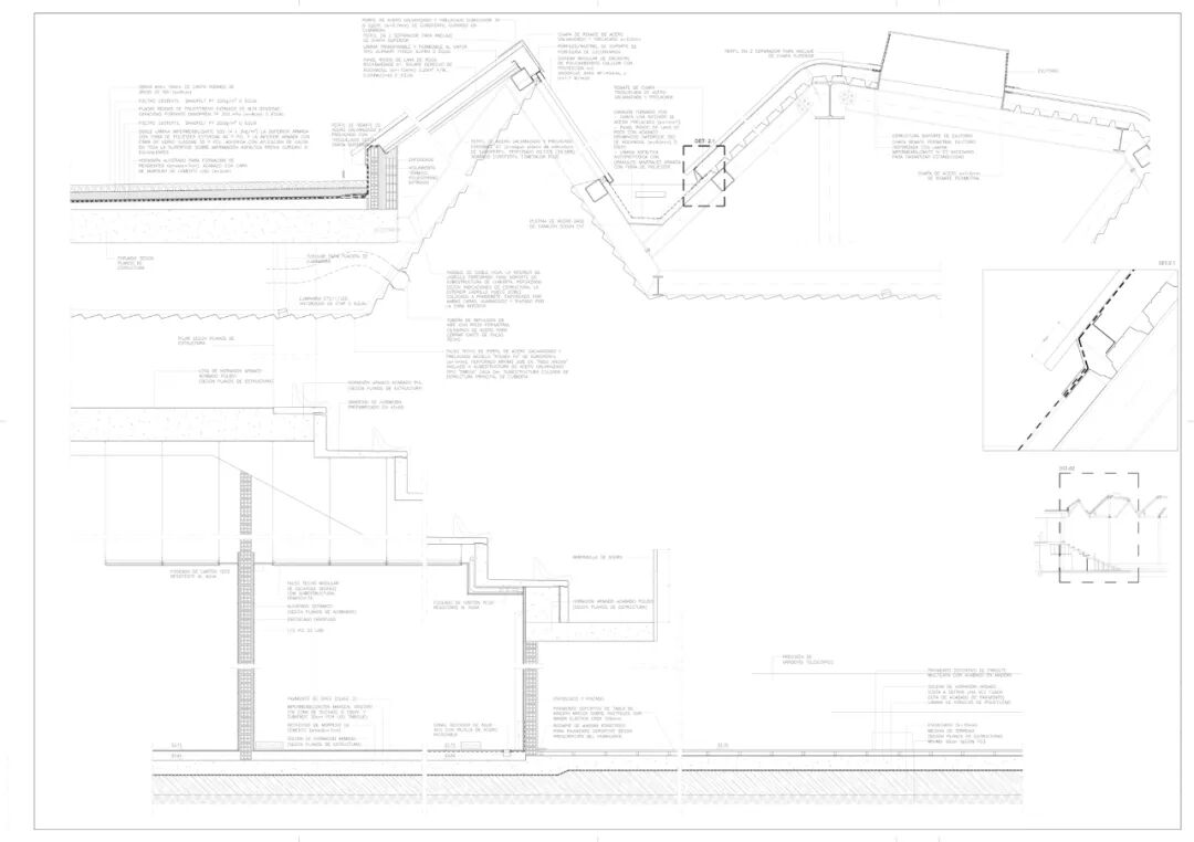
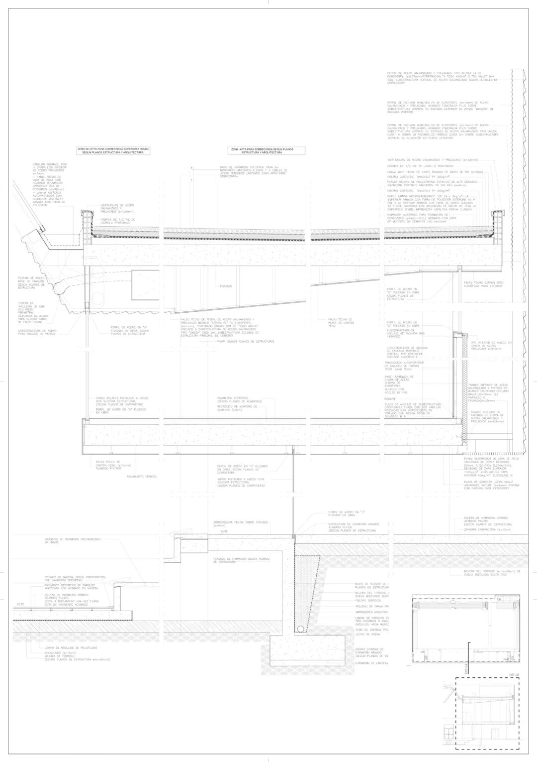
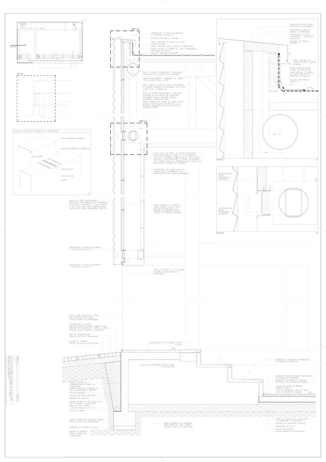
示意图
示意图
示意图
建筑师:MCEA | Arquitectura, NAOS 04 ARQUITECTOS
地点:西班牙
面积:6648 m²
年份:2024
本资料声明:
1.本文为建筑设计技术分析,仅供欣赏学习。
2.本资料为要约邀请,不视为要约,所有政府、政策信息均来源于官方披露信息,具体以实物、政府主管部门批准文件及买卖双方签订的商品房买卖合同约定为准。如有变化恕不另行通知。
3.因编辑需要,文字和图片无必然联系,仅供读者参考;

微信公众号“搜建筑”(ID:sjz9999)
合作、宣传、投稿
联系微信:soujianzhu006