▲ 更多精品,关注“全球精品楼盘考察”
八大精品项目考察+高质量发展分享会
《新形式 新起点 新策略|区域房产高质量发展分享会》
1、深研区域房企独特的战略定位与企业文化

咨询微信:soujianzhu03
咨询微信:soujianzhu008
项目高管带队讲解
四大精品项目+区域房企高质量发展分享会
金沙分享会亮点:
一、金沙集团的逆势发展之道
二、“红盘”背后的设计力量——金沙案例解析
三、高品质和成本控制的平衡
金沙集团,凭借一己之力成为了竞相追捧学习的精细化地产“扛旗者”,金沙三宝:建筑、景观、物业好,不仅吸引到全球设计大师前来助阵,更吸引来上千家房地产同行慕名到访,是业界名副其实的标杆企业。( √ 金沙精品项目链接 )
四大精品+3个美好生活中心+1场分享会
冶都分享会亮点:
邀请项目相关负责人亲临会场,从营销、精建、物业三个方向为大家分享解读
一、区域地产发展战略
二、冶都物业架构、管理、作业指导书
冶都集团,2010年进入房地产行业,累计开发了17个项目,开发面积超320万㎡,目前为止所有的项目都在县城。其“极致产品、极致服务、极致体验”的极致文化深入人心,在当地获得超高业主口碑。( √ 冶都精品项目链接 )
金沙•金明书院


▲效果图

▲项目实景图
玉门内部,内藏精致木构,通过艺术形体重构一个木构建筑,营造出一个内有乾坤的空间体验。大堂包括长桌等候区、大堂服务区,灯光从木构缝隙中渗透出来,中心区域设置通高灯箱,加强大堂的仪式体验。

▲效果图


设计师的灵感闪现,为金沙勾勒出了一个独特且富有艺术感的金明書院大门。

然而,从设计效果图到施工图的转化过程中,金沙面临了诸多技术挑战。特别是在金明书院的“银河飞瀑,水晶宫阙”立面玻璃瓦的设计上,一系列难题正在出现。
无论是两个瓦面交界处的坡度设计、玻璃瓦的颜色选择与形状选择,都需要深思熟虑。
在现场进行了多次模拟试验后,项目最终选定了一款特定玻璃瓦,并解决了其连接方式与悬挂的技术问题。这不仅涉及到玻璃瓦本身的重量和支撑系统的重量,还需要考虑整个钢结构的设计和基础的处理方式。

正是通过金沙技术中心与多个专业的紧密合作与协同作战,项目才得以成功地将这一创新设计从图纸转化为现实,实现了大门景观设计的完美落地。
▲ 项目实景图



高度还原设计效果图,是一个极具挑战又充满追求的过程。在这个过程中,不仅会伴随着复杂的技术难题和实施困难,“设计理念与实际施工”之间的冲突也是不可避免。

金沙•壹号院
2022年河南省工程勘察设计行业奖 一等奖
2022年河南省土木建筑科学技术奖 一等奖
2022年最艰难的时期,创下开盘劲销、三月清盘的佳绩
金沙壹号院,占地面积约60亩,建筑面积14万方,绿化率高达38%,容积率仅2.89,一共625户。共规划了8栋楼,产品全部以大平层户型为主,面积区间约为150-240㎡。在这块寸土寸金的土地上,奢侈的打造了约80米的楼间距,把整个社区的中间部分,全都留给了园林,光园林面积就2万多㎡。
商丘金沙壹号院,于外,外修其形,以醇熟配套、高颜值建筑,打造璀璨大城生活;于内,内练筋骨,匠心淬炼精致装修入户大堂等场景,营造更高品质的内在居住体验。

项目高层立面设计上,以曲线为“引”,自下而上生长的线条交错、融合、延伸、无边界,最终在三维尺度上形成“超流线”,呈现出流畅而富有张力的曲线序列。
在景观方面,商丘金沙壹号院在立体式景观的基础上,融入森林、岛屿、居住、度假的精髓概念,独创“森屿住假式”景观,移天缩地汇于一院之中。让业主不出商丘,在日月湖畔,于金沙壹号院园区中,就能享受度假休闲体验,畅游在森林谧境之中。
外墙安装工艺



而且,商丘金沙壹号院为了用上具有更好隔热、隔音、保温性能的玻璃,全部采用国内一线品牌系统窗,价格上就比普通窗户贵两三倍。
其次,转角圆弧玻璃安装难度非常高,要求玻璃制作精度误差不得超过2mm。而且每一栋楼的圆弧尺寸都不相同,需要工作人员现场测量,并把数据同步给厂家。

▲ 示意图
入户大堂的精修装
作为当下城市高颜值住宅的代表之一,商丘金沙壹号院凭借极具设计感与冲击力的建筑立面,火速“出圈”。从室外移步至室内,酒店式归家入户大堂,让业主与访客在踏入的第一时间,感受到大气尊贵的舒适感。


首先就是金沙一直坚持的对缝工艺,按理说,这并不算什么难题。

随机选一处手动报警器位置,用尺子现场进行测量。眼神好的朋友,给看看有没有误差。

据现场装修负责人介绍,为了达成这条标准,后期施工的时候,哪一块瓷砖在哪个位置,都有严格的限制,那是一丁点都不敢错。

其实公区装修,最难的部分就是连纹砖对纹。大家仔细看左边的墙面,全都是带纹路的,工人铺贴每一块瓷砖的时候,那都是严格按照编号施工的。

看得见的地方难,看不见的地方更难。在商丘金沙壹号院的入户大堂,每一个管线的位置,每一根方管的距离,那跟用尺子量出来的一个样。

(轻钢龙骨施工现场)
对金沙来说,横平竖直那都只能算基本功,下面这个可就是"别有用心"了。下图这个叫"7字拐",就是在拐角的地方用一整块木板切割出"7字"形状,另外还加装了斜拉撑,这样的设计能让吊顶寿命耐久度更长,防止老化断层开裂。

金沙壹号院大门口水系犹如一座漂浮在海洋上的小岛,是景观的一大亮点,富有质感及设计感的精致LOGO在水中静立,成为整个空间的视线焦点,也充分提升景观气质,延续艺术性的同时也烘托出了尊贵的气质。

长虹玻璃通用最大尺寸为2000*3660mm,一般是条纹竖向安装,但考虑到统一墙体线条肌理,必须将条纹横向安装。然而,长虹玻璃原定2000mm的宽度,达不到壹号院景墙设计高度,无法满足安装要求,两块玻璃拼装既不安全也不美观。最终,公司决定,定制2650mm加大尺寸,别看只是增加了650mm,造价直接翻了三倍。
池底采用光面蓝钻的进口天然石材,在太阳的照射下闪闪发光,犹如在池底铺满了砖石,赋予约245㎡中心水景巧夺天工的妙趣,结合松树、LOGO所带来的光影,打造了一处美轮美奂的水中岛屿美景。

光面蓝钻,结构致密、质地坚硬、耐酸碱、耐气候性好,很容易切割、塑造。作为一种高档建筑装饰材料,一般用于地面、台阶、基座、踏步、檐口等处,多用于室内外墙面、地面、柱面的装饰等。

在拿到设计图纸之后,工程师10天内只做了一件事,那就是在电脑上“排兵布阵”,要让石材对缝,无论是横向还是纵向,不仅如此,还要跟汉白玉水系压顶对缝,与门窗吊顶对缝。

按照正常的铺装手法,池底正常铺设的是60x60的石材通铺收边,施工速度很快,但是不对缝、不美观。为了实现对缝,施工团队在97平米的地方,足足使用了40多种石材尺寸进行铺装。

在铺装时,更是逐一标注石材尺寸,避免在施工过程中因尺寸过多而导致铺装错误,因为如果铺错一处,就要全部揭开,从头开始。

一个好的建筑艺术作品,必然经过长时间的精雕细琢,正如在草坪上面我们不常注意的细节,往往成为施工人员对目标的极致追求。
在草坪上,有随处可见的散水栓箱,但是这样一个不起眼的箱子,却凝聚了施工工人近半个月的时间。你可能会问,就正常的散水栓箱有什么难度?如果你离近看,就会发现它并不像表面那么简单。

为了安全美观,金沙工程师苦思冥想,最终设计了一款圆角散水栓箱,简洁大方,不伤人,最重要的是上面的logo是经过冲压技术压上去的,靠压力机和模具对不锈钢施加外力,使之产生塑性变形。
虽然只是一个小小的技术,但是找了很多地方都是先裁剪出方块,方块进行字体蚀刻,再焊接回盖板之上,完全不能满足金沙的精细化标准。最终,金沙团队在郑州定制了字体模具,再进行冲压一体成型,才做到了如今完美的效果。
成本为品质让路,时间为品质让路,一切为品质让路是金沙一直坚守的原则。金沙壹号院以不计成本的决心,为商丘打造出顶级高端产品,每一平米的美好呈现,每一个细节的处理,都倾注了金沙人夜以继日的匠心研磨,就连在路上随处可见的线性排水沟篦子也是如此。
在安装道路线性排水沟篦子时,施工团队遇到了一个难题,一般的水沟篦子从上面能直接看到地下的污水,非常不美观,怎么样才能解决这个问题呢?工程师在多次尝试后,终于想到了一个办法,就是从篦条形状上做部分改变。
(线性排水沟篦子设计图)
在不影响水流的情况下,把篦条形状从垂直向下焊接打磨为弧形,这样从地面任何一个角度都看不到构体内部,同时配备栓修口,方便定期清污。
看到这一定会有人说:“有必要这样做吗,谁去管他能不能看到地下!”如果金沙人听到,会非常肯定的告诉你,很有必要,因为金沙的理念就是,为业主建造商丘精细化好房!
在产品设计上,一梯一户及私家电梯厅设计营造出居住的尊崇感;极致的大面宽——所有户型均3至4面宽朝南,保证南向采光;考虑社区景观及日月湖景观优势设计端厅户型,结合端厅设计转角阳台,270°观景,“巨幕”私享日月湖无限风光。
金沙 · 天悦
2022年河南省三大轻奢美宅作品
2022年河南省工程勘察设计行业奖 一等奖
项目设计灵感源于商丘的应天书院,其作为北宋时期最高学府,位居中国宋朝四大书院之首,是唯-一所设立于繁华闹市之中的书院。
金沙天悦将书院文化提炼,进行现代空间演绎,大胆融入水院概念,延续应天书院礼制空间,以书院文人雅士生活场景映射未来生活雅趣。

功夫不负有心人,历经4个多月,终于在千年瓷都景德镇一处“古建筑抢修世家”寻得了一座珍稀古亭。无论是这座亭的高度、宽度,还是整体的工艺工法,都是难得一见的珍品。

为了保护这件珍品,把古亭从几千里外运到商丘,需要将古亭的每一个木件结构依次拆开,再小心打包,运送到商丘重新依原样搭建。经过七位专业老师傅将近一个月的努力,终于把古亭20000多个木制零部件组建完成。


既显现出商丘的深厚历史底蕴,又展现了现代艺术的独特魅力,形成一种既具有历史感,又具有现代感的艺术表现。
众所周知,金沙的精细化毛坯交付标准极高,不装修也近乎能入住。来到现场您会发现,金沙的墙面、地面施工相较于传统作业,可是多出好几道工序,与普通交付相比,房屋的整体品质、观感,自然更胜一筹。

车库整体基调为简奢典雅的暖白色,顶部走线统一,整体看上去简洁大气,而且整个空间的视觉色彩更加的和谐、轻松、舒适。

地下车库中管线众多,包括给排水、电气、暖通等系统,管线之间的空间关系和布局,直接影响车库的使用效率和安全性。在施工之前,项目采用BIM技术对车库管线进行优化设计和碰撞检测,更好地了解施工细节和要求,提高施工质量和效率。
在灯光上,整个地下车库采用LED自动感应灯的照明模式,灯随车亮,完全不用担心进入地下车库时,灯光出现忽明忽暗的情况。


此外,金沙天悦的地下车库还有诸多贴心升级设计,例如立柱增加铝合金防撞条,不锈钢集水坑的盖板,高档铸铝挡车器等,让人只看一眼,就喜欢上了这里。

在项目景观视野最好的高层楼栋,户型设计为多面宽超大尺度南向布局,将景观优势最大化展现,提高户型的价值点和竞争力。

▲ 多面宽超大尺度南向布局
金沙•東院
正如世间所有历经时间而永恒的伟大作品,对于品质的考究,是一切了不起的开始,金沙東院,亦是如此。

作为金沙TOP系的战略作品,金沙東院是日月湖这片土地上一个特别的存在,代言着一种迭新体验的纯粹洋房生活,也代表着金沙产品力的硬核造诣。所以在归家门庭、景观营造、建筑工法包括建材的考量上,无不考究用心。


景观

楼宇间通过错位营造出灵动空间,形成三级景观渗透和超大视距。在项目中庭设置下沉式庭院会所,形成从地面到地下的空间层次渗透,打造沉浸式的空间体验。
细节

▲ 金沙·東院 实景
就连园区里一个毫不起眼的小组件,如花池灯箱、草坪灯、地漏、取水阀+雨水口等都要进行五次打样。



東院的门

大门两侧的消防门蕴含中国人的含蓄之美,先见景后见门,入口与景观融为一体。门前的古松、山石、草坪犹如一块屏风,若隐若现。


地下车库归家大堂正对自动门的位置,做了古铜雕刻定制 logo,色彩和质感的碰撞,与整体环境十分协调,塑造出精致奢雅的形象气质。


一楼私家小院入户门,通过色彩、材质、图案、弧线等元素进行叠加、升级,构建不一样的生活理念。

地库
对于房子而言,惊艳的建筑外立面是“面子”,隐藏在地下的车库是“里子”。
在车库出入口处,金沙匠人别出新裁,设计全新超高挑空设计、感应式灯光系统、墙面天然石材,业主不管是出门还是归家,都能给您满满的仪式感。


由于地下车库流量大、磨损大,金沙在原有水磨石地坪基础上,升级全新配色方案。水磨石地坪具有防尘防滑、亮度高、耐老化、耐污染、耐腐蚀等优异品质,让地坪使用寿命更长。

▲ 项目实景图




建筑


创新户型:420㎡一层一户,6.6m超高挑空
在产品设计上,通过对户型的创新设计、严苛的尺度考究,打造出高端住宅新样本。项目标准层高3.15m,楼王标准层高3.3m,局部挑空6.6m——设置了双层挑高空中庭院,无柱悬挑6.5m,覆土40cm,突破了常规阳台的空间尺度,带给业主超尺度的生活空间享受。


▲ 项目效果图
约90㎡开放式客餐厅搭配6.6m超高挑空,超大开间及超大落地窗设计营造无边界视觉效果,搭建疏朗开阔的空间,使房间通透感十足,视野豁然开朗。


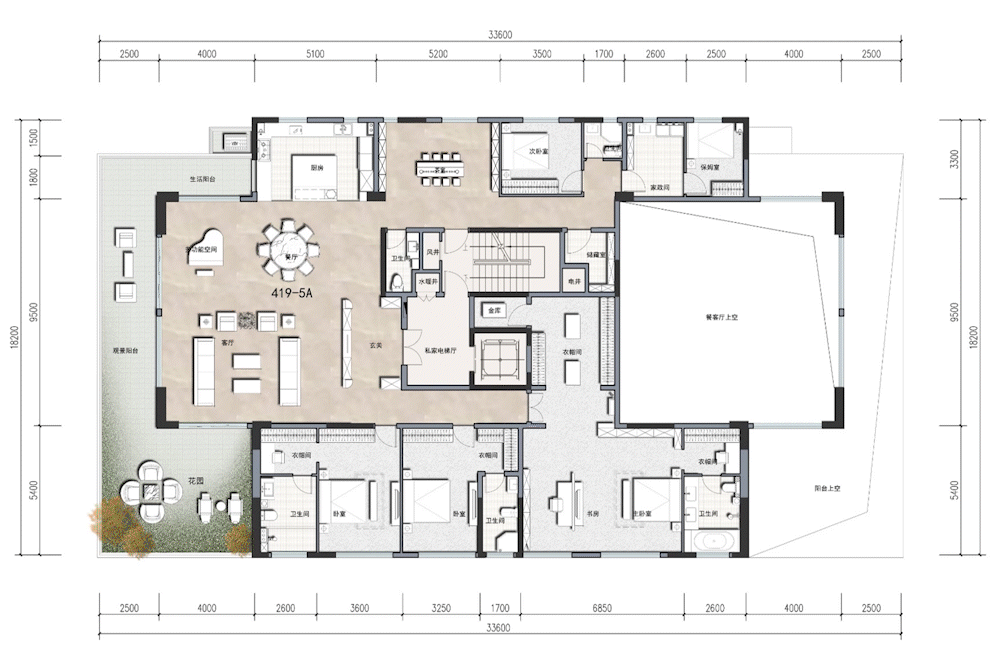
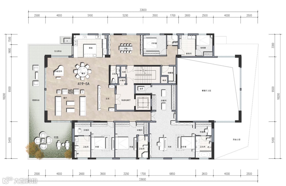
▲ 420㎡户型首层平面
内部工艺



学习 金沙集团 服务
实楼演练不仅仅是金沙锤炼产品的一大法器,更是对业主未来入住的一种责任体现。金沙的每一次实楼演练都能发现很多问题,不仅可以帮助提升工程质量,还能大幅减少业主在装修过程中的改造困扰和二次投入。

由金沙集团总裁带队,集团审计监察、技术研发、工程管理、成本招采,以及物业公司、区域公司、营销管理部、施工单位等核心部门精英组成实楼演练小组,针对金沙壹号院的各个户型,提前模拟未来生活场景,精研人性化生活细节,及时修正设计及功能缺陷,优化提升业主的居住舒适度。
工程精细化是金沙的立命之本,金沙生存的根基。在实楼演练的过程中,不光是要发现问题,也要发现亮点。这样在后续的施工中,可以把亮点发挥到极致,也把金沙这些优秀的做法,及时用在其他项目中。

延伸阅读
学习 | 金沙集团:贴心的物业服务

咨询微信:soujianzhu03
咨询微信:soujianzhu008
2024年·新产品方向
《 品牌地产 | 精品楼盘活动 》
杭州、苏州、上海
成都、郑州......
广州、福州、重庆
西安、青岛......
扫描二维码 加好友咨询
领队微信:soujianzhu03
本资料声明:
1.本文为建筑设计技术分析,仅供欣赏学习。
2.本资料为要约邀请,不视为要约,所有政府、政策信息均来源于官方披露信息,具体以实物、政府主管部门批准文件及买卖双方签订的商品房买卖合同约定为准。如有变化恕不另行通知。
3.因编辑需要,文字和图片无必然联系,仅供读者参考;
推荐关注
全球精品楼盘考察
扫描二维码关注
微信公众号:全球精品楼盘考察
合作、宣传、投稿
联系微信:soujianzhu006


