▲ 更多精品,关注“搜建筑”
从普通阳台到大平层跑道式阳台,再到第四代住宅的“错层挑空大露台,露台空间在不断升级迭新。
不是简单地把阳台或露台做大
而是用“空中花园”来一场「户型革命」

▲示意图
露台优点多多:
1、错层设计保证户户有露台,家家有花园
2、赠送空间巨大,露台大部分或全部赠送,不计入建筑面积
3、空间开放开敞式露台,视野开阔,空间舒适
4、超高尺度挑高露台通常按6米超大尺度挑高,2米开窗,窗地比远超普通住宅产品
可以根据自身的生活需求,去创造独特的生活空间,可以任意切换场景模式。
比如,party模式、农场模式、健身模式:

▲场景模式示意图

▲各地项目户型示意图
不同的城市,对于第四代住宅露台的设计有不同的要求。
比如福建福州
1、室内空中花园:层高不低于两个自然层高,不封闭、无围护结构,绿化覆土深度不低于0.5米,绿化面积≥60%,出挑尺寸应≥2.4且≤53.6,面积不受阳台比例限制,不得设置于北侧;
2、室外共享花园:层高不低于两个自然层高,不封闭、无围护结构、绿化覆土深度不低于0.5米,绿化面积不低于30%,应连接一定数量住户并供业主共享,不得设置于北侧。
我们来看一下三木乐府项目,通过阳台与空中花园结合形式实现跑道式空中花园的同时,保证一定数量的居室享有较佳日照条件。而且它改变了户型的传统结构,让客厅、卧室与空中花园交融在一起,打破了室内外空间的边界。

▲ 项目效果图
传统阳台和露台是横向的,三木乐府的空中花园既有近22m的南向巨幅花园,也有近8.4m进深、6m通高的空中庭院,纵深融入户型内部。

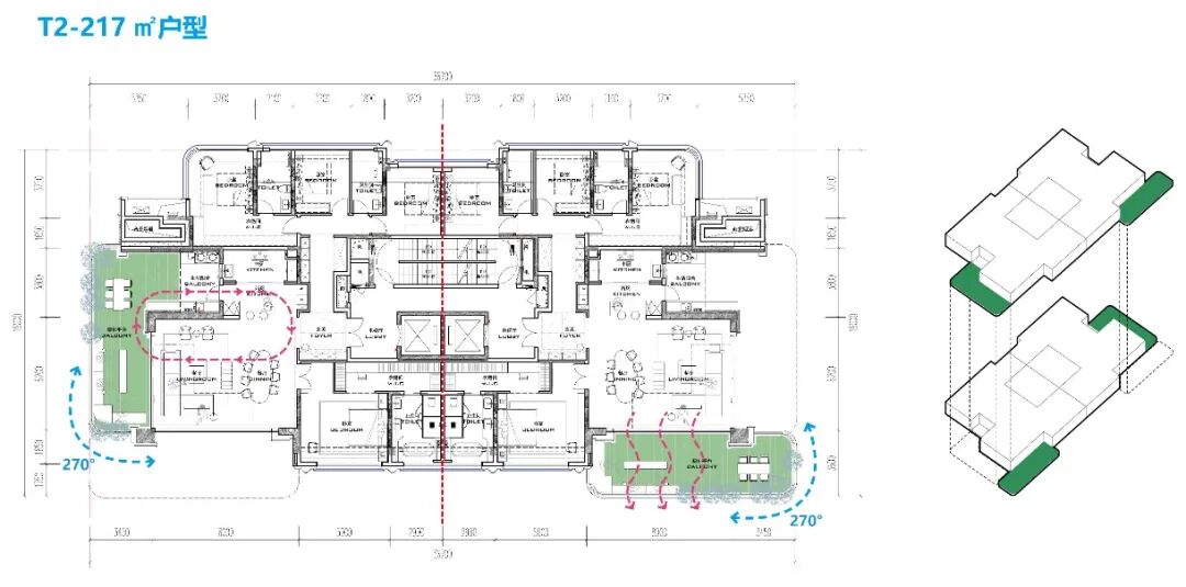
▲户型示意图

▲170㎡偶数层户型示意图
通过充分放大立体生态住宅空中花园的优势,进一步在设计中通过自由、舒展的超大面宽, “延长” 通透的观景边界面,以强化内外空间的连续性,让住户在新维度也能极致贴近、感受自然。


▲福建福州三木乐府实景图
福建福清
1、户属空中花园:外挑尺寸应不大于6米,高度不低于2层,覆土绿化面积不小于50%,覆土厚度不小于0.5米,空中花园面积不计容、不计产权,面积比例不受限制;
2、空中共享平台:应连接一定数量住户,高度不低于2层,沿开敬面应做绿化。空中共享平台不计容、不计产权,建筑面宽不受限制。
融旷·明亚·江山天悦,创新性地将垂直空间划分多个层次,采用“奇偶错层"、"前园后巷”等不同的绿化布局,形成空中花园景观。局部挑板的结构形式,解决下挂的结构梁系遮挡花园露台天然照明的可能。

▲效果图过程稿,不作为交付承诺

▲ 户型效果图
▲意向图,不作为交付承诺
建筑设计:G.Y广宇设计
湖南长沙
要求:露台覆土不小于0.5米,且植树,阳台的60%计做绿化。
长沙保利和光尘樾空中花园阳台”奇偶错层的设计,户户朝南错位,解决了对视问题,在保证私密安全的基础上,还不影响通风、采光,居住体验是传统住宅项目很难达到的。

▲保利和光尘樾效果图
“同时,保利在空中花园阳台承重、防水、排水技术方面做了提升,承重强又美观;另外,花园结构板上设置有防水卷材与排水系统,不用担心排水以及水渍对建筑产生损坏等问题。
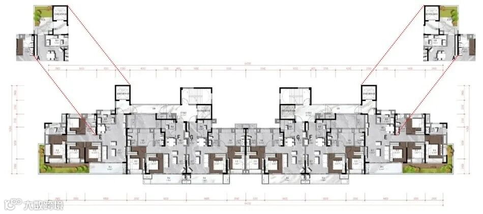
▲花园落位分析
▲长沙保利和光尘樾 产品平面图

▲保利和光尘樾样板间实景
建筑设计:UA尤安设计事业一部
山东济南
1、以每户拥有面积一般不小于套内建筑面积的30%,层高不小于两个自然层的开敞式户属空中花园为基本配置的住宅。
2、空中户属花园和开敞式公共绿化平台:层高不应低于两个自然层层高,无多余围护结构。景观设置区域面积不得小于水平投影的 60%,景观设置区域覆土深度应不低于0.5米。
银丰玖玺城 | 珑和院项目,户户享“空中花园”,设计通过构建垂直森林花园体系,打造空中庭院,每一户都带有面积约9-72㎡、挑高约6.2-7米的私享露台,得房面积约提升10-50㎡,房产证使用面积提升15%以上。窗墙比达到0.5,更多阳光、空气进入庭院和户内。

▲银丰玖玺城 | 珑和院效果图


▲建面约315㎡户型示意图


▲银丰玖玺城 | 珑和院效果图
四川成都
1、空中共享平台和户属生态阳台高度≥2个住宅自然层,绿化面积不低于水平投影面积的60%,覆土深度应不低于 0.5 米。
2、“建筑面积超过144㎡的新建住宅试点建设生态阳台。生态阳台的面积不大于建筑面积的25%,不超过50㎡,每户可设置一处。生态阳台不计入建筑面积、不计入容积率”。


▲滨江郦城
四川眉山
1、城市森林花园建筑试点项目中的载车电梯、空中立体停车场及车道、开敞式公共平台等不计容;
2、试点建筑可设置外挑空中花园,须两层通高、无围护结构、无柱、有覆土绿化植物,空中花园不计容;
3、试点建筑每套住宅空中花园水平投影面积可突破原规范中的15%的限制,空中花园外挑尺寸应大于4米且小于6米;
4、空中绿化可按照花园面积的20%折算计入绿地率;
5、空中花园覆土植物的绿化面积不应小于空中花园水平投影建筑面积的60%,覆土厚度不应小于0.5米;
6、建筑间距和退距按照空中花园外挑尺寸的一半进行计算;
介于别墅单层面积小、大平层没有花园的痛点,眉山樾园打破别墅和平层的界限,这种端厅大平层+空中花园的组合,便成就了樾园的理想空间。
▲樾园效果图
建筑设计:基准方中
樾园采用以不同朝向空中花园,革新优化邻里对视固病,配合约50cm大面积降板设计,可全覆土随意改造,不同风格花园、观景台、会客场等多元生活场景均可满足,实现真正意义上的“空中私园”。

▲樾园户型示意图
重庆
1、套内面积在110 平方米及以上的,每户可设置1处绿化平台用于打造开敞式户属立体绿化庭院。绿化平台符合以下要求的,可不计算容积率:
• 投影面积不超过50平方米;
• 通过结构降板设置下沉土池,种植覆土厚度不小于0.5米;
• 高度应为2个及以上住宅自然层,绿化平台进深应不大于6米;
• 四周应有不少于2个完整的开敞面,仅可设置通透栏杆 (板) ;
2、每户绿化平台、阳台(含生活阳台)、露台、设备平台等非户内空间总投影面积不得大于套内面积的40%。
3、鼓励每层 (含首层) 设置多户共享开敞绿化平台,层高可为1个自然层,其他符合户属平台4项要求的,可不计容。
华润置地&香港置地 观宸·千重锦的露台不是简单的外挂,而是室内空间的有机生长。

▲千重锦效果图©ZEN正象设计

▲千重锦标准层以及体块分析©ZEN正象设计
湖北武汉
1、住宅阳台:进深不大于2.4米,阳台水平投影面积总和不超过单套套内建筑面积的20%。同时符合以上条件的,按照1/2计容。
2、空中花园:套内面积在100平方米及以上的住宅,每户可设置1处空中花园。应符合以下要求:
• 设置在2层及以上,外挑2个及以上住宅自然层高(且不小于5.6米),进深不大于6米。
• 紧邻开敞面布置绿化,绿化面积不小于空中花园水平投影面积的50%,通过结构降板设置下沉土池,种植覆土厚度不小于0.5米,并设有灌溉、排水系统。
• 不少于2个完整的开敞面(或开敞面不少于周长的50%)。开敞面不得设置围护墙体、柱、飘窗等,仅可设置栏杆(栏板),便于直接采光通风。空中花园不得嵌套阳台、飘窗。
• 每户住宅套内阳台(含生活阳台)、空中花园水平投影面积之和不大于单套套内建筑面积的30%。
3、空中花园不计容。
武汉城建金地和悦户型设置两层一露台,采用端户阳台错层挑高的方式,G2#楼栋采用卧室出挑和入户空中花园出挑两种布置方式,奇数层悬挑1.8m,在临空侧设同样尺度的花池空间,绿化占比52.5%;偶数层悬挑4.5m,设同样尺寸花池,绿化占比51.2%。

▲武汉城建金地和悦效果图


▲18F高层住宅-空中花园局部平面


▲11F洋房-空中花园局部平面
本资料声明:
1.本文为建筑设计技术分析,仅供欣赏学习。
2.本资料为要约邀请,不视为要约,所有政府、政策信息均来源于官方披露信息,具体以实物、政府主管部门批准文件及买卖双方签订的商品房买卖合同约定为准。如有变化恕不另行通知。
3.因编辑需要,文字和图片无必然联系,仅供读者参考;

微信公众号“搜建筑”(ID:sjz9999)
合作、宣传、投稿
联系微信:soujianzhu006



