
波士顿大学计算与数据科学中心是波士顿大学的地标性建筑。它改变了学校的天际线,实现了值得称赞的可持续发展目标,并将以人为本的设计放在首位,最大限度地加强了合作与互联。该项目汇集了数学、统计和计算机科学系,在 3000 名学生、教职员工中建立了社区。实现垂直校园。
The Center for Computing & Data Sciences at Boston University is a landmark for the university. It transforms the skyline, meets laudable sustainability goals, and prioritizes human-centered design, maximizing collaboration and interconnectivity. The project brings together the mathematics, statistics, and computer science departments, building community among the 3000 students, faculty, and staff. Realized as a vertical campus.

该中心大胆地耸立在查尔斯河畔,楼高 19 层,占地面积 345,000 平方英尺,是波士顿最大的、可持续的、不使用化石燃料的建筑。其悬臂式体量具有红褐色对角百叶窗(最大限度地减少太阳辐射,同时最大限度地增加遮阳效果)和闪闪发光的镜面锯齿外墙,位于三层玻璃幕墙之上。这些设计元素不仅为建筑增添了独特的线性美感,还有助于提高舒适度和可持续性,使建筑冬暖夏凉。
Towering boldly over the banks of the Charles River at 19 stories, and spanning 345,000 square feet, the Center is the largest, sustainable, operational fossil fuel-free building in Boston. Recognized by its cantilevered volumes that feature both reddish-brown-colored diagonal louvered (to minimize solar gain and maximize shading) and gleaming mirrored sawtooth facades that rest atop the triple-glazed curtain wall that clads the structure. While contributing to the building’s distinctive linear aesthetic, these design elements also contribute to comfort and sustainability efforts, keeping the building warmer in the winter and cooler in the summer.

裙楼突出悬停在联邦大道上,使街景更加完整,并最大限度地激发了大道底层的活力。它高度透明、多孔,可作为到达、学习和聚会的城市门廊。该中心的概念是作为一个上升的学术社区,低层用于数学和统计学,中层用于计算机科学,顶层用于跨学科工作和公共空间。中央中庭以协作精神将教师和学生团结在一起,一条相互连接的楼梯从该区域穿过,向上延伸至 138 层,将各个学科连接起来,促进思想的相互交流,激发偶然的相遇。
The podium juts out to hover over Commonwealth Avenue to complete the streetscape and generate maximum ground-floor animation on the avenue. Highly transparent and porous, it functions as an urban porch for arrival, study, and gathering. The Center is conceptualized to function as ascending academic neighborhood with lower floors devoted to math and statistics, middle floors for computer science, and top floors for interdisciplinary work and public space. A central atrium unites faculty and students in a collaborative spirit and an interconnected staircase emerges from the area weaving upwards of 138 floors to connect various disciplines, nurture cross-pollination of ideas, and spark serendipitous encounters.

该设计为波士顿及其他地区未来的学术建筑树立了一个雄心勃勃的可持续发展新先例。波士顿大学气候行动计划的目标是到 2040 年将该校的碳排放量降至零,根据该计划,中心的目标是获得 LEED 白金级认证,并通过地热闭环系统实现 100% 的无化石燃料运行,该系统通过地源热泵系统为大楼供暖和制冷。
The design sets an ambitious new sustainability precedent for future academic buildings in Boston and beyond. In line with Boston University’s Climate Action Plan, which aims to reduce the institution’s carbon emissions to zero by 2040, the Center is targeted to attain LEED Platinum and is 100% operational fossil-fuel free with a geothermal closed-loop system that heats and cools the building through a ground source heat pump system.

建筑利用可再生和替代能源,包括地下水补给系统和最先进的外部遮阳系统。开放式的内部空间充分利用了中心位于波士顿市中心的独特地理位置,从建筑的三面都可以欣赏到广阔的河景。教室和协作空间采用落地玻璃窗,光线充足,提醒沉浸在数字世界中的学生们要时刻从自然世界中汲取灵感,牢记技术与人文之间的联系。白板墙遍布整个核心区,在展示各种流程的同时,也激发了学生们的合作意识。
The building draws on renewable and alternative energy sources, including groundwater recharge systems and cutting-edge exterior shading systems. Open interior spaces take advantage of the Center’s unique position in the heart of Boston, with expansive river views afforded from three sides of the building. Classrooms and collaboration spaces are illuminated with an abundance of light with floor-to-ceiling windows to remind students enveloped in the digital realm to remain inspired by the natural world and remember the link between technology and humanity. Whiteboard walls throughout the core stimulate collaborative ideation while putting processes on display.

这座先进的建筑包括 12 间教室、两个计算机实验室、位于底层的咖啡厅、多个协作空间以及一个带盖自行车棚的广场。叠加式校园的顶端是一个活动空间和一个三层高的露天凉亭。绿色屋顶和露台遍布整个中心,将学生、教职员工与自然环境联系在一起,并可欣赏到城市美景。这些开放空间加强了中心各部门之间的联系与合作。
The state-of-the-art building includes 12 classrooms, two computer labs, a cafe on the ground floor, numerous collaboration spaces, and a plaza with a covered bike shelter. The stacked campus culminates in an event space and a three-story-high open-air pavilion. Green roofs and terraces are located throughout the Center to connect students, faculty, and staff to the natural environment, and offer views of the city. These open spaces allow for increased connection and collaboration among the various departments that now call the Center home.

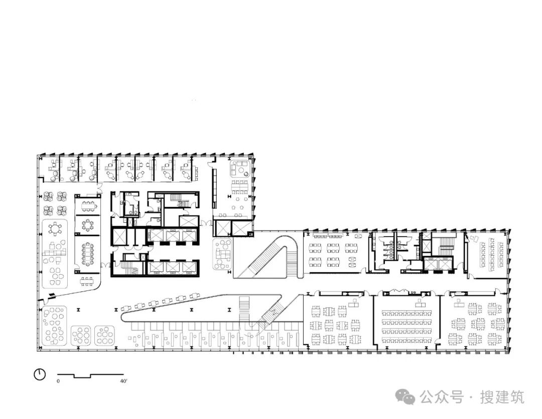
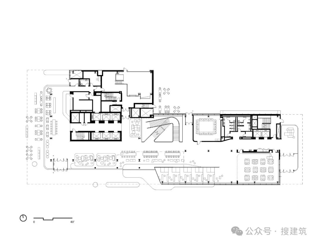
平面图
平面图
平面图
平面图
平面图
立面图
立面图
剖面图
示意图
本资料声明:
1.本文为建筑设计技术分析,仅供欣赏学习。
2.本资料为要约邀请,不视为要约,所有政府、政策信息均来源于官方披露信息,具体以实物、政府主管部门批准文件及买卖双方签订的商品房买卖合同约定为准。如有变化恕不另行通知。
3.因编辑需要,文字和图片无必然联系,仅供读者参考;

微信公众号“搜建筑”(ID:sjz9999)
合作、宣传、投稿
联系微信:soujianzhu006