千里汾河 辉耀双府
太原瑞府及滨河润府示范区
“锦绣太原,晋阳故地,并州新府。北达幽燕,南通秦蜀。襟四塞之要冲,盛衰攸系;控五原之都邑,治乱必据。表里山河,山右首区。际山枕水,华夏名都。”
——《太原赋》
士族传承 尊崇礼序
如梦晋阳,传承礼制。
流水汤汤,浩瀚序章。
太原为晋阳故地,北达幽燕,南通秦蜀,居然山川形胜,从来风物殊佳,文化斐然,名人辈出。同时也是“控带山河,踞天下之肩背”,“襟四塞之要冲,控五原之都邑”的历史古城。
△ 太原文化解析
本项目位于山西太原,北邻长兴南街,东邻滨河西路,西邻和园路,南邻南中环西街,是长风商务区的核心区域。地理位置优越,景观资源丰富,视野开阔。
△ 区位及周边分析
因北侧为主要人流来向,且拥有一线景观资源,故而将示范区的选址设置在西北角,可远眺汾河景观,亦可对仗和园美景。
出世繁华 入世安谧
繁华贵胄,熙熙攘攘。
宁静安谧,志存高远。
△ 售楼处北侧立面
在示范区整体规划中,我们以出世繁华与入世安谧相互呼应为主题,打造一个充满活力和宁静舒适的居住环境。外部空间以繁华的都市景色为背景,林下诗意空间则为内部空间带来宁静与舒适感。同时充分运用“以古喻今,以今释古”的理念,营造出富有文化内涵和艺术价值的礼序空间。
△ 空间场景打造思路
在规划设计中,以对称的中心轴线彰显华贵雍容气场,将古典建筑的严谨和优雅融入其中。以蜿蜒的通幽曲径体现典雅文化气质,打造一个充满诗意和舒适感的居住空间。
△ 空间、流线、视野分析
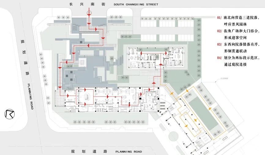
示范区主要打造了礼序空间主轴、景观空间主轴和静谧归家轴线,营造出不同特色的居住环境。
△ 整体首层平面图
礼序空间主轴作为示范区的核心,将各个功能区域串联起来,打造出一种有序的游览体验;景观空间主轴以自然景观和绿化为主导,为大家提供一个放松和休息的场所,移步异景,满足人们的不同需求;静谧归家轴线为居民打造一条回家之路,让他们可以在喧嚣的城市中寻找到一片安静的净土。
△ 示范区整体鸟瞰
山水环抱 澎湃晋阳
峻岭巍峨,汾川逶迤。
山水环抱,澎湃晋阳。
大门采用了极具气势感的设计,以高大雄伟的片墙和宽阔的门洞为主体,整体长达66米,高达8.8米,营造出一种威严而庄重的气氛。
△ 示范区大门北侧主入口
主立面的选材上,选用范思哲黑石材与香槟金铝板的组合,形成了坚实稳固而富丽堂皇之感。整个大门的设计非常简洁而大气,没有任何多余的装饰,却通过材质和造型的完美结合,展现出了非凡的气势和质感。
△ 示范区大门北侧透视
照壁上的山水图案是整个设计的亮点之一。照壁作为中国传统建筑中的一种元素,通常被用来遮挡和装饰建筑物的正门,以金属铝板的不同尺寸及角度变化,在照壁出描摹出山水图的形状。
- 左右滑动查看《汾河千里图长卷》-
△ 照壁格栅工艺详解
本案的格栅图溯源山西大型版画《汾河千里图》,这幅版画是中国传统文化和山西地方特色的代表作品之一,以其独特的艺术形式和深刻的文化内涵而著名。通过对其中的山峦、河流、村庄等元素的提炼和简化,形成了具有现代感的几何形状。这些几何形状组合在一起,形成了一种优美的节奏感和动态感,为大门的整体设计增添了一份独特的艺术魅力。
△ 示范区大门细节
雨棚是连接照壁和大门的过渡空间,它的顶部被设计成与照壁上的山水图案相呼应的形状。这些图案通过连续和重复的设计手法,一直延伸到雨棚的顶部,形成了接天莲叶无穷尽的感觉,不仅增加了整个大门的立体感和层次感,同时也使整个示范区更加具有艺术性和观赏性。
△ 示范区大门对景
△ 示范区大门背立面
△ 示范区大门节点展示
精致隐奢 筑梦晋阳
融古喻今,浑厚庄重。
精致隐奢,筑梦晋阳。
△ 售楼处北侧正立面
在售楼处规划设计中,我们以融古喻今,浑厚庄重,精致隐奢,筑梦晋阳为设计理念,打造一处别具一格的展示空间。
△ 售楼处北侧正整体
设计灵感源于山西晋阳的历史文化底蕴,我们将古朴的建筑元素与现代设计语言相结合,形成独特的视觉效果。外观上,采用了传统的建筑风格,结合现代简约的线条,营造出庄重而又不失现代感的立面。同时,为了呼应主题,我们将古代建筑中的格栅、纹理等元素巧妙地应用于设计中,使整个售楼处散发出浑厚的文化气息。
△ 售楼处中心水院
内部空间则以精致隐奢为主题,我们追求细节处的品质与格调。运用高档的材质和精湛的工艺,打造出奢华而舒适的氛围。在色彩搭配上,以暖色调为主,营造出温馨、舒适的氛围,打造出充满艺术感的展示空间。
△ 售楼处连廊空间
外立面采用深灰色的石材,不仅给整个建筑带来了稳重肃穆的基调,同时也显得高贵而大气。这种颜色的石材在阳光下会呈现出不同的色调,使整个建筑更有立体感和质感。
△ 售楼处主入口空间
与此同时,结合香槟金铝板,点缀出黑金尊贵的美感,为整个建筑增添了一份华贵的气息。
△ 示范区空间节点打造
内部规划结构采用山西传统的园林建筑风格,南北向营造三进院落,体现晋风园林特色。从入口处的街角广场和大门开始,形成了一个宽敞明亮的迎客空间。同时东西向院落错落有序,形制贯通联动。
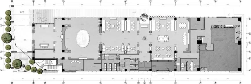
△ 一层平面布置图
△ 二层平面布置图
- 左右滑动查看节点展示 -
雍容尊享 礼遇晋阳
<社区大堂>
多重进制,多维空间。
雍容尊享,礼遇晋阳。
△ 社区大堂西侧效果图
在社区大堂的设计中,立面采用对称的立面布局,黑金的立面配色,彰显入户大堂的气质;七米的超高层高,恢弘的归家仪式,体现社区高级的品质;多维的会所功能,专属的空间体验,传递豪宅大盘的魅力。
△ 社区大堂西侧效果图
△ 社区大堂细节效果图
△ 节点展示
雍容尊享 礼遇晋阳
<样板房>
品质观感,仪式归家。
士族传承,概览晋阳。
230与300户型样板房的提前展示,拉开序幕;
对未来景观及室内观感的模拟体验,引人入胜;
公共区域的优质布局及其营造的客户体验,宾至如归。
△ 样板房南侧门厅
品质把控 精雕细琢
△ 示范区部分初稿材料样板
△ 示范区巡场照片
结 语
以千年三晋荣光淬炼不凡,
成就一场流经世界的伟大。
△ 效果-建成对比
项目名称:华润太原瑞府及滨河润府
项目地址:山西·太原
项目业主:华润置地
示范区用地面积:9705㎡
示范区建筑面积:3555㎡
建筑设计:DC国际
景观设计:JTL加特林
室内设计:YZED梓人空间设计
设计指导:揭涌
设计团队:王雷鸣、黄鸣飞、李业发、李君怡、詹童济
项目摄影:DC国际
2024年·新产品方向
《 品牌地产 | 精品楼盘活动 》
杭州、苏州、上海
成都、郑州......
广州、福州、重庆
西安、青岛......
扫描二维码 加好友咨询
领队微信:soujianzhu03
本资料声明:
1.本文为建筑设计技术分析,仅供欣赏学习。
2.本资料为要约邀请,不视为要约,所有政府、政策信息均来源于官方披露信息,具体以实物、政府主管部门批准文件及买卖双方签订的商品房买卖合同约定为准。如有变化恕不另行通知。
3.因编辑需要,文字和图片无必然联系,仅供读者参考;

微信公众号“搜建筑”(ID:sjz9999)
合作、宣传、投稿
联系微信:soujianzhu006

