▲ 更多精品,关注“搜建筑”
GLA建筑设计


一方面,近几年的教育改革进程中强调“去中心化”;另一方面,目前的大环境仍无法回避传统分数评价体系。因此,我们在合理规划传统的“正式学习空间”的基础上,通过挖掘交通空间、绿化空间等区域,强调校园中“非正式学习空间”、“虚拟学习空间”的统筹设计。

早上7点半,学生陆续到校,一天的学习就开始了。每节课45分钟,课间10分钟。高强度的课程学习中,学生的活动空间显得尤为重要。


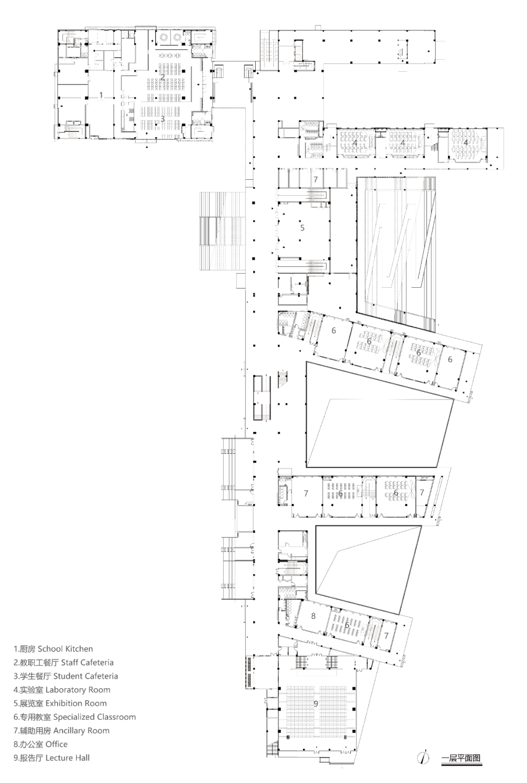
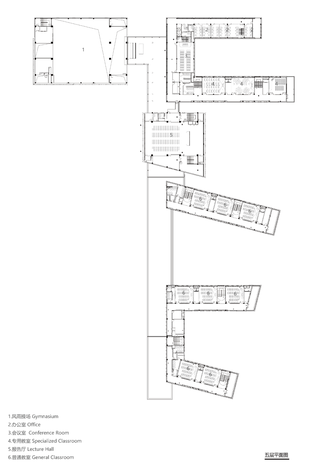
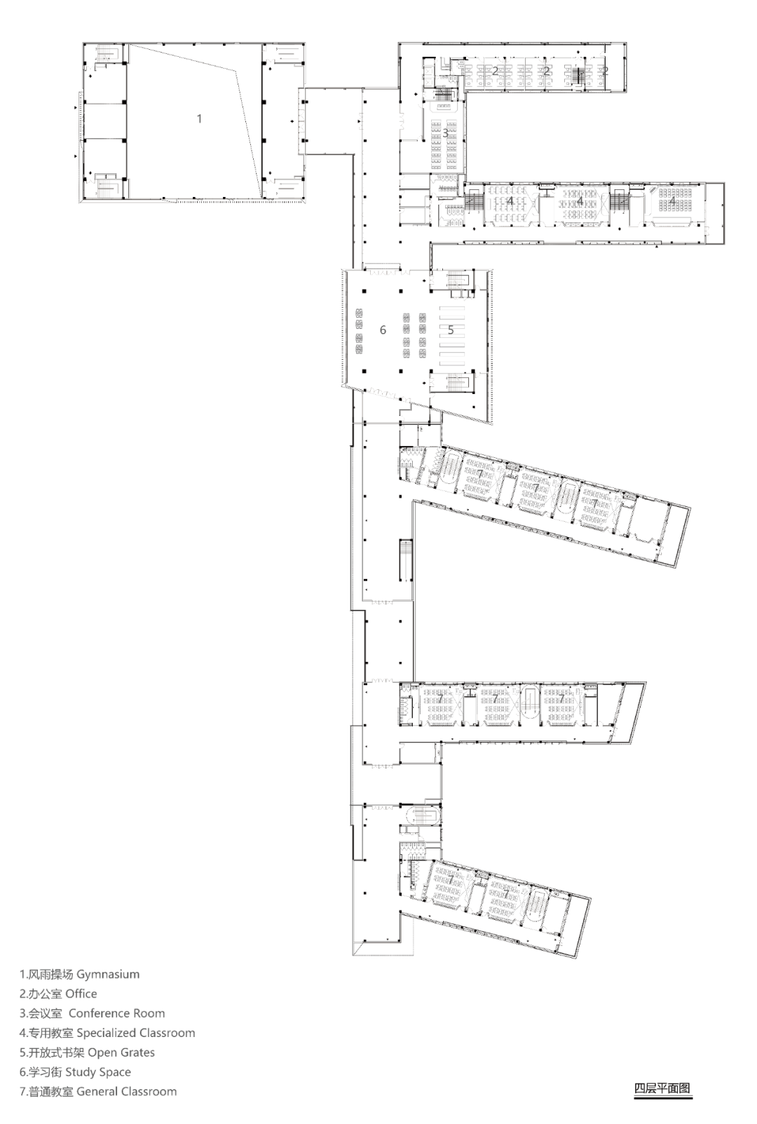
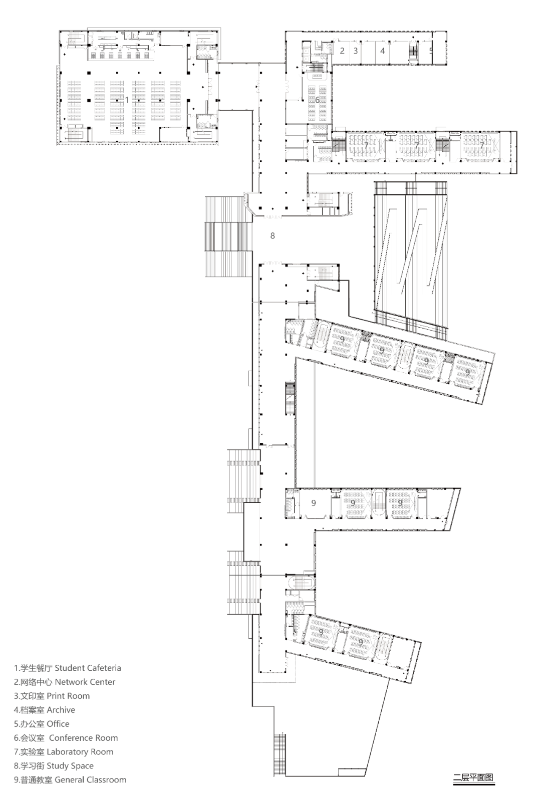
美国建筑师路易斯·康曾提出:学校始于一棵树下。校园是由适合学习的空间所构成的环境,而我们设计的“共享学习街区”则始于南侧次入口终至北侧景观平台,串联了教室、图书馆、行政及运动区,穿插了广场、屋顶平台、院落、大台阶草坡等场景。场地原有的地形高差问题,也通过场景设置得以化解,反倒形成丰富立体的空间场所,锐增趣味。
△ 学习共享街区轴侧流线分解图
△ 学习共享街区展开剖面图







不难发现,现代校园通常承担着模拟微型社会关系的角色。我们通过空间设计,回应“去中心化”的教育理念,尝试实现多维度教育场景的再现。让学习不仅仅在课堂上,而发生在整个校园环境之中:学生们自主地完成合作、探究与自我建构,迎接着更多可能性的未来。

△ 左右滑动查看更多
项目地点:浙江杭州
室内设计:GLA尚坤设计
景观设计:中外建工程设计与顾问有限公司
幕墙设计:杭州嘉威幕墙装饰有限公司
本资料声明:
1.本文为建筑设计技术分析,仅供欣赏学习。
2.本资料为要约邀请,不视为要约,所有政府、政策信息均来源于官方披露信息,具体以实物、政府主管部门批准文件及买卖双方签订的商品房买卖合同约定为准。如有变化恕不另行通知。
3.因编辑需要,文字和图片无必然联系,仅供读者参考;

微信公众号“搜建筑”(ID:sjz9999)
合作、宣传、投稿
联系微信:soujianzhu006

