
挑战。今天,城市的密度大大高于以往,并仍在不断增高。在高密度环境下的小学与从前低密度环境下的小学的主要差异是什么?随着密度的增加,学校建筑的高度也必然随之增加,这意味着学生在地面户外空间活动的机会就会相应减少。室外活动对孩子的成长至关重要,我们在做学校建筑设计时便聚焦于解决此问题。
The Challenge. The density of cities today is much higher than it used to be and is still increasing. What are the main differences between a primary school in a high-density environment and one in a low-density environment in the past? As density increases, the height of the school building inevitably increases, which means the opportunities for students to go down to the outdoor space on the ground level are correspondingly reduced. Outdoor activities are critical to the development of children, and we focused on solving this problem when designing the school building.

基地。景龙小学位于深圳市中心的福田区,占地面积本来就偏紧张,四周又被高层住宅楼环绕。由于学校共有36个班级,校舍必须高达6层。对于高年级的学生来说,要在课间休息10分钟的时间里下到地面活动几乎是不可能的了。
The Site. JingLong Primary School is located in the Futian district in central Shenzhen. The compact site area is surrounded by high-rise residential buildings. Since the school has a total of 36 classes, the building has to be six stories high, it's almost impossible for senior students to get down to the ground during their 10-minute break.

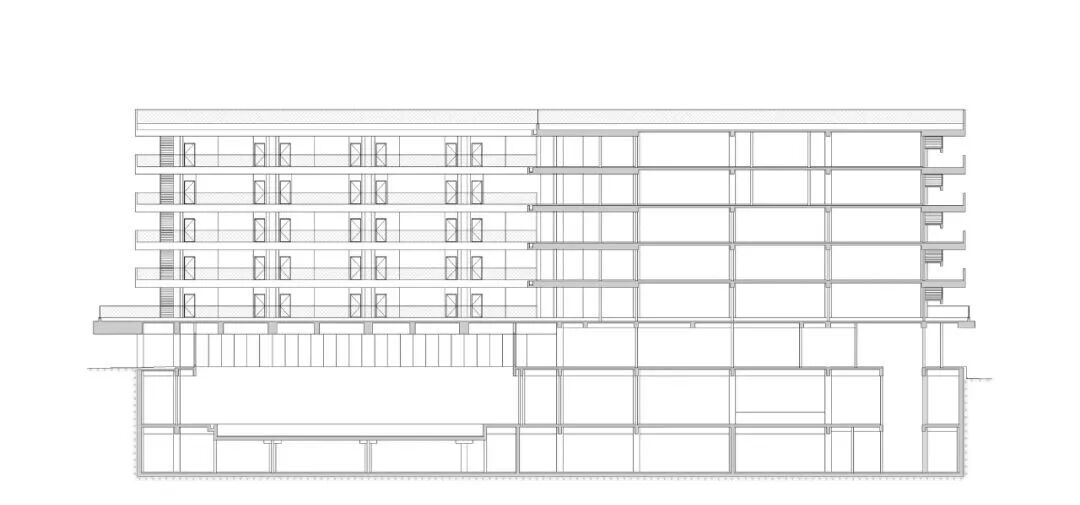
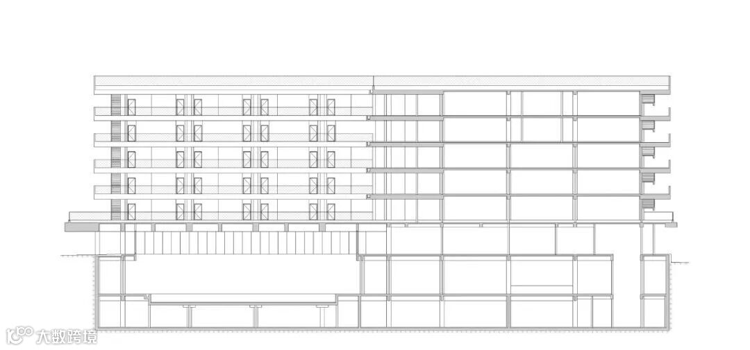
解决方案。既然学生下楼不方便,能不能将户外空间带到各楼层上去?于是在我们的设计中,在每一层的中心位置都出现了一个本质上是露天房间的区域:这个空间有上层的楼板为屋顶,但没有墙体的围合。它像一个风雨操场,同学们可以在任何天气状况下,在这里锻炼、活动、玩耍;它还是一个开放的教室,老师们可以在这里授课、演示,同学们也可以在此自习、讨论。
The Solution. If students cannot get downstairs, is it possible to bring the outdoor spaces upstairs onto each floor? Therefore, at the center of each floor is an area that is essentially an open-air room in our design: this space is roofed by the upper floor, but has no enclosure walls. It is like a covered playground, where students can exercise, hold activities, and play in all weather conditions; it is also an open classroom, where teachers can teach and demonstrate and students can study and discuss.

这个场所不但使学生体验户外又不必下楼成为可能,还提供了走出教室进行班级之间交流的机会。因此,这一系列没有被单一功能定义的半室外建筑空间恰恰构成了学校的社区中心微型广场。
This space not only makes it possible for students to experience the outdoors without having to go downstairs but also provides an opportunity to leave the classroom and interact with each other. Thus, this series of undefined semi-outdoor spaces forms a micro-plaza for the center of the school's community.


由于用地的局限,我们也意识到有必要把绿化引到建筑立面上,于是用钢丝网作为每层开敞空间的栏杆扶手材料,便于藤本植物攀爬。
Due to the compactness of the land parcel, we realize that the landscape has to be developed vertically as well. Wire mesh is selected as the material for the handrails for the open space on each level so that vines can climb up the building elevations.

二层平面图

三层平面图

剖面图

剖面图

设计概念

设计概念
本资料声明:
1.本文为建筑设计技术分析,仅供欣赏学习。
2.本资料为要约邀请,不视为要约,所有政府、政策信息均来源于官方披露信息,具体以实物、政府主管部门批准文件及买卖双方签订的商品房买卖合同约定为准。如有变化恕不另行通知。
3.因编辑需要,文字和图片无必然联系,仅供读者参考;

微信公众号“搜建筑”(ID:sjz9999)
合作、宣传、投稿
联系微信:soujianzhu006