▲ 更多精品,关注“搜建筑”
AUBE欧博设计
由AUBE欧博设计出品的深圳梅沙客厅,自2020年8月中标,经历了3年的建设,于2023年竣工并在同年5月投入使用。
根据《深圳市城市总体规划(2010-2020年)》,小梅沙位于深圳“三轴两带多中心”空间发展轴带体系中的南部发展带上,临近盐田中心组团,并被定位为具有浓郁海滨风情和生态文化特色的休闲度假胜地。梅沙客厅位于小梅沙片区的中心区域,特殊的地理位置赋予了其整体区域的统领性,同时也是该片区最先完工的建筑之一。

梅沙客厅©直角建筑摄影
滨海胜地 艺术之心
小梅沙作为承载着几代深圳人记忆和情感的滨海旅游景点,被起伏的海岸山脉和延绵的丘陵腹地环绕,北侧为叠翠湖水库,南面是与大鹏湾相连的小梅沙湾。梅沙客厅在这片自然美景中,不仅承担着艺术赋能、文化传承的职能,更是一座统领片区的灵魂建筑。

小梅沙片区鸟瞰图©直角建筑摄影
梅沙客厅占地约1万平方米,总建筑面积约3.7万平方米,由一栋15.9米高的主体建筑及室外配套组成。将作为小梅沙片区城市更新单元的“会客厅”及供给整个小梅沙片区的“能源站”,集游客服务、文旅游乐体验、文旅融合展示空间、主题活动演绎和交流、信息管理等功能于一体,是片区重要的游客集散、功能展示和信息咨询场所。

梅沙客厅©直角建筑摄影
梅沙客厅建筑造型以梅沙海域的鲸鱼为灵感生发点,在文化层面上对应自《庄子》中“北冥有鱼”一典:其名为鲲者终化大鹏,深圳之别称即为“鹏城”。建筑表皮采用参数化手段设计,让这一条科技与数字编织的北冥之鱼,自西而东,自深圳湾而向大鹏,喻指深圳这座城市借助科技,面向未来的腾飞之势。
梅沙蝶变 万物生长

梅沙客厅©直角建筑摄影
在梅沙客厅的设计过程当中,设计师们遇到了一系列的设计难题。
设计地块为一个近200米X70米、用地约9700平方米、容积率约1.4的长条形场地,如何缝合被狭长用地割裂的南北侧两个空间;如何将建筑限制在24米以下,以留出一条80米宽的山海视线通廊;如何在一个总建面才3.6万平方米的小建筑里面,有条不紊地“塞下”近十个不同的功能区;如何有效连接周边地铁、商业、办公、酒店等?

用地挑战

山海通廊

慢行系统
为解决这些难题,设计师首先设计了2层大板,分别为5米标高和17米标高,双重标高的入口空间便于建立各个地块之间的联系;然后将建筑的东西两侧进行架空处理,释放出更多公共空间还给市民,同时,在建筑底层采用玻璃幕墙增加建筑的通透性,消解长条形建筑体量带来的压迫感;并在建筑的顶部和底部分别设置能源站的设备空间,中间设计为无柱大空间,建筑东侧设置社康及急救站。

建筑形体生成分析
结构美学 参数化设计

梅沙客厅©直角建筑摄影
设计师在建筑的南面设置了一层跃动的曲线网壳,曲线象征着翻腾在海中的巨鲸,大小不一的白色镂空面板宛如鲸鱼溅起的浪花。为了让“浪花”看起来更具有想象力,设计师对建筑幕墙表皮进行了深入的研究。
设计师最初计划用四边形网格单元化曲面幕墙,但因双曲面单元需单独开模,成本过高,便尝试使用kangaroo物理引擎进行找形优化,将四边形双曲面平板化,但全平板化后对造型影响非常大;为了保证曲面的流畅性,设计师选择了另一种优化方式,将双曲面的四边形板块拆解为2个三角形板块,然后将其密拼做无缝处理,而四边形单元之间做开缝处理,通过模型模拟后,得到一个形体流畅、成本可控的曲线网壳立面。


幕墙的材料选用了能实现密缝和开缝处理方式、且物理和耐久性能良好的人造石。考虑到建筑南侧需自然采光通风,以及屋顶能源站的通风需求,设计师通过参数化程序来调整幕墙板块的开洞大小。利用四边形和六边形板块的叠加增加变化,以及对孔洞倒角处理以丰富细节,来营造“浪花”效果;通过调整开洞大小以满足不同区域的采光通风需求,最终打造出“鲸跃击浪”般的视觉印象。

板块分析

梅沙客厅幕墙细部©直角建筑摄影
设计师对幕墙结构进行了详细分析,确保其悬挂于层间板主梁上,通过预埋件固定装配式钢结构框架,并焊接各框架以保证复杂幕墙的可实施性。

结构分析
为优化室内视觉,设计上使用梯形龙骨结构的幕墙,减轻龙骨的厚重感,并通过驳接爪固定板块。


梅沙客厅的西侧为整个建筑的主入口,设有1300平方米架空区供游客活动、休息。为强化空间的领域感,设计师在端头设计了和幕墙同样材质的人造石V型柱,并对柱体进行参数化程序深化,包括位置定位、分板等。

V型柱空间©直角建筑摄影

整体形态研究分析
设计师在较为安静的梅沙客厅北侧设置了大面积玻璃幕墙以引入湖景,中间大空间采用平板玻璃幕墙,而东侧设备间和电梯间则选用带釉点的折角玻璃幕墙,通过玻璃透明度的变化来展现建筑的功能分区。

梅沙客厅北侧©直角建筑摄影

梅沙客厅北侧©直角建筑摄影
「设计师创作手记」
王展 AUBE欧博设计建筑设计中心副总经理
梅沙客厅是个被逼出来的建筑,是小梅沙建筑群中的特例。一个不超24米,建筑面积(除开能源站)只有一万两千平米左右的建筑需要同时为整个小梅沙旅游区提供游客中心,文化,游乐,集会,医疗急救,社区活动以及展示展览功能的同时,自身还是个巨大的社区级冷热源能源站。捏合上述这些功能本身就已经是个巨大的挑战。
而我们还想通过这个建筑表达点关于小梅沙的海洋文化,展现深圳这座城市的科技底色,有点自讨苦吃的意思。
好在这条大鱼挺精神地被建出来了,有海洋的样子,自认为也能符合小梅沙,符合深圳的气质。对我们这些设计者来说,已经是莫大的幸事。

技术图纸

总平面图

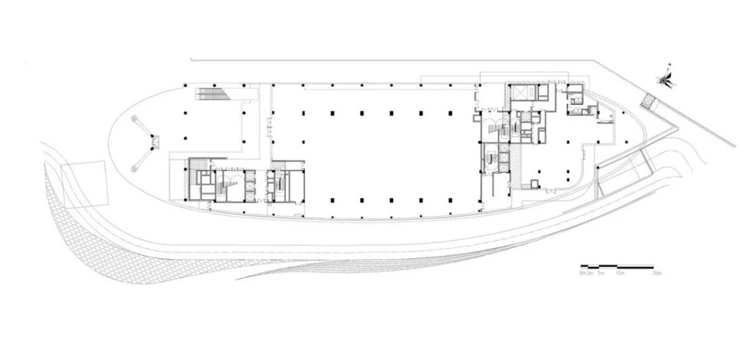
首层平面图

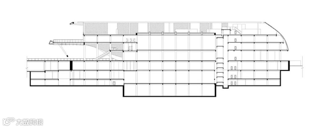
剖面图

立面图
项目信息
项目地点: 盐田区梅沙街道小梅沙片区
客户: 深圳市特发小梅沙投资发展有限公司
设计范围: 建筑方案设计、建筑扩初设计
主要功能: 综合性建筑(含展示,宴会,办公,社康,急救等)
用地面积:9 800㎡
总建筑面积:36 400 ㎡
设计/竣工年份:2020/2023
AUBE欧博设计团队:
项目负责人: 王展
建筑设计:王展、熊泽嵩、马皓天、吕文斌、张学森、温诗铭、冯梓阳
景观设计: 祝捷、冯明、张昌蓉、聂云飞、谢建伟、于飞、钱丹颖、陈惠琪、罗伟、侯妍君、李炼恒 、朱嘉伟、覃丽萍、陈健玲、李春梅
结构设计:林嘉文、刘诗宇、江涌、郑少群
给排水设计:许少良、熊磊
本资料声明:
1.本文为建筑设计技术分析,仅供欣赏学习。
2.本资料为要约邀请,不视为要约,所有政府、政策信息均来源于官方披露信息,具体以实物、政府主管部门批准文件及买卖双方签订的商品房买卖合同约定为准。如有变化恕不另行通知。
3.因编辑需要,文字和图片无必然联系,仅供读者参考;
本资料声明:
1.本文为建筑设计技术分析,仅供欣赏学习。
2.本资料为要约邀请,不视为要约,所有政府、政策信息均来源于官方披露信息,具体以实物、政府主管部门批准文件及买卖双方签订的商品房买卖合同约定为准。如有变化恕不另行通知。
3.因编辑需要,文字和图片无必然联系,仅供读者参考;

微信公众号“搜建筑”(ID:sjz9999)
合作、宣传、投稿
联系微信:soujianzhu006

