▲ 更多精品,关注“搜建筑”
在“房住不炒”的当下,一套房子要解决更长时间周期的使用、承载家庭潜在的人口结构变化,满足丰富多元的生活场景与情境体验。随着换房成本的提高,以及选房买房对时间、精力的大量占用,在一定范围内一步到位,是众多改善家庭的置业升级的底层逻辑。
在此基础上,更高标准的生活方式,是空间尺度的升级,是居住品质的跨越,更是生活方式的升级。
所以人们对于高端改善的需求日益强烈。今天我们来看看纯粹的高端改善,没有高低配,都是建面约180㎡左右的大平层产品。。。
1
LDKB复合空间
注重场景化、社交化
近年来,大平层以其明显的空间布局优势和优越的居住舒适度独得市场青睐,其中影响其整体舒适度的关键之一在于——客厅设计。
客厅作为公共活动空间,是家庭交互、亲友聚会发生的关键场所,是除卧室外使用最为频繁的地方。
近年来,人们对客餐厅的要求越来越强调其功能性和体验性的优化,在这种趋势引导下,住宅客厅面积呈现趋大化发展,大开间、大视野、能容纳更多生活场景的聚厅成为市场主流。
① 边厅:超广角视野,环幕式采光
边厅,也称端厅,是将客厅位置放在房子的边缘或端头区域的一种户型设计方式,因为独特的地理位置,往往可以获得两面甚至三面的采光。
成都越秀·天悦云萃约173㎡户型,四房两厅三卫,穿过对景玄关后,是一个全景舱式270°观景的LDKB互动社交厅,公区面积约75㎡,南北双阳台,实现三面采光,连续采光长度约19米,无论坐在哪个位置,都能保证始终有景。

成都越秀·天悦云萃约173㎡户型示意图
这一标准,以往只在200平甚至更大户型里才能实现。越秀以优秀的产品力打造出满级空间,直接将户型卷出新维度。

项目运用大面积现代玻璃搭配大量金属元素,以横向线条+圆角亲和力+曲线打造未来感,整体窗地比在0.26-0.27左右,完美诠释现代极简主义的地标级公建化外立面。
立面的冠部从游艇中提取出了设计元素,通过造型的错落关系形成了层次,也形成了了鲜明的辨识度。另外选择冲孔铝板很好地凸显本身的质感。
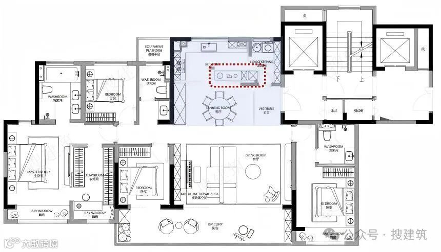
西安保利天珺约186㎡户型,四房两厅三卫,以大面宽+空中院落和多场景居室等设计,并以LDKBG+灵动岛将六大空间一体化,既保持空中院馆的面积,丰富了室内动线,又实现了空间多区域联动和场景的多元互动。

西安保利天珺约186㎡户型示意图
270°超广角的三面揽景端厅赋予更为开阔的视野与心胸,尺度阔绰的超大阳台可以根据需求变身“空中花园”。这种IMAX级的视觉体验区别以往,甚至别墅级产品都不一定完全实现。

保利·天珺项目效果图
立面采用豪宅“流体建筑”新中式设计理念。以曲水的自然肌理和立面水波纹理相呼应,打造优雅流光曲线立面,彰显艺术气韵,屋顶搭配“皇冠”造型艺术冠顶,叠加现代时尚金属质感立面,利用光影变化诠释了流体立面的未来感与动态美。
很多户型,提出一个“全生命周期”概念。中国铁建西派御江约175㎡户型完全可以胜任。
四房两厅三卫布局,超大尺度的LDK空间,客厅、餐厅、开放式中西厨房组成的动区面积达到将近50㎡,再配以罕见的超12米长L型宽幕阳台,犹如空中庭院,约270°环幕窗景,四季美景俯首可得。

南宁中铁西派御江约175㎡户型示意图
中国铁建西派御江项目外立面效果图
② 横厅设计+南北双阳台:无限延展空间尺度感
成都星河WORLD约172㎡户型,四室两厅三卫,户型方正无浪费、南北通透,横厅设计、私享独立入户花园、南向约19.5m超大面宽。

成都星河WORLD约172㎡户型示意图
使用面积约58㎡LDK巨厅设计,打造超大生活化社交场景,中西双厨设计,增加生活氛围感。约8.7m面宽的跑道式景观阳台、约2.7m面宽的生活阳台,双阳台的设计保证了日常生活的功能性。
使用面积约30㎡的主卧套房,独立卫浴、干湿分区、独立超大衣帽间,打造奢阔的起居空间。
佛山保利琅悦约173㎡户型,两梯两户,四室两厅两卫,约170平比起市面上很多200平以上的大平层豪宅,有过之而无不及。

佛山保利琅悦约173㎡户型示意图

佛山保利琅悦约173㎡户型效果图
2
社交型厨房
西厨岛台成为标配
比如西安大明宫金茂府约175㎡户型,可以满足多元家庭的复杂需求。

西安大明宫金茂府约175㎡户型示意图
“第三厅”的设计结合约7.1米开间餐客厅,家庭公共空间的尺度感便被无限延伸,让家人在不同家庭区域各得其乐。

大明宫金茂府样板间实景图
如果连接厨房,便是引进开放式西厨岛台,兼具收纳功能与生活情调的多元空间,让家人之间的互动愈加亲密;若是连接书房,就成为了自由的领地,或阅读、或办公、或独处,一切遵从心中所想。

大明宫金茂府样板间实景图

大明宫金茂府立面效果图
经开区华侨城约183㎡户型,四房两厅三卫,一梯一户设计,五开间朝南,约16m南向面宽,LDK一体化,双玄关,多功能收纳空间。

经开区华侨城雲湖别院约183㎡户型示意图
这款产品将烹饪的仪式感、精致感做的十分到位,一个很大的中厨+加上一个独立的西厨岛台,让整个厨房空间获得非常大的延伸,厨房和餐厅间的岛台,既很好地承接了西厨的功能,又能提升家庭成员之间的互动性。
雲湖别院示意图
这样一来能拥有更多的操作台面,更能为全家人的不同爱好提供了更多施展的空间,比如可以做吧台、DIY手工台、临时工作桌等,十分实用便捷。

雲湖别院效果图
3
休憩区的进一步提升
拉高居住体验
在整个户型里,不仅仅是客厅,卧室的设计也应大胆突破,将更多空间让位于生活,打造奢适的卧室,在充足的空间尺寸间,合理设计独立衣橱、卫浴空间等高阶配套,保证居者私密性和舒适度,令生活品质感得以提升。
① 南向多卧室设计,实现“居住平权”
经开区华侨城雲湖别院约183㎡做到了南向6开间格局,更令人惊喜的是其中三间卧室朝南,且两间设计了超大飘窗,一间与阳台相连,阳光风景都在线。

经开区华侨城雲湖别院约183㎡户型示意图
所有卧室做到了“阳光平权”,并且兼顾了居住的功能性和舒适性。
约9.1米观景阳台,与卧室相连,采光视野俱佳。双套房设计,重点是星级主卧套房,270°环景飘窗,独立卫浴,打造了一个步入式衣帽间,同时还利用飘窗位,做了一个梳妆台。
② 双主卧套房是品质改善的必要配置
成都青羊樾府约185㎡户型,四房两厅三卫,层高3.15m,2T2配置,每户拥有“独立入户”优势:约12㎡的独立全明电梯厅,加上入户后独立的4.3米L形玄关柜,大大增强归家收纳空间。

成都青羊樾府约185㎡户型示意图
LDKG设计,“客厅+餐厅+景观阳台+厨房+玄关”一体化提升空间尺度,构成约77㎡超大社交空间。南向阳台开间6.2m,进深约2.4m,北向阳台进深约1.7m,开约2.3m。无论是视觉空间还是采光通透,均得到升级。

青羊樾府约185㎡户型样板间实景图
主卧套房南向面宽达约5.3m,次主卧套房面宽也有约3.3m,三代同堂也享有阔绰的空间。

青羊樾府约185㎡户型样板间实景图
青羊樾府实景示范区美学畅想图(非交付标准)
4
复合玄关设计
有仪式感,也有功能性
除了上述这些,在玄关模块上进行升级,也是当前比较常见的做法。
无锡绿城·凤栖星澜建面约183㎡户型,四室两厅三卫,四开间朝南,约9.1m天幕阳台,视野超级棒;双套间的设计,奢配满足全家人的生活方式。

无锡绿城·凤栖星澜约183㎡户型图

项目效果图
在立面设计上,项目以创新建筑立面为主,采用bezel-less 窄边框设计,超纤细的边框,化繁为简,实现更大窗地比,提供更好的采光与视野。

宁波建发·缦云约189㎡户型示意图
外立面采用三段式设计,顶部采用建发独创飞檐,中部融合大面铝板,高层采用三玻两腔low-e玻璃,底部单元入户部分配干挂石材,构筑新中式标识感,让现代和传统完美交融。

宁波建发·缦云大门实景图
本资料声明:
1.本文为建筑设计技术分析,仅供欣赏学习。
2.本资料为要约邀请,不视为要约,所有政府、政策信息均来源于官方披露信息,具体以实物、政府主管部门批准文件及买卖双方签订的商品房买卖合同约定为准。如有变化恕不另行通知。
3.因编辑需要,文字和图片无必然联系,仅供读者参考;

微信公众号“搜建筑”(ID:sjz9999)
合作、宣传、投稿
联系微信:soujianzhu006

