▲ 更多精品,关注“搜建筑”
Perkins Eastman 珀金斯伊士曼

苏州荟同学校坐落于苏州高铁新城,占地7.5公顷。从上海出发,只需19分钟的通勤路程,总建筑面积119,000平方米。这所寄宿制学校容纳幼儿园至高中12年级共2,500名学生,充分地展现了荟同学校“学习无时不刻,无处不在”的教育理念。
该校园包括3栋院落风格的教学楼、体育演艺中心、以及可容纳1,000名学生的宿舍楼。校园空间高效灵活,旨在打造跨学科、重思辨的学习体验。校园按LEED银级及中国绿建二星标准建造,将成为亚洲高端的寄宿制学校之一。
The Whittle School and Studios Suzhou Campus is beautifully situated on a gracious 7.5 ha waterfront site in the heart of the high-speed rail new town district in Suzhou, China. A 19 minute- commute from Shanghai, the new purpose-built 119,000sm facility is designed to accommodate 2,500 students, grades Pre-K through 12, in a boarding school environment that supports the Whittle philosophy, “learning happens any place all the time”. The campus is comprised of several courtyard-style academic buildings, a sports and performing arts center and a 1000 student residential hall. The design provides high performance, flexible learning spaces that enhance the Whittle’s core academic curriculum and facilitate interdisciplinary, problem-based project work, bi-lingual and experiential learning programs. Designed to meet a LEED for Schools Silver benchmark and China Greenstar (two star) requirements, the new state-of- the-art campus is poised to become one of the premier boarding school campuses in Asia.

总体规划理念
校园总体规划受外部场地和内部功能的双重影响。基地的东南侧是新建的运河,北侧是城市道路,西侧是高速路及公共绿地。校园分为动、静两个分区:沿高速路的喧闹/活跃/运动区,和沿运河的宁静/沉思/学术区。
Masterplan Approach. The planning of the Whittle School campus is informed by the external site pressures and internal programmatic forces. The site is bordered on the east and south by a new waterway/canal, a secondary access road on the north and a highway and green buffer to the west setting up a natural dichotomy which bifurcates the site into two distinct zones: a boisterous/active/sports/living zone along the highway edge and a serene/contemplative/academic zone bordering the canal.


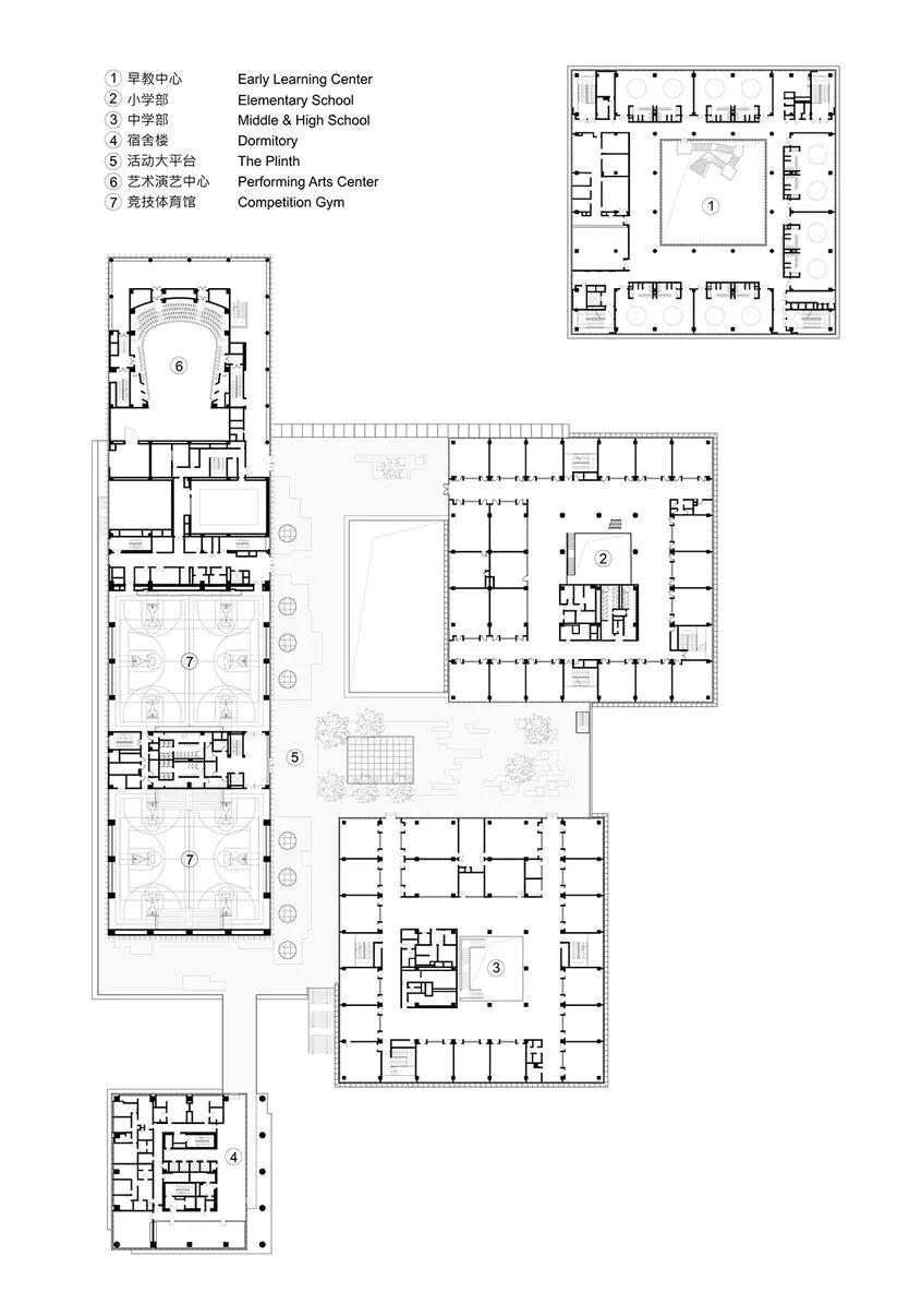
1.三栋回字形的教学楼分别是幼儿园、小学和初高中。它们沿河依次错落排列,提供最佳日照及景观视野。这些“学习灯塔”容纳了早教中心、小学和初高中的功能。
2.体育演艺中心位于动静分区之间的南北轴线上,在足球场和学术区之间形成缓冲。
3. 地面景观基座包含学校中心和共享社区空间,将教学楼和体育酒吧连成一体。
4.学生宿舍楼沿河布置在中轴线的最南端,和体育演艺中心连成一体。
1. Core academic functions are distributed divisionally in three distinct academic pavilions and arrayed along the canal to optimize daylight access and views. These “Learning Lanterns” house the early learning center, elementary school and middle/high school functions.2. The performing arts and sports facilities form a Shared Community Bar building located along the north- south axis between the two zones, forming a transitional buffer between sports fields and the academic zone. 3. A ground level Landscaped Plinth containing the heart of school and shared community spaces interconnects the teaching pavilions to the sports bar in one integrated design. 4. The Student Dormitory tower is placed along the canal edge at the more private end of the main north–south campus axis as a counterpoint to the horizontal sports and performing arts center bar.


外立面设计
建筑从苏州历史建筑元素(屏风、连廊、庭院、花园)中汲取灵感,为现代国际教育校园重新诠释。
Exterior Facade Design.The timeless architecture of the design draws inspiration from elements of historic Suzhou architecture (screen, loggia, courtyard, gardens) reinterpreted for a modern international education campus.

为了创造一个有凝聚力和独特的校园设计,高科技遮阳板的类型包围了立面,为不同的功能组件提供日光控制和识别。每种屏幕类型的设计都是为了满足其服务的每个建筑的特定朝向、内部布局、眩光减少和阳光收集需求。标志性的遮阳板由超高性能混凝土(UHPC)建造,是高性能外墙系统的主要建筑组成部分。
The Screen To create a cohesive and distinctive campus design, a typology of high-tech brise-soleil enwraps the facade, providing daylight control and identity to the varied functional components. Each screen type is designed to address the specific orientation, internal layout, glare reduction and sunlight harvesting needs for each building it serves. The signature brise-soleil is constructed from ultra-high-performance concrete (UHPC) and is the major architectural component of a high-performance exterior wall system.

沿着一层的外围,一系列单层的凉廊为学生提供了一条遮蔽的户外路径,在阳光和雨水的掩护下环绕校园,同时与建筑和景观相互作用。
The Loggia Located along the ground floor perimeter, a series of one-story loggia provide a sheltered outdoor path for students to circumnavigate the campus under cover from sun and rain, while interacting with the architecture and landscape.





平面图

平面图

立面图

立面图

剖面图

分析图

项目信息
项目名称:苏州荟同学校
项目完成年份:2022年
建筑面积:119,000 平方米
建筑设计:珀金斯伊士曼建筑设计咨询(上海)有限公司 Perkins Eastman
项目地址:江苏苏州相城区荟同路99号
结构设计:启迪设计集团股份有限公司
景观设计:DLC
施工方:中建三局第八分公司
机电设计:Syska
剧院设计:Theatre Projects Company
声学设计:SM&W
泳池设计:P&A
灯光设计:Studio Illumine
幕墙设计:Aurecon
可持续设计:BEE
交通设计:北京瑞优达工程技术咨询有限公司
2025四代住宅·新趋势
2025高品质住宅:金沙+冶都+新东升
(建筑、景观、物业)
一、高品质住宅:从产品创新、精细化管控、落地实操
二、四代住宅:从产品创新、发展趋势、落地经验

咨询微信:soujianzhu03

本资料声明:
1.本文为建筑设计技术分析,仅供欣赏学习。
2.本资料为要约邀请,不视为要约,所有政府、政策信息均来源于官方披露信息,具体以实物、政府主管部门批准文件及买卖双方签订的商品房买卖合同约定为准。如有变化恕不另行通知。
3.因编辑需要,文字和图片无必然联系,仅供读者参考;

微信公众号“搜建筑”(ID:sjz9999)
合作、宣传、投稿
联系微信:soujianzhu006