▲ 更多精品,关注“搜建筑”
住宅设计是组织人们的生活方式,而户型是这个生活方式的最小单元,也是最集中、最重要的单元。
看懂户型,就看清楚了自己未来的生活方式。
143平,这个卡着节点的面积,成为了各个开发商产品力竞赛的焦点。在存量增加、竞争加剧、市场和消费者选择多样化之后,143㎡户型呈现出更加「精细化」的势态。
......
01
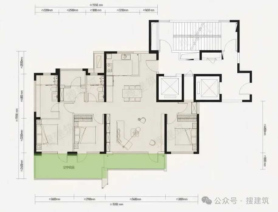
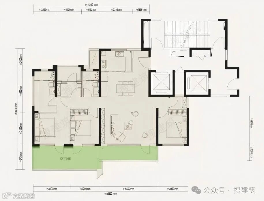
西安德通映南山建面约143㎡,三室两厅两卫:演绎3+1超配的奢尚情怀。

德通·映南山-建面约143㎡户型图
规划2T2户设计,入户奢华玄关,双重迎宾仪式感;南向面宽达到约14.15m,阳台约7米,揽景、通风、采光更胜一筹;LDKB一体化设计,贯穿厨房、餐厅、客厅、阳台“一镜到底”;双挑空露台设计,满足家庭游憩、娱乐、社交新场景;此外,项目规划3+1室,满足二胎、三胎家庭场景所需。

德通·映南山-建筑效果示意图
同时拥有”高阶审美”的颜值:项目的主色调风格采用暗金色。
透明的玻璃,质感的金属,柔和的勾线,随后用大量的纵向线条,营造出一种向上生长的垂直雕塑感。这是一种上海宝格丽、纽约巴卡拉的酒店风国际审美,深邃的暗调、光艳的金色、透明的幕墙,对撞出一种摩登般的奢逸气息。

德通·映南山-建筑效果示意图

德通·映南山-建筑效果示意图
02
西安招商雲墨以约2.8低容积率,规划9栋第四代住宅·空天雲院产品。
约143㎡户型也是经典的四开间朝南,偶数层前后双空中花园,加起来面积超20㎡。奇数层一个20㎡空中花园连接在主卧和次卧,户型实得率达到了97%。

建面约143㎡户型平面图
餐厅约4.5m宽,尺寸宽敞,做餐边柜的空间也很充足。三南向的卧室,对居住的舒适度很大提升。
建筑立面以当代形、东方意,凝集现代精工细节重塑东方极简美境,以横平竖直的线条勾勒城市上空亮丽的美学坐标。


效果图
03
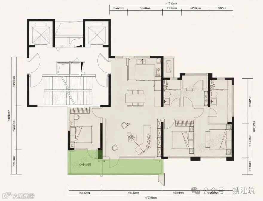
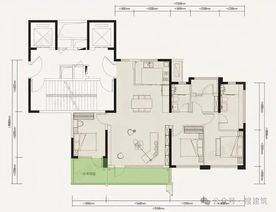
中海未来之境建面约143㎡(偶数层)作为中海的最经典款式,追求“瞰景价值”:

约143㎡偶数层户型平面图
约15.1m南向采光面,四开间三室朝南;一镜到底,LDKBG一体化设计方案,让空间视野更加宽阔;约12.1m贯通式阳台+约6.5宽景露台,满足家庭多重想象;约6m挑高露台、面积超15㎡,且还是约270°瞰景;创新设计,主卧卫生间,落地宽窗超3米+飘窗设计,让家庭SPA不是梦想。

约143㎡奇数层户型平面图

未来之境-建面约143㎡户型效果图
04
西安越秀铁建·樽樾项目143㎡户型露台引入前庭后院的空中花园设计理念,实现花园与公区的互动。
整体为四室两厅两卫设计,南向面宽达到了约15.1m,其中整个横向客厅的面宽就占有足足7m,约5.1m开间的主卧,带衣帽间的次卧,功能和尺度都超越了市场同面积产品。

建面约143㎡户型平面图
奇数层空中露台设置在南向与客厅相连接,而偶数层的空中露台则设计在北向与书房相连,这种设计规避了一些奇偶层户型空中花园对视,户型私密感差的问题,户型实得率达到了约98%。
另外除了每款都带有空中露台外,北向还设置有一处生活阳台与厨房相连接。

立面效果图
从整体外观看,项目有着极为出彩的公建化立面,几何线条的轮廓弱化了楼宇的棱角,将雕塑感、时尚感、现代感一一释放。
立面效果图
包括从空间形制中提炼重檐元素,以香槟金、香槟银及暖色调真石漆营造建筑的体感温度,以石材和金属材质的碰撞,让秩序和浪漫共生。
05
成都中环臻邸143户型以270°采光成的端厅设计引领市场。
户型采用LDKB一体化设计,将厨房、餐厅、客厅及阳台贯通相连,总面积达到了约77㎡,应该是创造了143㎡户型公区面积的新纪录。

建面约143㎡户型平面图
大面积的公区空间,可以容纳多重生活场景,满足业主与家人交流的互动感和社交属性。餐客厅空间宽敞明亮,270°采光面长达近14米,满足业主对景观与视野的高追求。
端厅面积的趋小化,是将再改、终极改善的产品形式降维到了标准改善中。
这是由市场需求与产品设计共同促成的结果。一方面,房企需要在200㎡内的大量同质化产品中实现差异化竞争;另一方面,此类设计迎合了客户在端厅体验豪宅氛围的需求;加之现代设计技术的精进,项目可以通过端厅探寻更多产品价值。



143户型样板间实拍图
外立面造型精细化设计,香槟金纵向装饰铝板强调建筑的挺拔及体量感。大面积通透玻璃使建筑轻盈而优雅,整体线条微曲强化建筑韵律。顶部以弧形连通,为建筑创造丰富的形体变化,铸就府邸理想人文居所。


楼栋立面
实景图

单元入口实景图
06
西安轨交绿城江语云庭建面约143㎡「璟庭」偶数层,四室两厅两卫户型:作为万里挑一的云端之上的“空中院”臻品,空间尺度和功能诉求在此统一。
建面约143㎡四室两厅两卫户型,一梯一户、户户带南向露台花园+南北双阳台,将观景尺度、可利用空间、赠送面积做到了最大化,可轻松实现莳花弄草、品茶读书、娱乐健身的“院居自由”。

江语云庭-建面约143㎡户型图
此款户型客厅开间约6米,营造了聚会式家庭公区空间,可盛放一家老小全龄段生活场景;此外,四室设计、酒店式主卧大套房、入户转交式玄关……如此迭新的143㎡,让改善生活场景和社交场景得到了更具象的表达。

轨交绿城江语云庭效果图
错层露台立面设计,如今是新一代潮流建筑的代表。

轨交绿城江语云庭效果图
轨交|绿城·江语云庭立面示意图
轨交|绿城·江语云庭以大玻璃瞰景幕墙、错层观景大露台,打造了一个更立体的现代潮流都会美学立面。项目以第四代错层设计的露台,让“垂直森林”成为现实。站在自家花园庭院,抬眼便是渭河美景。
07
长沙梦想中央公园项目整体容积率仅约2.7,由6栋22-26层高层住宅和4栋15-17层小高层,整体呈东高西低、北高南低分布,与公园头排的视野优势相得益彰。
约143㎡户型两梯两户配置,私密性高;入户大玄关,四开间朝南,三个卧室朝南,整体布局非常大气,空间阔绰。

项目约143㎡户型平面图,仅供参考
公建化外立面,用中空LOW-E玻璃、灰色金属格栅线条构筑了超高的窗墙比,为雷锋湖中央公园旁构建现代化的天际线,实现双向观景。

项目效果图,仅供参考
首推地块西侧出入口效果图已经公布,采用迎宾水景+质感立面装饰,让业主从归家开始,就沉浸在仪式感中。
项目效果图,仅供参考
入户大堂采用格栅装饰+大面积岩板上墙,一眼吸睛:

项目效果图,仅供参考
瓷砖铺贴上墙的光厅车库遍布高级感:

项目效果图,仅供参考
08
西安绿地·海珀未泱,建面约143㎡产品,三室两厅三卫,阔绰电梯前厅、独立玄关入户,既延展了空间利用率,又营造双重入户归家礼仪。

绿地海珀未泱-建面约143㎡户型图
南向面宽约12.2m,三开间朝南,厨房、餐厅与宽厅一体化设计,同时宽厅阔厨基础上可改造为“3+1”室布局,多功能空间可用作书房、茶室等,满足个性化场景需求;双主卧+三卫,且客卫三段式干湿分离设计,三代同堂也能各有私密空间。

09
昆明金地·都会风华项目主力户型143㎡,兼具功能考量与尺度奢享,将360°采光、270°转角大阳台、可改造客餐厅+书房、玄关、三段式主卧等豪宅标签感元素,注入空间内,营造更为奢享的居住氛围:

建面约143㎡户型平面图
143㎡户型实体样板间实拍图
◉ L型环幕大阳台
270°超转角全景视野,将“视界观”重塑,处处渗透着生活的品质感和奢侈感。极目远眺,潋滟景致与繁华街景尽收眼底。
◉ 餐客一体化设计
打造约32㎡的阳光空间,延伸家庭生活各种功能区,将空间质感瞬间拉满,为家庭提供更多交流互动场景。
◉ 约21㎡酒店式主卧套房
配置独立卫浴,串联约15米景观阳台,一方面,可满足男女主人拥有各自私密空间的个性化需求;一方面可增加更多储存空间,尽享高阶生活品质。

143㎡户型实体样板间实拍图
在改造功能方面,可以将书房+约32㎡的客厅+270°转角阳台全部打通,即可获得一个面积高达54㎡的超级空中会客厅, 同时形成约11.5米的大横厅格局,空间的利用和视野的拓展上,秒杀一众同区域的改善型产品。
270°转角阳台+4面采光,叠加超强改造性的产品,表现真的很优越。
10
南京越秀·天和143㎡的四房两厅两卫,是市面少有的高层做 2T2 的正四房户型,层高约3.15米,户型采用大面宽,南北通透,视野宽阔,通风采光都极好。

越秀·天和建面约143㎡户型图
4.5开间向南,约14.4米整体南向开间,采光面充分而阔绰;约8米宽双连跑道阳台、四飘窗设计,延展空间的边界。
越秀·天和建面约143㎡样板间,非交付标准
大面宽的近乎落地三玻两腔玻璃,将室外风景有机融入室内。
约5.1m开间大横厅+独立餐厅,打造LDKG一体化洄游动线,提供更大的活动起居空间,餐厨动线更加合理,更好的实现南北通透,也提供给居者更为生动丰富的生活场景想象。
越秀·天和建面约143㎡样板间,非交付标准
主卧南向开间约3.4米,进深约4.5米,主卧套间除了睡卧空间+衣柜+独立卫生间,还附赠南向飘窗和洗手间飘台两处附加空间,是市面上同等面积户型主卧的plus版本,同时也将私密性和舒适度都充分给予居者。
越秀·天和建面约143㎡样板间,非交付标准

大门效果图
11
西安金湾·沣河十里建面约143㎡产品,南向面宽约14米,横竖双厅、约7.4米大宽厅、长阳台,放大空间尺度感;主卧行政套房设计,独立衣帽间,独立卫浴间,品质生活不言而喻。

金湾·沣河十里-建面约143㎡户型图
12
西安绿城·海棠三章建面约143㎡户型, 四房两厅两卫,四面宽朝南,约 6.65m 超长景观阳台,独梯入户,私属归家体验。

项目约143㎡户型平面图,仅供参考
适合三代同堂大家庭居住,超大餐客一体化空间,保证全家人的日常互动。南向老人房精心配置花园阳台,父母居住更惬意。北向独立生活阳台,再一次加大全家人的生活空间。

本资料声明:
1.本文为建筑设计技术分析,仅供欣赏学习。
2.本资料为要约邀请,不视为要约,所有政府、政策信息均来源于官方披露信息,具体以实物、政府主管部门批准文件及买卖双方签订的商品房买卖合同约定为准。如有变化恕不另行通知。
3.因编辑需要,文字和图片无必然联系,仅供读者参考;

微信公众号“搜建筑”(ID:sjz9999)
合作、宣传、投稿
联系微信:soujianzhu006


