▲ 更多精品,关注“搜建筑”


Fyrtornet 是马尔默新建的一座木制高层建筑--为天际线增添了一道亮丽的风景线,也是海利广场(Hyllie Square)的最后一道亮丽风景线。它是迎接从欧洲大陆来的游客的第一座地标性建筑,是一座高耸入云的法鲁红色木塔,也是斯堪的纳维亚半岛同类建筑中最高的一座。
Fyrtornet is Malmö's new timber high-rise – a striking addition to the skyline and the final piece completing Hyllie Square. It's the first landmark to greet travelers as they arrive from the continent, a falu-red timber tower reaching proudly skyward, the tallest of its kind in Scandinavia.

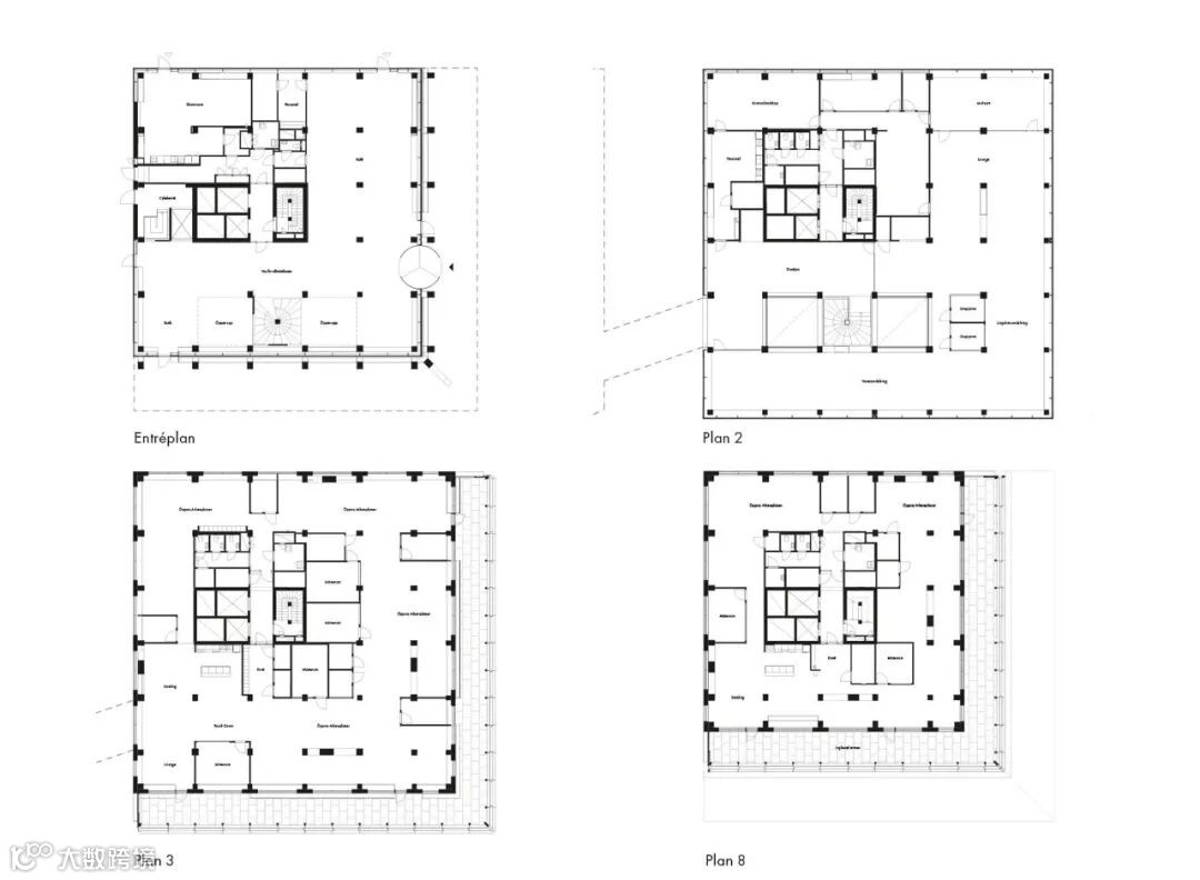
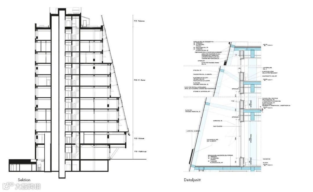
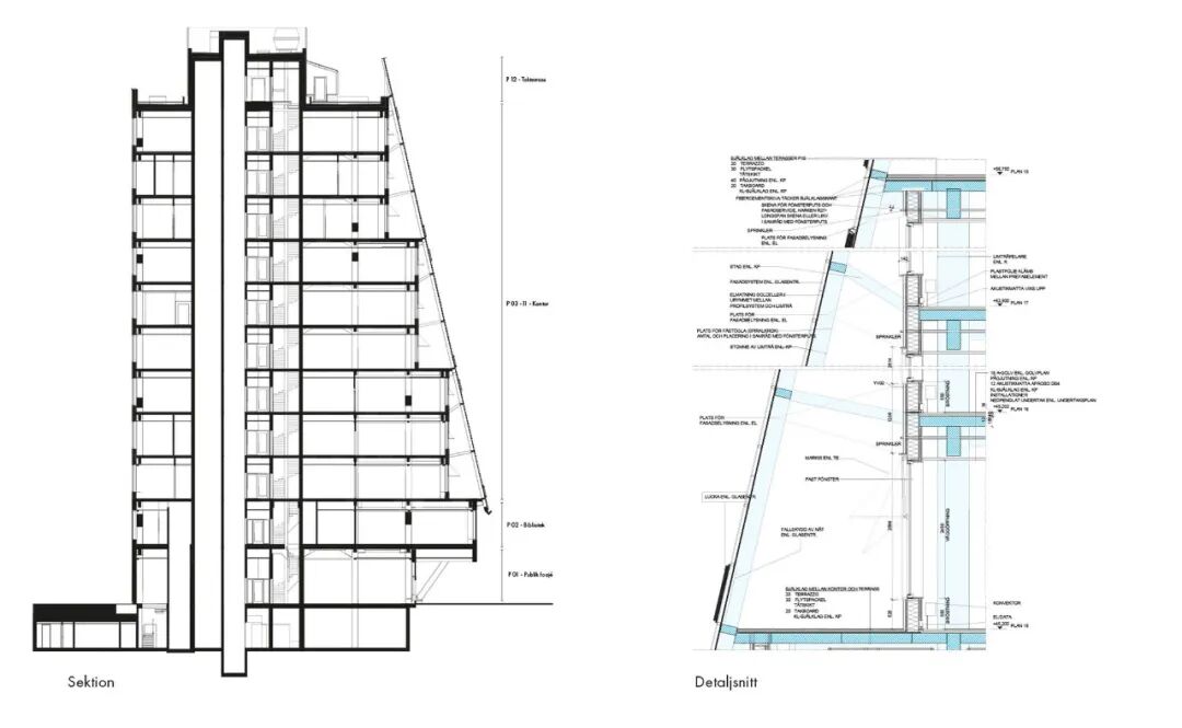
一楼是公共门厅和马尔默市民起居室。二楼的地区图书馆一直开放到晚上,阅览室朝向广场,为人们提供了休憩和思考的空间。上面的办公楼层采用温暖的木材内饰,三层高的玻璃封闭露台引入自然光和空气。在顶层,一个共享的屋顶花园将厄勒海峡的广阔景色尽收眼底。
The ground floor welcomes a public foyer and a living room for the people of Malmö. On the second floor, a district library remains open into the evening, with reading rooms oriented towards the square, offering spaces to pause and reflect. Above, office floors unfold with warm timber interiors and triple-height, glass-enclosed terraces that bring in natural light and air. At the top, a shared rooftop garden opens to expansive views of the Öresund Strait.



可持续性影响着 Fyrtornet 的方方面面。从木结构框架到雪松木瓦外墙,该建筑的设计减少了碳足迹。它是斯堪的纳维亚最高的完全由木材建造的办公楼。玻璃幕墙上的集成太阳能电池板和地热能源系统进一步提高了设计的效率和资源意识。
Sustainability shapes every facet of Fyrtornet. The building's design reduces its carbon footprint from the structural timber frame to the cedar shingle facade. It stands as Scandinavia's tallest office building, constructed entirely of timber. Integrated solar panels on the glass facades and a geothermal energy system further enhance efficiency and resource-conscious design.




Fyrtornet 不仅仅是一座建筑,它还是一个聚会场所,是 “共享使馆区 ”的重要元素。公共门厅与商业空间和地区图书馆完美融合,鼓励不同群体之间的交流,丰富了城市生活。凹陷的入口和悬挑的屋顶营造出一个遮风挡雨的城市空间,吸引人们聚集在此。建筑的两个立面采用红雪松木瓦,另外两个立面则采用双层玻璃幕墙,将城市的景色映入眼帘。
More than a structure, Fyrtornet is a meeting place and a key element in the Embassy of Sharing district. The public foyer seamlessly blends with commercial spaces and a district library, encouraging encounters between different groups and enriching urban life. A recessed entrance and overhanging roof create a sheltered urban space, inviting people to gather. Two facades are dressed in red cedar shingles, while the other two feature double-glazed curtain walls that reflect the city beyond.



Fyrtornet 将深思熟虑的整体设计与创新的木结构建筑相结合,并致力于社会和生态的可持续发展。这是一个建筑宣言,既尊重马尔默的城市环境,又希望塑造马尔默的未来。我们希望,这座精心打造的建筑能为城市天际线增添一道亮丽的风景线,提升马尔默的建筑环境,激发人们的灵感。
Fyrtornet combines thoughtful, holistic design with innovative timber construction and a commitment to social and ecological sustainability. It is an architectural statement that both respects Malmö's urban context and aspires to shape its future. A crafted addition to the city's skyline that we hope will enhance Malmö's built environment and inspire those who encounter it.

平面图

分析图

模型图
项目信息
建筑师:Wingårdhs
地点:瑞典
面积:9020 m²
年份:2024
本资料声明:
1.本文为建筑设计技术分析,仅供欣赏学习。
2.本资料为要约邀请,不视为要约,所有政府、政策信息均来源于官方披露信息,具体以实物、政府主管部门批准文件及买卖双方签订的商品房买卖合同约定为准。如有变化恕不另行通知。
3.因编辑需要,文字和图片无必然联系,仅供读者参考;

微信公众号“搜建筑”(ID:sjz9999)
合作、宣传、投稿
联系微信:soujianzhu006